logo

В гостях: Квартира на Земляном валу в доме XIX в

Последний ремонт делали полвека назад, а с нынешним — справились за 4 месяца

Houzz Россия
Houzz Россия

3 апр. 2019

Обновлено 4 авг. 2019

В гостях: Квартира на Земляном валу в доме XIX вYulia Hohlova
О проекте
Где: Москва, Земляной вал
Размер: 43 кв.м
Год: 2018
Кто здесь живет: Юлия Александрова с мужем и дочерью
Автор проекта: Юлия Хохлова
Факт: Дом до второго этажа построен в конце XIX века, верхние этажи надстроили уже в XX веке
Фото: Евгений Кулибаба

Квартира на последнем этаже сталинского дома не видела ремонта более полувека. Здесь долго жили несколько поколений одной семьи, благодаря чему сохранился исторический паркет и некоторые домашние реликвии, но общее состояние квартиры было печальным. Тем удивительнее, что на ремонт понадобилось всего четыре месяца.
В гостях: Квартира на Земляном валу в доме XIX вYulia Hohlova
«Переделывать пришлось все, — рассказывает новая владелица Юлия. — Выбор стиля подсказала моя любовь к сталинкам и классике в интерьере. А отсылки к французским элементам задали путешествия и, можно сказать, мечты об идеальном уютном доме».
В гостях: Квартира на Земляном валу в доме XIX вYulia Hohlova
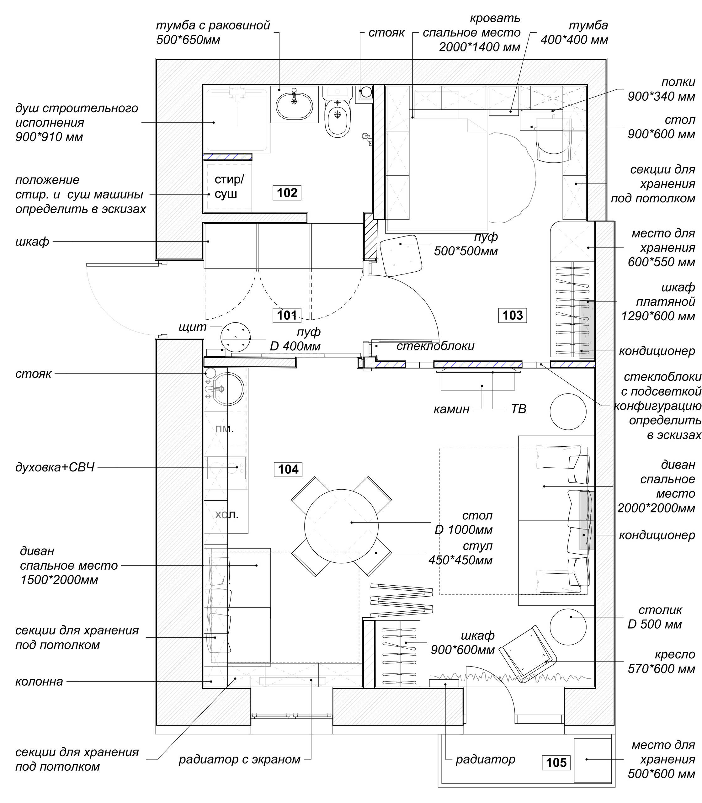
Перед дизайнером поставили задачу согласовать все изменения, поэтому конструктив пространства был сохранен. Но функционал однокомнатной квартиры с изолированной кухней и небольшой кладовой вырос до двухкомнатной — кроме родителей, в семье есть дочь, и ей требовалась отдельная спальня.

«Профессиональная помощь была необходима. Мы понимали, что это будет многофункциональное помещение. И установка передвижной перегородки являлась важным условием планировки. Но в том, где именно ее необходимо установить, очень помогла Юля, — вспоминает хозяйка. — Не говоря уже про правильное размещение розеток, подбор плинтусов, расчет рисунка плитки и её укладку. Про каминный портал мы и не думали, еще и черного цвета. А он пришелся так кстати!»
В гостях: Квартира на Земляном валу в доме XIX вYulia Hohlova
Планировка квартиры

Пространство разделили на два помещения разной площади: гостиная с французским балкончиком разместилась по соседству с кухней, в дальней части отгородили комнату для дочери. Спальное место для родителей — раскладной диван. Для друзей и родственников поставили небольшой раскладной диванчик на кухне.

Кухню с гостиной объединили, но так как в квартире газ, предусмотрена изоляция помещений с помощью складной перегородки.
В гостях: Квартира на Земляном валу в доме XIX вYulia Hohlova
Проблема и решение:
«Мы снесли ненесущую стену, сохранив ригель. За него планировали “цеплять” раздвижную конструкцию — стекло в железном профиле, которое сгибается в разных плоскостях. Нужно было предусмотреть возможный люфт и правильно распределить нагрузку, — рассказывает дизайнер. — Перегородку заказывали там же, где и все двери. Это было ошибкой: производитель прежде не делал подобных изделий. Из-за незнания технических нюансов ее пришлось трижды переделывать и ждать окончательной установки несколько месяцев».

В итоге перегородка появилась уже после переезда, но, по признанию семьи и дизайнера, итоговый эффект стоил ожидания. Как и стоимость. Цена ее оказалась в несколько раз ниже, чем у профильных компаний.
В гостях: Квартира на Земляном валу в доме XIX вYulia Hohlova
Не бояться заставлять рабочих переделывать что-либо — важный опыт, который заказчики вынесли из процесса ремонта. «Времени вы потратите ненамного больше, а потом не придется делать все заново», — говорит Юлия.
В гостях: Квартира на Земляном валу в доме XIX вYulia Hohlova
Так, прежде чем в гостиной удалось сохранить оригинальный паркет, он чуть не стал жертвой строителей. «В финале реставрации, после циклевки, участник бригады начал покрывать пол лаком, по какой-то причине не добавив один компонент в многокомпонентный лак. Паркет оказался словно смазан медом и просто не высыхал. К счастью, я регулярно проводила авторский надзор и оперативно созвонилась с технологом: готовый слой сняли и покрыли пол заново», — вспоминает дизайнер.
В гостях: Квартира на Земляном валу в доме XIX вYulia Hohlova
В поддержку классических традиций для стен комнат выбрали декоративную штукатурку, в составе которой есть шелковое волокно и металлизированные частицы — кажется, что плоскости задрапированы шелковой тканью.

В интерьере много любимых вещей владельцев: часы и ваза, оставшиеся от бабушки с дедушкой, не имеют материальной ценности, но дороги как память. Картины выбраны из личной коллекции хозяйки. Семье вообще нравятся вещи с историей, поэтому в интерьере появились винтажные детали, найденные на барахолках. «Последнее, что я купила — отдельно стоящий шкаф для сувениров, без него невозможно, как оказалось, закончить общую картину пространства», — поясняет Юлия.
В гостях: Квартира на Земляном валу в доме XIX вYulia Hohlova
«Мы также хотели сохранить витражные двери, — рассказывает дизайнер. — Они вели в старую кладовую. Но их реставрация очень долгая и дорогая. Из мелких деталей на память сохранили пластиковых барышень на дверях санузлов и ручки дверей — они, наверное, помнят еще бабушку прежних жильцов».
В гостях: Квартира на Земляном валу в доме XIX вYulia Hohlova
Высокие потолки — 3,4 метра — позволили при небольшой площади использовать КПД квартиры на сто процентов — каждый сантиметр задействован под хранение. В кухне добавили третий ряд секций сверху и несколько шкафов в зоне диванчика. Большая часть шкафов висит по стенам, за счет чего интерьер не выглядит тяжеловесным. Сохранить визуальную легкость также помог белый цвет и неброская фурнитура.

На чем сэкономили: Сэкономили на напольной плитке в кухне, хотя сейчас понимаю, что надо было купить более дорогую и качественную».
В гостях: Квартира на Земляном валу в доме XIX вYulia Hohlova
На что потратились: Основные траты пришлись на изготовление всех шкафов на заказ, о чем заказчики не жалеют. «Роскошью стала трата на кованый балкон и решетка на батарею в кухне, но это придает интерьеру ожидаемый французский шарм и дополнительный уют, — рассказывает хозяйка квартиры.
В гостях: Квартира на Земляном валу в доме XIX вYulia Hohlova
Обратите внимание: Выход из кухни ведет в коридор. Зеркало на обратной стороне двери экономит место в прихожей.
В гостях: Квартира на Земляном валу в доме XIX вYulia Hohlova
Спальню дочери от коридора и гостиной изолировали таким образом, чтобы впустить в глухое помещение естественный свет. Для этого часть перегородки выполнили из стеклоблоков. «Стеклоблоки — недооцененный материал, — отмечает дизайнер. — Я сама прежде их не использовала, и благодарна заказчикам за смелость. Можно найти множество вариантов по цвету и фактуре под разные стилевые решения. Мы выбрали матовые модули с ромбами».
В гостях: Квартира на Земляном валу в доме XIX вYulia Hohlova
Картина с изображением улицы, залитой солнцем — еще один способ впустить сюда солнечный свет. «Для своей комнаты дочь хотела темные стены, кровать, а не диван, и классический письменный стол», — поясняет мама.
В гостях: Квартира на Земляном валу в доме XIX вYulia Hohlova
Комната получилась камерной за счет темного оттенка обоев и объемной за счет контрастных белых шкафов. Правдв, паркет в этой части квартиры сохранить не удалось — большая площадь пола оказалась залита каким-то составом. Старые доски сняли, вместо них уложили ламинат с рисунком модульного паркета.
В гостях: Квартира на Земляном валу в доме XIX вYulia Hohlova
Основная перепланировка коснулась санузла и ванной. Два небольших помещения совместили, сохранив мокрые зоны на своих местах. Вместо входа в ванную теперь находится шкаф, где установили стиральную машинку. А там, где была дверь в санузел, сделали общий вход. Не переносили только стояк, его закрыли в короб и превратили в полку для хранения.
В гостях: Квартира на Земляном валу в доме XIX вYulia Hohlova
Плитку для верхней части стен выбирали, исходя из разумного бюджета, нижнюю часть облицевали панелями-буазери. Зеркало чеканки 1970–80 годов нашли на «Авито». Так как в ванне нет необходимости, владельцы предпочли душевую кабину. И уже после съемки шторку заменили на полноценную стеклянную перегородку.
В гостях: Квартира на Земляном валу в доме XIX вYulia Hohlova
Единственное, о чем позаботились предыдущие владельцы — пластиковые окна с хорошей звукоизоляцией. Дизайнеру оставалось только заменить глухую вставку на балконной двери на прозрачный стеклопакет и обновить ограждение. Присоединять балкон к площади квартиры строго запрещено — дом стоит на Садовом кольце, и любые манипуляции с фасадом являются нарушением. Зато летом французский балкончик превращается в дополнительное место для посиделок.
В гостях: Квартира на Земляном валу в доме XIX вYulia Hohlova
«Наши рабочие отношения переросли в дружбу, — рассказывает дизайнер. — Я живу в соседнем районе и часто бываю в этой квартире. Мое любимое место — зеленое кресло у окна и сам балкон. Отсюда открывается вид на Садовое кольцо. Смотреть на него с высокого этажа одно удовольствие: город расстилается под ногами, чувствуешь ритм, пульс мегаполиса, но при этом не слышишь шума и находишься в атмосфере уюта».

ОБ АВТОРЕ ПРОЕКТА
Перейдите на личную страницу Юлии Хохловой, чтобы изучить другие работы из портфолио декоратора или заказать собственный проект
В ВАШЕМ ГОРОДЕ…
Найдите дизайнера на Houzz — закажите собственный проект

МЫ ЛЮБИМ ХОДИТЬ В ГОСТИ…
Хотите стать героем следующей статьи? Напишите на editorial@flatica.ru и приложите несколько фотографий своего интерьера (достаточно съемки на смартфон). Мы обязательно свяжемся с вами, если примем решение о публикации

Комментарии 46

маленькое помещение труднее организовать и спроектировать, учитывая все нюансы (кол-во мебели, шкафов, расстояния между ними и т.п.). Дизайнер справилась, получилось очень уютно и нет ощущения тесноты. Стеклоблоки в стене просто супер! и черная витрина в гостиной очень хороша, такие детали завершают интерьер.
Коллекция картин над диваном бедновата, телевизор сбоку от дивана- неудобно, но по-другому не поставишь. Очень понравились стеклоблоки в стенах и подобранные к ним стеклянные люстры. Вместе с белыми наличниками они придают легкость и воздушность интерьеру. Приятная цветовая гамма, благородные цвета, шикарная стеклянная перегородка. Мечты заказчиков дизайнер полностью осуществил: получилась милая, уютная, светлая квартира с "французским шармом", как хотела хозяйка. И где вы видели в центре Парижа большие квартиры?
понравилось почти все, кроме ... штукатурки в гостиной. и плитки в ванной (слишком навязчивый узор), может быть в реале все эти материалы смотрится лучше и это на фото просто из-за цветопередачи? А в целом проект именно такой приятный женский, для квартиры "с историей", с коллекциями, с традициями. В целом оч. приятен, но почему-то ощущение, что дизайнер больше включился на моменте оформления уже пространства, чем ремонта. или более строгий авторский надзор надо было, там и сказано, что кое-что рабочие делали не так. Кстати, плитка в кухне почему-то не выглядит дешево, не наговаривайте ))) вполне. для меня вот скорее а-ля венецианка на стенах с метталич. отблеском и плитка в ванной на стенах как-то вызывают сомнение.

Оставьте комментарий

Смотреть похожие темы

Читать похожие статьи