logo

В гостях: Квартира музыкального продюсера на Ходынке

В ванной есть секретная антресоль — с люком и складной лестницей

Евгения Назарова
Евгения Назарова

30 янв. 2019

Обновлено 13 февр. 2019

Постоянный автор Houzz, интерьерный журналист

В гостях: Квартира музыкального продюсера на ХодынкеDiana Maltseva
Редкий случай: над этой квартирой площадью 67 кв.м работали сразу два специалиста архитектор и дизайнер.

О проекте
Место:
Москва, ЖК «Лица»
Размер: 67,4 кв.м; высота потолков 4,2 м
Кто здесь живёт: музыкальный продюсер Сергей Балдин
Авторы проекта: архитектор Сергей Шапин и дизайнер Диана Мальцева, студия Oh, Boy!
Фото: Юрий Гришко
В гостях: Квартира музыкального продюсера на ХодынкеDiana Maltseva
Архитектора выбирать не пришлось: к тому моменту владелец уже был знаком с Сергеем Шапиным, а вот поиск дизайнера затянулся. «Я лично встретился с пятью дизайнерами, но ни с кем не сложилось. Но тут один из моих друзей дал контакт Дианы и сказал: «По-моему, это то, что тебе нужно». Уже на сайте я понял, что 99% работ Дианы соответствуют моему представлению о прекрасном. Мы начали работать, потому что смотрим в одну сторону. В отличие от многих творческих людей, Диана чрезвычайно щепетильна в вопросе договорённостей, сроков, исполнения обязательств. Ну а что касается учёта всего и вся по бюджету проекта, то здесь ей может позавидовать Центральный банк: организовано всё ясно, понятно, детально», рассказывает Сергей Балдин.
В гостях: Квартира музыкального продюсера на ХодынкеDiana Maltseva
Диана тоже оценила этот опыт в положительном ключе, хотя делить полномочия с другим специалистом поначалу было и непривычно. «Когда Сергей сказал, что на объекте будет архитектор, я удивилась: это дороже, к тому же с одного специалиста проще спрашивать. В итоге мы с архитектором прекрасно сработались, и этот сценарий мне понравился — было больше времени на дизайн и креатив, а чертежи и технические нюансы целиком оказались в зоне ответственности другого человека», отмечает дизайнер.
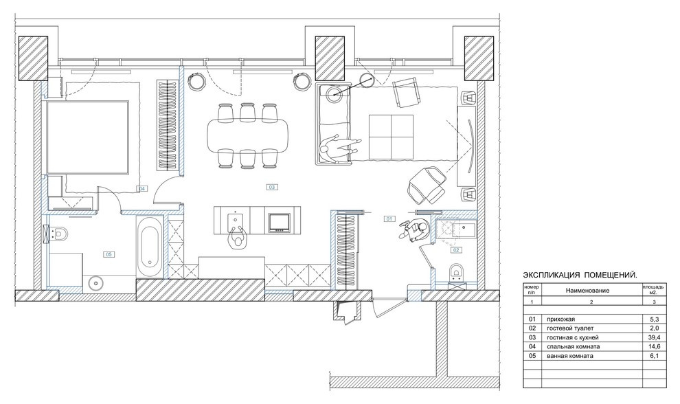
Планировка квартиры

Квартира сдавалась без отделки бетонная коробка прямоугольной формы с окнами по одной стороне. Вдоль фасадной стены есть несущие колонны, которые выступают внутри квартиры, но их удалось обыграть в интерьере. Других ограничений не было. Правда, изначально квартиру пытались зонировать так, чтобы поместилось две спальни (об этом просил заказчик). Но от этого плана всё же отказались комнаты получались крошечными. Большую часть пространства выделили под кухню-гостиную, владелец любит готовить и принимать гостей.
В гостях: Квартира музыкального продюсера на ХодынкеDiana Maltseva
Двери Dorian

Гостиную и прихожую разделяют раздвижные двери: они откатываются в пеналы, так что при желании два помещения можно визуально объединить. Полотна выполнены из массива с 3D-эффектом на поверхности есть декоративные плашки, которые создают рельеф. Нестандартный размер полотен (240 см) связан с особенностями квартиры: при высоте потолков 420 см типовые двери казались бы очень низкими. В санузел ведёт дверь, полностью облицованная зеркалом, с внутренней стороны её покрасили в цвет стены.
В гостях: Квартира музыкального продюсера на ХодынкеDiana Maltseva
Потолок в прихожей опустили до трёх метров и установили вместительный гардероб. Вешала разместили в два яруса: верхний можно потянуть за ручку и опустить, так что шкафом удобно пользоваться без дополнительной стремянки. Фасады отделаны искусственной кожей, а ручки выполнены из шпона дерева — с такими поверхностями приятно контактировать.

Тактильную тему продолжает дубовая паркетная доска, которую уложили даже в прихожей, по желанию хозяина: «Я предпочитаю керамогранит, но Сергей передвигается в основном на машине, и в прихожую почти не попадают снег или уличная грязь», поясняет Диана Мальцева.
В гостях: Квартира музыкального продюсера на ХодынкеDiana Maltseva
Идеальный мужской интерьер для Сергея не брутальный лофт и не агрессивно-юношеское пространство, скорее, лаконичный, но премиальный дизайн. Этого эффекта стремились достичь с помощью качественных материалов и неброской палитры.

Ещё одно важное пожелание заказчика вписать мебель из прежнего дома. «Обычно в таких случаях речь идёт об устаревших предметах, которые хозяевам жалко выбросить. Но в этом проекте мебель “с прошлым” сработала неожиданно удачно: я увидела эти предметы, и картинка сложилась», рассказывает дизайнер.
В гостях: Квартира музыкального продюсера на ХодынкеDiana Maltseva
В новую квартиру переехали мягкая мебель (диван и кресло), ковёр и торшер, а также немецкий стол-верстак с интегрированной мойкой. В интерьере кухни-гостиной он сморится брутально (вид стола со сливом, уходящим в пол предусмотрен производителем).



«Кухонный верстак мой любимчик, это место, где я готовлю и завтракаю. Уже появилась пара полубарных стульев. А ещё это моя “сцена”, когда я встречаю гостей и выступаю перед ними с ножом в руках», рассказывает владелец квартиры Сергей.
В гостях: Квартира музыкального продюсера на ХодынкеDiana Maltseva
Стол-верстак Bulthaup; кухня Giulia Novars

Кухню выбирали таким образом, чтобы она сочеталась с верстаком. Поэтому на фасадах, как и на поверхности верстака, есть вставка из шпона ореха, а металлический цоколь кухни дублирует основной материал стола. У кухни нестандартная высота (280 см): над подвесными шкафами есть нависающая антресоль, по сути, третий уровень для хранения, в который встроена техническая подсветка.
В гостях: Квартира музыкального продюсера на ХодынкеDiana Maltseva
Краска Little Greene

Высокие потолки повлияли не только на конфигурацию кухни, но и на дизайн стен: верхнюю часть и плинтус выкрасили светло-серой краской, нижнюю тонировали в серо-коричневый оттенок. По словам Дианы, этот приём добавляет пространству ощущение глубины: без него в интерьере не было бы камерности и уюта. Правда, владелец согласился с дизайнером не сразу: «Мы договорились, что если не понравится, перекрасим стены в один цвет. Но в итоге Сергей принял это решение», рассказывает Диана Мальцева.
В гостях: Квартира музыкального продюсера на ХодынкеDiana Maltseva
Ковёр BoConcept; зеркальные панно и журнальный столик Eichholtz; кашпо Vondom

Чтобы создать акценты в нейтральном интерьере, радиаторы перекрасили в чёрный (в оригинале они были белыми), а рулонные шторы заказали в приглушённом коралловом оттенке. В цвет года, по словам дизайнера, попали случайно: коралл выбрали за то, что оттенок хорошо сочетается с бледно-зелёными штрихами на ковре.
В гостях: Квартира музыкального продюсера на ХодынкеDiana Maltseva
Светильники-подвесы Vibia; керамогранит Porcelanosa

В спальне использовали ту же краску, что и в гостиной на нижней части стен. Изголовье выделили керамогранитом, который визуально не отличить от натурального дерева. Его немного утопили относительно плоскости стены и дополнили боковой подсветкой. Особенно эффектно этот приём смотрится по вечерам, когда изголовье работает, как большой ночник.

«В спальню хочется быстрее зайти и подольше не уходить: качественные материалы создают уют, а плотные шторы ощущение ночи 24 часа в сутки», рассказывает владелец.
В гостях: Квартира музыкального продюсера на ХодынкеDiana Maltseva
Раковина Teak House

В дизайне главной ванной Диана объединила плитку с имитацией двух природных материалов дерева и камня. А вот накладная раковина с неровными краями выполнена из натурального камня; её дополняет мраморная столешница.
Фото предоставлено Дианой Мальцевой

Проблема и решение: Потолок в санузле занизили, чтобы сделать пропорции более гармоничными. Авторы проекта предложили соединить приятное с полезным и обустроить наверху антресоль для вещей, которые редко бывают нужны хозяину. Например, чемоданы и мощный звуковой комплект для вечеринок.

Высота антресоли 120 см: это, конечно, не полноценный этаж, но места для хранения наверху предостаточно. Попасть туда можно через люк в потолке: сверху спускается раскладная лестница.
В гостях: Квартира музыкального продюсера на ХодынкеDiana Maltseva
Керамогранит Porcelanosa; раковина Teak House

Необычная раковина появилась и в гостевом санузле: она сделана из тикового дерева и интегрирована в столешницу. Прелесть тика в том, что эта древесина не боится воды, а на поверхности не остаётся никаких разводов.
Рядом с раковиной спрятана стиральная машина. Её необходимо было разместить под столешницей. Но проблемой была разница размеров: глубина машинки 60 см, а тиковой столешницы — всего 50 см. Технику нужно было скрыта за фасадами так, чтобы она не выпирала из-под столешницы. Тогда часть перегородки, к которой прилегает машинка, выбили, утопив технику в стену (см.схему). А нижнюю часть перегородки выдвинули на недостающие 10 см в сторону прилегающей гостиной.

ОБ АВТОРЕ ПРОЕКТА…
Перейдите на страницу Дианы Мальцевой, «Oh,boy! Интерьеры с мужским характером», чтобы изучить другие работы из портфолио дизайнера
__________________________

В ВАШЕМ ГОРОДЕ…
Найдите дизайнера на Houzz в вашем городе — закажите собственный проект

МЫ ЛЮБИМ ХОДИТЬ В ГОСТИ…
Хотите стать героем следующей статьи? Напишите на editorial@flatica.ru и приложите несколько фотографий своего интерьера (достаточно съёмки на смартфон). Мы обязательно свяжемся с вами, если примем решение о публикации!

Комментарии 76

os_8282

5 л.

Мое внимание привлекла кухня, некий гармоничный, для меня, уголок. А дальше, что попало. Ужасно режет глаз картина на кухне у окна. Не нравятся двери. Создается впечатление офиса, который хотели сделать по-домашнему. Автор хотел совместить несовместимые материалы и, опять же, на мой взгляд, ему это не удалось. Не хочу никого обидеть, но для меня это безвкусица, завернутая в "дорогую обертку".
Добрый день! . Благодарю Вас за статью! . Проект получился очень интересным, понравились нестандартные решения. Особенно хочу отметить зеркала - очень грамотно и хорошо расположены . Уютного Вам дня!
Anika

6 л.

- а вы точно продюсер?..)) . квартира как квартира, ничего такого, но светлые шкуры + темные цвета + дерево это беспроигрышный вариант

Оставьте комментарий

Смотреть похожие темы

Читать похожие статьи