logo

В гостях: Квартира для серьезного молодого человека восьми лет

Классика в прохладных тонах, вдохновленных картиной из кухни-гостиной

Houzz Россия
Houzz Россия

6 мая 2018

Обновлено 26 мая 2018

В гостях: Квартира для серьезного молодого человека восьми летОльга Шангина
В будущем Алексей, возможно, станет архитектором — сейчас он собирает из деталей игрушечные дома, получилась уже целая улица. А еще, наверное, яхтсменом — он уже дважды ходил с мамой-шкипером на яхте. Квартира, в которую они переехали, чтобы Алексею было близко ходить в школу, получилась классической и немного даже морской — из-за трех оттенков голубого в её интерьерах.
В гостях: Квартира для серьезного молодого человека восьми летОльга Шангина
О проекте
Место: Шмитовский проезд, Москва
Размер: 91 кв.м
Кто здесь живет: второклассник Алексей с мамой Еленой, бабушкой Ольгой Евгеньевной и собакой Мартином
Автор проекта: хозяйка квартиры в соавторстве с дизайнерами Юлией Корниловой и Наталией Ходаковской, студия «Доминанта»
Фото: Ольга Шангина
Интересный факт: дом с деревянными перекрытиями был построен в 1930 году
В гостях: Квартира для серьезного молодого человека восьми летОльга Шангина
«Мы давно мечтали перебраться в этот район — до этого жили в Филевской пойме, — рассказывает Елена, мама Алексея. — На переезд решились из-за школы, она находится в Пресненском районе». Решающим фактором при выборе квартиры стало удачное местоположение (рядом — Краснопресненский парк) и наличие окна в санузле.

В этом доме постройки 1930 года все перекрытия — деревянные. Поэтому даже при небольшой перепланировке квартиры потребовался капитальный ремонт: «Вместе с архитекторами мы вывезли отсюда 12 машин мусора, убрали все старые перегородки, заменили перекрытия — укрепили полы двутаврами».
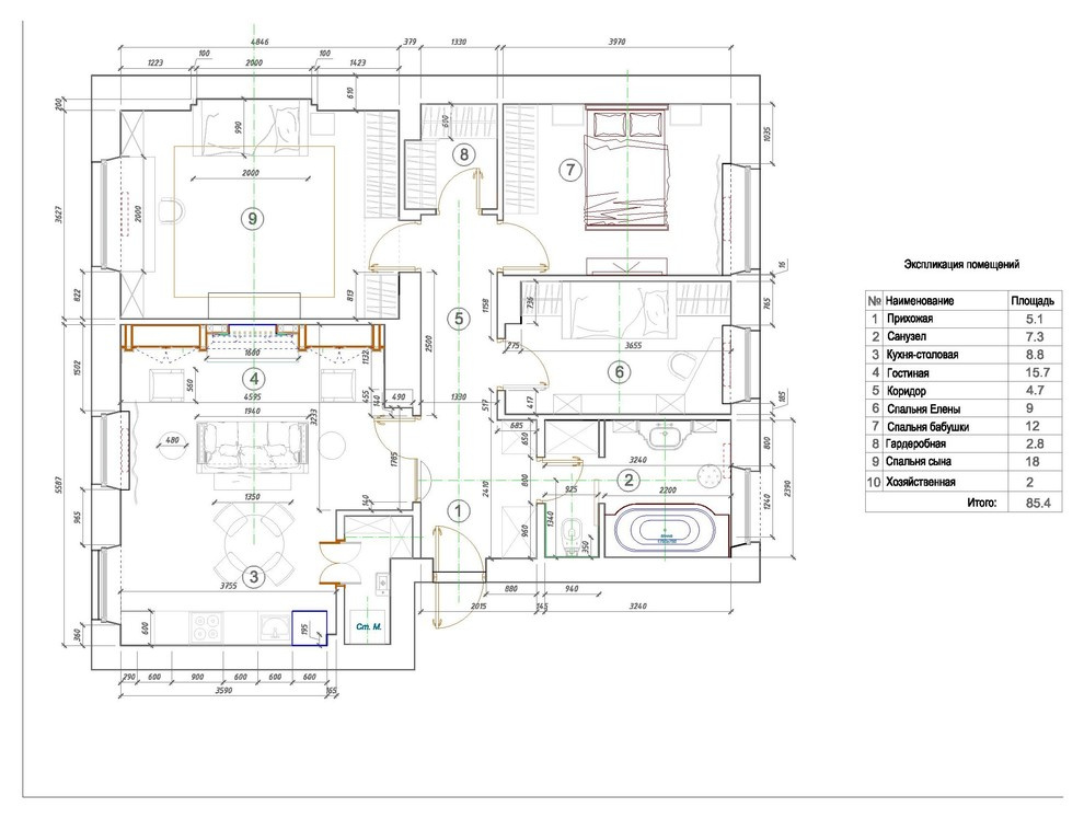
План квартиры

Раньше проход на кухню был через «аппендикс» коридора. Его решили убрать, оставили только центральную «парадную» часть, делящую квартиру надвое. В конце коридора выделили место под небольшую гардеробную. Слева по коридору в несущей стене заложили лишний дверной проем, сделали объединенную кухню-гостиную. Теперь в нее можно попасть через полутораметровый портал с двустворчатой дверью.
В гостях: Квартира для серьезного молодого человека восьми летОльга Шангина
Справа от входа в квартиру — дверь в ванную комнату, обрамленная шкафами прихожей. Дальше по правой стороне — комнаты Елены и ее мамы, Ольги Евгеньевны. Прямо — дверь в гардеробную. Слева от нее — комната Алексея площадью почти 21 кв.м, самое большое из приватных помещений квартиры.
В гостях: Квартира для серьезного молодого человека восьми летОльга Шангина
Кухня-гостиная поделена на две большие части. Слева от дверей расположены рабочая зона кухни и небольшая кладовка. Ближе к окну — круглый обеденный стол. Справа — зона гостиной, отделенная от кухни большим бирюзовым диваном и стоящим за ним шкафом-консолью.

По потолку эта зона выделена белой нишей с карнизами, за которыми спрятана светодиодная подсветка.

Елена принимала активное участие в поиске мебели и декора для квартиры, хотя это был её первый опыт в дизайне: «Сначала мы планировали сделать встроенные шкафы, но потом добавили лепнину, к которой они уже не подходили. В результате нашли готовую мебель: она дешевле, и её всегда можно передвинуть».
В гостях: Квартира для серьезного молодого человека восьми летОльга Шангина
В зоне гостиной: вся мебель Dantone Home; ковер Safavieh

Выбор аксессуаров и мебели, её расстановка сделана полностью на вкус хозяйки: «Я большой любитель симметрии», — рассказывает она. Напротив дивана встал деревянный комод, где хранятся памятные для семьи вещи: бабушкина икона, фарфоровые статуэтки, слон из Индонезии и даже бивень моржа. Над комодом — большое зеркало, с двух сторон от него — белые шкафы-витрины для посуды. Совсем недавно Елена добавила в гостиную большие ажурные вазы-подсвечники: «Мы с сыном любим сидеть при свечах». Торшер, стоящий за креслом, хозяйка решила заменить на модель-треножник Eichholtz.
В гостях: Квартира для серьезного молодого человека восьми летОльга Шангина
Бирюзовые аксессуары, стоящие на консоли за диваном, Елена тоже подбирала по случаю, не одновременно.

Вход в кладовку решили не закрывать дверью, чтобы помещение казалось просторнее — вместо этого повесили занавеску. Площадь Г-образной кладовки всего 1,1 кв.м. Зато именно там, в узкой части, спрятана стиральная машина; над ней — хозяйственные полки.
В гостях: Квартира для серьезного молодого человека восьми летОльга Шангина
Белую кухню выбрали в IKEA, ручки заказали отдельно — такие же, что и на шкафах-витринах. Фартук кухни сделали зеркальным: «Этот прием очень расширяет пространство. К тому же, пока готовишь, видишь в зеркале, что происходит у тебя за спиной. Ухаживать за зеркальным фартуком несложно — главное, сразу после готовки протирать его бумажным полотенцем со средством для стекла», — поясняет Елена.
В гостях: Квартира для серьезного молодого человека восьми летОльга Шангина
В зоне кухни: кухонная мебель IKEA; ручки для кухни, круглый стол и стулья Danton Home; сервиз Bernardaud; ваза Zara Home

Рабочая поверхность кухни изготовлена на заказ из массива дуба. Из него же сделаны подоконники. «Строители отговаривали нас от подоконников из массива, но за два года тут ни одной трещины. Хотя мы очень любим сидеть на них», — рассказывает Елена. В будущем она планирует поставить на подоконники настольные лампы — для них уже предусмотрена подводка.

Посуду к кухне специально не подбирали: «Сюда идеально вписалась наша прежняя посуда Villeroy&Boch. Сервиз в бело-голубую полоску с платиновой отводкой тоже дождался своего часа — его подарили маме лет 10 назад. Белую кружевную салфетку привезли из Флоренции».
В гостях: Квартира для серьезного молодого человека восьми летОльга Шангина
Голубую гамму квартиры определила всего одна вещь: подаренная Ольге Евгеньевне, бабушке Алексея, картина грузинского художника с белыми розами в голубой вазе. «Я в нее сразу влюбилась», — говорит Елена.

Для комнат подобрали разные оттенки голубого. В коридоре это голубой с легким добавлением розово-сиреневого оттенка — разбеленный «перванш». В кухне-гостиной розового в голубом еще больше, так что при электрическом свете стены окрашиваются в сложный светло-серый цвет.
В гостях: Квартира для серьезного молодого человека восьми летОльга Шангина
В ванной: умывальник и небольшие зеркала Danton Home; овальная раковина Jackob Delafon; большое зеркало «Фабрика на Нагорной»

Цвет стен в ванной — чисто-голубой: «Это зимнее небо», — говорит хозяйка. Столешницу умывальника и мозаичную отделку ванны сделали из мраморизованного известняка. Занавески в ванную и другие комнаты нашли готовые — выбрали французский текстиль.
В гостях: Квартира для серьезного молодого человека восьми летОльга Шангина
Диван-кровать Dantone Home; ковер Safavieh

В комнате хозяйки ключевой вещью, сформировавшей вид интерьера, стало зеркало-солнце из прошлой квартиры. К его лучам цвета бронзы под потускневшим серебром Елена выбрала светло-оливковую краску для стен и готовый диван-кровать с фигурной спинкой в бархатной обивке такого же цвета. Диван-кровать не раскладывается — ширина сидения специально была увеличена до 80 см по просьбе владелицы. Внизу есть выдвижные ящики. Шторы выбрали из бархата цвета бирюзы. На белом фортепиано, вставшем напротив кровати, учится играть Алексей.
В гостях: Квартира для серьезного молодого человека восьми летОльга Шангина
Кровать и кресло Dantone Home; покрывало Zara Home; ковер Safavieh; люстра Eichholtz

В спальне бабушки цвет стен подобрали к понравившимся шторам оттенка припыленной розы. Кровать симметрично обрамили вытянутыми зеркалами с фацетом. К ним поставили зеркальные прикроватные тумбы, напротив кровати — комод с таким же фасадом. Слева от двери встал белый шкаф-гардероб. Серо-розово-сиреневое фактурное покрывало купили спустя полтора года на распродаже, но оно повторило оттенок стен комнаты.
В гостях: Квартира для серьезного молодого человека восьми летОльга Шангина
Любимое место Мартина, который ночует в разных комнатах в зависимости от температуры в доме, — у прикроватной тумбочки, стоящей ближе к окну: «Он любит класть свою морду на полку внизу», — рассказывает Елена.
В гостях: Квартира для серьезного молодого человека восьми летОльга Шангина
В комнате Алексея вокруг двери разместили готовые серые гардеробные шкафы. Напротив дивана-кровати поставили белый комод, вокруг него — военные металлические ящики из-под радиоаппаратуры. В них хозяин хранит Lego.

Мальчик принял активное участие в оформлении своей комнаты: выбирал цвет стен и обивки дивана-кровати, лофтовую люстру.
В гостях: Квартира для серьезного молодого человека восьми летОльга Шангина
Старинную карту для стены за диваном нашли в интернете — она подходила комнате по цветовой гамме, заказали печать на холсте.

Всадники и другие фигурки на небольших полках за диваном — «домашние призы» Алексею от мамы за успехи в разных областях.
В гостях: Квартира для серьезного молодого человека восьми летОльга Шангина
В жизни мальчика много времени отведено спорту — он занимался верховой ездой, а в последнее время переключился на батутную акробатику: «Недавно Алексей получил свой первый спортивный титул по этому виду спорта — 3-й юношеский разряд».
В гостях: Квартира для серьезного молодого человека восьми летОльга Шангина
Шкафы и диван-кровать Dantone Home; стол-подоконник и тумбы «Аскольд Восточные ворота»

Под окном в детской сделали широкий стол-подоконник. Тумбочки, поддерживающие выступающую столешницу, сделали на заказ. Забавного робота на этом фото Алексей собрал сам. «Вообще, по складу ума он — технарь», — отмечает Елена.

Она решила добавить в комнату сына морской тематики: выбрала настольные лампы с ножками из канатов. «Сын настоял, чтобы мы привезли сюда модель яхты из поездки по Италии — он бредит кораблями».
В гостях: Квартира для серьезного молодого человека восьми летОльга Шангина
Акварельные работы в белых рамах у комода — подарок друга Елены. Одуванчики в резной раме — учебная работа Алексея. Сейчас он занимается в школе акварели Сергея Андрияки, развивает художественный вкус и умение рисовать от руки для будущих занятий архитектурой.
ОБ АВТОРАХ ИНТЕРЬЕРА…
Перейдите в профиль студии «Доминанта», чтобы изучить другие работы из портфолио дизайнеров
__________________________



В ВАШЕМ ГОРОДЕ…
Найдите дизайнера на Houzz — закажите свой проект

МЫ ЛЮБИМ ХОДИТЬ В ГОСТИ…
Хотите стать героем следующей статьи? Напишите на editorial@flatica.ru и приложите несколько фотографий своего интерьера (достаточно съемки на смартфон). Мы обязательно свяжемся с вами, если примем решение о публикации!

Комментарии 74

Мне нравится квартира))
Да все стандартно кроме ламп вкрученных прямо в карту , это зачем?
Я работаю дома, сижу часами за столом у окна. Дискомфорта от батареи не ощущаю. Дочь-старшеклассница тоже часами сидит - рисует - за столом у окна. На батарею не жалуется. Правда, оба стола отодвинуты от подоконника, и тёплый воздух от батареи уходит вверх, как ему и положено, а не нагревает столешницы. Так что не надо наговаривать на стол у окна! Ещё и кошке удобно лежать на столе, сложив лапы на батарею :-)

Оставьте комментарий

Смотреть похожие темы

Читать похожие статьи