logo

В гостях: Квартира для семьи дизайнера в духе американского Юга

Также в интерьере нашли отражение любовь хозяйки к винтажным предметам и интерес дочери к восточной культуре

Houzz Россия
Houzz Россия

16 дек. 2020

Обновлено 24 янв. 2021

В гостях: Квартира для семьи дизайнера в духе американского ЮгаНаталья Митракова
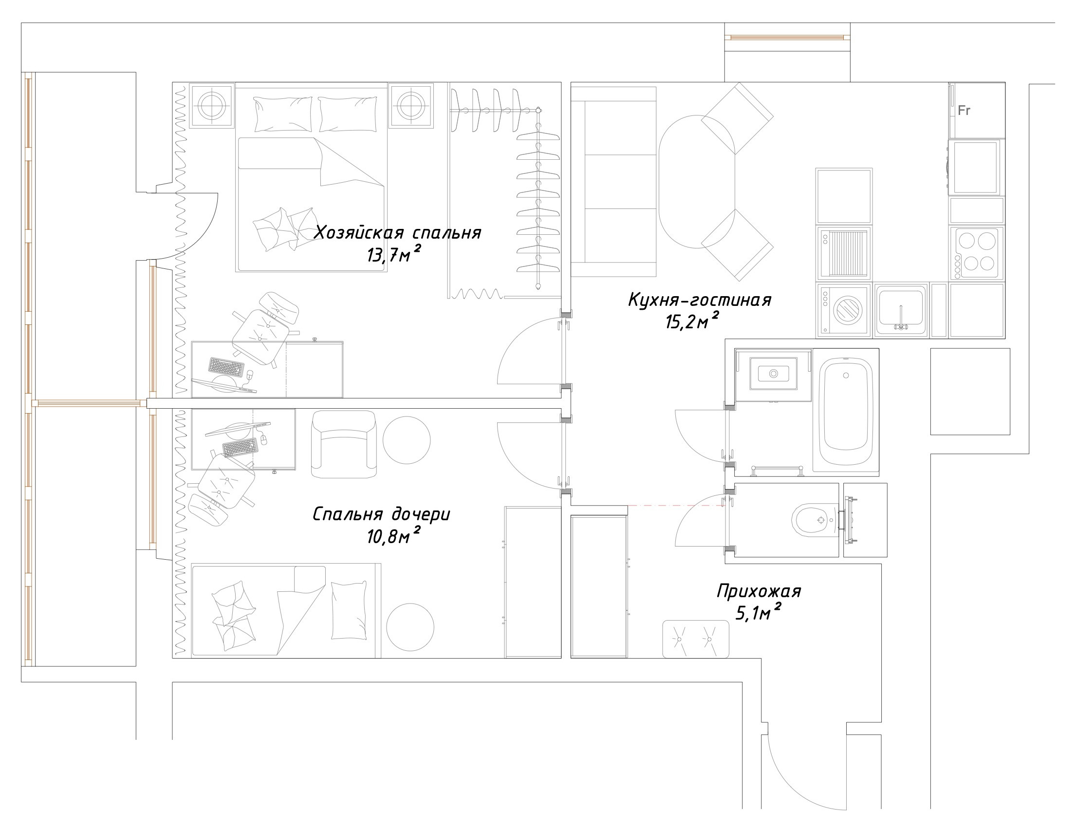
Новую квартиру дизайнер Наталья Митракова и ее семья приобрели в том же районе Москвы, где прожили всю жизнь — тут родные и друзья, привычная инфраструктура. Их не пугало, что будущее жилье долгие годы сдавалось и не ремонтировалось. «Переделки требовало вообще все, квартира была в плачевном состоянии», — рассказывает Наталья. О проекте Место: Москва Размер: 54 кв.м Кто здесь живет: автор проекта с мужем и дочерью Дизайнер проекта: Наталья Митракова Фото: Сергей Ананьев
Оригинальная планировка семью полностью устраивала. Изменения коснулись только кухни, где зашили угловую нишу, потеряв один кв.м, но приобретя дополнительную функциональность и вместительность шкафов, которые установили П-образно. Кроме того, пришлось выбирать между удобной обеденной зоной и традиционной гостиной, так как в относительно небольшом пространстве нужно было сделать две полноценные спальни. ——————————————— В ВАШЕМ ГОРОДЕ… ► Через Houzz можно нанять дизайнера или архитектора в любом городе и стране. Начать поиск специалиста ———————————————
В гостях: Квартира для семьи дизайнера в духе американского ЮгаНаталья Митракова
«Я люблю готовить, все свободное время провожу на кухне, а гости обычно сидят за обеденным столом, поэтому мы пожертвовали гостиной, — говорит Наталья. — Но у стола поставили удобный винтажный диван, а на стене рядом с кухней повесили телевизор, так что от отсутствия гостиной никто не страдает».
В гостях: Квартира для семьи дизайнера в духе американского ЮгаНаталья Митракова
Кухня выполнена под заказ в столярной мастерской Green Chest . Шкафы упираются в потолок, визуально приподнимая его Оформляя интерьер, Наталья не думала о трендах и цветах, просто хотела собрать все, что любит. Получился некий джаз из стилей и предметов, где классический архитектурный декор — плинтус, молдинги, карниз — сочетается с винтажной мебелью; а дух Луизианы и Нового Орлеана — любимых мест для путешествий супругов, — с восточной культурой, которую изучает их дочь.
В гостях: Квартира для семьи дизайнера в духе американского ЮгаНаталья Митракова
Люстра Flambeaux; винтажная мебель; п риставной столик Cassina Американский Юг нашел свое отражение в интерьере неожиданным образом. Это не только кухня «цвета вареных раков», но и болота Луизианы на принте обоев (его Наталья создала вместе с художницей Катей Лобановой). «Мы вдохновлялись работами луизианских фотографов и художников, — рассказывает дизайнер. — Я не хотела обоев в реалистичной манере, хотела графики, легкой иронии. Поэтому там появились три енота, наблюдающие из зарослей».
В гостях: Квартира для семьи дизайнера в духе американского ЮгаНаталья Митракова
Проблема и решение: на кухне планировалась обвязка вокруг окна, подоконник и экран из дуба в тон паркету. Но столярная мастерская подвела, поэтому идею заменили на не менее оригинальную, но быстро реализуемую. Подоконник сделали каменным, вместо экрана повесили шторку, а откосы облицевали зеркалом. Получилось эффектно. Бонусом стало визуальное расширение пространства благодаря отраженному свету.
В гостях: Квартира для семьи дизайнера в духе американского ЮгаНаталья Митракова
Кровать сделана на заказ; рабочий стол Universal; винтажное кресло XIX века; кресло у зеркала Caracole; прикроватные столики и настольные лампы Palecek Вопрос с естественным освещением стоял во всех помещениях. Так, к спальне супругов прилегает лоджия, которая затеняет комнату. Чтобы сделать помещение теплее и уютнее, стены выкрасили в желто-оливковый цвет. Получился эффект залитого летним солнцем пространства.
В гостях: Квартира для семьи дизайнера в духе американского ЮгаНаталья Митракова
Жалюзийная перегородка « Мебель-жалюзи.РФ » Функциональность спальни улучшили, добавив гардеробную. «Я не люблю шкафы и не хотела смотреть на громоздкую конструкцию в собственной спальне. Поэтому для хранения мы отделили часть комнаты, установив жалюзийную перегородку и покрасив ее в цвет стен. На юге Америки шаттерсы — неотъемлемая часть каждого дома, поэтому перегородку я сделала именно жалюзийной, — рассказывает Наталья. — Вход в гардеробную прикрыла шторой в тон».
В гостях: Квартира для семьи дизайнера в духе американского ЮгаНаталья Митракова
Жилье дизайнера неизменно становится местом для экспериментов. Большинство клиентов Натальи не разделяет ее страсть к «старью», поэтому собственный интерьер она наполнила именно винтажными предметами. «Все они куплены в разное время в разных местах — я часто приобретаю редкую мебель, новую и старую, даже если пока не знаю, где она будет стоять. Из этой коллекции мы и составили новый интерьер», — говорит хозяйка.
В гостях: Квартира для семьи дизайнера в духе американского ЮгаНаталья Митракова
Без истории в квартире только светильники, письменный стол и кресло в спальне родителей, а также кровати. Так как дочка увлекается восточной культурой, в ее комнате большая коллекция японских постеров. Они наполняют пространство достаточным количеством цвета, поэтому основную палитру выбрали светлую.
В гостях: Квартира для семьи дизайнера в духе американского ЮгаНаталья Митракова
Ткань на шторах JABLampions, тюль — Decoma; кровать deal Beds; настольная лампа Flambeaux; стеллаж The Sarai; п одушки и пледы Zara Home, Stockman Финский письменный стол достался от прабабушки — его частично покрыли цветным маслом. Кресло купили в онлайн-маркетплейсе, очаровавшись формой, хотя выглядело оно непрезентабельно: металл проржавел, дерево на подлокотниках облезло. Зачистив следы времени, кресло покрасили и добавили подушки из плюша.
В гостях: Квартира для семьи дизайнера в духе американского ЮгаНаталья Митракова
Тумба ИКЕА; т кань на шторах Casadeco; в анна Roca Разделение ванной комнаты и санузла сохранили. Помещение ванной оформили в светлых оттенках, добавив цвет с помощью текстиля и декора. Стиральную машину перенесли на кухню — техника встроена в кухонную мебель с внешней стороны острова для удобства использования.
В гостях: Квартира для семьи дизайнера в духе американского ЮгаНаталья Митракова
Паркетная доска KAINDL Для профессиональной литературы удалось разместить полку со стеклянной дверцей над фасадами одного из шкафов в прихожей. Этот шкаф неглубокий, но широкий — чтобы сделать его менее громоздким, часть фасадов оклеили теми же обоями, что и стены прихожей.
Второй шкаф встроен в нишу, а его фасады полностью зеркальные. Благодаря этому в темном уголке входной части появился естественный свет. _________________________________ ОБ АВТОРЕ ПРОЕКТА… Перейдите на страницу Н атальи Митраковой , чтобы изучить другие работы из портфолио дизайнера МЫ ЛЮБИМ ХОДИТЬ В ГОСТИ… Хотите стать героем следующей статьи? Напишите на editorial@flatica.ru и приложите несколько фотографий своего интерьера (достаточно съёмки на смартфон). Мы обязательно свяжемся с вами, если примем решение о публикации!

Комментарии 42

Очень все гармонично! Замечательный проект!
Очень красиво, уютно и женственно! Как имя Наталия и как его обладательница. Гармоничный и теплый интерьер. Спальня и правда "светится".
Всё красиво, кроме зоны перед столом. Там несколько хаотично из-за соседства фикуса и открытой полочки. Но, возможно, с другого ракурса это смотрится хорошо.

Оставьте комментарий

Читать похожие статьи