logo

В гостях: Квартира архитекторов в бетоне и с «умным» светом

Дерево, стекло и бетон — так архитектор Сергей Наседкин назвал свою квартиру, оформленную в рекордно короткие сроки

Наталия Тверитинова
Наталия Тверитинова

8 нояб. 2016

Обновлено 12 нояб. 2016

Постоянный автор Houzz, интерьерный и архитектурный журналист.

В гостях: Квартира архитекторов в бетоне и с «умным» светомSERGEY N A S E D K I N
Интерьер этой квартиры, спроектированный архитекторами Сергеем и Натальей Наседкиными, создавался для себя. И на весь процесс, включая финальную расстановку мебели, ушло всего два месяца. Месяц заняло само проектирование, еще пять недель — строительные работы, в ходе которых Сергей появился на объекте с целью авторского надзора ровно три раза. Дело в том, что при своей загруженности хозяева квартиры не могли уделить достаточно времени собственному проекту. Они поставили конкретную задачу — быстро въехать в новую квартиру. Осуществить задуманное помогли высокотехнологичные решения и отказ от возведения стационарных перегородок в пользу зонирования с помощью мебели.
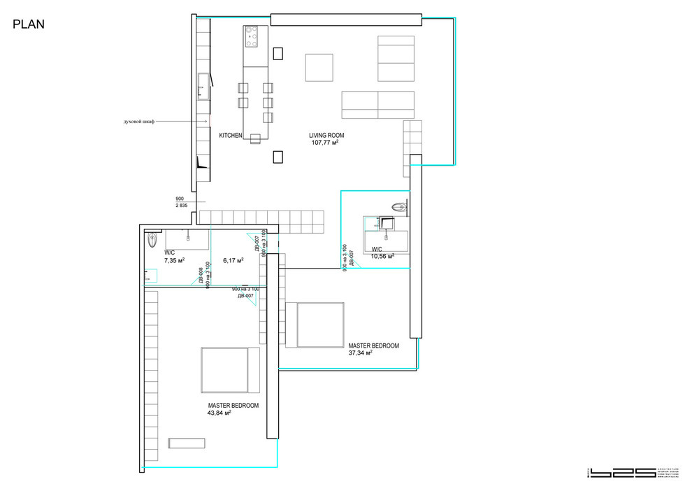
О проекте Место: Москва Год: 2016, проектирование — январь, реализация — март и половина апреля Размер: 230 кв.м Кто здесь живет: Сергей и Наталья Наседкины Авторы проекта: Архитекторы Сергей и Наталья Наседкины, Архитектурная компания ARCH.625 Фото: Илья Егоркин
В гостях: Квартира архитекторов в бетоне и с «умным» светомSERGEY N A S E D K I N
Стены: бетон M 500 Архитекторы назвали проект W_G+BET ON, что означает Wood Glass + betone или «Дерево, стекло и бетон». «В этом проекте мы использовали только натуральные материалы — тик и дуб, а также бетон и стекло, позволяющее визуально объединить архитектурное пространство с природным. В качестве фона выбрали белый глянцевый лак, — рассказывают хозяева. — С помощью этих материалов мы создавали простые формы, монументальные и легкие одновременно». Потолки и стены решили оставить бетонными. Цветовое решение построено на контрасте белого, серого и светлого дерева, из которого сделаны стеллажи и стол. Дерево добавляет уюта и поддерживает в интерьере баланс теплого и холодного.
Строительные работы: Reroom Изначально в квартире не было ничего, кроме двух стояков. Архитекторы выполнили линейную планировку, организовав два больших перетекающих друг в друга пространства: гостиную (107 кв.м!) и спальню 37 кв.м с ванной комнатой между ними за стеклянной перегородкой. В квартире также есть изолированная зона площадью 140 кв.м, которая может быть полностью автономной, как отдельная квартира. Особенность этого проекта в том, что здесь не возводили ни одной стационарной перегородки, зато убрали кирпичные стены между внутренним пространством и балконами. Таким образом три больших балкона включили в жилое пространство. В квартире сделали теплое панорамное остекление.
В гостях: Квартира архитекторов в бетоне и с «умным» светомSERGEY N A S E D K I N
Полы: наливной полимерный пол Poli-Flore / Epoxy Flooring, Германия, RAL 9003 белый глянцевый В большом открытом пространстве разместили мебель простой формы и внушительных габаритов. Фоном служат фасады шкафов в белом лаке и белые глянцевые наливные полы. Они сделаны с подогревом. Сергей объяснил, что «теплые полы догревают помещение в холодный период (в комплексе с радиаторами и климатической системой)». Зонирование выполнили с помощью шкафов в белом лаке и стеллажей из дуба высотой до самого потолка — 3100 мм. Отказавшись от возведения перегородок, хозяева сократили время строительства.
В гостях: Квартира архитекторов в бетоне и с «умным» светомSERGEY N A S E D K I N
Несмотря на присутствие в интерьере «крайнего» минимализма, здесь чувствуется теплая и уютная обстановка. Дубовые стеллажи-перегородки «играют роль архитектурного акцента, а все остальное — лишь фон».
Диван: по эскизам архитекторов, Josef Göbel GmbH, Австрия, ткань, TBM, Италия Белый крупноформатный диван минималистской строгой формы — визитная карточка бюро ARCH.625. Диваны, как и всю мебель, сделали на заказ по эскизам архитекторов в австрийской компании Josef Göbel.
В гостях: Квартира архитекторов в бетоне и с «умным» светомSERGEY N A S E D K I N
Сергей и Наталья спроектировали диваны таким образом, чтобы при необходимости менять расположение модулей. Так, для просмотра телевизора модули можно выстраивать в один ряд, для вечернего чая — в форме каре. Также диван может служить дополнительным спальным местом. «Чем чаще мы меняем композицию, тем меньше устаем от однообразной планировки», — уточняет Сергей. Обивка дивана выполнена из натурального льна. В верхнюю часть сидения добавлен негорючий пух-перо с эффектом «медленного утопания». Планировка, по словам авторов, «позволяет и общаться, и уединяться». Но в условиях, когда пространство проницаемо-прозрачно, необходимо организовать его таким образом, чтобы здесь было удобно находиться в любое время суток. «В этом проекте мы стремились создать условия для визуальной трансформации пространства, организовать удобную обстановку для самых разных жизненных ситуаций», — рассказывает Сергей.
В гостях: Квартира архитекторов в бетоне и с «умным» светомSERGEY N A S E D K I N
С этой задачей справляется освещение, во многом благодаря которому интерьер получился высоко технологичным. «Для меня этот интерьер — современное прочтение архитектуры 1960-х годов, с учетом всех передовых технологий нашего времени», — объясняет архитектор. Светильники компании XAL светят белым нейтральным светом. Они собраны в группы в соответствии с периметром зон квартиры. Управление светом происходит по радиоканалу из разных точек квартиры, весь свет регулируется по яркости, то есть светильники оснащены диммерами.
В гостях: Квартира архитекторов в бетоне и с «умным» светомSERGEY N A S E D K I N
Освещение: Minimal 20 Product Line, компания XAL, подрядчик: Neon Project; электроустановочные изделия: ABB NissenZenit Почти весь свет расположен горизонтально вдоль мебели по периметру помещений или вертикально — вдоль мебели и колонн. На площади 120 кв.м нет ни одного светильника, находящегося по центру. По словам архитектора, тонкие светодиодные ленты сечением всего 1 см, расположенные по периметру помещений, «прекрасно работают в качестве основного света и дают 350 люкс в центре гостиной и кухни, что более чем достаточно при норме СнИП около 250 Лк и 400 — в спальнях и ванной».
В гостях: Квартира архитекторов в бетоне и с «умным» светомSERGEY N A S E D K I N
Верхняя диодная подсветка протянулась через всю кухню. У окна расположился рабочий остров с варочной панелью. Кухня впечатляет своими габаритами: она занимает всю стену длиной восемь метров и высотой 3,1 метра, и состоит из 13 модульных шкафов, за фасадами которых находится весь необходимый функционал — мойка, два холодильника, стиральная, сушильная и посудомоечная машина, предназначенная для помещений с заниженным цоколем кухни.
В гостях: Квартира архитекторов в бетоне и с «умным» светомSERGEY N A S E D K I N
Кухня: Josef Göbel GmbH, по проекту бюро ARCH.625; бытовая техника: Miele Минималистские фасады кухни, как и других шкафов в квартире, покрыты белым матовым лаком. Мойка, скрытая за кухонными фасадами — необычное решение. Авторы проекта не хотели, чтобы в гостиной было ощущение «кухонного духа» — с нагромождением бытовой техники и кухонных мелочей. На фасаде оставили открытым только духовой шкаф с функцией СВЧ.
В гостях: Квартира архитекторов в бетоне и с «умным» светомSERGEY N A S E D K I N
Фурнитура шкафов:Tip-on Blumotion, Clip top Blumotion, Legrabox, Blum; культовая акустическая колонка: Bang & Olufsen, дизайн Торстена Валера (Torsten Valeur), BeoLab 09 Для всех шкафов использовали инновационную систему движения Tip-on Blumotion в сочетании с системой выдвижения Legrabox, получившей множество международных премий. Эта система обеспечивает мягкое бесшумное открывание мебели без ручек и минимальный зазор между фасадом и корпусом — всего 2,5 мм. Чтобы открыть ящик, подъемник или дверь, достаточно легкого прикосновения к фасаду рукой, бедром или коленом. Высота всех шкафов — 3,1 метра.
В гостях: Квартира архитекторов в бетоне и с «умным» светомSERGEY N A S E D K I N
Стол: Slice, Ethnicraft, Бельгия; стулья: Poly, дизайнер Карим Рашид, 2007, Bonaldo, Италия Обеденный стол простой формы и большого размера (3,2 х 1,1 метра) выполнен из массива тика без покрытия. На нем прекрасно видна красивая фактура дерева. Стол стал главным акцентом в студийном пространстве. «Нам хотелось сделать интерьерный акцент именно на столе, не перегружать пространство деталями, поэтому мы выбрали прозрачные стулья Poly от Bonaldo. На мой взгляд, эти модели — одна из лучших работ Карима Рашида. Кроме того, они легкие и не царапают пол. Полимер, как известно, требует к себе определенного отношения, хотя и винтажный вид пола был бы хорош в этом интерьере», — объясняет Сергей.
Шкафы и стеллажи: Josef Göbel GmbH, по проекту бюро ARCH.625 Спальня оформлена как продолжение гостиной, с использованием тех же материалов, оттенков и фактур. Здесь присутствует тот же фон — белый наливной пол, шкаф в белом матовом лаке и бетонный потолок, а стеллажи из натурального дуба играют роль архитектурного акцента. Решить задачу комфортного пребывания в квартире, где спальня и гостиная находятся в одном пространстве, разделенные шкафом и прозрачной ванной комнатой за стеклом, помогли датчики движения и ночники на 5 вт. Точечные светильники реагируют на движение и загораются тусклым светом с минимальной яркостью, прокладывая световую дорожку, по которой можно перемещаться ночью, не мешая спящим.
В гостях: Квартира архитекторов в бетоне и с «умным» светомSERGEY N A S E D K I N
Кровать: дуб натур, матовый лак, Josef Göbel GmbH, по проекту бюро ARCH.625 Пространство спальни с дубовой кроватью-островом наполнено светом, льющимся из больших панорамных окон.
В гостях: Квартира архитекторов в бетоне и с «умным» светомSERGEY N A S E D K I N
Торшеры: нержавеющая сталь, Vintage Lumio Squirell Cage Thomas Alva Edison В качестве локальной подсветки в спальне используются металлические торшеры с лампами накаливания. Если основные светильники компании XAL светят белым нейтральным светом, то торшеры с лампами накаливания — теплым желтым, дающим столь необходимое в спальне ощущение уюта. Включенные вместе, светильники и торшеры создают впечатление дневного солнечного света. Шторы легко и тихо скользят по алюминиевым направляющим. По расчетам архитекторов, они гасят шум до уровня ниже 20 дБ — это вдвое тише шелеста деревьев.
В гостях: Квартира архитекторов в бетоне и с «умным» светомSERGEY N A S E D K I N
Изголовье кровати: каленое стекло 10 мм В продолжение «стеклянной» темы для кровати сделали стеклянное изголовье. К нему удобно прикреплять светильники и прислонять подушки. За изголовьем расположили удобную полочку для хранения мелочей.
В санузле внешняя стена отделана бетоном M 500. Внутренние стены выполнены из каленого стекла. Подиум ванной облицован тем же бетоном. Совершенно прозрачное помещение по сути является частью спальни. Визуально изолировать эту интимную зону можно с помощью штор. Со звукоизоляцией здесь также все в порядке: по словам авторов, «современные технологии сравняли звукоизоляционные свойства стеклянных перегородок с кирпичной стеной». «Каленое стекло 12 мм с индексом шумоизоляции Rw (C; Ctr) = 40 (-2; -5) обладает приемлемыми характеристиками для жилых пространств. Для низкочастотного шума индекс звукоизоляции Rw + Ctr 40 – 5 = 35 дБ, для высокочастотного — Rw + C 40 – 2 = 38 дБ», — объясняет архитектор. Кроме того, шторы также снижают звукопередачу.
Ванная: Vitra; смесители Seamen Eco Glasgow SSN-3026; унитаз: Metropole Rim-Eх, Vitra Если в ванной комнате ночью свет горит с минимальной яркостью, она превращается в светящийся в темноте куб. Такой большой «ночник», несмотря на свои габариты, не мешает тем, кто в этот момент спит. МЫ ЛЮБИМ ХОДИТЬ В ГОСТИ… Хотите стать героем следующей статьи? Напишите на editorial@flatica.ru и приложите несколько фотографий своего интерьера (достаточно съемки на смартфон). Мы обязательно свяжемся с вами, если примем решение о публикации!

Комментарии 93

Потрясающая квартира!!! не люблю открытый бетон в интерьере, но это просто супер!!!
Lidiya L.

8 л.

Все шикарно, но вот расходящиеся шкафчики... Напомнило ад перфекциониста :)) И духовку еще бы посветлее...
pev80

9 л.

Шикарный интерьер! Молодцы!!!

Оставьте комментарий

Читать похожие статьи