
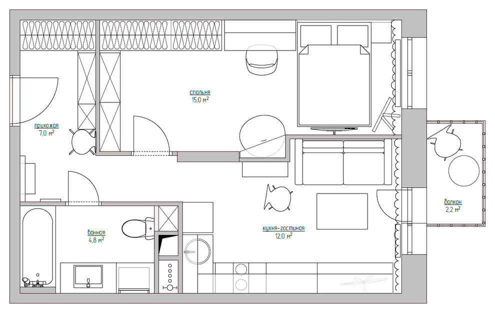
В гостях: маленькая квартира для четверых и усыновленной собаки
Houzz Россия
223
22 июля 2019
Обновлено 6 окт. 2019
Постоянный автор Houzz, интерьерный журналист
5 л.

В гостях: маленькая квартира для четверых и усыновленной собаки
Houzz Россия
223

До и после: Квартира дизайнера, где ремонт сделали за неделю
Евгения Назарова
26

В гостях: квартира в Мурино, где дизайнер жил во время ремонта
Houzz Россия
23

В гостях: квартира дизайнера с причудливым ТВ
Houzz Россия
42

В гостях: Переделка природного сада у каскада прудов
Houzz Россия
11

Houzz-тур: Переделка квартиры после «телеремонта» в спальне
Houzz Россия
13

В гостях: дом в Лесном Городке, где интерьер собирали по крупицам
Houzz Россия
22

В гостях: трехэтажная квартира в Светлогорске
Houzz Россия
16

В гостях: Квартира в Петербурге – со слоном и антиквариатом
Евгения Назарова
55

В гостях: Квартира интерьерного фотографа Сергея Ананьева
Houzz Россия
19

В гостях: Круглый дом с видом на лес
Евгения Назарова
20

Как украсить дом к Новому году: Пример декоратора Жени Ждановой
Houzz Россия
24

В гостях: Квартира с камином и открытым балконом
Евгения Назарова
16

В гостях: Сканди Новый год для дачи под Петербургом
Евгения Назарова
9

В гостях: Квартира дизайнера Анастасии Комаровой
Houzz Россия
32

В гостях: Квартира архитектора с деревянными ставнями
Евгения Назарова
46

В гостях: Двухкомнатная квартира площадью 38 кв. м
Евгения Назарова
51

В гостях: Квартира на севере Москвы — с картинами хозяйки
Евгения Назарова
22
Марьяна Ми
5 л.