logo

Проект недели: Необычная кухня в обычном панельном доме

Панно из состаренной древесины, деним и средиземноморская лирика на кухне для двух хозяек

Евгения Назарова
Евгения Назарова

28 сент. 2016

Обновлено 13 нояб. 2016

Постоянный автор Houzz, интерьерный журналист

Для владельцев квартиры на западе столицы ремонт стал привычным делом: постепенно обновив интерьер трех комнат, они добрались до кухни. Но решили повременить с отделкой и испытать удачу в одной из профильных телепередач. Архитекторы Макс Жуков и Виктор Штефан, которым довелось работать над интерьером 10-метровой кухни, не только услышали все пожелания владельцев, но и дополнили продуманный функционал яркими декоративными нотами.

О проекте
Место:
Москва
Размер: Кухня 10 кв. м
Кто здесь живет: Два поколения семьи супруги и их сын с женой
Авторы проекта: Макс Жуков и Виктор Штефан, дизайн-студия ToTaste
Проект недели: Необычная кухня в обычном панельном домеВиктор Штефан
По условиям передачи, до ремонта авторы проекта встречались с владельцами всего один раз, но даже единственная беседа помогла понять, чего не хватало прежней кухне. « В пространстве даже не было обеденного стола на четверых, а ведь это очень дружная семья, — рассказывает автор проекта Макс Жуков. — Кроме того, владельцы не знали, как обыграть венткороб и разместить телевизор таким образом, чтобы его было удобно смотреть из любой точки кухни » .
Проект недели: Необычная кухня в обычном панельном домеВиктор Штефан
Зато с желаемой стилистикой проблем не возникло: « Хотя в доме живут два поколения с разными вкусами, а на кухне готовят две хозяйки, владельцы легко сошлись на варианте эко-лофта. Когда мы спросили о том, что же такое в их понимании “эко-лофт”, оказалось, что младшему поколению нравятся в интерьере брутальные ноты, а старшему — натуральные материалы, от дерева до металла, и они не против все это совместить » , — рассказывают авторы проекта. Чтобы оживить интерьер, в палитру добавили и средиземноморские мотивы, проявившиеся в выборе плитки и синих акцентов.
Проект недели: Необычная кухня в обычном панельном домеВиктор Штефан
Для отделки пола Макс Жуков и Виктор Штефан выбрали плитку с ритмичным орнаментом из коллекции World of Parks от VIVES: эта модель названа Retiro в честь парка, расположенного в центре Мадрида. Плинтусы выкрасили в синий стойкой водоотталкивающей краской. А вот потолку в этом объеме доверили представлять эко-мотивы с помощью необычного приема.
Проект недели: Необычная кухня в обычном панельном домеВиктор Штефан
« Квартира находится в обычном панельном доме с потолками высотой 2,6 м — мы не могли понижать их за счет декоративных панелей и коробов. Поэтому разработали макет старой доски, крашенной в белый цвет, и напечатали на обоях, чтобы затем украсить потолок » , — рассказал Макс Жуков. Фактурную компанию псевдо-доскам составляет самодельный светильник из джутовых корабельных канатов, в каждый из которых вплетен провод: их можно собрать в один пучок или «разбросать » по всей кухне для создания разного освещения.
Проект недели: Необычная кухня в обычном панельном домеВиктор Штефан
Обе хозяйки кухни мечтали увеличить рабочую зону, поэтому столешницу объединили с подоконником. Кухонный гарнитур в двух цветах разместили вдоль перпендикулярных стен, при этом холодильник скрыли в коробе слева от входной двери.
Проект недели: Необычная кухня в обычном панельном домеВиктор Штефан
Синий оттенок фасадов нижних шкафов перекликается с декоративными акцентами вроде орнамента плитки и плинтуса, а белые глянцевые блоки играют бликами и не сжимают пространство. « Чтобы придать интерьеру визуальную легкость, вместо верхней линии шкафов над рабочей поверхностью мы предусмотрели куб из дубового массива с подсветкой. Этот прием позволил разбить у окна “парящий огород” с ароматными травами: теперь владельцы могут сами выращивать зелень и тут же добавлять ее в блюда » , — отмечают авторы проекта.
Проект недели: Необычная кухня в обычном панельном домеВиктор Штефан
Кухонный фартук, который подняли до потолка, выполнен из крупноформатного керамогранита, имитирующего мрамор, а столешница — из белого акрилового камня Staron. Над варочной панелью предусмотрели мощную вытяжку — правда, спрятали ее за фасадами навесного шкафа. Антресольные ящики для хранения позволяют по-максимуму использовать высоту стен, а сама конструкция со встроенной техникой и телевизором в нише изящно скрывает вентиляционный короб. « Во время нашей первой беседы глава семьи вскользь упомянул, что хотел бы видеть на кухне мини-бар. Мы предусмотрели в нише фактурные бутылочницы, сделанные вручную » , — добавляет Макс Жуков.
Проект недели: Необычная кухня в обычном панельном домеВиктор Штефан
С кубом, маскирующим кухонную вытяжку, перекликается панно из старинных дубовых досок, расположенное на противоположной стене. С двух сторон от него разместили зеркальные панели для визуального расширения пространства. Обеденный стол для семейных ужинов изготовили на заказ из слэба горной сосны — теперь за ним помещаются не только владельцы, но и гости. « Хозяева уже устраивали вечеринку в формате фуршета, повернув стол поперек кухни, и в пространстве спокойно разместились десять человек » , — рассказывают авторы проекта.
Проект недели: Необычная кухня в обычном панельном домеВиктор Штефан
Панно из диагонально уложенных досок украшает целая россыпь ярких керамических тарелок, расписанных вручную. Некоторые тарелки повторяют узор напольной плитки. Одним из финальных штрихов в создании кухни стал подбор текстиля — авторы проекта остановились на дениме, который удачно сочетает эко-мотивы и акцентный синий цвет. В компанию джинсовой шторе подобрали подтарельники, скроенные из той же ткани.
Проект недели: Необычная кухня в обычном панельном домеВиктор Штефан

До

До: Так «джинсовая » кухня выглядела до ремонта. «Владельцы — очень современные, открытые к впечатлениям люди. Из старого интерьера кухни в новый не перекочевал ни один предмет » , — отмечает Макс Жуков. Познакомиться с проектом подробнее можно на сайте телепередачи « Квартирный вопрос ».
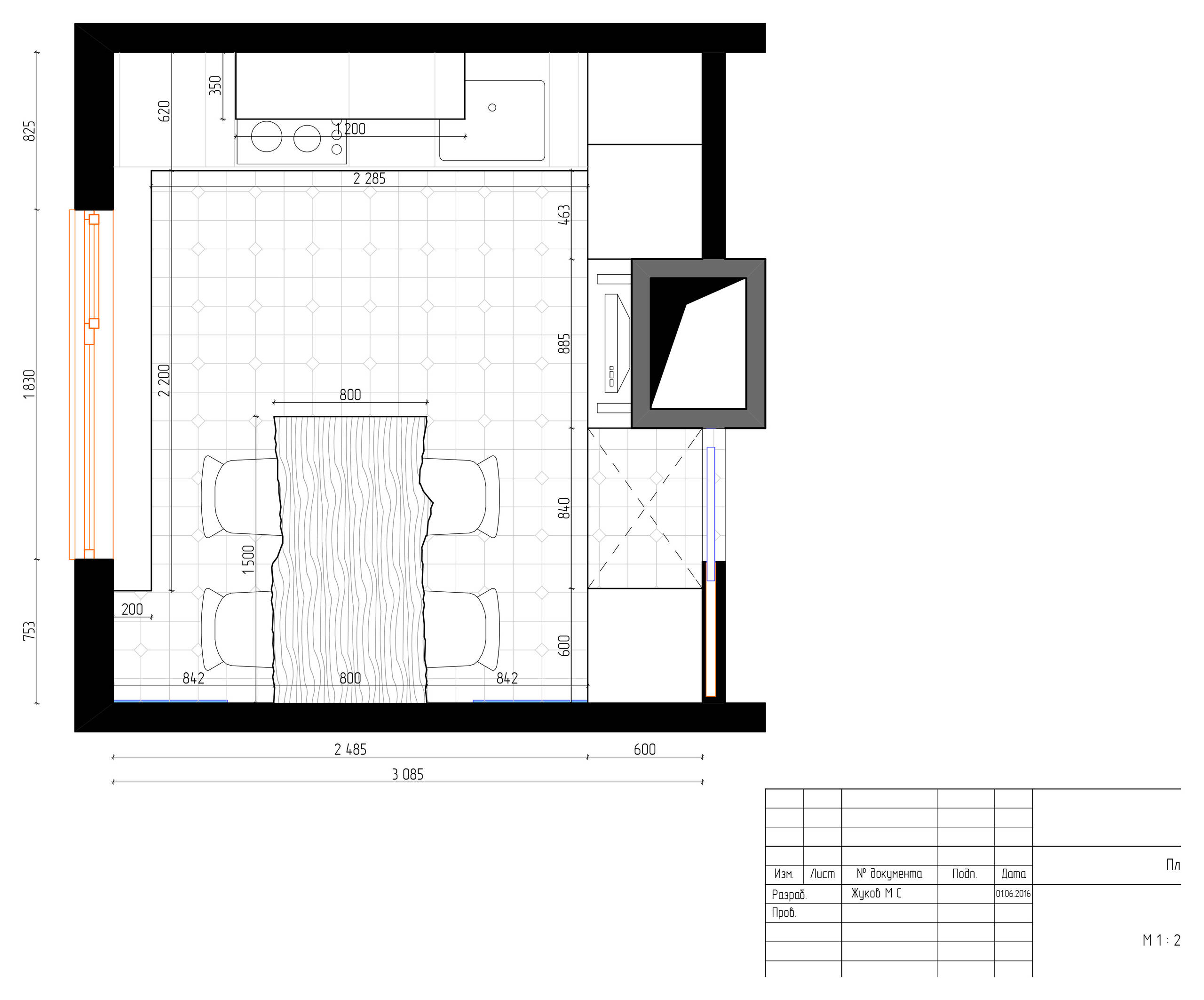
Планировка кухни площадью 10 кв.м в проекте Макса Жукова и Виктора Штефана СМОТРИТЕ ТАКЖЕ… Еще 675 фото-идей для кухни в морском стиле В ВАШЕМ ГОРОДЕ… Закажите проект вашей кухни – Дизайнеры на Houzz ПРЕДЛОЖИТЕ СВОЙ ПРОЕКТ ДЛЯ ПУБЛИКАЦИИ… Загрузите фотосъемку в свой профиль на Houzz, отправьте ссылку и краткое описание проекта на editorial@flatica.ru. Мы обязательно свяжемся с вами, если примем решение о публикации!

Комментарии 16

nn_an30

8 л.

Трудно поверить, что здесь всего лишь 10 кв метров - пространство кажется намного просторнее. Кухня очень стильная, светлая. Не понравились только веревки на потолке - быстро соберут кухонную гарь.
А я голые лампочки не люблю...
fuchsiann

9 л.

светильник - класс! только вот - это безопасно - вплетать провода в канат?

Оставьте комментарий

Смотреть похожие темы

Читать похожие статьи