
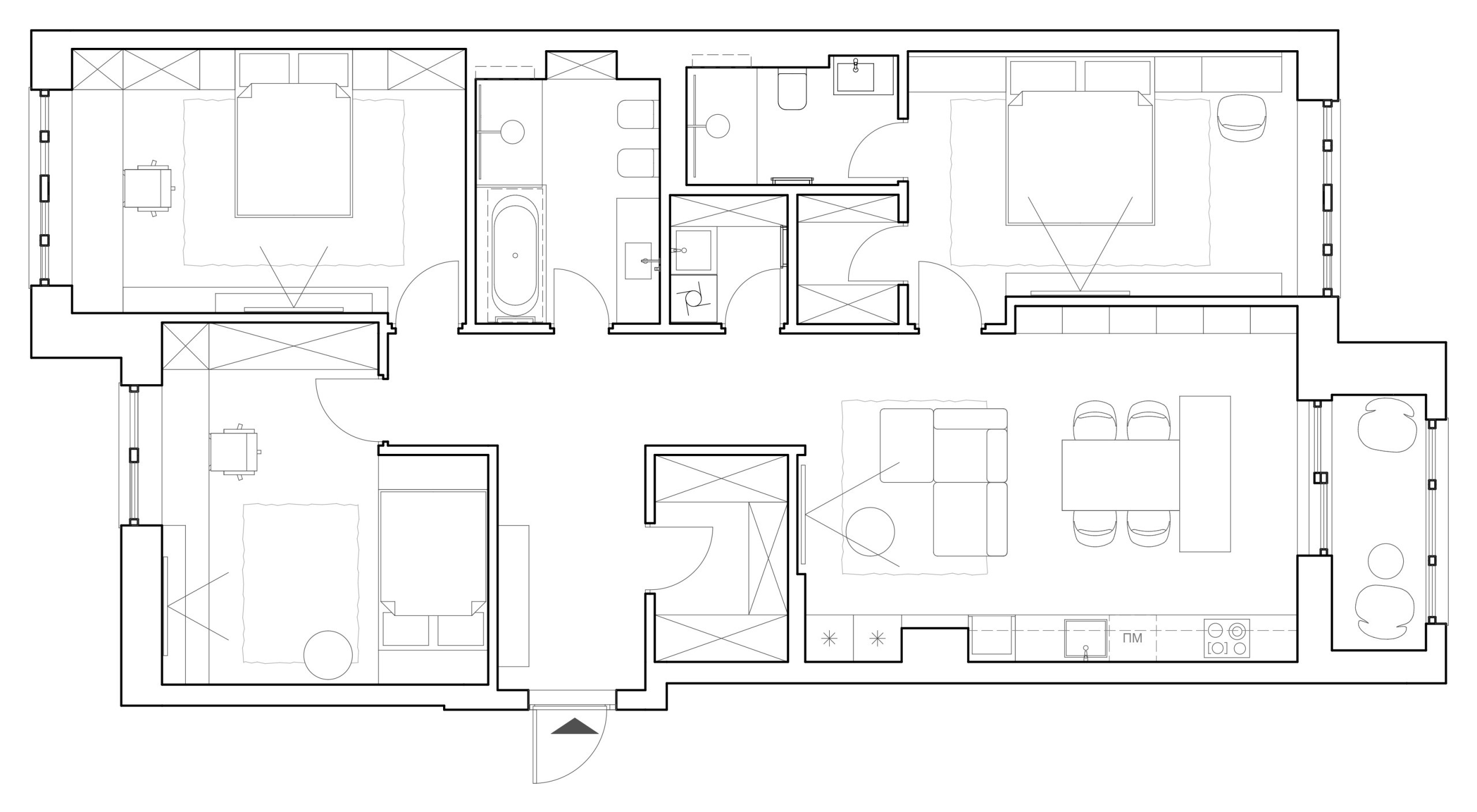
Цена проекта с фото: На что здесь ушло 453 120 ₽
Саша Зайцева
13 янв. 2020
Обновлено 25 февр. 2020
Постоянный автор HouzzRu, журналист

Цена проекта с фото: На что здесь ушло 453 120 ₽
Саша Зайцева
![Обложка статьи: Зачем вам: Встроенная техника на кухне [7 аргументов]](https://static.flatica.ru/images/9549000.jpg)
Зачем вам: Встроенная техника на кухне [7 аргументов]
Евгений Иванов

Фотоохота: 17 практичных идей для прихожей
Houzz Россия

Кухня недели: с зеркальным шкафом вместо фартука
Евгения Назарова
![Обложка статьи: Проект недели: Кухня 12 кв. м. с газовой колонкой [найдите ее]](https://static.flatica.ru/images/9549953.jpg)
Проект недели: Кухня 12 кв. м. с газовой колонкой [найдите ее]
Екатерина Перминова

Детская недели: Комната мальчика по мотивам русского авангарда
Екатерина Перминова

4 кухни за 300–400 тысяч — Канск, Казань, Ростов-на-Дону и Питер
Саша Зайцева

Дизайн-дебаты: Нормально ли делать открытые полки на кухне
Дарья Дроздова

Цена спальни с фото: На что здесь ушло 906 900 ₽
Саша Зайцева

Вопрос: Стоит ли платить за дорогую кухонную фурнитуру
Ксения Розанцева

До и после: 7 санузлов, которые изменились до неузнаваемости
Саша Зайцева

Просто фото: Наклонные вытяжки для кухни (18 идей)
Houzz Россия

Зачем вам: Кран для налива воды над плитой
Варвара Еремеева

Проект недели: Крошечная кухня-ниша в гостиной
Екатерина Перминова

Проект недели: Спальня с проходной гардеробной и ванной комнатой
Екатерина Перминова

Кухня недели: 10 кв.м — на первом этаже
Екатерина Перминова

Проект недели: Графичная ванная комната для семьи с ребенком
Екатерина Перминова

Делай как дизайнер: Планируем гардеробные и кладовые
Екатерина Кулиничева
esenia125
6 л.