logo

Проект недели: Эклектика и минимализм в двусветной гостиной

Несмотря на то, что здесь соединились элементы разных стилей, из них сложился интересный и насыщенный интерьер, который не наскучит хозяевам

Houzz Россия
Houzz Россия

8 июля 2015

Обновлено 10 сент. 2015

Этот современный двухэтажный особняк появился в дачном поселке Переделкино на месте устаревшей деревянной дачи. Владелец предоставил авторам проекта, архитектурной студии ub.design Бориса Уборевича-Боровского, полную свободу как по части архитектуры, так и дизайна. Если облик дома отражает идеи минимализма и неоконструктивизма в чистом виде, то в интерьеры были органично вплетены мотивы эклектики.

О проекте
Место: Подмосковье, пос. Переделкино
Размер: площадь дома — 850 кв.м
Автор проекта: архитекторы Борис Уборевич-Боровский, Кирилл Варюхин, архитектурная студия ub.design
при участии Игоря Корбута, дизайнер Леонид Зайцев
Фото: Кирилл Овчинников
Проект недели: Эклектика и минимализм в двусветной гостинойНаталия Тверитинова
Участок оказался довольно затененным, и задача естественного освещения была решена с помощью панорамного остекления и гигантского стеклянного купола над двусветной гостиной. Чтобы защитить дом от посторонних взглядов, на фасадах, обращенных к соседской застройке, панорамные окна делать не стали. Планировка дома проста и логична: первый этаж предназначен для приема гостей, а второй — приватный.

Композиция первого этажа построена вокруг двусветной гостиной, объединившей в открытом пространстве библиотеку, парадную столовую, диванную группу у телевизора, зону у камина. Из гостиной по лестнице можно подняться на второй этаж. Там находится галерея, вокруг которой сгруппированы комнаты второго этажа. Из галереи легко наблюдать за жизнью в гостиной. Смотреть на огонь можно из любого места гостиной и галереи — в первую очередь, из зоны отдыха с уютными диванами. Диваны обиты тканями из натурального хлопка и льна с грубой фактурой. На полу килим ручной работы.

Мебель: Baltus Collection, Desiree, Poltrona Frau, Fiam, Tisettanta
Проект недели: Эклектика и минимализм в двусветной гостиной
Чтобы элементы эклектики не распадались, нужен был объединяющий фон, нейтральный и спокойный. Так, в двусветной гостиной на фоне белых стен контрастно смотрятся выбранные с любовью декоративные элементы и предметы в природных тонах: коричневом, песочном, сливовом, цвета мокрого асфальта. Гостиную также украшают старинные китайские гравюры и картины художника Игоря Фомина.

Подвесной камин с открытой топкой, закрепленный на перекрытии, свободно парит в воздухе.

Стеклянный стеллаж: Fiam
Проект недели: Эклектика и минимализм в двусветной гостиной
Одной из главных задач проекта было увеличение доступа дневного света в дом. Поэтому на фасадах, ориентированных вглубь участка, панорамное остекление сделали по-максимуму. И стародачный пейзаж с высокими березами и соснами, немолодыми дубами и пышными кленами стал частью интерьера, вдохновляя хозяев своим присутствием.

Благодаря многочисленным стеклянным поверхностям — панорамным окнам, световому куполу, перегородкам, мебели, ограждениям лестницы и галереи — возникает ощущение легкости и наполненности комнаты светом.

Стеклянный купол открывает пространство гостиной для внешнего мира, ведь ночью, не выходя в сад, можно смотреть на звезды. Прозрачные ограждения галереи срифмованы с куполом.
Проект недели: Эклектика и минимализм в двусветной гостиной
Пол покрыли темной паркетной доской из древесины канадского ореха с красивой текстурой.
Выше по стенам ползут гигантские муравьи скульптурные арт-объекты.

В библиотеке неоклассическое кресло с высокой спинкой создает эффект театральности.
Проект недели: Эклектика и минимализм в двусветной гостиной
Парадная столовая находится в противоположном от окна конце гостиной. Столовая зона выделена люстрой в духе ар-деко из черного муранского стекла от Barovier &Toso. Эту модель, переосмыслив образ традиционной люстры из муранского стекла, в 1980 году создал дизайнер Анджело Баровьер (Angelo Barovier) для дома короля Саудовской Аравии в городе Таиф.

Появление классических вещей в минималистском интерьере всегда интересно. Борис Уборевич-Боровский считает, что это своего рода игра и гротеск. «Помещенные в совершенно современную среду, они еще больше подчеркивают, демонстрируют минималистский характер интерьера», объясняет архитектор. Так легкая конструктивистская лестница, ведущая на второй этаж, контрастирует с люстрой и резным комодом.

Люстра: Taif,
Barovier &Toso
Проект недели: Эклектика и минимализм в двусветной гостиной
Из гостиной через большой проем можно попасть в другую столовую, совмещенную с кухней. Она включает островную кухню, кухонные модули и обеденную зону. А как приятно, сидя за обеденным столом, любоваться садом!

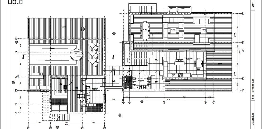
План первого этажа

ПРЕДЛОЖИТЕ СВОЙ ПРОЕКТ ДЛЯ ПУБЛИКАЦИИ…
Загрузите фотосъемку в свой профиль на Houzz, отправьте ссылку и краткое описание проекта на editorial@flatica.ru.

Мы обязательно свяжемся с вами, если примем решение о публикации.

Комментарии 2

Очень круто, особенно кухонно-столовая зона понравилась
В силу профессиональной деградации смотрел только на камин ))), и рядом с ним обнаружил супер дровник. Дровничек, действительно очень хороший, да и весь интерьерна высоком уровне!

Оставьте комментарий

Читать похожие статьи