План расстановки мебели и техники: примеры

Houzz Россия
Houzz Россия

30 окт. 2019

Обновлено 30 окт. 2019

В этой подборке примеры разного подхода к планировке дизайнеров разных бюро для статьи «Ликбез: Какие чертежи в проекте — обязательные».
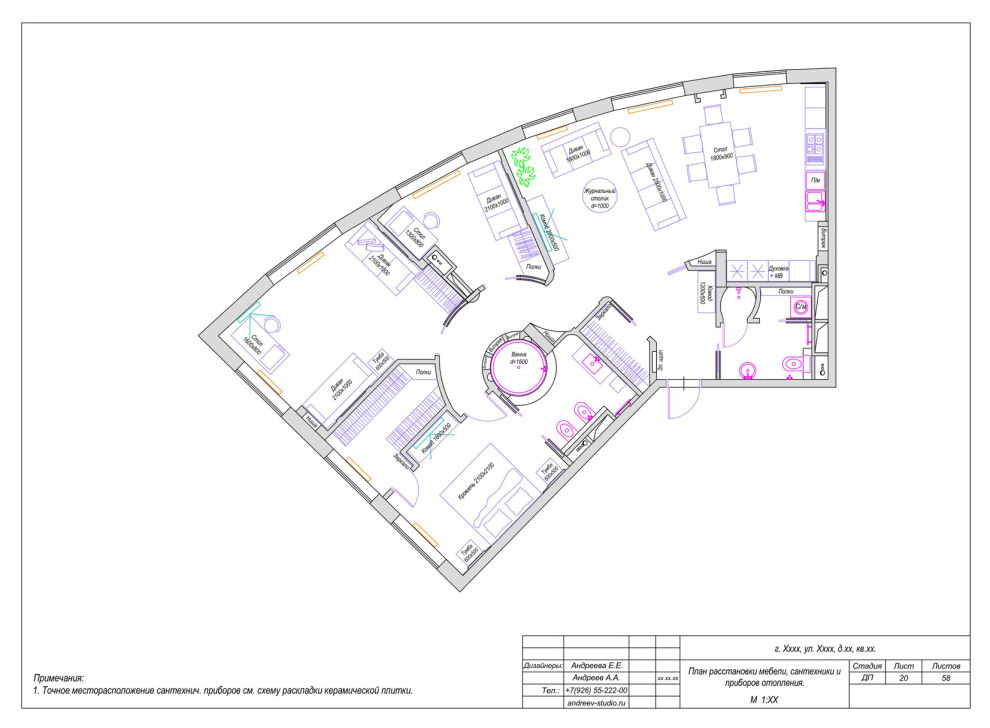
План расстановки мебели и техники: примерыАндрей и Екатерина Андреевы
Дизайнер проекта: Андрей и Екатерина Андреевы
__________________________
Дизайнер проекта: Архитектурно-проектная мастерская №1
_________________________________
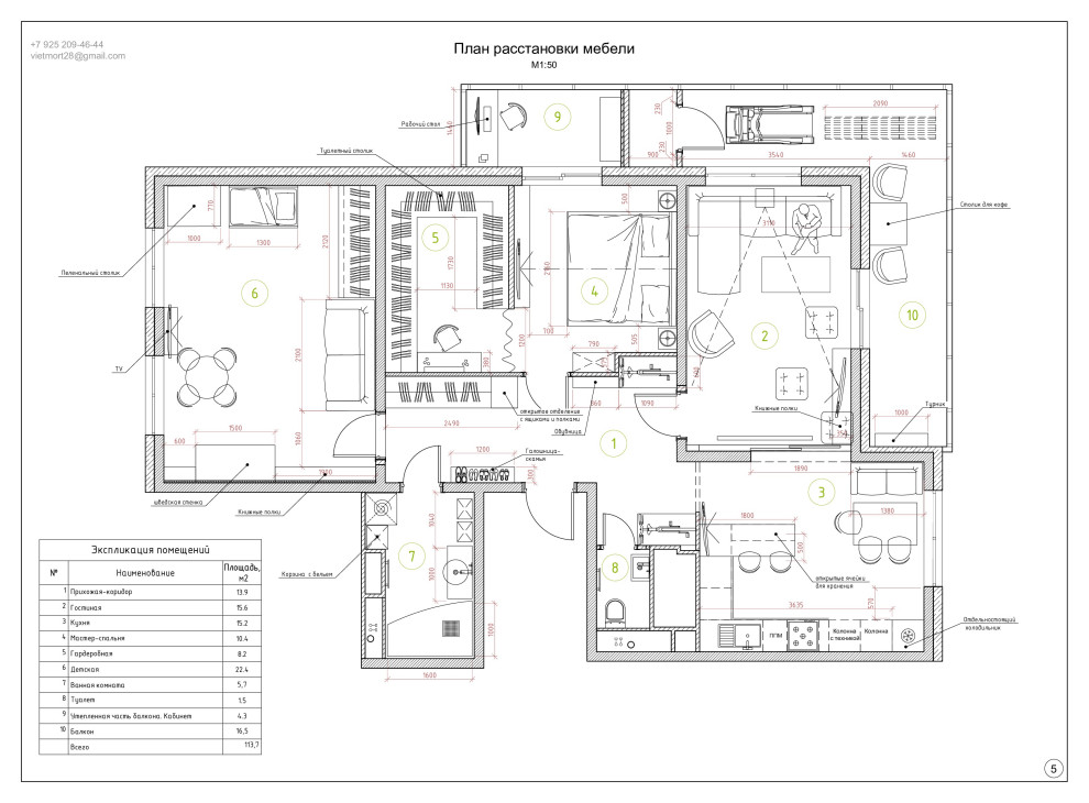
План расстановки мебели и техники: примерыAMdesign
Дизайнер проекта: Шутова Анна
_________________________________
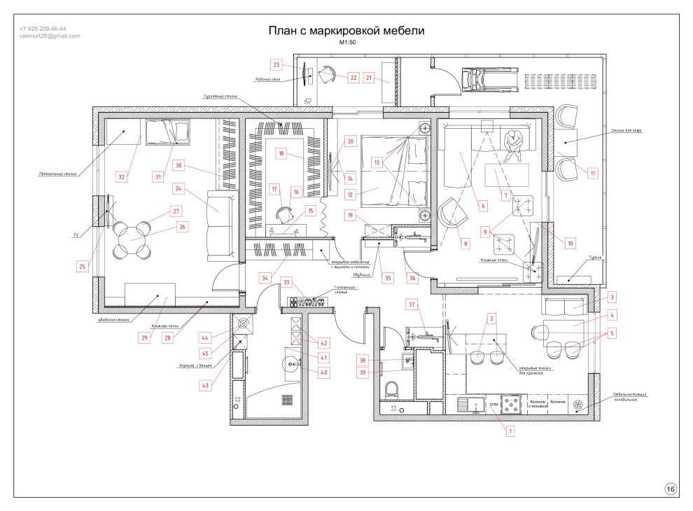
План расстановки мебели и техники: примерыBureau IVA
Дизайнер проекта: Бюро IVA
__________________________
План расстановки мебели и техники: примеры Светлана , студия дизайна INTERIOR
Дизайнер проекта: Кулясова Светлана
_________________________________
План расстановки мебели и техники: примерыВладимир Подлипный
Дизайнер проекта:
Владимир Подлипный
_________________________________
План расстановки мебели и техники: примерыАнна Малышкина

1 вариант планировки. . . Хорошая спальня с приватной ванной комнатой и зимним садиком. Компактное рабочее место на утепленной лоджии. Раздвижные перегородки позволяют объединять пространство гостиной и спальни в один объем, позволяя смотреть новости, не вставая с постели. . . Гостиная и кухня существуют в одном пространстве. Просторный гостевой диван располагает к комфортному просмотру фильмов. Компактная кухня с небольшим столиком для семейной трапезы. Объем холодильника спрятан в гардеробную при входе в квартиру. . . Отрабатываем минусы: . - Нет гостевого санузла. Можно сделать вход в ванную комнату из коридора – лишаемся приватности. Или уплотнить кухню, вынести холодильник из гардеробной и вместо нее сделать шкаф и маленький санузел. . - Кабинет в объеме спальни. Как вариант – во время сна супруга переходить в гостиную. Предусмотреть возможность использовать телевизор, как экран компьютера.

Дизайнер проекта: Анна Малышкина
_________________________________
План расстановки мебели и техники: примерыАлександра Сергеева
Дизайнер проекта: АЛЕКСАНДРА СЕРГЕЕВА | NOTUMPROJECT
_________________________________
План расстановки мебели и техники: примерыАнна Малышкина

2 вариант планировки. . . Хорошая спальня с выделенной мини - гардеробной и приватной ванной комнатой. Отличный рабочий стол вдоль всего окна. Стиральная и сушильная машинки установлены в колонну в ванной комнате при входе. . Между спальней и гостиной – скрытая дверь, при желании можно заменить на распашную. . . Компактная кухня плавно переливается в гостиную зону. Массивный холодильник спрятан в объем гардеробной при входе в квартиру. Небольшой зимний сад на утепленной лоджии. . . Отрабатываем минусы: . - Нет гостевого санузла. Можно сделать вход в ванную комнату из коридора - теряем приватность. Или заменить гардеробную на шкаф, сделать приватную небольшую ванную комнату и крошечный гостевой санузел. . - Рабочее место не изолировано. Можно организовать компактное рабочее место в зимнем саду. . - Нет полноценной столовой зоны. Можно вместо гостевого дивана поставить обеденный стол. На лоджии – кресло, раскладывающееся в спальное место (конфликт с рабочим столом).

Дизайнер проекта: Анна Малышкина
_________________________________
План расстановки мебели и техники: примерыАлёна Горбачёва
Дизайнер проекта: Алёна Горбачёва
_________________________________
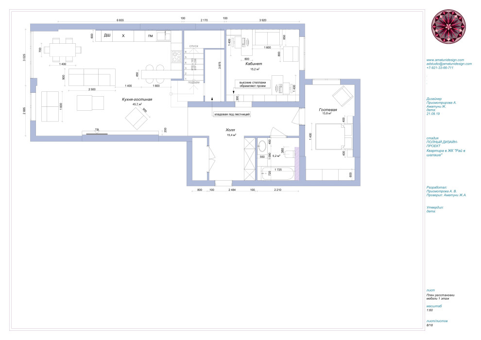
План расстановки мебели и техники: примерыZhanna Amatuni
Дизайнер проекта: Amatuni Design
_________________________________
План расстановки мебели и техники: примерыОльга Слезкина

Архитектор, дизайнер Ольга Слезкина

Дизайнер проекта: Ольга Слезкина
_________________________________
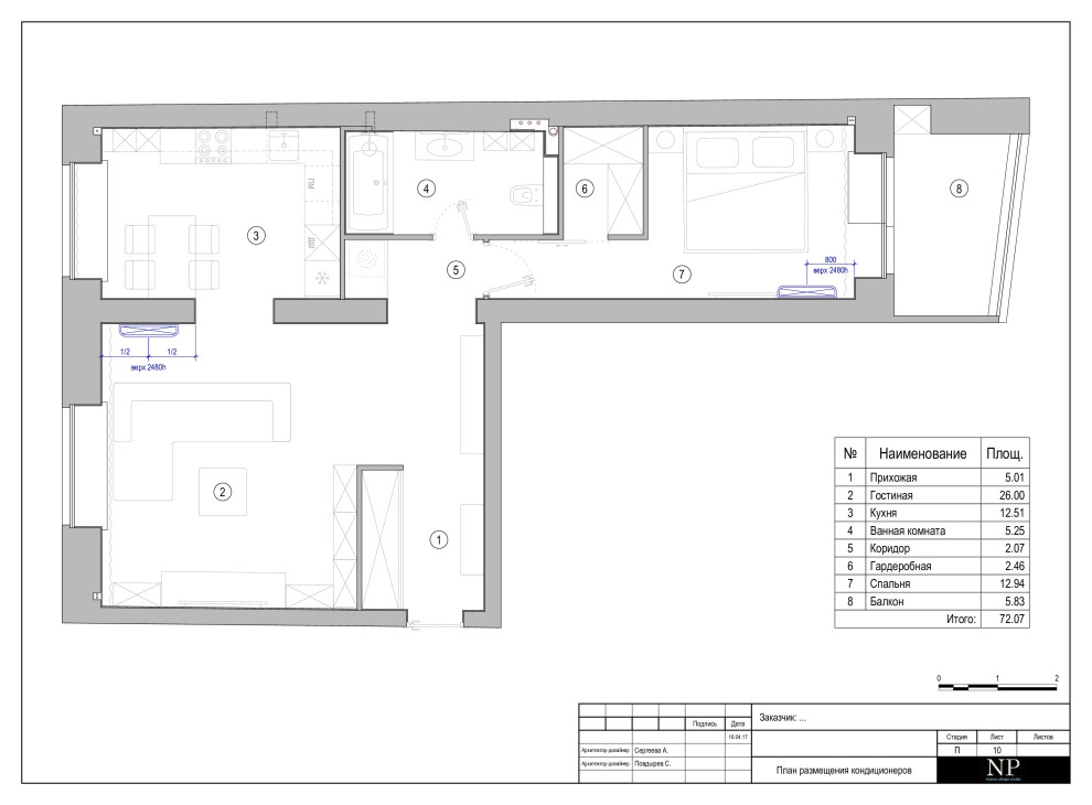
План расстановки мебели и техники: примерыПолина Лобжанидзе
Дизайнер проекта: GPSdesign
_________________________________
План расстановки мебели и техники: примерыМария Боровская
Дизайнер проекта: Дизайн студия Марии Боровской
_________________________________
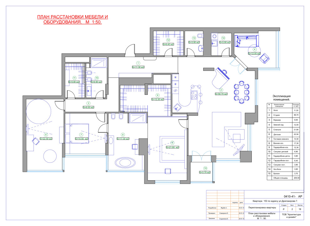
План расстановки мебели и техники: примерыСамарина Елена
Дизайнер проекта: Самарина Елена
_________________________________
План расстановки мебели и техники: примерыBureau IVA
Дизайнер проекта: Бюро IVA
__________________________
План расстановки мебели и техники: примерыПолина Лобжанидзе
Дизайнер проекта: GPSdesign
_________________________________
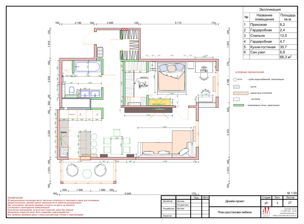
План расстановки мебели и техники: примерыAMdesign
Дизайнер проекта: Шутова Анна
_________________________________
План расстановки мебели и техники: примерыАнна Малышкина

Итоговая планировка. . . Итоговую планировку сделало «изолированное» рабочее место. Для спальни выделили отдельную компактную комнату с окном, распашной дверью и большим шкафом - купе. . . В глубине квартиры выделили полноценное рабочее место со стеллажом для бумаг. Экран телевизора можно использовать, как экран компьютера. Тут же расположен гостевой диван. . . Лоджию утеплили, увеличили ее площадь, установили французское окно – разместили столовую группу и зимний сад. Рядом расположилась полноценная кухня. . . Объединенный санузел. . Небольшая постирочная. . Шкаф для верхней одежды и просторная прихожая. . Эта квартира с двумя окнами взяла на себя функции трехкомнатной квартиры. . . Экспликация: . 1. Прихожая – 5,3 м кв . 2. Ванная комната – 3,2 м кв . 3. Гардеробная при входе – 2,1 м кв . 4. Постирочная – 1,5 кв м . 5. Кухня – 9,4 м кв . 6. Кабинет – 11,3 м кв . 7. Спальня – 9,2 м кв . 8. Столовая – 7,5 м кв . . Итого: 49,5 м кв

Дизайнер проекта: Анна Малышкина
_________________________________
План расстановки мебели и техники: примерыОльга Солнышкова
Дизайнер проекта: in[ex]terior by Solnyshkova
_________________________________
План расстановки мебели и техники: примерыМария Боровская
Дизайнер проекта: Дизайн студия Марии Боровской
_________________________________

Похожие статьи

Статьи скоро появятся

Похожие дискуссии

Дискуссии скоро появятся

Лучшие статьи — раз в неделю на почту

Способ подписки скоро появится