logo

План электрики (освещения и розеток): примеры

Houzz Россия
Houzz Россия

30 окт. 2019

Обновлено 30 окт. 2019

В этой подборке примеры разного подхода к планировке дизайнеров разных бюро для статьи «Ликбез: Какие чертежи в проекте — обязательные».
План электрики (освещения и розеток): примерыМария Боровская
Дизайнер проекта: Дизайн студия Марии Боровской
_________________________________
План электрики (освещения и розеток): примерыАндрей и Екатерина Андреевы
Дизайнер проекта: Андрей и Екатерина Андреевы
_________________________________
План электрики (освещения и розеток): примерыАлександр Михайлов
Дизайнер проекта: Группа Компаний «Фундамент»
_________________________________
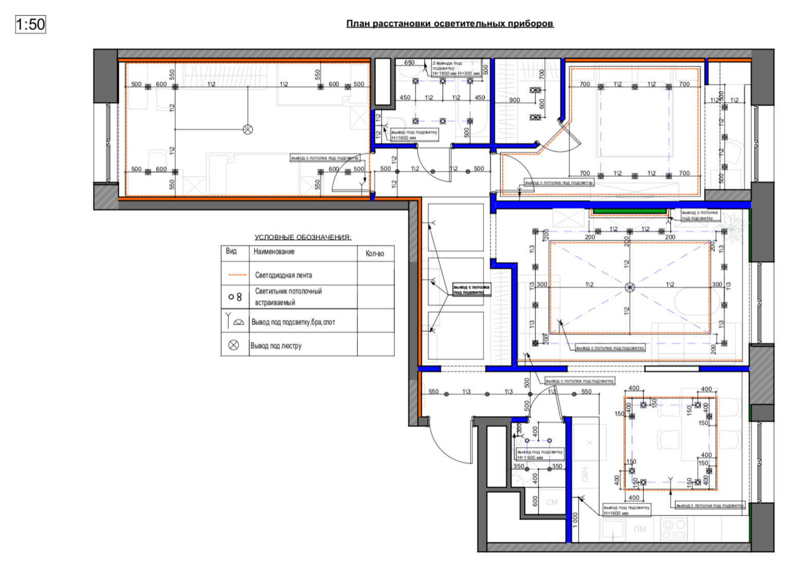
План электрики (освещения и розеток): примерыПолина Лобжанидзе
Дизайнер проекта: GPSdesign
_________________________________
План электрики (освещения и розеток): примерыZhanna Amatuni
Дизайнер проекта: Amatuni Design
_________________________________
План электрики (освещения и розеток): примерыBureau IVA
Дизайнер проекта: Бюро IVA
_________________________________
План электрики (освещения и розеток): примерыElena Kareva
Дизайнер проекта: Елена Карева
_________________________________
План электрики (освещения и розеток): примерыBureau IVA
Дизайнер проекта: Бюро IVA
_________________________________
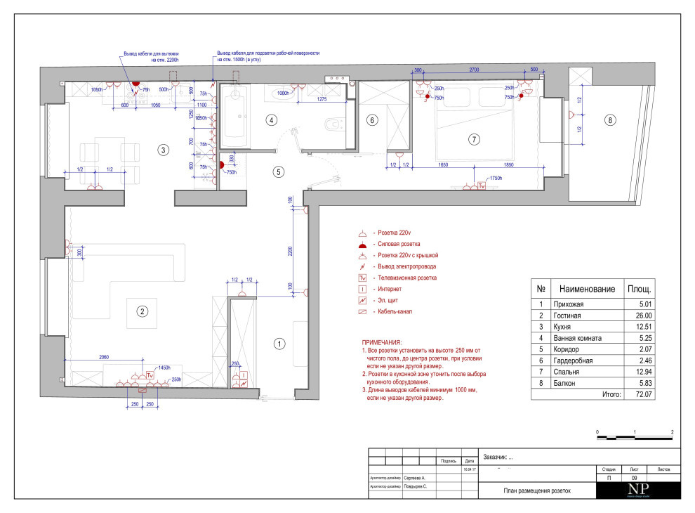
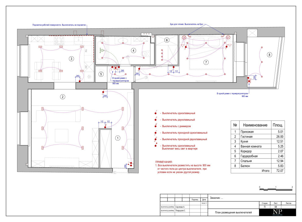
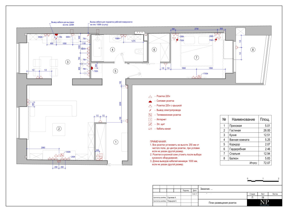
План электрики (освещения и розеток): примерыОльга Солнышкова
Дизайнер проекта: in[ex]terior by Solnyshkova
_________________________________
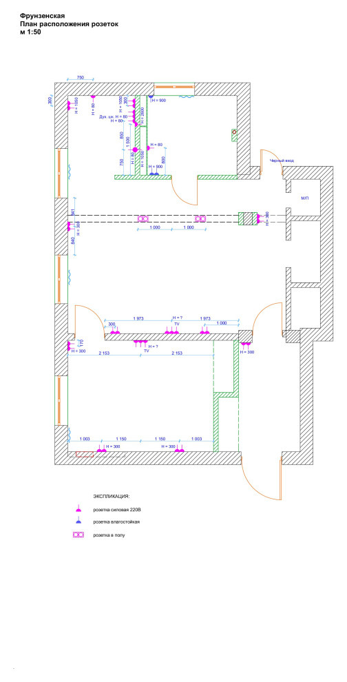
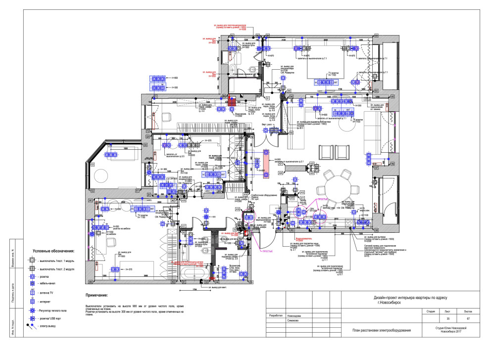
План электрики (освещения и розеток): примеры
Дизайнер проекта: Студия Юлии Новосадовой
_________________________________
План электрики (освещения и розеток): примерыМария Боровская
Дизайнер проекта: Дизайн студия Марии Боровской
_________________________________
План электрики (освещения и розеток): примерыМария Боровская
Дизайнер проекта: Дизайн студия Марии Боровской
_________________________________
План электрики (освещения и розеток): примерыElena Kareva
Дизайнер проекта: Елена Карева
_________________________________
План электрики (освещения и розеток): примерыElena Kareva
Дизайнер проекта: Елена Карева
_________________________________
План электрики (освещения и розеток): примерыНаташа Мартынова
Дизайнер проекта: WhiteRoom
_________________________________
План электрики (освещения и розеток): примерыАлександра Сергеева
Дизайнер проекта: АЛЕКСАНДРА СЕРГЕЕВА | NOTUMPROJECT
_________________________________
План электрики (освещения и розеток): примерыАлёна Горбачёва
Дизайнер проекта: Алёна Горбачёва
_________________________________
Дизайнер проекта: Архитектурно-проектная мастерская №1
_________________________________
План электрики (освещения и розеток): примерыАлександр Михайлов
Дизайнер проекта: Группа Компаний «Фундамент»
_________________________________
Дизайнер проекта: Архитектурно-проектная мастерская №1
_________________________________
План электрики (освещения и розеток): примеры Светлана , студия дизайна INTERIOR
Дизайнер проекта: Кулясова Светлана
________________________________
План электрики (освещения и розеток): примеры Светлана , студия дизайна INTERIOR
Дизайнер проекта: Кулясова Светлана
________________________________
План электрики (освещения и розеток): примерыBureau IVA
Дизайнер проекта: Бюро IVA
_________________________________
План электрики (освещения и розеток): примерыДизайн интерьера | LH STUDIO
Дизайнер проекта: Дизайн студия интерьера LOFT&HOME
_________________________________
План электрики (освещения и розеток): примеры Светлана , студия дизайна INTERIOR
Дизайнер проекта: Кулясова Светлана
________________________________
План электрики (освещения и розеток): примерыСамарина Елена
Дизайнер проекта: Самарина Елена
_________________________________
План электрики (освещения и розеток): примерыНаташа Мартынова
Дизайнер проекта: WhiteRoom
_________________________________
План электрики (освещения и розеток): примерыАлександр Михайлов
Дизайнер проекта: Группа Компаний «Фундамент»
_________________________________
План электрики (освещения и розеток): примерыАндрей и Екатерина Андреевы
Дизайнер проекта: Андрей и Екатерина Андреевы
_________________________________
План электрики (освещения и розеток): примерыПолина Лобжанидзе
Дизайнер проекта: GPSdesign
_________________________________
План электрики (освещения и розеток): примерыДизайн интерьера | LH STUDIO
Дизайнер проекта: Дизайн студия интерьера LOFT&HOME
_________________________________
План электрики (освещения и розеток): примерыАндрей и Екатерина Андреевы
Дизайнер проекта: Андрей и Екатерина Андреевы
_________________________________
План электрики (освещения и розеток): примерыАлёна Горбачёва
Дизайнер проекта: Алёна Горбачёва
_________________________________
План электрики (освещения и розеток): примерыZhanna Amatuni
Дизайнер проекта: Amatuni Design
_________________________________
План электрики (освещения и розеток): примерыДизайн интерьера | LH STUDIO
Дизайнер проекта: Дизайн студия интерьера LOFT&HOME
_________________________________
План электрики (освещения и розеток): примерыАлександра Сергеева
Дизайнер проекта: АЛЕКСАНДРА СЕРГЕЕВА | NOTUMPROJECT
_________________________________
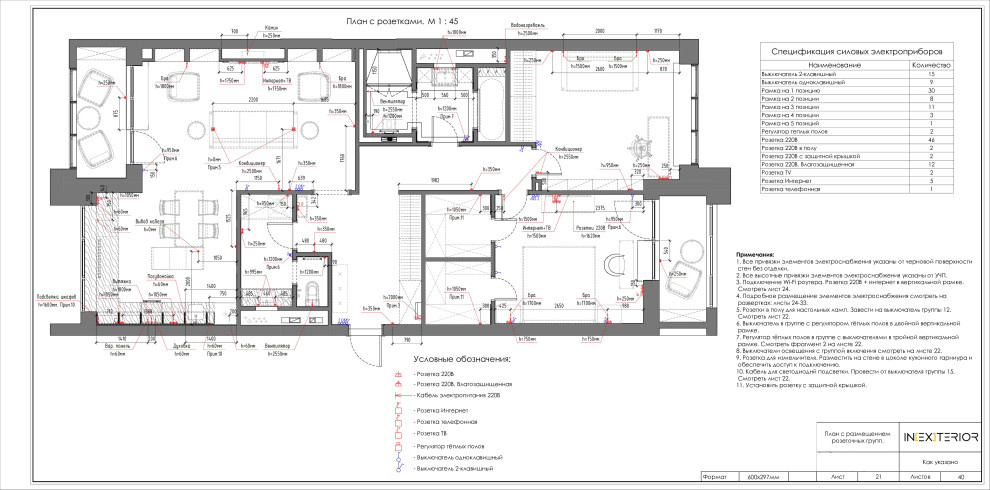
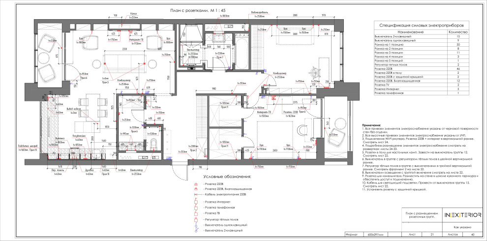
План электрики (освещения и розеток): примерыBureau IVA
Дизайнер проекта: Бюро IVA
_________________________________
План электрики (освещения и розеток): примерыАндрей и Екатерина Андреевы
Дизайнер проекта: Андрей и Екатерина Андреевы
_________________________________

Комментарии 1

Всегда было интересно, зачем на хаузе выкладывают фото с мелкой деталировкой, если эти фото совершенно невозможно увеличить и рассмотреть. При всех достоинствах - это самый недобный сайт по части рассматривания фото. С микроскопом сидеть или лупой, как один генерал? Я все понимаю, копирайтомания, но смилуйтесь уже над читателями, мы хотим видеть, что вы там пытаетесь нам показать.

Оставьте комментарий

Похожие дискуссии

Дискуссии скоро появятся

Лучшие статьи — раз в неделю на почту

Способ подписки скоро появится