logo

Houzz Украина: «Умная» квартира в Киеве в духе строгого минимализма

Ничего лишнего: лишь простые линии и автоматизированные системы управления домом. Именно такой видела свою идеальную квартиру семья из Киева

Евгения Назарова
Евгения Назарова

11 мар. 2016

Обновлено 12 июня 2016

Постоянный автор Houzz, интерьерный журналист

Эту квартиру в Киеве проектировали почти год: заказчики, молодая семейная пара, предъявляли высокие требования к интерьеру будущего семейного гнезда. Впрочем, для авторов проекта запросы владельцев оказались не проблемой, а мощной мотивацией к работе. С одной стороны, заказчики уже знали творческий почерк Yurima Architects и обратились к специалистам целенаправленно, чтобы получить светлый лаконичный интерьер. С другой их хороший вкус задал высокую планку качества: по словам архитектора Ивана Юрымы, проект только выиграл от внимательного подхода владельцев.

О проекте
Место:
Киев
Размер: 200 кв.м
Кто здесь живет: Семейная пара с двумя детьми
Авторы: Иван Юрыма, Юлия Селимова, Михаил Васин, Yurima Architects
Фото: Андрей Посонский
Houzz Украина: «Умная» квартира в Киеве в духе строгого минимализма
В этой лаконичной квартире нет прихожей — от входной двери владельцы сразу попадают в единую зону кухни-гостиной. Не увидеть здесь и коридоров: в результате перепланировки их полностью убрали, чтобы использовать жилое пространство с наибольшей пользой. Гостиная служит не только местом сбора всей семьи, но и буфером, вокруг которого собраны все остальные комнаты.

«Мы выбрали принцип перетекающих пространств: каждое помещение персонализировано, но вписано в общую концепцию, а легкие перегородки дают интерьеру возможность трансформироваться, открывая и объединяя помещения, или наоборот полностью изолируя зоны», поясняют авторы проекта.
Houzz Украина: «Умная» квартира в Киеве в духе строгого минимализма
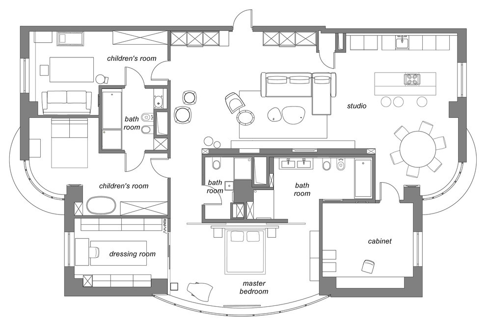
Правда, чтобы воплотить эту концепцию, внутренние перегородки пришлось выстраивать заново. В изначальном проекте от застройщика на 200 квадратных метрах располагалось огромное количество комнат, но после перепланировки пространство поделили между кухней-гостиной, блоком для родителей, двумя детскими, кабинетом и служебными помещениями.

По желанию владельцев квартиру по-максимуму укомплектовали «умной» техникой, включая системы климат-контроля.
Houzz Украина: «Умная» квартира в Киеве в духе строгого минимализма
Диван: Arketipo

В создании планировки авторы проекта отталкивались в основном от расположения окон, которых оказалось не так уж много для просторной квартиры.
В вечернее время вступают в действие продуманные и разнообразные сценарии освещения: встроенная в потолок подсветка тянется вдоль всей гостиной и задает динамику, а зоны столовой и кухни подсвечиваются локально.

Конструкция со встроенным телевизором и камином, сделанная из дерева и черного металла, скрывает дополнительные системы хранения таким образом в большой гостиной решается проблема порядка.
Houzz Украина: «Умная» квартира в Киеве в духе строгого минимализма
Пол в объединенной зоне кухни-гостиной отделан светлым керамогранитом, а стены и потолок отданы под покраску. Зоны гостиной и кухни выстроились в одну линию, при этом кухонный гарнитур разделили на основную и островную части. «Мы разнесли холодные и горячие процессы по образу и подобию профессиональной кухни, где они не пересекаются. Бытовую технику разместили, учитывая циклы приготовления», рассказывает Иван Юрыма.

Кухонный гарнитур: Bulthaup; стулья у барной стойки: Kristalia
Houzz Украина: «Умная» квартира в Киеве в духе строгого минимализма
Houzz Украина: «Умная» квартира в Киеве в духе строгого минимализма
Зону столовой с креслами-тюльпанами вынесли к округлому панорамному эркеру — квартира находится на высоком этаже и отсюда открывается впечатляющий вид на город. Из столовой можно попасть в минималистичный кабинет: аскетизм обстановки настраивает на рабочий лад, а боковое окно пропускает достаточное для работы в дневное время количество света. Все окна в квартире оформлены белым натуральным текстилем.

Кресло у рабочего стола: Kristalia
Houzz Украина: «Умная» квартира в Киеве в духе строгого минимализма
Houzz Украина: «Умная» квартира в Киеве в духе строгого минимализма
Интерьер гостевого санузла решен в природных оттенках и простых силуэтах, характерных для минимализма. Главный акцент здесь квадратная раковина на деревянном подстолье от Agape, которая гармонирует по тону с керамогранитом от Apavisa.
Houzz Украина: «Умная» квартира в Киеве в духе строгого минимализма
Лучший вид на город, по словам авторов проекта, открывается из мастер-спальни, которой досталось огромное панорамное окно. «Приватная часть для хозяев полностью автономна», отмечает Иван Юрыма. От остальной квартиры и ванной комнаты спальню отделяют две раздвижные двери за изголовьем кровати.
Houzz Украина: «Умная» квартира в Киеве в духе строгого минимализма
Кровать: Lago; кресло: B&B Italia; люстра: Artemide

«Мы предлагали для спальни более сложные решения, но заказчики просили чего-то попроще обычно мы встречаем обратную реакцию», рассказывают авторы проекта. «Парящую» кровать, которая крепится к изголовью, подбирали по тем же критериям: она должна была выглядеть предельно лаконично.

Основной источник искусственного освещения в спальне огромный светильник, длина которого почти три метра. Занести его в квартиру без происшествий удалось благодаря тому, что это разборная модель.
Houzz Украина: «Умная» квартира в Киеве в духе строгого минимализма
Houzz Украина: «Умная» квартира в Киеве в духе строгого минимализма
Полы в родительском блоке, включая примыкающую ванную комнату, наливные. Одну из стен ванной занимает геометричная композиция, составленная из блоков фанеры: за панелями спрятана ночная подсветка. Таким образом, при необходимости включить свет ночью владельцы видят не яркие лампы, а мягкие рассеянные лучи, при этом их источник остается скрытым. Еще одна стена, облицованная зеркалом, скрывает встроенные шкафы для хранения.

Сантехника: Rexa, Catalano, Tres
Houzz Украина: «Умная» квартира в Киеве в духе строгого минимализма
Houzz Украина: «Умная» квартира в Киеве в духе строгого минимализма
При спальне есть также большая гардеробная с туалетным столиком. Системы хранения авторы проекта расположили вдоль двух параллельных стен.
Houzz Украина: «Умная» квартира в Киеве в духе строгого минимализма
Две детские комнаты связаны общим санузлом, при этом автоматизированные системы блокируют доступ с противоположной стороны, если ванной пользуется один из детей. На фото одна из детских спален, оформленная в общей для интерьера гамме с неброскими синими акцентами и самодельным светильником.
Houzz Украина: «Умная» квартира в Киеве в духе строгого минимализма
Планировка квартиры

ПРЕДЛОЖИТЕ СВОЙ ПРОЕКТ ДЛЯ ПУБЛИКАЦИИ…
Загрузите фотосъемку в свой профиль на Houzz, отправьте ссылку и краткое описание проекта на editorial@flatica.ru. Мы обязательно свяжемся с вами, если примем решение о публикации.

Комментарии 16

Очень скучно и стандартно, а лет через пять будет несовременно. Дорого, скучно, тяжеловесно. Нет легкости, юмора, особенности.
Планировка потрясающая!
trionfo

9 л.

Стильно, лаконично, но скучно. Пол в кабинете просится другой.

Оставьте комментарий

Читать похожие статьи