logo

Houzz Украина: Дом-куб среди сосен в стиле эко-минимализма

Хозяева этого дома решили сэкономить на размерах собственного жилья, сохранив на участке стройные сосны

Анна Бандальер
Анна Бандальер

3 сент. 2015

Обновлено 28 сент. 2015

журналист, постоянный автор Houzz

Хозяева этого дома захотели сохранить нетронутым окружающий природный ландшафт и отказались срубить величественные сосны ради расширения собственного жилого пространства. А учитывая небольшую площадью земельного участка всего 0,7 га это пожелание стало настоящим вызовом для украинского архитектора Виктории Якуши. Семье нужен был вместительный удобный дом с личным пространством для каждого. Дизайнер нашла выигрышное архитектурное решение, спроектировав компактную двухэтажную постройку в форме куба. Максимально рационально использовав каждый метр, Виктории удалось разместить все необходимое для комфортной загородной жизни.
Houzz Украина: Дом-куб среди сосен в стиле эко-минимализма
Houzz Украина: Дом-куб среди сосен в стиле эко-минимализма
О проекте
Место: Буча, Киевская область, Украина
Год: 2014
Размер: площадь — 200 кв.м
Кто здесь живет: семья с тремя детьми
Автор проекта: Виктория Якуша, студия Yakusha Design
Фото: Андрей Авдеенко
Houzz Украина: Дом-куб среди сосен в стиле эко-минимализма
Houzz Украина: Дом-куб среди сосен в стиле эко-минимализма
Хозяйка хотела, чтобы в гостиной было много света и воздуха. Поэтому единое с кухней и столовой пространство сделали двусветным, убрав потолочные перекрытия. Здесь дышится свободно, интерьер не перегружен второстепенными объектами, а огромное панорамное окно позволяет любоваться сосновым лесом и зрительно расширяет помещение.
Houzz Украина: Дом-куб среди сосен в стиле эко-минимализма
Houzz Украина: Дом-куб среди сосен в стиле эко-минимализма
В гостиной минимум мебели, акцент сделан на столовой группе (стол Baxter и стулья Рedrali). Из кухни легко просматриваются детские комнаты на втором этаже, поэтому даже во время готовки дети остаются в поле зрения.

Изюминкой интерьера стали экстравагантные люстры французской фабрики Рetite Friture. Выбор сценария освещения был для Виктории принципиальным моментом, и она долго сомневалась, перебирая десятки вариантов. Действительно, повесить на потолок сразу девять «головокружительных» светильников (эта модель так и называется Vertigo) — смелый ход, но, в результате, он оправдал себя.
Houzz Украина: Дом-куб среди сосен в стиле эко-минимализма
Светильник с абажуром-лопастью весит всего 500 г, поэтому легко поворачивается от малейшего дуновения ветра. Эта стайка черных стрекоз привнесла нотку очаровательной легкомысленности в лаконичное и сдержанное пространство.
Houzz Украина: Дом-куб среди сосен в стиле эко-минимализма
Соединяет этажи консольная лестница без перил с ограждениями из ударопрочного стекла. Такая конструкция создает иллюзию невесомости, и кажется, что деревянные ступени парят в воздухе.
Houzz Украина: Дом-куб среди сосен в стиле эко-минимализма
Под лестницей разместили декоративные элементы высокие деревянные вазы для растений авторства Виктории. Они поддерживают экологическую тему и не скрадывают пространство.
Houzz Украина: Дом-куб среди сосен в стиле эко-минимализма
Спальня супругов выполнена в приглушенных темно-серых цветах. Здесь царит спокойная и расслабляющая атмосфера. «Самое ценное свойство этого интерьера его полное соответствие эко-концепции: на полу — дубовая доска, шторы и покрывала — из шерсти, постельное белье — из льна, функцию прикроватных тумбочек выполняют пеньки, за окном шумят сосны», — комментирует Виктория. В спальне нет шкафов, что позволило увеличить пространство, а гардероб предусмотрен за скрытой дверью.
Houzz Украина: Дом-куб среди сосен в стиле эко-минимализма
Во время строительства дома выяснилось, что в семье ожидается пополнение, поэтому обе детские (для девочки и мальчика) планировались с возможностью вселения маленького жильца. В этих комнатах дети не только спят и делают уроки, здесь они проводят большую часть времени. А значит, нужен простор для игр и общения. Для этого кровать в спальне девочки приподняли над полом, расположив внизу небольшой диван и системы хранения. Для оформления выбрали естественные светлые тона с вкраплением салатового.
Houzz Украина: Дом-куб среди сосен в стиле эко-минимализма
В комнате мальчика преобладает белый цвет с красными и синими акцентами. Здесь сэкономить квадратные метры помог подиум, под которым спрятана пара выдвижных кроватей, сверху же разместили рабочий стол. Возвышение оказалось многофункциональным: его используют в качестве прикроватной тумбы, места для сидения, а также как сцену во время домашних представлений.
Houzz Украина: Дом-куб среди сосен в стиле эко-минимализма
Ванная комната соответствует принципу «ничего лишнего». Черная стена контрастирует с матово-белыми поверхностями сантехники и уравновешивается деревянными оттенками плитки Fap Ceramiche.
Houzz Украина: Дом-куб среди сосен в стиле эко-минимализма
Houzz Украина: Дом-куб среди сосен в стиле эко-минимализма
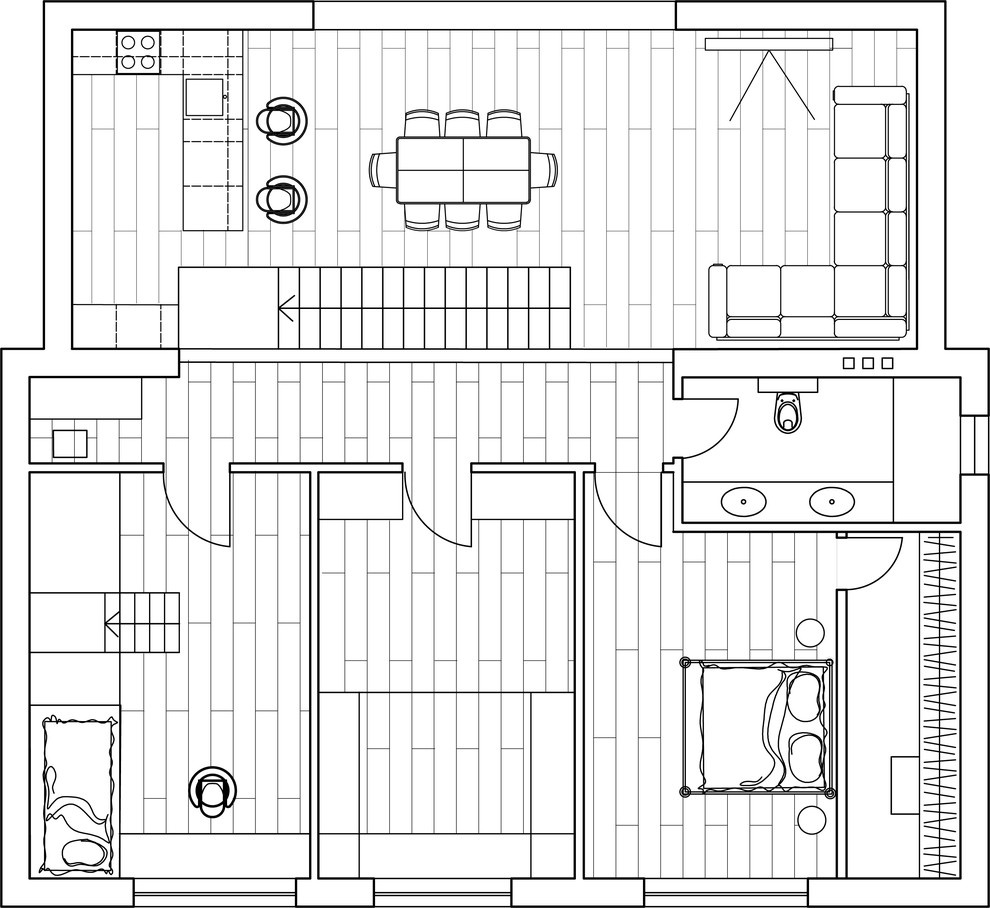
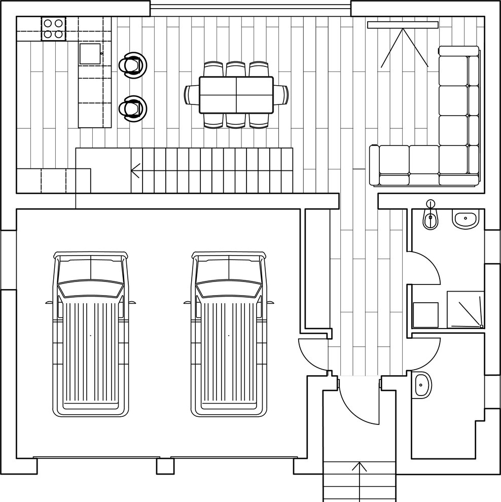
Первый этаж занимает гостевая зона, веранда с небольшой беседкой под деревянным навесом и гараж на два автомобиля. На втором расположено приватное пространство: две детские, спальня с гардеробом и санузел.

ПРЕДЛОЖИТЕ СВОЙ ПРОЕКТ ДЛЯ ПУБЛИКАЦИИ…
Загрузите фотосъемку в свой профиль на Houzz, отправьте ссылку и краткое описание проекта на editorial@flatica.ru

Мы обязательно свяжемся с вами, если примем решение о публикации.

Комментарии 13

iropsinka

9 л.

Прекрасный проект! Сама нахожусь в поиске решений по строительству дома, рассматривала схожие с данным проектом варианты, пришла к выводу: хочу именно такой дом, лаконичный, эстетичный, практичный и очень красивый!
Прекрасный дом! Понравилось все: и планировка и цветовые решения. В спальню родителей я просто влюбилась :)
roman1999

10 л.

на 2 этаже должно быть два сан.узла. Унитаз в хозяйской спальне,непрактичен. Похоже, дом, рисовал дизайнер.

Оставьте комментарий

Читать похожие статьи