logo

Houzz тур: Вдохновение Манхеттена в московской квартире на 29 этаже

Интерьер в стиле современного городского ар-деко появился в квартире на севере Москвы

Houzz Россия
Houzz Россия

9 мар. 2016

Обновлено 25 апр. 2016

Квартира, над проектом которой дизайнерам студии «Арх.Предмет» предстояло работать, находится в новостройке на 29-м этаже с панорамным видом Москвы. Хозяйка девушка с тонким вкусом, увлекающаяся искусством, фотографией и посещающая выставки современного дизайна. Образ будущего интерьера сложился у нее под впечатлением от фильмов, действие которых разворачиваются в современном Манхеттене. Тем не менее, она не ставила перед дизайнерами задачу что-либо копировать, тем более, в деталях.

Заказчица предпочла совершенно конкретную концепцию интерьера. Они создали интерьер, выдержанный в стилистике «современной Америки». Также авторы проекта учли образ заказчицы — интерьер полностью созвучен ее характеру, такой же женственный. Они определили свой основной прием так: «Объединяющей для интерьера стала концепция орнаментов в стиле ар-деко».
Houzz тур: Вдохновение Манхеттена в московской квартире на 29 этажеEvgeniya Beschastnykh
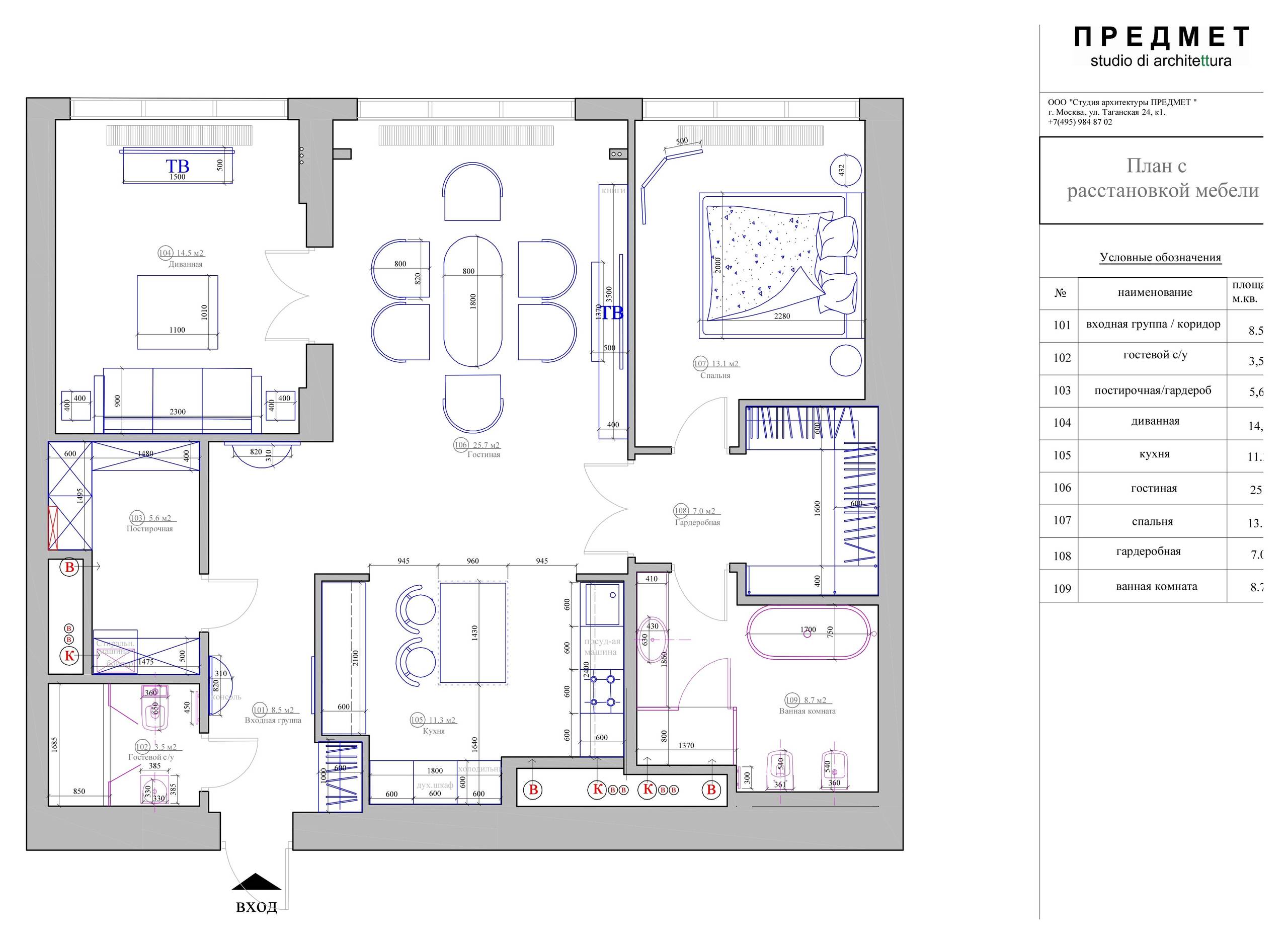
О проекте Место: Квартира в новом жилом комплексе на севере Москвы Размер: 104 кв.м Кто здесь живет: Девушка и кошка Автор проекта: Студия дизайна интерьеров «Арх.Предмет» , архитектор Олеся Ситникова, дизайнер-проектировщик Екатерина Тулупова, дизайнер Анна Бахметова Интересные факты: Реализация проекта — 2015 год Фото: Сергей Ананьев Принты стали главным объединяющим мотивом в интерьере: они повторяются в различных интерпретациях, их рисунок видоизменяется, меняется и масштаб, поэтому здесь интересно рассматривать детали. Так, в столовой зоне рисунок металлического обрамления люстры перекликается с принтом, повторившимся в малом масштабе в обивке кресел. Мебель и свет выбирали у подходящих по стилю американских брендов, тем более, заказчице нравятся коллекции знаменитой Барбары Берри (Barbara Berry). Мебель в квартире — это реплики, напоминающие силуэты американской мебели 1950-х годов. Как, например, кресла, выполненные в стилистике середины прошлого века. Оконный портал с полуколоннами помог спрятать коммуникации, кроме того, выделение окон с помощью портала — один из любимых приемов дизайнеров.
Houzz тур: Вдохновение Манхеттена в московской квартире на 29 этажеEvgeniya Beschastnykh
В квартире повторилась типичная для новостройки история: полностью свободная планировка и пространство, в котором не было ничего, кроме стояков. В результате получилась логичная, продуманная и, самое главное, нестандартная планировка, поскольку в пространстве столовой-кухни столовая группа выполняет роль первой гостиной и напоминает лаунж-зону в хорошем ресторане. Мягкая группа позволяет расположиться за столом с комфортом, что важно для заказчицы, любящей готовить и встречать гостей. В отдельном помещении есть традиционная гостиная. Также есть изолированный блок со спальней, гардеробной и ванной комнатой. В общественной зоне, ближе ко входу находятся гостевой санузел и постирочная.
Houzz тур: Вдохновение Манхеттена в московской квартире на 29 этажеEvgeniya Beschastnykh
« На фоне серого цвета разных оттенков зажигается золото, добавляющее помещению теплоты. В зоне столовой и кухни мы искали баланс теплого и холодного », — рассказывают дизайнеры о цветовом решении. Холодный цвет присутствует скорее в акцентах, например, в серо-синих оттенках ковра, включающих глубокий морской цвет. На ковре, созданном дизайнером Микаэлой Шлейпен, можно заметить филигранные цветовые переходы, напоминающие море и песок. Дизайнеры усложнили пластику стен вертикальными линиями, имитирующими панели. Для этого на стены наклеили листы гипсокартона и покрыли их декоративной штукатуркой теплого серого цвета. Картина собирает оттенки интерьера: голубые, золотистые, тепло-серые, светло-коричневые. В форме стола угадывается классика ар-деко. Стены: краска Little Greenе, Manders; к ресла: Vanguard; обеденный стол: Nino Galimbertti; мебель: поставщик Design Place; люстра: Fine art lamps; свет: поставщик Light Depo ; ковер: Beach Gradient, Kover Buro; картина: холст, масло, В.М. Седов «Листопад » , поставщик Агентство Art Ru ; подсвечники, вазы: Crate and Barrel; подставка для торта: Home Concept
Houzz тур: Вдохновение Манхеттена в московской квартире на 29 этажеEvgeniya Beschastnykh
Цвет стен и ковра интересно сочетается со сложным, словно припыленным, цветом паркета, бежево-дымчатым с фиолетовым отливом. Такой интересный эффект получился за счет серо-фиолетовых прожилок, которые «нахимичили» с помощью масла. Пол выложили классической «французской елочкой», только большего, чем стандартная французская раскладка, размера — более крупный масштаб смотрится здесь гармоничнее. Кухня: LEICHT, поставщик «Немецкие Интерьеры »; барные стулья: Potocco; пол: дубовая доска «французская елка », Гранд Холл
Houzz тур: Вдохновение Манхеттена в московской квартире на 29 этажеEvgeniya Beschastnykh
С помощью филенчатых фасадов обеденной зоне добавили пластики. На самом деле, сочетание филенчатых фасадов с минималистскими — актуальный дизайнерский прием. Цветовой акцент сделали на необычном фартуке, выполненном в виде мозаики сине-серых оттенков, перекликающихся с цветом ковра в столовой зоне.
Houzz тур: Вдохновение Манхеттена в московской квартире на 29 этажеEvgeniya Beschastnykh
Изолированная гостиная настраивает на спокойный отдых, поскольку представляет собой исключительно диванно-телевизионную зону. Орнаментальный рисунок разного модуля используется в обивке кресел и на обоях. Обои с геометрическим рисунком серо-зеленого цвета содержат тонкие металлические светоотражающие нити, которые по-разному переливаются при искусственном и естественном освещении. При попадании солнечного света рисунок по-настоящему сияет. Обои: Diamond Stitch Dufour; диван: Arcetipo
Houzz тур: Вдохновение Манхеттена в московской квартире на 29 этажеEvgeniya Beschastnykh
Ковер от дизайнера Яна Ката из коллекции Artwork напоминает картины современных художников-абстракционистов, только в качестве мазков краски здесь выступает шерсть, создающая палитру из 24 цветов. На фото изображена одна из улиц Чикаго. Торшеры: Fine Art Lamps; столик Lucida и фото: Crate and Barrel; ковер: Artwork, Kover Buro
Houzz тур: Вдохновение Манхеттена в московской квартире на 29 этажеEvgeniya Beschastnykh
В спальне оригинальный дизайн зеркала над кроватью соответствует стилю середины прошлого столетия. Зеркало заключено в необычную раму с двойным обрамлением. От медной рамки с текстурным узором в основании обрамления лучами расходятся три слоя длинных металлических прутиков. Желтые акценты, загораясь на подушках и в рамке зеркала, добавляют теплых красок, и даже кажется, что в облачный и пасмурный день они заменяют настоящее солнце. Расположение квартиры на высоком этаже и окна во всю стену еще больше напоминают Манхеттен. Что касается окон, то здесь, как и во всем остальном, продуманы все детали. « Металлические рамы панорамных окон зашиты съемными деревянными коробами, перекликающимися с цветом паркета », — объясняют дизайнеры. Зеркало: Starburst, Crate and Barrel; торшеры: Fine Art Lamps
Houzz тур: Вдохновение Манхеттена в московской квартире на 29 этажеEvgeniya Beschastnykh
Элегантный геометрический орнамент на стенах спальни напоминает технику мозаики по дереву — маркетри. Рисунок мрамора в основании ламп рифмуется с узором на ковре. Ковер от Микаэлы Шлейпен — художественная интерпретация банановых листьев и очередное подтверждение ювелирного мастерства дизайнера. Прикроватный столик — кораллы в акриле. Здесь можно заметить, вспомнив ковер в обеденной гостиной, легкое и приятное присутствие морской тематики. Обои: Sussex Opal, Nabucco, Designers Guild; настольная лампа: Arteriors; столик: Kisimi от Blue Nature , Home Concept; ковер: Kover Buro
Houzz тур: Вдохновение Манхеттена в московской квартире на 29 этажеEvgeniya Beschastnykh
Мрамор в основании настольных ламп повторяется в столике у кровати . Теплых красок добавляет еще один желтый акцент — античное приглушенное золото в основании столика. А меховой плед сложной фигурной вязки добавляет тепла еще и в прямом смысле этого слова. Столик: Versailles Lamp Table от Halo Established 1976 , Home Concept; металлический гранат: Crate and Barrel ; плед: Home Concept
Houzz тур: Вдохновение Манхеттена в московской квартире на 29 этажеEvgeniya Beschastnykh
В гардеробной графический орнамент повторился на фасадах шкафов, только в более вытянутой форме. Шкафы выполнили на заказ по индивидуальным чертежам дизайнеров. Здесь также не обошлось без теплого желтого акцента — кашемирового пледа на фоне белого пуфа в центре гардеробной. Если перевернуть съемную крышку пуфа, он превращается в столик. Пуф: Stow, Crate and Barrel; плед: Masserano Cashmere
Houzz тур: Вдохновение Манхеттена в московской квартире на 29 этажеEvgeniya Beschastnykh
Санузлу решили придать вид, характерный скорее для жилой комнаты. Поэтому часть стен не стали выкладывать плиткой, а покрасили краской для влажных помещений. Образ комнаты поддерживают также карнизы и дерево на полу. «Тик на полу (наш излюбленный прием) добавляет помещению уюта», — уточняют дизайнеры. По эскизам дизайнеров в столярной мастерской сделали тумбу, которая могла бы подойти и для жилых комнат. Цвет стен — теплый с охристым оттенком. Тумба под раковиной: на заказ, по эскизам дизайнеров, компания «Антик-Стиль »
Houzz тур: Вдохновение Манхеттена в московской квартире на 29 этажеEvgeniya Beschastnykh
Одну треть стены (высотой около метра от уровня пола) выложили мозаикой из травертина, а оставшуюся часть покрасили до потолка. Металлический столик, покрашенный черной матовой краской и напоминающий своей формой классический подсвечник, походит для любой комнаты. Столик, керамический напольный подсвечник и фотография в рамке на стене, включая подсветку, — все служит для того, чтобы это помещение больше походило на жилую комнату. Столик, подсвечник (фонарик): Crate and Barrel
Houzz тур: Вдохновение Манхеттена в московской квартире на 29 этажеEvgeniya Beschastnykh
Нежная мозаика из мрамора, миниатюрная раковина, не бросающийся в глаза смеситель, изящные бра с тканевыми абажурами здесь для того, чтобы подчеркнуть особенный характер этого помещения. Раковина: Villeroy and Boch; светильники: Fine Art Lamps
Houzz тур: Вдохновение Манхеттена в московской квартире на 29 этажеEvgeniya Beschastnykh
Душевую выполнили по индивидуальным размерам в стекольной мастерской. Здесь из практичных соображений нет покраски. Душевая целиком выложена травертином. СМОТРИТЕ ТАКЖЕ… Еще примеры ар деко в интерьерах
Главный акцент холла — геометрические узоры в стиле ар-деко. Начинаясь с крупного рисунка на полу и изящного принта на обоях, тема графических орнаментов переходит из холла в другие помещения. Чтобы не прерывать линии принта на обоях, выбрали тонкую и легкую консоль. Стену украшает зеркало из одной коллекции с зеркалом в спальне, но оно больше по размеру и поэтому более функционально. Рама выполнена из медных прутиков, расходящихся лучами от основания с медной отделкой. Только прутики здесь намного короче, чем у зеркала в спальне. Обои: Thibaut Geometric Resource; консоль: Arteriors; светильник: Fine Art Lamps; зеркало, вазы: Crate and Barrel ПРЕДЛОЖИТЕ СВОЙ ПРОЕКТ ДЛЯ ПУБЛИКАЦИИ… Загрузите фотосъемку в свой профиль на Houzz, отправьте ссылку и краткое описание проекта на editorial@flatica.ru. Мы обязательно свяжемся с вами, если примем решение о публикации. Интерьерные съемки из спецпроекта «Houzz в гостях»

Комментарии 22

крутота
Сказка! Хочу эту сказку...Ах!
robiton19

9 л.

Очень гармонично

Оставьте комментарий

Читать похожие статьи