
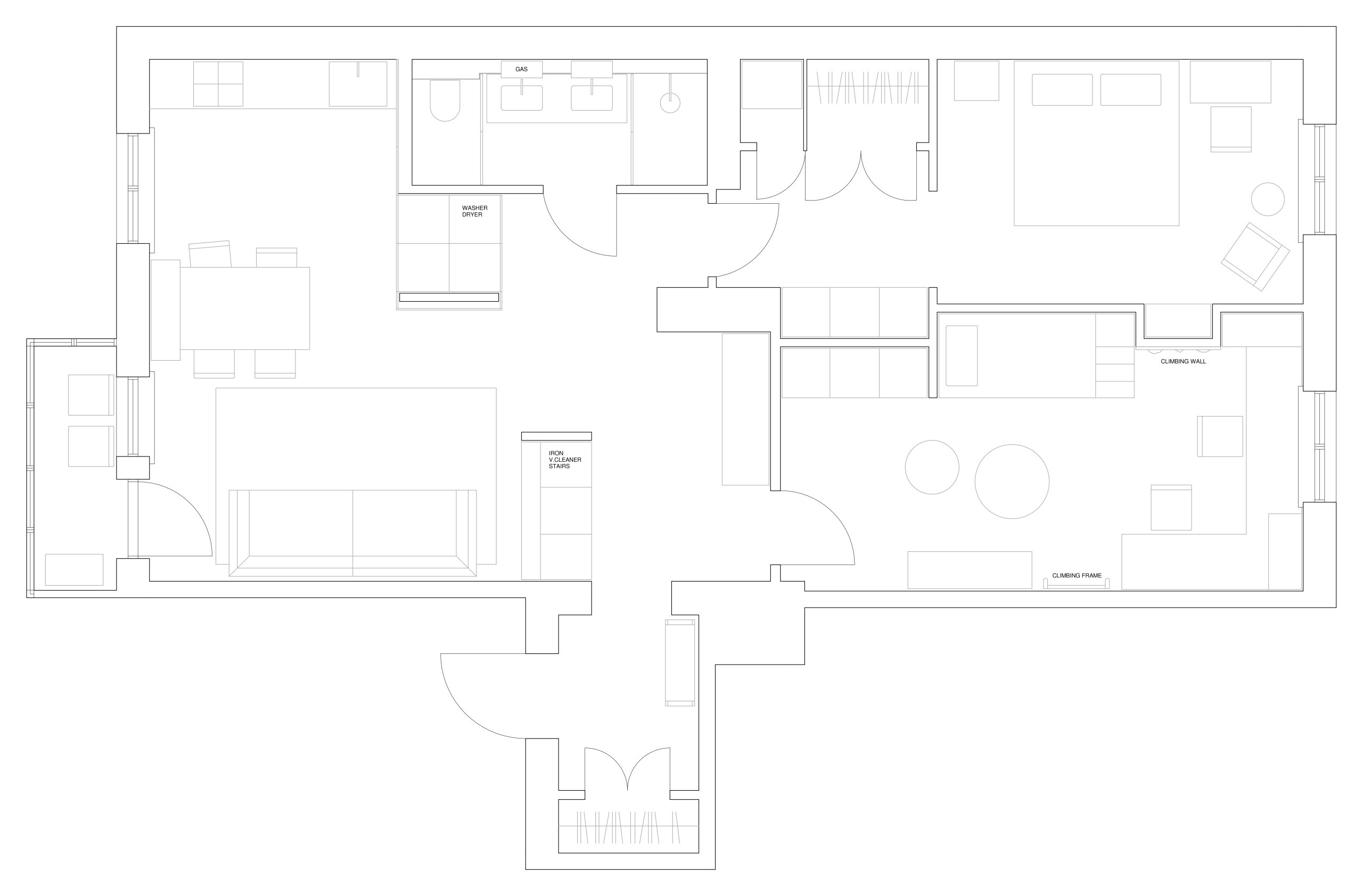
Houzz тур: Квартира в Москве, где при ремонте сохранили кухню
Евгения Назарова
12
6 февр. 2022
Обновлено 14 февр. 2022
Постоянный автор Houzz, интерьерный журналист
3 г.
3 г.

Houzz тур: Квартира в Москве, где при ремонте сохранили кухню
Евгения Назарова
12

Houzz тур: Яркий интерьер для поклонницы аниме
Евгения Назарова
27

Houzz тур: 31 кв.м — квартира с «гнездом» для кота
Houzz Россия
9

До и после: Квартира дизайнера, где ремонт сделали за неделю
Евгения Назарова
26

Houzz тур: Неоклассика в старом фонде – с цветными потолками
Евгения Назарова
26

Houzz тур: Квартира в оттенках песчаных берегов
Houzz Россия
8

Архитектура: «Пасхальный» дом в Домодедово
Евгения Назарова
25

Houzz тур: Апартаменты в духе русского авангарда
Евгения Назарова
24

Houzz тур: Светлая квартира с эркером и бронзовой кухней
Евгения Назарова
7

Houzz тур: Квартира с журавлями и экзотическими птицами
Houzz Россия
12

Houzz тур: Дом, который продали во время ремонта
Houzz Россия
19

Houzz США: Хижина в лесу Южной Каролины
Houzz Россия
12

Houzz тур: 64 кв.м — квартира в цветах блога хозяйки
Houzz Россия
15

До и после: 35 кв.м — квартира для «мамы с характером»
Houzz Россия
67

Houzz тур: Апартаменты 40 кв. м – из пробки и стеклоблоков
Евгения Назарова
31

Houzz тур: Лофт в Петербурге с домиком для собак
Евгения Назарова
30

Houzz тур: 120 кв.м — квартира с гипсовыми панелями
Евгения Назарова
7

Houzz тур: Квартира с настроением юга Франции
Евгения Назарова
11
Оля Арисеп
4 мес.