Houzz тур: Современный интерьер с глянцем и мраморной плиткой

Единственное, что заказчики попросили вписать в интерьер — огромная картина в гостиной

Евгения Назарова
Евгения Назарова

23 июня 2020

Обновлено 19 июля 2020

Постоянный автор Houzz, интерьерный журналист

Houzz тур: Современный интерьер с глянцем и мраморной плиткойАнна Маркова

Борис Бочкарев

Этот интерьер Анна Маркова создавала для двоих: дети заказчиков выросли и живут отдельно. Главным пожеланием владельцев стал спокойный современный дизайн, который не придется переделывать через пять лет, когда отдельные решения выйдут из моды. По этой причине все решения в проекте универсальные от выбора отделочных материалов до цветовой гаммы.
Houzz тур: Современный интерьер с глянцем и мраморной плиткойАнна Маркова

Борис Бочкарев

О проекте
Место:
Москва, ЖК Мосфильмовский
Размер: 108 кв. м
Кто здесь живёт: семейная пара средних лет
Дизайнер проекта: Анна Маркова, Lierne Design
Фото: Борис Бочкарев

—————————————
В ВАШЕМ ГОРОДЕ…
Через Houzz можно нанять дизайнера или архитектора в любом городе и стране. Начать поиск специалиста
—————————————
Houzz тур: Современный интерьер с глянцем и мраморной плиткойАнна Маркова
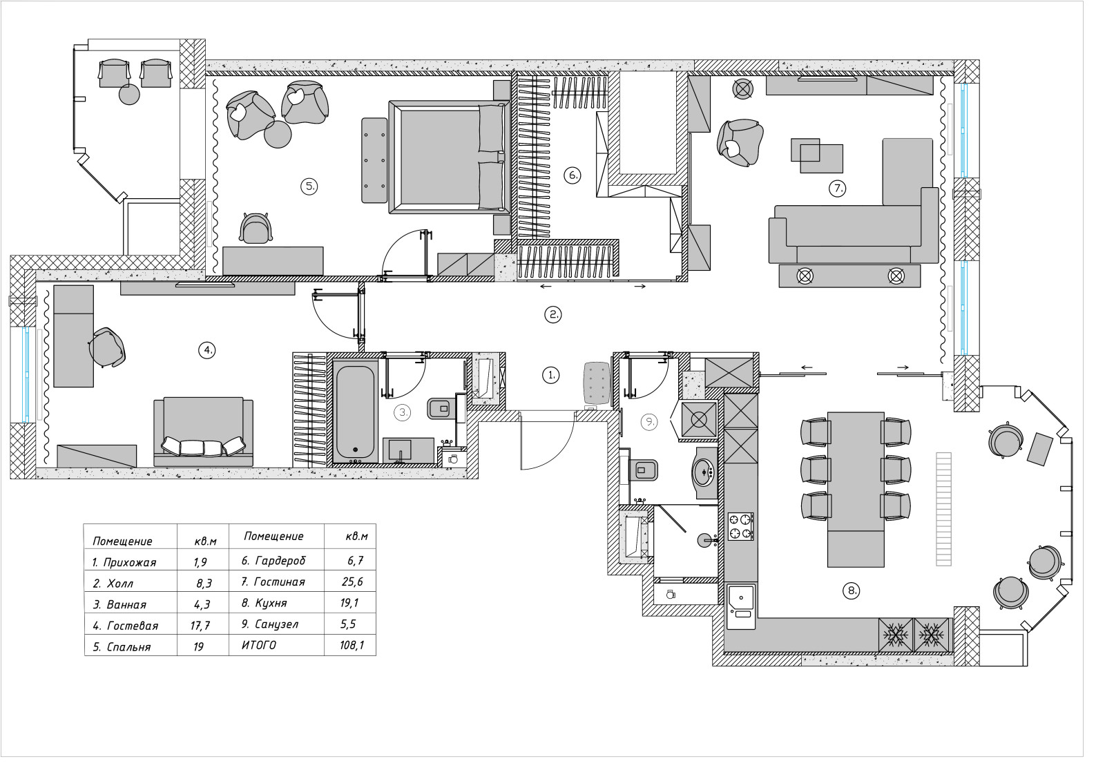
Планировка квартиры

Квартира сдавалась в бетоне, без отделок и межкомнатных перегородок. Планировка по сравнению с вариантом от застройщика почти не изменилась, внесли лишь пару изменений. Немного увеличили санузел с душевой за счёт коридора раньше на этом месте находился проход на кухню. Кухню же объединили с гостиной, но зонировали раздвижными перегородками. Во-вторых, объединили две смежных гардеробных комнаты (одна из них находилась при спальне) получилась одна большая система хранения со входом из прихожей.
Houzz тур: Современный интерьер с глянцем и мраморной плиткойАнна Маркова

Борис Бочкарев

Комод Dellagnese

ГОСТИНАЯ
Основные цвета проекта оттенки белого, серого и коричневого. Они позволили создать спокойную современную базу и стали фоном для большой картины, которую заказчики попросили вписать в интерьер.

«Место для полотна мы определили сразу, ещё на этапе создания планировки. Придумать расстановку мебели картина не помогла и не помешала: из-за расположения входа и окон было очевидно, на какой стене будет расположен телевизор», рассказывает Анна Маркова.
Houzz тур: Современный интерьер с глянцем и мраморной плиткойАнна Маркова

Борис Бочкарев

Диван Calia Italia

Проблема и решение: Из-за перепланировки в коридоре, на самой границе с кухней-гостиной, появилось небольшое пустое пространство. В него можно было встроить шкаф или нишу с полками для декора владельцы остановились на втором варианте. Конструкцию сделали на заказ по эскизам автора проекта: вертикальные секции чередуются с горизонтальными, добавляя гостиной интересную геометрию. При этом полки разной глубины из-за выступа пилона.
Houzz тур: Современный интерьер с глянцем и мраморной плиткойАнна Маркова

Борис Бочкарев

Перегородки ALSTEM

КУХНЯ
Заказчики попросили установить между кухней и гостиной перегородки, которые позволяли бы объединять или изолировать помещения. Анна предложила использовать раздвижную перегородку с зеркальным затемненным стеклом.

«В квартире частично опущен потолок, и он решает несколько задач. Опуски скрывают и ниши для шторных карнизов, и элементы установки аудиосистемы, и направляющую под раздвижные перегородки», рассказывает дизайнер.
Houzz тур: Современный интерьер с глянцем и мраморной плиткойАнна Маркова

Борис Бочкарев

Houzz тур: Современный интерьер с глянцем и мраморной плиткойАнна Маркова

Борис Бочкарев

Кухонный гарнитур Lube Cucine

Столешницу и фартук кухонного гарнитура заказали из кварца между ними нет пристеночного бортика. Из этого же материала изготовили столешницу для единой конструкции острова и обеденного стола.
Houzz тур: Современный интерьер с глянцем и мраморной плиткойАнна Маркова

Борис Бочкарев

Houzz тур: Современный интерьер с глянцем и мраморной плиткойАнна Маркова

Борис Бочкарев

Кровать и изголовье изготовлены по эскизу дизайнера, L’Hanes; прикроватные столики Faceted Mirror, HPDecor

СПАЛЬНЯ
В спальне хозяев основным акцентным элементом стало высокое, до самого потолка, изголовье кровати. Мягкие панели сделали по эскизам Анны Марковой, причём геометрия элементов напоминает раскладку встроенных полок в кухне-гостиной.
Houzz тур: Современный интерьер с глянцем и мраморной плиткойАнна Маркова

Борис Бочкарев

Houzz тур: Современный интерьер с глянцем и мраморной плиткойАнна Маркова

Борис Бочкарев

Сантехника Porcelanosa; плитка Piemmegres

ВАННАЯ КОМНАТА
Ванную комнату облицевали плиткой из разных коллекций. Мокрую зону выделили материалом с объёмным рельефом, который очень похож на натуральный камень. А вот подвесная столешница с интегрированной раковиной действительно из камня: тёмный оттенок координируется с дизайном межкомнатных дверей.
Houzz тур: Современный интерьер с глянцем и мраморной плиткойАнна Маркова

Борис Бочкарев

Мраморная плитка Petra Antiqua

САНУЗЕЛ
Второй санузел полностью оформили мрамором, но в разной конфигурации. Душевую зону облицевали мраморной плиткой, а на полу использовали мраморную мозаику.

_____________________________

ОБ АВТОРЕ ПРОЕКТА…
Перейдите на страницу дизайнера Анны Марковой, Lierne Design, чтобы изучить другие работы из портфолио.

У ВАС ЕСТЬ ДЛЯ НАС ПРОЕКТ…
Загрузите съемку в свой профиль на Houzz, отправьте ссылку с кратким описанием на RuEditors@houzz.com

Для справки: Какие объекты мы публикуем

Комментарии 14

Elena

5 л. назад

Конвектор посередине комнаты?!? Он и под окном ужасен. А тут...

Natalia Vasilyeva

5 л. назад

Интересно любят ли хозяева слушать Вагнера ? Я вот увидела прикроватные столики и комод супер , картина интересная в гостиной.Единственно не нравятся плюшевые стулья , но дизайнеры от них в восторге на этом портале ,ещё плюшевый диван туда же заменила бы .
Штаб-квартира... Как-то безжизненно

Похожие статьи

Статьи скоро появятся

Похожие дискуссии

Дискуссии скоро появятся

Лучшие статьи — раз в неделю на почту

Способ подписки скоро появится