logo
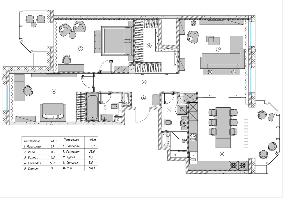
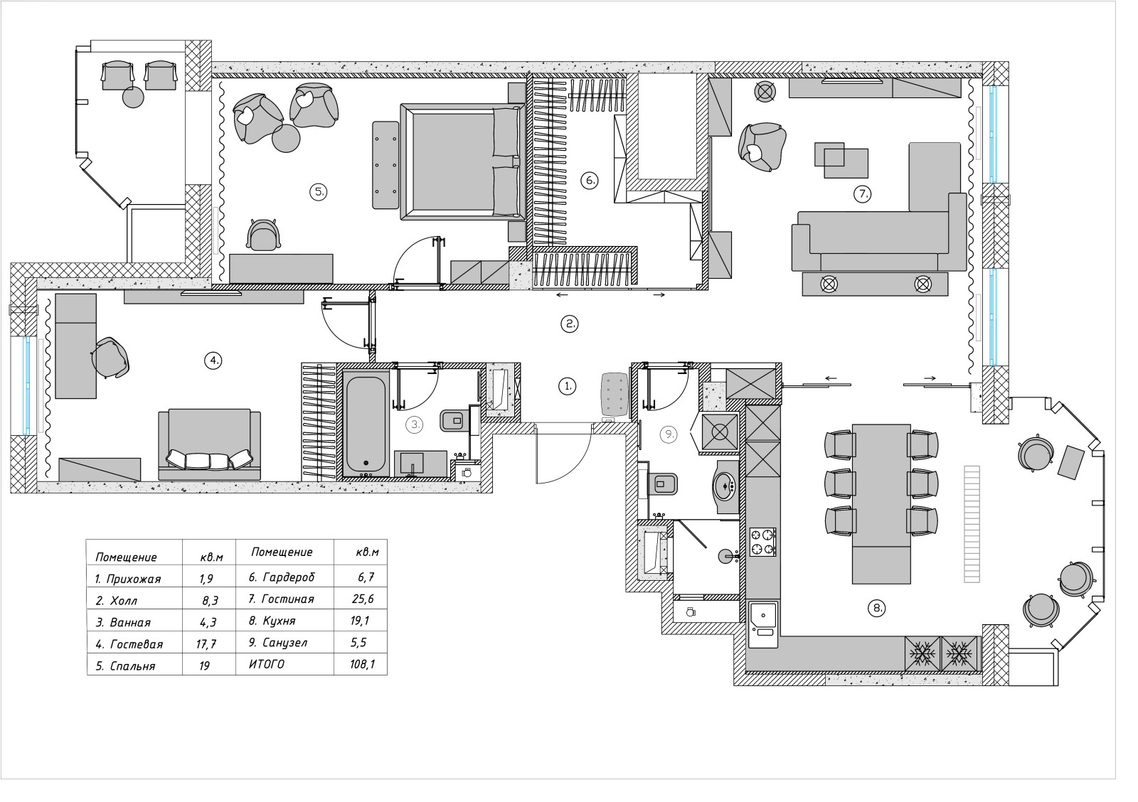
Квартира в ЖК Мосфильмовский 108 кв.м

Другие фотографии в проекте Квартира в ЖК Мосфильмовский 108 кв.м

Вопросы к фото 0

Задайте вопрос

Вам ответят эксперты. Пришлем уведомление, когда вам ответят

Москва