logo

Houzz тур: Неоклассика для двоих на 27 этаже

Эксцентрично организованная семейная библиотека и авторская живопись на стенах московской новостройки

Евгения Назарова
Евгения Назарова

17 июля 2015

Обновлено 20 сент. 2015

Постоянный автор Houzz, интерьерный журналист

Чтобы воплотить мечты владельцев об уютном интерьере для двоих, дизайнер Ольга Черненко выбрала современный стиль с элементами неоклассики и расставила оригинальные акценты: от авторской живописи до нестандартной раскладки книг в домашней библиотеке. Одна из эффектных особенностей конструктива дома огромные окна три на два метра продиктовала необходимость не перегружать пространство, чтобы естественный свет мог спокойно заполнять пространство квартиры. Стены во всех комнатах выкрасили краской светлых оттенков, на пол уложили массивную доску из дуба на таком фоне особенно выразительно смотрятся деликатные декоративные решения, предусмотренные автором проекта.

О проекте
Место:
Москва, ЖК Авеню 77
Размер: 101 кв.м
Кто здесь живет: семейная пара
Автор проекта: Ольга Черненко
Фото: Алексей Князев
Houzz тур: Неоклассика для двоих на 27 этаже
Houzz тур: Неоклассика для двоих на 27 этаже
Единственная несущая стена, открытая планировка, периметр в бетоне и очерченные застройщиком мокрые зоны квартира в многоэтажном жилом комплексе в Чертаново к началу ремонта выглядела вполне типично для современной новостройки. После обстоятельного обсуждения дизайнер Ольга Черненко предложила заказчикам планировку, которая включала все необходимые семейной паре элементы зонирования.

Современный стиль с элементами неоклассики появился в интерьере с подачи заказчиков. Итоговая концепция родилась благодаря смешению спокойных природных оттенков с фактурными, цепляющими взгляд элементами декора.
Houzz тур: Неоклассика для двоих на 27 этаже
Houzz тур: Неоклассика для двоих на 27 этаже
Идея объединения кухни, столовой и гостиной в общую зону показалась очевидным и Ольге, и хозяевам. Именно хозяева предложили визуально отделить кухню барной стойкой; на нее вынесли варочную панель и обустроили столешницу из однотонного кориана (искусственный отделочный камень) для ужинов на двоих.

Кухонную секцию оформили шпоном в оттенках шоколада и светлого дерева такое сочетание очень понравилось владельцам. По словам дизайнера, самой хитрой задачей при обустройстве кухни оказался выбор холодильника: хозяева отказались от встроенного варианта и сделали выбор в пользу модели со стеклянным, иссиня-черным фасадом.

Кухонный гарнитур: Nika, Giulia Novars
Houzz тур: Неоклассика для двоих на 27 этаже
Houzz тур: Неоклассика для двоих на 27 этаже
Совмещенная с гостиной кухня требовала мощной вытяжки: ее подобрали как акцент и контраст к изящным классическим потолочным светильникам Eichholtz. Для семейных и дружеских вечеров в центре зала организовали полноценный столовый гарнитур, а лаунж-зону вынесли ближе к окну.

Пилон напротив гостевого дивана возвели специально, чтобы встроить домашний кинотеатр; эту ось подчеркнули двумя боковыми стеллажами с китайскими вазами. Вся живопись в интерьере авторские работы Ольги Черненко.

Кресла, стеклянная консоль: Eichholtz; обеденный стол и стулья: ИКЕА
Houzz тур: Неоклассика для двоих на 27 этаже
Houzz тур: Неоклассика для двоих на 27 этаже
Прихожая, из которой можно попасть в гостиную и кабинет, стала одной из самых визуально динамичных зон в квартире во многом благодаря геометричным черно-белым плиткам.

Огромный встроенный шкаф с темными стеклами не только вмещает всю верхнюю одежду, но и работает на эффект глубины: в темном стекле отражаются элементы отделки.
Houzz тур: Неоклассика для двоих на 27 этаже
Houzz тур: Неоклассика для двоих на 27 этаже
Для спальни в плане выделили 14,5 кв.м. Чтобы не перегружать пространство шкафами, рядом обустроили проходную гардеробную через нее можно попасть и в гостиную, и в мастер-ванную. А вот объемный книжный шкаф стал оригинальным декоративным элементом композиции.

Хозяева квартиры — владельцы внушительной библиотеки старых книг с потрепанными цветными корешками. Чтобы не разрушать гармонию пастельных оттенков, книги разложили корешками к стене: непосвященный человек в такой библиотеке, конечно, растеряется, но хозяева знают внутреннюю логику расстановки и при желании легко доберутся до нужного тома.

В оформлении окон Ольга решила обойтись без тюля: на 27 этаже владельцам не от кого прятаться. Не являясь поклонниками штор с блэкаутом (защитой от солнечных лучей), они предпочли хлопковую ткань. Изголовье из микрофибры дополнили текстилем в тон от Zara Home.

Кровать: Tomasella; кресло: Eichholtz; люстра: Blitz; прикроватные светильники: Sylcom
Houzz тур: Неоклассика для двоих на 27 этаже
Houzz тур: Неоклассика для двоих на 27 этаже
Кабинет в лазурных тонах выполняет одновременно и функции гостевой комнаты. «Обычно яркие тона появляются в классических интерьерах в качестве акцента, но мы решили уйти от традиционной схемы, пояснила Ольга. К тому же, голубые оттенки приносят ощущение прохлады: этот эффект актуален для кабинета, где нужно сохранять свежесть мысли даже погожим летним днем». Необычный оттенок стен дополнила белизна мебели и плинтусов так в интерьере появился легкий намек на морскую тематику, который поддержали аксессуары, расставленные на подвесном стеллаже.

Настоящая находка дизайнера стеллаж, обрамленный багетом. Сам белый каркас приехал из ИКЕА, но благодаря резной раме в нем сложно узнать продукт массового производства. Кроме того, багет ставит в интерьере еще один арт-акцент и отлично рифмуется с произведениями искусства. Что касается систем хранения, то в кабинете-гостевой ставку снова сделали на встроенные шкафы.
Houzz тур: Неоклассика для двоих на 27 этаже
Houzz тур: Неоклассика для двоих на 27 этаже
В просторной ванной решили не размещать ничего лишнего, даже отказались от объемных светильников в пользу спотов Massive. Столешницу под раковиной сделали на заказ из искусственного камня кориана.

Ванна: Gruppo Treesse Epoca; накладная раковина: Hidra Lodge
Houzz тур: Неоклассика для двоих на 27 этаже
Houzz тур: Неоклассика для двоих на 27 этаже
Гостевой санузел тоже оформили в нейтральных оттенках, которые подчеркивают рельеф настенного керамогранита Cerdomus Lily. Под столешницей из искусственного камня спрятали стиральную машину и две тумбочки, а для душевой кабины выбрали стекло со специальным покрытием против образования капель.
Houzz тур: Неоклассика для двоих на 27 этаже
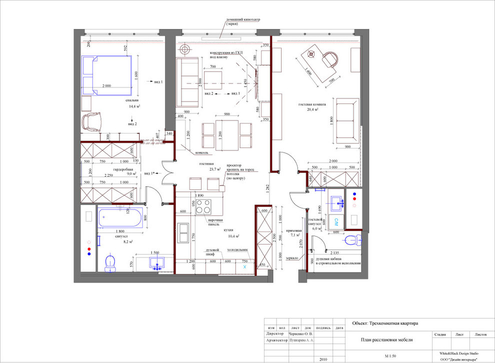
План квартиры с расстановкой мебели

Квадратное в плане помещение разделили на три логических части. Входную зону отделил от кухни-гостиной открытый проем; левую треть помещения заняли приватные комнаты спальня с гардеробной и ванной комнатой, а в правой разместили кабинет и гостевой санузел.

ПРЕДЛОЖИТЕ СВОЙ ПРОЕКТ ДЛЯ ПУБЛИКАЦИИ…
Загрузите фотосъемку в свой профиль на Houzz.ru, отправьте ссылку и краткое описание проекта на editorial@flatica.ru.

Мы обязательно свяжемся с вами, если примем решение о публикации.

Комментарии 2

Позавидовала размеру окон...Класс!
Очень классная кухня с гостиной. Можете подсказать, пожалуйста, что за светильники висят нал обеденным столом – сейчас очень популярны Вызвал вопросы кабинет – на мой взгляд не совсем органично смотрится с остальной квартирой.

Оставьте комментарий

Читать похожие статьи