Houzz тур: Маленькая квартира — 43 кв.м цвета шафрана

Перегородку между кухней и комнатой «сносили» только на бумаге

Светлана Лянгасова
Светлана Лянгасова

25 окт. 2017

Обновлено 11 янв. 2018

МинимализмПостоянный автор Houzz, журналист. Обладатель двух премий «Признание» и множества именных грамот за победы в журналистских конкурсах, организованных госструктурами. В интерьере ценю функциональность. Считаю, что форма и цвет должны привносить в обстановку не только индивидуальность, но и уют.

О проекте
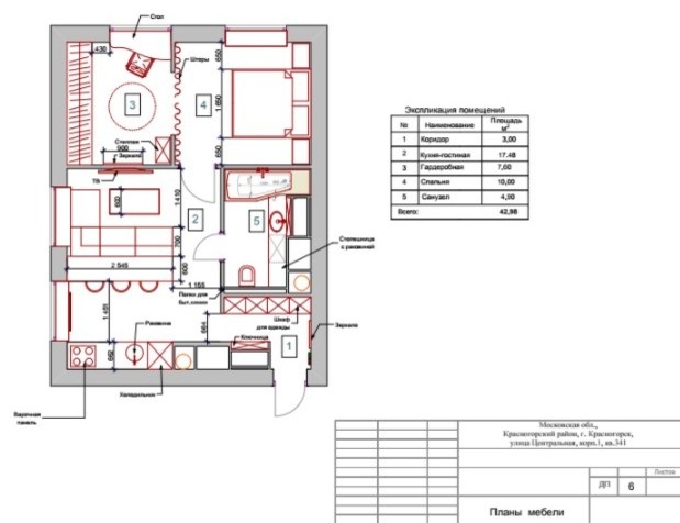
Место: Красногорск, Московская область
Размер: 43 кв.м; высота потолков — 2,8 кв.м
Кто здесь живет: молодая пара без детей
Автор проекта: Евгения Веревкина
Фото: Ольга Рыкли

На скромной площади дизайнера попросили разместить спальню, кухню, гостиную и обеденную зону, не забыв о просторной гардеробной.
Планировка квартиры площадью 43 кв.м

Евгения начала работу с небольшой перепланировки, убрав стену между кухней и гостиной. Пыли было немного, потому что процесс шел исключительно на бумаге. Застройщик лишь запланировал перегородку, а ставить её должны были хозяева после сдачи дома в эксплуатацию.

«Мы просто решили не возводить эту перегородку, — рассказывает дизайнер. — Если бы мы не объединили два помещения, у нас не хватило бы места, чтобы организовать кухню, гостиную и обеденную зону с большим столом, как просили заказчики».
На фото: кухонный гарнитур выполнен по чертежам дизайнера в мастерской «Все о купе»
На фото: фрагмент фартука на кухне из плитки Porcelanosa
Проблема и решение: Хозяева хотели большой обеденный стол, за которым можно было бы разместить множество гостей. Однако места в гостиной было недостаточно для подобной мебели. Евгения пошла на хитрость: разделила пространство комнаты с помощью стойки, высота которой равна высоте обычного стола.

Когда приходят гости, можно развернуть диван лицом к кухне, чтобы сесть за стол с любой стороны.
Узорная резьба на предметах интерьера появилась по просьбе хозяйки, которая очень любит колорит восточных стран. Ей нравится все сразу: и цвета индийский пряностей, и оттенки самоцветов, которые предлагают восточные торговцы, и отголоски марокканского стиля. Зная об этом, Евгения привнесла в интерьер каждой зоны восточные мотивы.
На фото: подвесные светильники Arte Lamp
На фото: краска на стенах Oikos

Идея и решение: Чтобы зрительно расширить кухню-гостиную, дизайнер попросила рабочих выкрасить поверхности в разные цвета, которые хорошо отражают свет. Самая светлая краска пошла на потолок, самая темная бежевая — на стену за телевизором, остальное покрыли светло-бежевым тоном. За счет цвета граница между потолком и стеной практически стерлась, и пространство вытянулось по высоте.
На фото: работы владелицы квартиры

Хозяйка увлекается фотографией, и для её работ выделили место над телевизором. Черно-белые снимки в строгих рамках обыгрывают черный экран телевизора и отвлекают от него внимание.
На фото: обои Еijffinger; кровать «Огого обстановочка!», тумбы Loft Design, светильники N-Light

Небольшую спальню Евгения наполнила колоритом восточных специй и самоцветов. В текстиле угадываются оттенки шафрана и куркумы, бирюзы и лазурита, а также сердолика и коралла.
Проблема и решение: Заказчики просили сделать отдельную спальню и большой шкаф для хранения одежды. Но две комнаты узкой и вытянутой формы были слишком маленькими, чтобы вместить все желаемое.

Евгения предложила частично соединить помещения и превратить одно из них в гардеробную с функцией кабинета. Подоконник трансформировался в письменный стол.
На фото: шкаф сделан из МДФ

Застройщик лишь наметил перегородки между комнатами, поэтому возводить их пришлось строительной бригаде во время ремонта. Мастера сложили стену из гипсокартона с марокканской аркой.
На фото: столешница под раковину сделана на заказ из искусственного камня; сантехника Villeroy & Boch; светильники Novotech

Площадь небольшой ванной комнаты использовали по максимуму. На 5 кв.м расположили не только ванну и остальную сантехнику, но и множество мест для хранения. За распашными дверцами скрываются полки для инструментов и бытовой химии. Полотенца и ванные принадлежности хозяева могут хранить в ящиках под столешницей раковины.

Вместо обычного зеркала над раковиной Евгения установила шкаф с зеркальными фасадами. В одном секторе расположился счетчик воды, а остальные три хозяйка заполнила косметическими средствами.
СМОТРИТЕ ТАКЖЕ…
Другие проекты того же автора — в портфолио Евгении Веревкиной

У ВАС ЕСТЬ ДЛЯ НАС ПРОЕКТ…

Загрузите съёмку в свой профиль на Houzz, отправьте ссылку с кратким описанием на editorial@flatica.ru

Для справки: Какие объекты мы публикуем

Комментарии 41

Фото отрывочные,кусками, синяя к комната со стеллажом в виде квадратов это что? Стол-подоконник,фото где?
Тот случай, когда желания расходятся с возможностями. Можно, конечно, попробовать в маленькой квартире и дворцовый стиль)
fedorka63

7 л.

как -то не сложилось

Оставьте комментарий

Читать похожие статьи