logo

Houzz тур: Квартира в красках осени для двоих

Этот интерьер создавался, как живописное полотно, где главная роль у осенних оттенков

Houzz Россия
Houzz Россия

19 июля 2021

Обновлено 16 авг. 2021

Заказчики — супружеская пара, дети которой выросли и живут отдельно — приобрели для себя небольшую квартиру в новом доме с качественной архитектурой. И попросили дизайнера Татьяну Аленину создать пространство, в котором им было бы уютно и просторно жить вдвоем, и где они могли бы с комфортом принимать гостей.
Houzz тур: Квартира в красках осени для двоихТатьяна Аленина
О проекте
Место: Москва, ЖК «1147», метро «Алексеевская»
Год: 2020
Размер: 72 кв.м
Кто здесь живет: супружеская пара
Дизайнеры проекта: Владимир Красильников и Татьяна Аленина, «Дизайн-бюро Татьяны Алениной»
Фото: Сергей Красюк
Houzz тур: Квартира в красках осени для двоихТатьяна Аленина
«Работа над проектом проходила во время пандемии весной 2020 года. Заказчики, свободные по духу и вкусам люди, быстро принимали решения, и, несмотря на карантин, все двигалось легко и быстро», — вспоминает Татьяна Аленина.

———————–
СПРОСИТЕ У ДИЗАЙНЕРА НАПРЯМУЮ
Есть уточняющие вопросы? Хотите заказать свой проект дизайнерам этой квартиры? Свяжитесь с авторами проекта в один клик
———————–
Houzz тур: Квартира в красках осени для двоихТатьяна Аленина
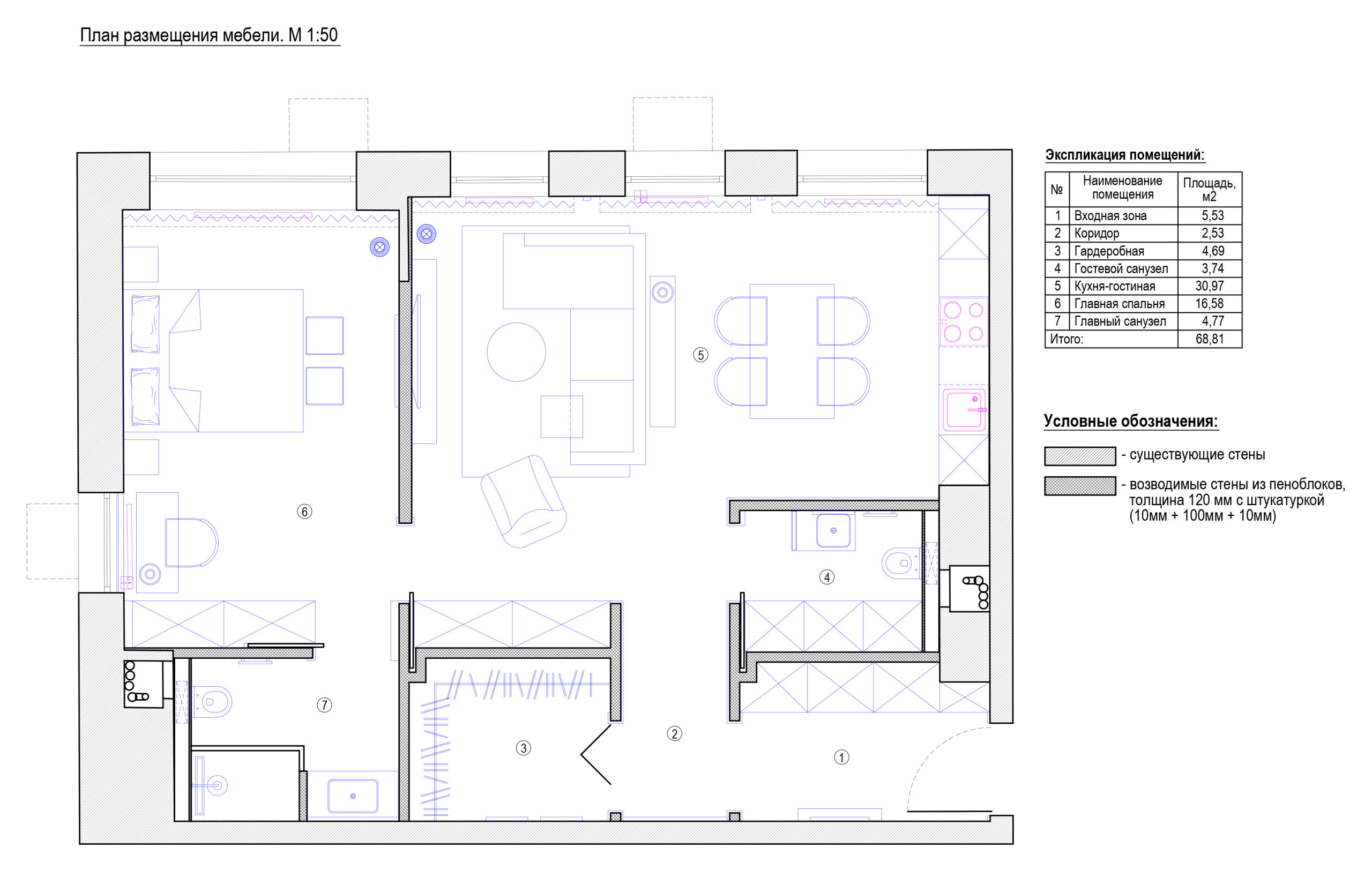
Планировка

Квартира имела хорошие исходные данные для работы с планировкой — прямоугольное пространство с четырьмя высокими окнами на одной стене и одним торцевым. Из двух вариантов планировки — более-менее классического и второго, образующего единое функциональное пространство, заказчики выбрали последний. Здесь шкафы являются стенами, а раздвижные двери создают ощущение большего, чем на самом деле, пространства. На 72 кв.м удалось организовать кухню-столовую-гостиную, спальню, два санузла, вместительную гардеробную и большую входную зону.
Houzz тур: Квартира в красках осени для двоихТатьяна Аленина
Главным пожеланием заказчицы был интерьер в красках осени. Поэтому в цветовую палитру квартиры включили разные оттенки осенней природы: оранжевый, рябиновый, брусничный, коричневый, лавандовый, черничный, краснеющих кленовых листьев. В итоге получилось теплое, осеннее пространство.

«Мы любим работать с цветными проектами. Хотя в небольшое пространство добавили много цвета, все оттенки живут здесь гармонично. Нам было интересно все красиво и мягко разложить: чтобы не было ничего кричащего и в то же время можно было насладиться цветом», — объясняет Татьяна.
Houzz тур: Квартира в красках осени для двоихТатьяна Аленина
ГОСТИНАЯ
С помощью единого для всей квартиры цветового решения удалось создать пространство, которое визуально не делится на отдельные помещения. Стены, встроенные шкафы, панели на стенах, двери и портьеры на окнах создают нейтральную оболочку из оттенков земли и песка разной степени насыщенности и служат фоном для ярких акцентов.
Houzz тур: Квартира в красках осени для двоихТатьяна Аленина
Текстиль Holland & Sherry; карнизы Interstil; торшер Bert Frank; настольная лампа Heathfield & Co

В качестве акцентов добавили фиолетовый цвет в фасады шкафа напротив дивана, черничный, рябиновый и оранжевый — в аксессуары, пуфы, подушки, обивки и портьеры. А главный акцент здесь — настольная лампа, напоминающая по цвету и форме облепиху.

Стены и потолки во всей квартире покрасили в оттенок Marne английской краской Argile. «Мы давно предлагаем в маленьких квартирах красить стены и потолок в один цвет. При таком решении стираются ненужные границы, и интерьер смотрится более цельным и светлым», — рассказывает дизайнер.
Houzz тур: Квартира в красках осени для двоихТатьяна Аленина
Кухня Leicht; стол Porada; стулья Minotti; люстра Bert Frank; аксессуары: салон «Предметы» и GK Concept; технический свет Delta Light

КУХНЯ
Кухня песочного, более светлого, чем стены и потолок, оттенка служит фоном для акцентной по цвету обеденной группы с темно-коричневым столом и стульями с кожаными спинками черничного цвета и льняными сиденьями оттенка рябины.
Houzz тур: Квартира в красках осени для двоихТатьяна Аленина
Фартук и столешница сделаны из матового кварцита бежевого оттенка

Заказчики, понимая важность натуральных материалов, вложились в качественные столярные изделия. Поэтому шкафы не только снаружи, но и внутри покрыты шпоном. Произведения искусства и красивый свет подчеркивают характер и образ интерьера. Деликатно использованная в светильниках бронза добавляет приглушенных осенних красок и благородного блеска.
Houzz тур: Квартира в красках осени для двоихТатьяна Аленина
На фото: для улучшения инсоляции сделали анфиладу, завершающуюся окном в спальне; ковер Jan Kath, Kover Buro

Ковер, который включает множество оттенков — брусничный, оранжевый, коричневый, землистый, лавандовый и небесно-голубой, — выбрали в конце проекта
Houzz тур: Квартира в красках осени для двоихТатьяна Аленина
На фото: на заднем плане зеркало в прихожей; все столярные изделия изготовлены в «Творческой мастерской Сергея Карташева»

Раздвижные двери экономят пространство, объединяют и разделяют его при необходимости, а также придают квартире целостность, переходя в панели на стенах и встроенные шкафы.

«Обычно в небольших квартирах мы делаем двери, встроенные шкафы и панели на стенах одного цвета и из одного материала. В этой квартире они покрыты шпоном светлого песочно-землистого оттенка. Пол близок им по цвету», — объясняет Татьяна.
Houzz тур: Квартира в красках осени для двоихТатьяна Аленина
Диван, пуф, кресло и столик Minotti

«Квартира, несмотря на всю строгость архитектуры и брутальность, получилась очень мягкой по настроению: в ней много женского тепла, красоты и энергии самой заказчицы», — делится Татьяна.
Houzz тур: Квартира в красках осени для двоихТатьяна Аленина
ГОСТЕВОЙ САНУЗЕЛ
Недостаток квартиры углом врезающийся в гостиную санузел. Чтобы избежать ощущения врывающегося помещения, применили архитектурное решение объем в объеме. При закрытой двери санузел воспринимается как отделанное столярными панелями продолжение пространства гостиной.
Houzz тур: Квартира в красках осени для двоихТатьяна Аленина
А при открытой двери добавляет гостиной ярких осенних красок и становится ее украшением. Стены и потолок санузла, как коробочка, покрашены в землисто-оранжевый оттенок. Плитка на стенах и на полу несет чуть более открытый цвет, оттенок красных осенних листьев.

В то же время санузел мягко входит в общее пространство. Именно поэтому здесь не сияющая белизной, а серо-бежевая сантехника. И нет блеска смесителей, зато есть многочисленные черные акценты, добавляющие санузлу графичности и выразительности: смеситель, полотенцесушитель, металлические светильники, выключатели и аксессуары.
Houzz тур: Квартира в красках осени для двоихТатьяна Аленина
Светильник Vibia; плитка Mutina; сантехника Cielo; смеситель и аксессуары: Zucchetti; краска Argile, оттенок Luberon, www.manders.ru

Отказаться от гостевого санузла не могли, поскольку заказчикам нужен был совмещенный с постирочной второй санузел. Стирально-сушильная машина и множество хозяйственных вещей, включая гладильную доску, пылесос и швабры, разместились в огромном шкафу длиной 2.2 м — от пола до потолка. Более мелкие вещи хранятся над унитазом, в шкафу с оранжевыми фасадами.
Houzz тур: Квартира в красках осени для двоихТатьяна Аленина
СПАЛЬНЯ
Когда раздвижные двери шкафа закрыты, он выглядит как ровная стена. Наверху, за решетками, спрятан кондиционер. За раздвижной дверью слева от шкафа находится санузел.
Houzz тур: Квартира в красках осени для двоихТатьяна Аленина
На фото слева: санузел при открытой двери
Houzz тур: Квартира в красках осени для двоихТатьяна Аленина
Спальне добавили красок c помощью лавандового изголовья изо льна, брусничных декоративных подушек, рябинового постельного белья и портьер с растительным рисунком фиолетово оттенка. Все вместе они смотрятся мягко и гармонично. А черные розетки и бра для чтения добавляют графики.
Houzz тур: Квартира в красках осени для двоихТатьяна Аленина
Кровать Meridiani; тумбочки Porada; бра для чтения Davide Groppi; подвесные светильники Bert Frank; постельное белье и арт-объект над кроватью салон «Предметы»; портьеры Johnstons of Elgin

Римская штора светло-черничного цвета сшита из такого же материала, как основные портьеры.
Houzz тур: Квартира в красках осени для двоихТатьяна Аленина
Арт-объект из металлических прутиков в форме солнца и свисающие с потолка светильники добавляют спальне мягкого блеска бронзы и делают прохладный песочный цвет стен теплее, ярче и насыщеннее будто песок оживает под лучами солнца.
Houzz тур: Квартира в красках осени для двоихТатьяна Аленина
Пуфы Minotti; картина Ольги Тобрелутс из проекта «Летнее платье», Marina Gisich Gallery

Заказчики не были уверены в правильности выбора картины для спальни. Но когда увидели её непосредственно в интерьере, им очень понравилось. Оказалось, что приятно просыпаться и видеть напротив большое красивое полотно с жизнерадостной палитрой.
Houzz тур: Квартира в красках осени для двоихТатьяна Аленина
Стул Minotti; настольная лампа Bert Frank; встроенная мебель сделана по эскизам дизайнеров в «Творческой мастерской Сергея Карташева»

В спальне около окна организовали комфортное рабочее место для хозяйки.
Houzz тур: Квартира в красках осени для двоихТатьяна Аленина
Рядом с рабочим столом в шкафу находятся полки с книгами, папками, тетрадками, принтером, розетками, аксессуарами для шитья. Сидя за столом, хозяйка может открыть дверь шкафа и достать все необходимое. Спальня при закрытой двери шкафа настраивает на отдых, при открытой на работу и творчество.
Houzz тур: Квартира в красках осени для двоихТатьяна Аленина
САНУЗЕЛ
Заказчики отказались от ванны в пользу душа. Плитку разных оттенков от светло-песочного до белого, более теплую и холодную, потемнее и посветлее сложили в красивый ансамбль.
Houzz тур: Квартира в красках осени для двоихТатьяна Аленина
Бра &Tradition; плитка Mutina; смеситель Zucchetti; аксессуары Zara Home

В покрытой шпоном тумбе и шкафчике над унитазом удалось разместить много необходимого.
Houzz тур: Квартира в красках осени для двоихТатьяна Аленина
ПРИХОЖАЯ
В прихожей расположился большой встроенный шкаф для сезонной одежды. Он смотрится одним целым со стенами и дверями, и только длинные вертикальные ручки говорят о наличии шкафа. Внутри есть ниша для всевозможных мелочей и ниша с кожаным сидением, куда можно присесть, надевая и снимая уличную обувь. Обувь хранится в ящике под сидением.
Houzz тур: Квартира в красках осени для двоихТатьяна Аленина
Гардеробная Rimadesio; столярные изделия «Творческая мастерская Сергея Карташева»

ГАРДЕРОБНАЯ
В гардеробную установили дверь-гармошку. Этот вариант двери оказался самым удобным при отсутствии стены, куда можно было бы задвигать раздвижные двери.
———————————————
В ВАШЕМ ГОРОДЕ…
Через Houzz можно нанять дизайнера или архитектора в любом городе и стране. Начать поиск специалиста
———————————————

У ВАС ЕСТЬ ДЛЯ НАС ПРОЕКТ…
Загрузите съёмку в свой профиль на Houzz, отправьте ссылку с кратким описанием на editorial@flatica.ru

Для справки: Какие объекты мы публикуем

Комментарии 17

gudoscha

4 г.

На редкость унылая квартира! Как это развидеть?!.. У меня от одних картинок депрессия началась...не представляю, как там жить... Все цвета какие-то грязные и тусклые - тут, скорее, не яркая осень, а межсезонье между осенью и зимой - с её грязью и уже перепревшей блёклой листвой.
Очень интересная квартира, такие цвета тёплые! Мне очень нравится
Замечательно получилось. Очень гармонично!

Оставьте комментарий

Читать похожие статьи