
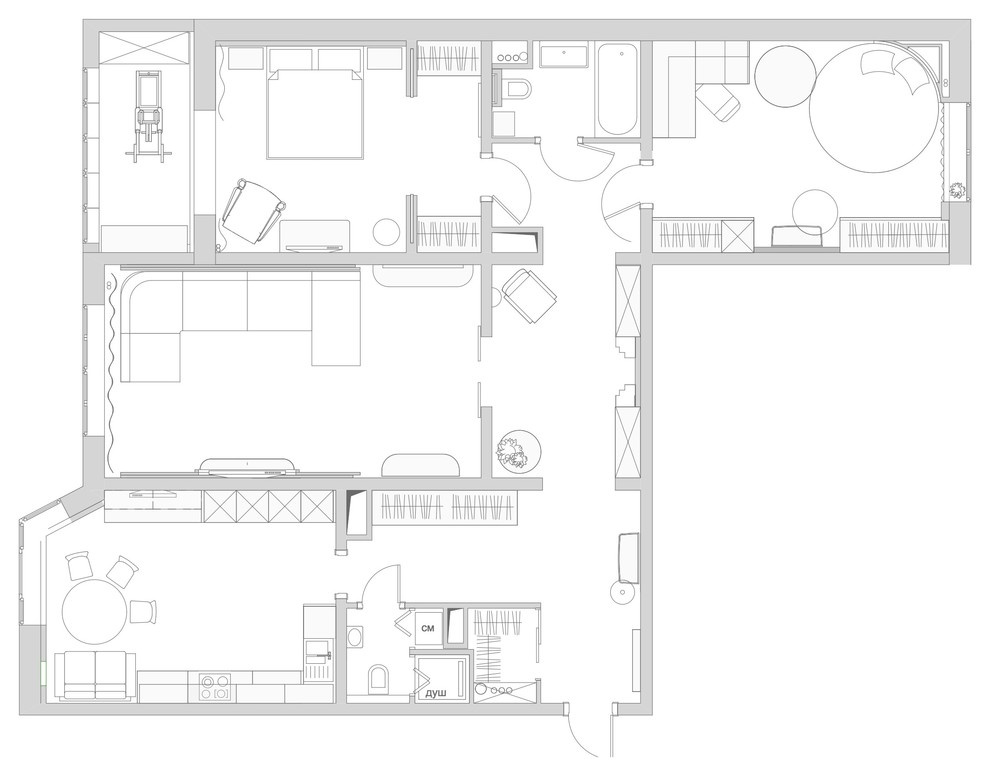
Houzz тур: Современный ар-деко для молодой семьи
Евгения Назарова
15
24 янв. 2016
Обновлено 1 мар. 2016
Постоянный автор Houzz, интерьерный журналист
9 л.

Houzz тур: Современный ар-деко для молодой семьи
Евгения Назарова
15

Houzz тур: 200 кв.м— квартира пары с тремя гардеробными
Houzz Россия
13

Houzz тур: Квартира в новом доме с атмосферой старого Петербурга
Houzz Россия
14

Houzz тур: Монохромная квартира для юриста в Екатеринбурге
Евгения Назарова
19

Houzz тур: Минимализм, неоклассика и редкие сорта камня
Евгения Назарова
14

Houzz тур: П-44Т — квартира 38 кв.м. для отдыха и уединения
Houzz Россия
15

Houzz тур: Прованс посреди индустриальной Москвы
Houzz Россия
16

Houzz тур: 52 кв.м — чёрно-белая квартира с малиновыми акцентами
Евгения Назарова
15

До и после: Квартира в бывшем заводском корпусе — в центре Москвы
Евгения Назарова
35

Houzz тур: 114 кв.м с кухней в стиле «брутальная бабушка»
Евгения Назарова
34

Houzz тур: Квартира с отсылками к неоклассике
Houzz Россия
31

Houzz тур: Интерьер с картиной из гипсокартона
Евгения Назарова
42

Houzz Москва: квартира в старом фонде — для пары французов
Евгения Назарова
14

Houzz тур: Строгая квартира для мамы с дочкой
Houzz Россия
19

До и после: «Трёшка» в доме П-44Т для мамы и дочери
Евгения Назарова
42

До и после: Из трёшки и однушки П44Т — большая квартира для семьи
Евгения Назарова
34

Houzz тур: Нежная классика для семьи с тремя дочерьми
Евгения Назарова
18

Houzz тур: Сталинка с коллекцией скандинавского стекла
Евгения Назарова
28
Арина Птичкина
3 г.