
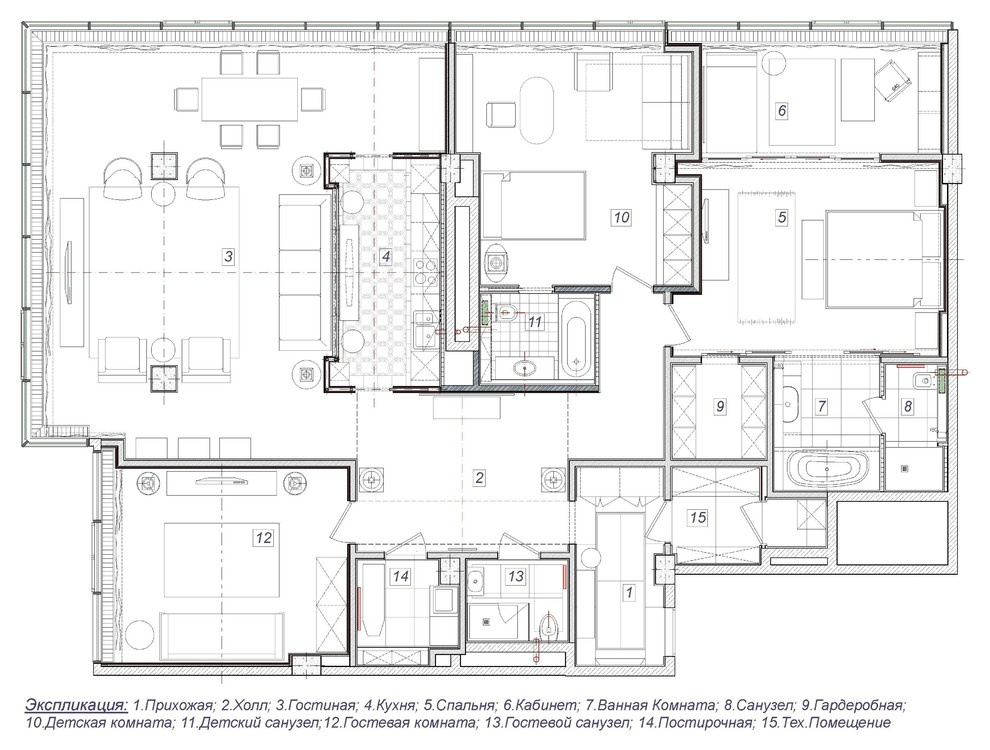
Houzz тур: Квартира в Москве, где при ремонте сохранили кухню
Евгения Назарова
13 дек. 2016
Обновлено 5 окт. 2017
8 л.
8 л.

Houzz тур: Квартира в Москве, где при ремонте сохранили кухню
Евгения Назарова

Houzz тур: Яркий интерьер для поклонницы аниме
Евгения Назарова

Houzz тур: 31 кв.м — квартира с «гнездом» для кота
Houzz Россия

До и после: Квартира дизайнера, где ремонт сделали за неделю
Евгения Назарова

Houzz тур: Неоклассика в старом фонде – с цветными потолками
Евгения Назарова

Houzz тур: Квартира в оттенках песчаных берегов
Варвара Еремеева

Архитектура: «Пасхальный» дом в Домодедово
Евгения Назарова

Houzz тур: Апартаменты в духе русского авангарда
Евгения Назарова

Houzz тур: Светлая квартира с эркером и бронзовой кухней
Евгения Назарова

Houzz тур: Квартира с журавлями и экзотическими птицами
Елена Амбросимова

Houzz тур: Дом, который продали во время ремонта
Елена Амбросимова

Houzz США: Хижина в лесу Южной Каролины
Houzz Россия

Houzz тур: 64 кв.м — квартира в цветах блога хозяйки
Варвара Еремеева

До и после: 35 кв.м — квартира для «мамы с характером»
Варвара Еремеева

Houzz тур: Апартаменты 40 кв. м – из пробки и стеклоблоков
Евгения Назарова

Houzz тур: Лофт в Петербурге с домиком для собак
Евгения Назарова

Houzz тур: 120 кв.м — квартира с гипсовыми панелями
Евгения Назарова

Houzz тур: Квартира с настроением юга Франции
Евгения Назарова
webuser_568054632
7 л.