logo

Houzz тур: Квартира по мотивам лофта

В проекте так много индустриальных деталей, что авторы в шутку прозвали его «квартирой, которой хочется быть лофтом»

Екатерина Перминова
Екатерина Перминова

28 авг. 2017

Обновлено 29 нояб. 2017

Постоянный автор HouzzRu, журналист

Houzz тур: Квартира по мотивам лофтаВиктория Харченко
О проекте
Место: г. Москва, ул. Пресненский Вал
Год: 2017
Размер: 80,35 кв.м
Кто здесь живет: Станислав Калинкин, генеральный директор продюсерского центра Иосифа Пригожина
Авторы проекта: Виктория и Юрий Харченко, Студия дизайна Four rooms
Фото: Марк Кожура

В этом проекте многое взято от индустриального стиля: открытое пространство, кирпич, дерево, промышленные светильники. Правда, Виктория и Юрий смягчили жесткость характерных материалов: вместо грубого бетона использовали декоративную штукатурку с имитацией, кладку выполнили белым кирпичом, рядом поставили мебель неоклассических форм.
Houzz тур: Квартира по мотивам лофтаВиктория Харченко
Квартира выходит на северную сторону дома, и естественного света здесь мало. Чтобы интерьеры не выглядели мрачными, Виктория и Юрий сыграли на контрасте цветов. Заказчик показывал им фотографии с комнатами песочных и коричневых оттенков, а дизайнеры предложили ему яркое сочетание желтого и бирюзового на фоне нейтральной серо-белой гаммы.
Houzz тур: Квартира по мотивам лофтаМарк Кожура
На фото: авторы проекта Виктория и Юрий Харченко

«Заказчик хотел песочных красок, но нам знакома его семья — они предпочитают эффектный гардероб и яркую жизнь. Полагая, что все это есть и в молодом человеке, мы предложили контрастный интерьер. И оказались правы. Попали в точку настолько, что даже картину для гостиной он заказал с теми же акцентами». — вспоминает Виктория.
Houzz тур: Квартира по мотивам лофтаМарк Кожура
Цвета интерьера так приглянулись молодому человеку, что он попросил художников изменить эскиз заказанной картины и добавить нужные оттенки. Сама работа отражает любовь заказчика к собакам — к сожалению, плотный рабочий график не позволяет ему завести питомца.
Houzz тур: Квартира по мотивам лофтаМарк Кожура
Совет дизайнеров: «Нужно дозировано добавлять декор и предметы мебели, нехарактерные для выбранного стиля. Всегда лучше недоделать, чем сделать чересчур», — говорит Виктория Харченко.
Houzz тур: Квартира по мотивам лофтаВиктория Харченко
Хозяин попросил сделать в квартире разные сценарии освещения: чем больше их будет, тем лучше. Он рассказал дизайнерам, что не экономит на электричестве, а наоборот, предпочитает включить все светильники сразу. Особенно ему нравилась светодиодная подсветка — наличие искусственного белого света частично решало проблему скудного естественного освещения.
Houzz тур: Квартира по мотивам лофтаМарк Кожура
Обратите внимание: Вся квартира создавалась с прицелом на будущее: душевой кабине предпочли ванну, а кабинет без труда превратится в детскую. Сейчас заказчик молод и холост, но понимает, что в его жизни появится семья.
Houzz тур: Квартира по мотивам лофтаМарк Кожура
Полностью оборудованная кухня с фасадами из массива ясеня готова и к дружеским вечеринкам, и к будущим семейным обедам.
Houzz тур: Квартира по мотивам лофтаМарк Кожура
На фото: спальня

Объемная панель за изголовьем задает динамику пространству комнаты. Геометрический мотив продолжается на потолке — сюда завели паркетную доску и повесили современную люстру.
Houzz тур: Квартира по мотивам лофтаВиктория Харченко
Соседний кабинет — та самая комната, которая в будущем станет детской. Архитекторы выбрали малогабаритную мебель, чтобы интерьер можно было трансформировать с наименьшими затратами.
Houzz тур: Квартира по мотивам лофтаМарк Кожура
«На месте шкафа в проекте предусматривались полки, — рассказывает Виктория, — пока мама заказчика не решила сделать ему сюрприз. На одном из сайтов ей понравился итальянский шкаф в стилистике лофта. Мы решили спроектировать что-нибудь похожее, с использованием дерева и металлической фурнитуры».
Houzz тур: Квартира по мотивам лофтаВиктория Харченко
Проблема и решение: Все шло по плану, пока хозяин не решил расширить площадь ванной за счет спальни. Это оказалось невозможно.

«Часто заказчики стремятся нарушить правила и поменять назначение помещений, увеличить их площадь или разрушить конструктивные стены, — рассказывает Юрий — Мы не допускаем таких ситуаций и всегда предлагаем альтернативный вариант. В этом проекте удалось углубить ванную за счет коридора, что немного увеличило её площадь».
Houzz тур: Квартира по мотивам лофтаМарк Кожура
Отказаться пришлось и от душевой кабины такой вариант ванной не очень подходил для семейного интерьера. Зато в облицовке использовали плитку, имитирующую бетон и камень — санузел получился с мужским характером.
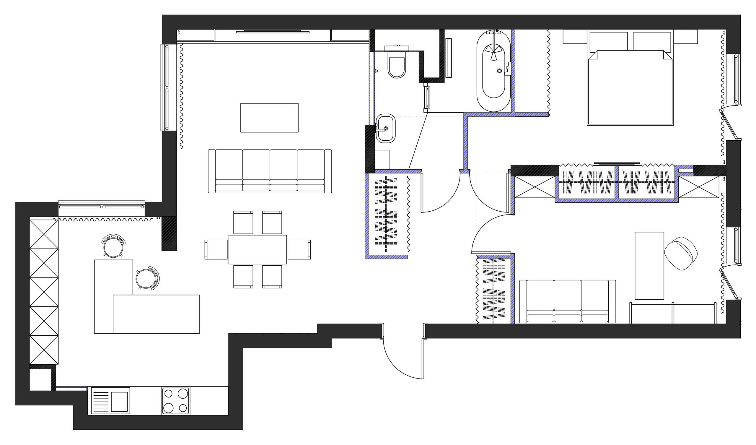
План квартиры

СМОТРИТЕ ТАКЖЕ…
Другие проекты того же автора — в портфолио Виктории и Юрия Харченко, Студия дизайна Four rooms

У ВАС ЕСТЬ ДЛЯ НАС ПРОЕКТ…

Загрузите съёмку в свой профиль на Houzz, отправьте ссылку с кратким описанием на editorial@flatica.ru

Для справки: Какие объекты мы публикуем

Комментарии 20

Юлия

7 л.

Квартира хороша элементами: серый диван в гостиной, панель в изголовье кровати, шкаф в кабинете, но цельная картинка сложилась только в ванной комнате. . И да, несколько смутила фраза: "Заказчик хотел песочных красок, но нам знакома его семья — они предпочитают эффектный гардероб и яркую жизнь". Он хотел, но мы знаем лучше??
Не понравилось. Окна на северную сторону и серый бетонный потолок, неудивительно, что надо все светильники держать постоянно включенными. Цвет кухни ужасный. Почему "по-мужски" это обязательно серо и мрачно?
И да, дружеские посиделки на диване, где очевидно комфортно только одному человеку.

Оставьте комментарий

Читать похожие статьи