
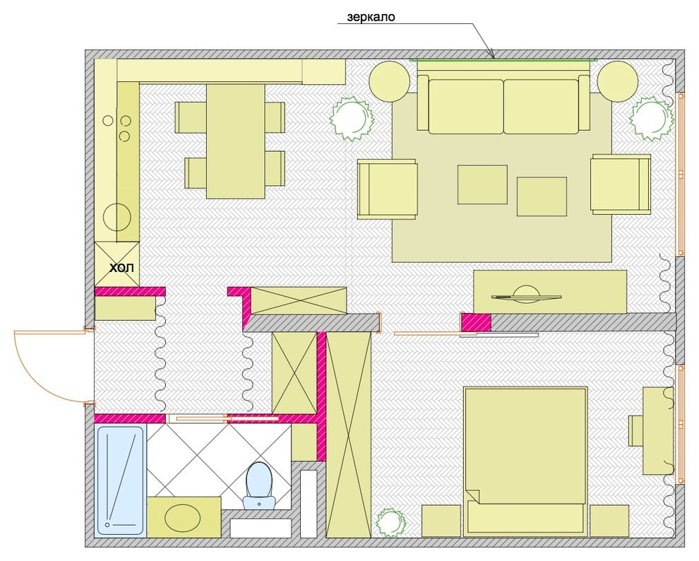
Houzz тур: 31 кв.м — квартира с «гнездом» для кота
Houzz Россия
9

30 июля 2018
Обновлено 18 окт. 2018
5 л.
6 л.

Houzz тур: 31 кв.м — квартира с «гнездом» для кота
Houzz Россия
9

До и после: 35 кв.м — квартира для «мамы с характером»
Houzz Россия
67

Houzz тур: Трёхкомнатная (!) квартира в «сталинке» — всего 45кв.м
Евгения Назарова
29

Houzz тур: «Однушка» 40 кв.м для трех поколений семьи
Houzz Россия
19

Houzz тур: 37 кв.м. — квартира с настроением писательской дачи
Houzz Россия
14

Houzz тур: П-44Т — квартира 38 кв.м. для отдыха и уединения
Houzz Россия
15

Houzz тур: 35 кв.м — квартира-трансформер с потайной гардеробной
Houzz Россия
28

Houzz тур: 37 кв.м — студия из интерьерного конструктора
Houzz Россия
29

Houzz Беларусь: 25 кв.м — маленькая квартира в Минске
Houzz Россия
23

Houzz тур: 32 кв.м — яркая квартира в стиле неомемфис
Евгения Назарова
13

Есть решение: 5 студий площадью 30 кв.м
Houzz Россия
4

До и после: Новая жизнь экспериментальной хрущёвки
Евгения Назарова
50

Houzz тур: 26 кв.м — квартира для кинодраматурга
Houzz Россия
30

Houzz тур: 30 кв.м — квартира с необычным оттенком штукатурки
Houzz Россия
13

Houzz тур: Маленькая квартира 45 кв.м для трех человек
Houzz Россия
32

До и после: 35 кв.м. — пятиугольная квартира
Houzz Россия
29

До и после: Квартира для молодой пары — площадью всего 28 кв. м
Евгения Назарова
101

Houzz тур: Квартира 29 кв.м с кухней в коридоре
Евгения Назарова
21
Ольга Арисеп
5 л.