logo

Houzz тур: Интерьерный микс из классики и восточных мотивов

Квартира с коллекцией фарфора, этно-сувенирами и итальянским настроением в санузле.

Евгения Назарова
Евгения Назарова

17 нояб. 2015

Обновлено 10 янв. 2016

Постоянный автор Houzz, интерьерный журналист

Этот объект сразу покорил дизайнера Оксану Иванову сложным ломанными линиями пространства и остеклением в пол. Заказчики – супружеская пара, которая много путешествует – хотели сохранить в новой квартире воспоминания о поездках, поэтому стилистика интерьера сложилась на стыке классики и восточных мотивов. Кроме гостевых и приватных комнат, в квартире удалось обустроить эффектные витрины для авторского фарфора, который коллекционирует хозяйка. Чтобы создать интерьер, в котором уют не противоречит солидной эстетике, автор проекта сделала ставку на сложные оттенки, натуральные материалы и встроенные системы хранения, которые не перегружают пространство.

О проекте
Место:
Москва, Мичуринский проспект
Размер: 140 кв. м, высота потолков после отделки 2,95 м
Кто здесь живет: семейная пара с сыном-подростком
Автор: Оксана Иванова, дизайн-студия «Montein»
Фото: Денис Комаров
Houzz тур: Интерьерный микс из классики и восточных мотивовKseniya Ivanova
История проекта началась с того, что заказчики решили обновить интерьер загородного дома, в котором живут постоянно. Этот долгий процесс требовалось где-то переждать, тем более что у пары есть сын-подросток, которого нужно возить в московскую школу – так что переезд в столицу оказался как нельзя кстати.

Квартира досталась владельцам в бетоне и без перегородок, а планировка, предложенная застройщиком, не устраивала заказчиков. “В проекте нам хотелось сохранить ощущение объема и воздуха, а также решить многие технические проблемы. Обязательны были два автономных санузла, хозяйственное помещение для стиральной и сушильной машины, максимальное количество шкафов”, – рассказала Оксана Иванова.
Houzz тур: Интерьерный микс из классики и восточных мотивовKseniya Ivanova
Эклектичная концепция дизайна сразу понравилась заказчикам, тем более что для отделки использовали качественные и солидные материалы. Полы в квартире выложили массивной доской, стены – частично оштукатурили или оформили плиткой. Большая часть мебели выполнена на заказ под размеры квартиры.

На потолке в прихожей смонтировали крестообразные балки, чтобы сделать интерьер этой проходной зоны не таким аскетичным. А вот деликатная штора при входе выполняет не только декоративную, но и практическую функцию: под ней спрятан электротехнический люк, который не удалось полностью “утопить” в тонкой стене.
Houzz тур: Интерьерный микс из классики и восточных мотивовKseniya Ivanova
Гостиную зону объединили с кухней, чтобы сохранить объем и открытое пространство. При этом хозяйке требовались максимально большое рабочее пространство и раковина, развернутая к окнам. Когда очередь дошла до размещения телевизора, у супругов случился конфликт интересов: глава семьи хотел следить за повесткой дня в гостиной, а хозяйка настаивала на том, что в кухне ей тоже необходим тв-экран. Так родилась двухсторонняя телевизионная стойка из шпонированной МДФ: понятно, что супруги не будут включать телевизоры одновременно, зато перегородка помогает ненавязчиво отделить кухню от гостиной.

Сложный цвет кухонного гарнитура, составленный из оттенков синего, серого и зеленого, задал тон всем акцентам в квартире. В том же цвете оформили сделанные на заказ двери.

Кухня: Giulia Novars; столовая группа: Selva, кресло: Tre Ci
Houzz тур: Интерьерный микс из классики и восточных мотивовKseniya Ivanova
Для облицовки фартука и столешниц подобрали однотонный искусственный камень. “Мы не хотели делать акцент на фартуке: в гостиной итак много элементов, привлекающих внимание”, – пояснила Оксана. Справа от стойки смонтировали просторный сервант в тон кухонному гарнитуру: здесь хранится большая часть семейной коллекции фарфора.
Houzz тур: Интерьерный микс из классики и восточных мотивовKseniya Ivanova
Деревянное напольное покрытие для гостиной сделали на заказ, а зону столовой возле панорамного окна оформили плиткой Eco Ceramica с винзантийскими мотивами. Стену за бархатным диваном акцентировали обоями Arte. С двух сторон от него расположили дополнительные витрины для посуды: Оксана Иванова специально привезла их из Италии для этого проекта.

Кроме высокого внешнего радиатора, комнату отапливают встроенные в пол системы. Для оформления панорамных окон Оксана подобрала достаточно лаконичные шторы: их можно закрыть при помощи пульта.

Свет: Illuminazione d’Arte
Houzz тур: Интерьерный микс из классики и восточных мотивовKseniya Ivanova
Мастер-спальня – вытянутое по форме помещение, которое Оксана предложила разделить на две зоны. Вблизи от панорамного окна разместился будуар хозяйки: кроме встроенных шкафов с резными фасадами, здесь есть небольшая зона отдыха. От основного пространства спальни будуар отделяет текстильная перегородка: если хозяйке захочется приватности, она может задернуть штору и уединиться в мягком кресле с книгой. Кроме того, супруги выступили за раздельные шкафы: в просторном помещении удалось обустроить три полноценные системы хранения.

Вместо кровати здесь пришлось установить матрас на каркасе – этот прием был необходим владельцу из-за проблем со спиной. А чтобы сохранить эстетику интерьера, матрас дополнили высоким изголовьем.

Свет: Illuminazione d’Arte; кресло: Bedding
Кабинет для супруга оформили в нейтральных кофейных тонах с белыми акцентами. При желании здесь могут остановиться двое взрослых детей заказчиков – и кресло, и диван разбираются.

Кроме письменного стола главы семьи, в кабинете обустроили большую библиотеку – высокий шкаф тянется вдоль всей стены комнаты. Кроме книг, там хранится часть коллекции фарфора.

Свет: Bellart
Houzz тур: Интерьерный микс из классики и восточных мотивовKseniya Ivanova
Детскую для сына владельцам хотелось обустроить таким образом, чтобы она не потерял актуальности до момента, когда мальчик вырастет. Супруги решительно отказались от любых “детских” мотивов: спокойный интерьер разнообразит яркая обивка изголовья и текстиль. Мебель для комнаты подобрали у румынского производителя Monte Cristo Mobili: по словам Оксаны, она не уступает по качеству итальянским моделям, но обходится все же бюджетнее.
Houzz тур: Интерьерный микс из классики и восточных мотивовKseniya Ivanova
Галерея сувениров в семейной квартире начинается в прихожей: консоль украшают этнические женские фигуры, а на стене красуется пестрый батик с изображением петуха. Привлекают внимание и распашные двери с изразцами ручной работы и византийским орнаментом от студии PLAKART ceramics. “Створки вносят интригу в лабиринт коридора, – пояснила Оксана, – а гости всегда спрашивает, что скрывается за эффектными дверями. На самом деле они ведут в крошечную хозяйственную комнату”.
Houzz тур: Интерьерный микс из классики и восточных мотивовKseniya Ivanova
Неправильная форма санузла при мастер-спальне позволила разместить и ванну, и душевую кабину. Для облицовки Оксана использовала плитку Eco Ceramics, а красный мойдодыр с гравировкой сделали на заказ – рисунок на фасаде повторяет орнамент керамической плитки. Орнамент нанесли и на стекло, отгораживающее душевую от общего пространства.

Над раковиной предусмотрен тонкий, но функциональный шкафчик с зеркальным фасадом: здесь хозяйка может хранить косметику.

Свет: Bellart
Houzz тур: Интерьерный микс из классики и восточных мотивовKseniya Ivanova
Второй санузел получился по-средиземноморски жизнерадостным, что не удивительно, учитывая то, что Оксана искала идеи и материалы для интерьера в Италии. “Настроение интерьеру санузла задало панно на плитке, которое мы обрамили и повесили в ванной. От него и пошла итальянская тема”, – рассказала Оксана.
Houzz тур: Интерьерный микс из классики и восточных мотивовKseniya Ivanova
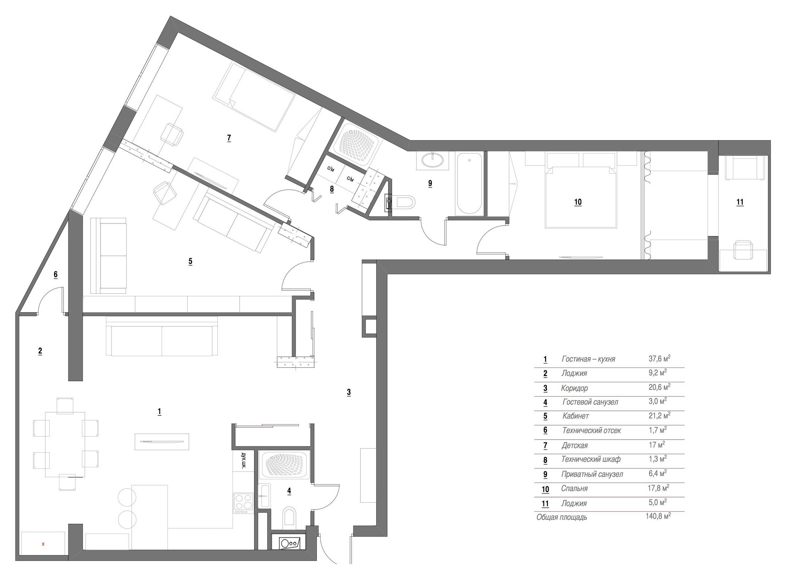
Планировка квартиры неправильной формы в проекте Оксаны Ивановой.

ЧИТАЙТЕ ТАКЖЕ…
Дизайн комнаты для мальчика подростка в современном стиле

Комментарии 30

Очень красивый проект. По цвету интересно , стилистически скомпонован и пространство решено ...А главное уютно
Елена Я кухня Giulia Novars модель Елизавета
Андрей Гальперин Ловкость рук и никакого мошенничества ))) Это профессиональная съемка и Денис профессионал с большой буквы.

Оставьте комментарий

Читать похожие статьи