logo

Houzz тур: Дом, который вывернули наизнанку

А в спальне — сделали тайную лестницу в сад

Houzz Россия
Houzz Россия

5 июня 2019

Обновлено 8 авг. 2019

Владельцы большого участка и загородного дома под Москвой в какой-то момент поняли, что дом, где они прожили пять лет, морально устарел. Кроме того, дизайн участка, выполненный немецко-швейцарской ландшафтной компанией, был интересней дома. В поисках архитектора, который с помощью небольшой переделки смог бы привести дом в соответствие с ландшафтом, хозяева обратились в бюро «4a Architekten».
Houzz тур: Дом, который вывернули наизнанку
О проекте
Место: Московская область
Год: 2017
Размер: площадь 730 кв.м
Кто здесь живет: семья с тремя детьми
Авторы проекта: архитектурная мастерская «4aArchitekten» Штутгарт / Москва, руководитель проекта — Александр Шамне, ГАП — Александра Филатова
Фото: Митя Чебаненко

Архитекторы бюро, посмотрев на все это через свою призму, убедили заказчика в необходимости более глобальной реконструкции: «Мы сначала довольно быстро оформили гостевой дом. Пока шла реконструкция основного, заказчик приезжал туда на праздники и выходные», — рассказывает Александр Шамне.
Houzz тур: Дом, который вывернули наизнанку
Авторы проекта кардинально изменили организацию внутреннего пространства: перенесли в другое место входную группу и лестницу, вырезали новые лестничные проемы, увеличили площадь остекления. Форму дома упростили, где-то немного к нему пристроили, где-то, наоборот, «убрали».
Houzz тур: Дом, который вывернули наизнанку
«Мы “вывернули этот дом наизнанку”, и он заиграл. Нам свойственно архитектурное, то есть объемно-пространственное, мышление. Поэтому нам удалось найти оптимальные решения организации внутреннего пространства дома», — продолжает Александр.

Дом приобрел более современный вид. Прежде на фасаде был микс штукатурки и древесины тропического дерева мербау. Доски демонтировали, очистили от предыдущих слоев лака и краски, привели в желаемый вид и вернули на фасад в других пропорциях. Теперь серый цвет штукатурки гармонирует с деревом и рамами графитового оттенка на новых окнах.
Houzz тур: Дом, который вывернули наизнанку
ВХОДНАЯ ЧАСТЬ
Настил террасы сделали из доски древесины мербау, которой облицован дом. Входная группа стала полностью стеклянной, чтобы уже на подходе к дому гости видели, что ожидает их внутри. По такому же принципу появились «окошки» в зеленой изгороди — они дают возможность заглянуть в сад и оценить его красоту.

Особенность этого проекта в том, что заказчик жил в доме до модернизации, а не купил под ремонт. Это позволило прочувствовать все изменения и улучшения в доме.
Houzz тур: Дом, который вывернули наизнанку
Архитекторы связали дом и сад, которые до реконструкции существовали сами по себе. «Ландшафт участка делали наши друзья — компания “Greenhance”, с которой мы часто вместе работаем. В очередной раз у нас получился симбиоз архитектуры и ландшафта», — рассказывает Александр.
Houzz тур: Дом, который вывернули наизнанку
Стеклянные конструкции — Sky-Frame, Швейцария

Чтобы интерьер передавал ощущение загородного дома, а внешние и внутренние пространства плавно перетекали друг в друга, на первом этаже широко «открыли» фасад, установив большие стеклянные раздвижные элементы от пола до потолка с почти невидимыми рамами. Дом со стеклянной стеной, которая почти полностью раздвигается, стал легким, воздушным, светопроницаемым и слился с окружающим ландшафтом.
Houzz тур: Дом, который вывернули наизнанкуНаталия Тверитинова
План первого этажа

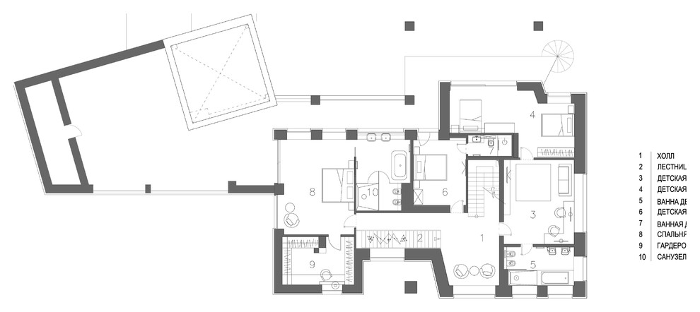
Первый этаж — общественный. Здесь есть просторная гостиная-столовая-кухня, переходящая в кабинет-библиотеку. Есть большая спа-зона с сауной, хамамом, купелью, душем, бассейном и зоной отдыха с камином, где можно полежать после процедур, пообщаться и выпить чаю (для этого здесь сделали еще одну небольшую кухню). Также на первом этаже расположена спальня старшего сына с собственной ванной комнатой.
Houzz тур: Дом, который вывернули наизнанку
Кабинет-библиотека: кресло, стеллаж, рабочий стол и стул — BB Italia; журнальный столик Riva 1920

ГОСТИНАЯ-КУХНЯ

Геометричные формы и расположение сформированных стрижкой растений в саду перекликаются с элементами мебели в интерьере. «Для нас было важно объединить хорошо продуманный участок с внутренним пространством дома. Ландшафт перетекает в дом и образует единое полотно c интерьером, становится его неотъемлемой частью», — объясняет архитектор.

Благодаря стеклянным раздвижным конструкциям возникает ощущение, что находишься среди природы. Из гостиной можно выйти на террасу, органично продолжающую интерьер. «Ни одна квартира не дарит такого потрясающего ощущения, что сидишь на уровне земли и в любой момент можешь выйти в сад!» — признается Александр.
Houzz тур: Дом, который вывернули наизнанку
На фото: в пространство гостиной-кухни-столовой идеально вписался массивный брутальный обеденный стол заказчика; стулья Cassina

Заказчик работает в сфере дизайна, где постоянно сталкивается с яркой палитрой. Поэтому личное пространство решили сделать спокойным, без «экшена», пестроты и мелькания красок. С этой целью выбрали спокойную гамму, в которой преобладают серые натуральные тона, а из материалов использовали дерево, камень, металл и стекло.
Houzz тур: Дом, который вывернули наизнанку
Кухня Leicht

Кухня центральный элемент гостиной. Ее матовые фасады напоминают черный бетон. Чтобы избежать излишнего контраста, стена за кухней оформлена грубой штукатуркой.

Черная кухня перекликается с графичной лестницей, ведущей на второй этаж. Лестницу не только перенесли в другое место, но и поменяли на новую: более открытую и элегантную. За счет тонкого каркаса ступеней и ритмичного ограждения в виде струн она не закрывает вид на сад.
Houzz тур: Дом, который вывернули наизнанку
Общее пространство первого этажа объединил деревянный реечный потолок из ольхи. Такими же рейками отделаны стены в спальне и спа-зоне. На полу лежит американский орех Ebony and Co.

Остальной пол серый керамогранит FLORIM. Стены, кроме черной за кухней, покрашены в светло-серый RAL 9002. А графитовый RAL 7021 прослеживается по всему дому на окнах, лестницах, дверях, стене в спальне.
Houzz тур: Дом, который вывернули наизнанку
Барные стулья Riva 1920

Акцентный цвет в интерьере черный или графитовый возникает в виде целых стен на кухне, в спальне и хозяйском санузле, повторяется на дверях, камине, в предметах мебели, в очертании лестницы и тонким росчерком проходит по интерьеру в освещении.
Houzz тур: Дом, который вывернули наизнанку
На фото: внутри стены из ольховых деревянных реек спрятаны двери в сауну и топочную

ЗОНА СПА
Комната отдыха с выходом в бассейн и сауну расположена в центре спа-зоны. Центральный элемент здесь черный камин цилиндрической формы, поворачивающийся на 360 градусов в нужную сторону. Штора с развешенными за ней лампочками создает дополнительный уют.

Вода в купели, предназначенной для охлаждения после сауны, была недостаточно холодной для заказчика. Поэтому построили «ледяную прорубь», работающую по принципу термоса, в котором воду можно охладить и поддерживать на нуле градусов. Края купели покрываются льдом, так что «прорубь» — вполне оправданное название для нее.
Houzz тур: Дом, который вывернули наизнанку
Мебель Paola Lenti

В спа-зоне есть место, где после плавания и сауны приятно полежать-посидеть на круглых диванчиках и креслах цвета морской волны. Стена в виде большой стеклянной конструкции высотой 4,5 метра раздвигается и позволяет летом сделать это помещение местом отдыха на улице.
Houzz тур: Дом, который вывернули наизнанку
Мозаика Sergio Savino

САНУЗЕЛ СТАРШЕГО СЫНА
На первом этаже расположена комната старшего сына, в которую можно попасть не только из гостиной, но и через отдельный вход с улицы.
Ванная оформлена на контрасте. Стены из крупноформатного керамогранита, напоминающего грубый камень, бетон или металл, и черная мозаика на полу создают ощущение брутальности. А душевой поддон из тика, окно, терраса и сад за окном настраивают на релакс.
Houzz тур: Дом, который вывернули наизнанкуНаталия Тверитинова
План второго этажа

На втором этаже находится хозяйская спальня с гардеробной, ванной комнатой и собственной террасой. Здесь же расположена детская с санузлом и отдельный блок для двух маленьких детей с большой спальней, игровой и дополнительным санузлом. В игровой, где также проходят занятия, архитекторы создали магнитно-маркерную стену и нанесли рисунок, который дети могут раскрашивать как большую раскраску.

Еще в доме есть третий этаж. Там находится кабинет и небольшая развлекательная зона с профессиональным кинотеатром и настольным футболом.
Houzz тур: Дом, который вывернули наизнанку
КОРИДОР ВТОРОГО ЭТАЖА
Черная графика тонкие очертания лестницы, геометричные линии светильника, дверь в спальню добавляет контраста и выразительности.
Houzz тур: Дом, который вывернули наизнанку
Спальня хозяев: кровать Poltrona Frau

СПАЛЬНЯ ХОЗЯЕВ

К спальне примыкает гардеробная и большой санузел. Стену за кроватью сделали акцентной, покрасив в графитовый RAL 7021. Две двери, раздвижная в санузел и распашная в коридор сливаются с темной стеной и растворяются в ней.
Houzz тур: Дом, который вывернули наизнанку
В спальне за стеной из деревянных реек находится гардеробная, дверь в которую замаскирована в эти ламели.
Houzz тур: Дом, который вывернули наизнанку
Из спальни есть выход на лаунж-террасу и обходной балкон. Терраса расположена на крыше над техническими помещениями первого этажа, сауной и хамамом.
Houzz тур: Дом, который вывернули наизнанку
Санузел хозяев: ванна Antonio Lupi, мозаика Sergio Savino

САНУЗЕЛ ПРИ СПАЛЬНЕ

Стену за ванной сделали акцентной. Тут, как и везде, проявилась работа контрастов. Белоснежная ванна выделяется на фоне черной стены, а ее плавные формы контрастируют со рваной, как битый камень, фактурой мозаики.
Houzz тур: Дом, который вывернули наизнанку
Здесь установили окно во всю стену (3,5х3), из которого открывается вид на пруд и лес, уходящий вглубь участка. Поскольку с этой стороны чужих домов нет, находящиеся в ванной комнате не попадают в поле зрения соседей.

Перед стеклянной стеной поставили две раковины и напротив них повесили подвижные зеркала. При желании можно любоваться своим отражением в зеркале или пейзажем за окном — в этом случае зеркала отодвигают.
Houzz тур: Дом, который вывернули наизнанку
Архитекторы спроектировали и заказали у подрядчиков уличную лестницу, ведущую на обходной балкон на втором этаже и через него на лаунж-террасу при хозяйской спальне. Летом из спальни можно спускаться в сад по лестнице и не ходить через весь дом. Причем это не только лестница, но и арт-объект. Со стороны террасы первого этажа заход на нее не виден, и она смотрится как лента.
Houzz тур: Дом, который вывернули наизнанку
Спальня для младших детей: кровать Letto Cloud, Letti Singoli, Lago; пол американский орех Ebony and Co

ДЕТСКАЯ
Парящая кровать для одного из малышей (пятилетнего мальчика) напоминает облачко, а люстра — шляпу. Окно, как и большинство окон в доме, опускается до пола, наполняет комнату естественным светом, воздухом, зрительно делает ее просторнее.
Кровать Letto Singolo Colletto, Letti Singoli; шкаф в цветную полоску Armadio N.O.W. Weightless Cameretta, Armadi Cameretta, все Lago

С противоположной стороны от парящей кровати стоит кровать второго малыша (мальчика трех лет), похожая на гнездышко. Мягкое кольцо, обшитое двухцветной эластичной тканью, можно поднимать, опускать или менять его конфигурацию как угодно.
_____________________________

ОБ АВТОРАХ ПРОЕКТА…
Перейдите на страницу архитектурной мастерской «4a Architekten», чтобы изучить другие работы из портфолио архитекторов

В ВАШЕМ ГОРОДЕ…
Найдите архитектора на Houzz — закажите собственный проект

У ВАС ЕСТЬ ДЛЯ НАС ПРОЕКТ…
Загрузите съемку в свой профиль на Houzz, отправьте ссылку с кратким описанием на editorial@flatica.ru

Для справки: Какие объекты мы публикуем

Комментарии 27

А хозяин точно дизайнер? ))
как же прекрасно!! браво))
Очень интересный проект. Зоны Спа просто мечта)

Оставьте комментарий

Читать похожие статьи