
Архитекторы
5
·
10 отзывов
Haus V
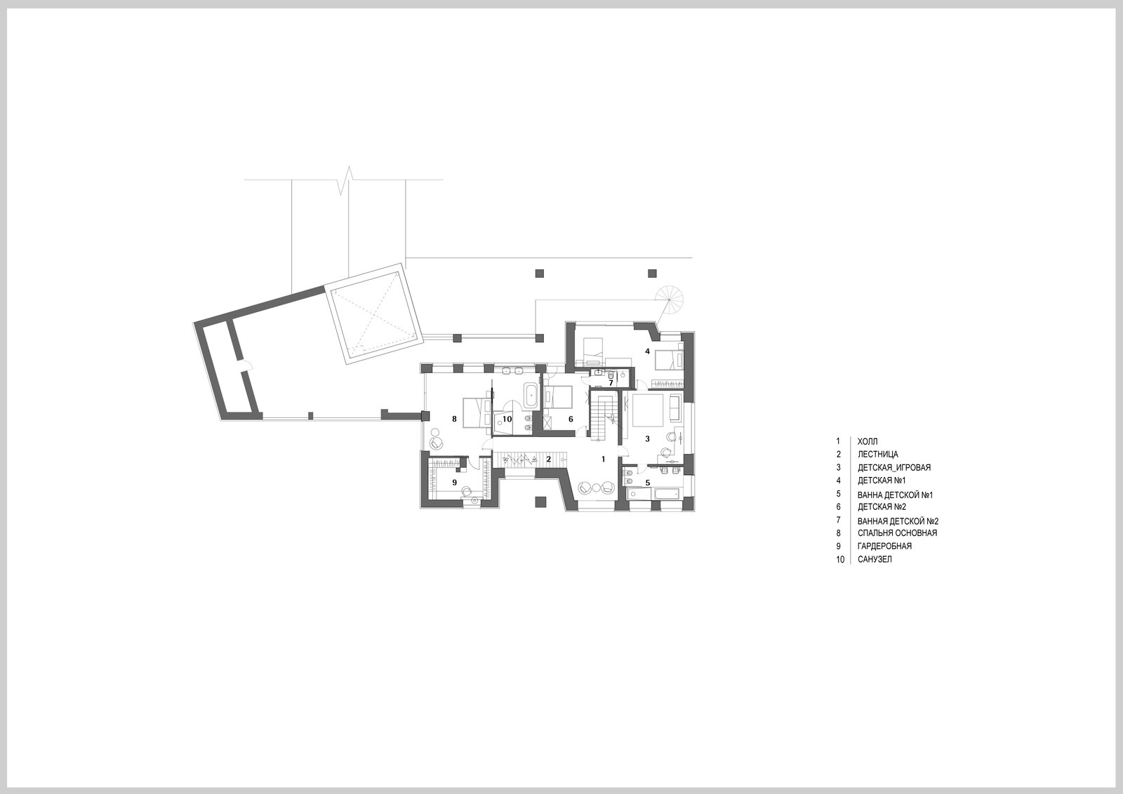
Загородный дом площадью 730 м² расположен в Московской области. . Заказчиком была поставлена цель модернизировать здание. С помощью глобальной реконструкции, переноса входной группы и лестницы, увеличения площади остекления, удалось создать более современное эргономичное пространство. . . На первом этаже размещены просторная кухня-гостиная – сердце дома, переходящая в библиотеку; большой спа с бассейном, сауной, хаммамом, купелью и зоной отдыха. Все общие пространства первого этажа объединены единым элементом - деревянным реечным потолком. Также на первом этаже расположены спальня старшего сына с собственной ванной и окном, выходящим в сад. . . Весь интерьер выполнен в светлых натуральных тонах и материалах: дерево, бетон, камень. Акцентным цветом выступает черный - он возникает в виде целых стен в комнатах, цвете дверей всего дома, тонким росчерком проходит по всему интерьеру в предметах мебели и освещении. . Черная матовая кухня – центральный элемент гостиной, притягивает внимание, перекликаясь с графичной лестницей, ведущей на второй этаж. Благодаря тонкому каркасу ступеней и ритмичному ограждению, выполненному в виде струн, протянутых с первого на второй этаж, не перекрываетcя вид в сад. В интерьер органично вписался массивный брутальный стол. . . Второй этаж занимают детские спальни, игровая комната, а также большая мастер-спальня с собственной террасой. . Черная стена за кроватью главной спальни скрадывает наличие двух дверей, разных по типу: раздвижной в санузел и распашной в коридор. . . Дом стал воздушным и слился с окружающим тщательно продуманным ландшафтом. Благодаря раздвижной оконной системе skyframe, ландшафт словно перетекает в дом и образует единое полотно c интерьером, становится его неотъемлемой частью. . Большинство окон в доме опускаются до пола. Они наполняют помещения естественным светом и воздухом, зрительно делая их просторнее. . . .
Другие фотографии в проекте
Вопросы к фото 0
Задайте вопрос
Вам ответят эксперты. Пришлем уведомление, когда вам ответят
Винтовая лестница, Контемпорари, Лестница, Металл, Москва, Освещение, Открытый тип, Реконструкция, винтовая лестница, минимализм, модный дом, современная архитектура, современный дизайн, современный дом, современный стиль, черная кухня
Похожие фотографии

Латте home (реализация)
Свежая идея для дизайна: п-образная лестница в современном стиле с деревянными ступенями и стеклянными перилами без подступенок - отличное фото интерьера
Надежда Татарова

Загородный дом с лестницей-водопадом
Идея дизайна: прямая лестница в современном стиле с мраморными ступенями, подступенками из мрамора и стеклянными перилами
Детали Интерьера

Стиль в деталях
Идея дизайна: прямая лестница в современном стиле с стеклянными перилами
Ivan Kukushkin

Умный дом в Шлиссельбурге
Стильный дизайн: большая винтовая лестница в современном стиле с металлическими ступенями и металлическими перилами без подступенок - последний тренд
Константин Никифоров

Краски Tikkurila в гостиных
Стильный дизайн: винтовая лестница среднего размера в стиле лофт с металлическими ступенями и металлическими перилами без подступенок - последний тренд
Tikkurila Russia

Квартира на пр. Вернадского
Стильный дизайн: винтовая лестница в современном стиле с металлическими ступенями и металлическими перилами без подступенок - последний тренд
Артбюро 1/1

Купольный дом у воды
Источник вдохновения для домашнего уюта: винтовая лестница в современном стиле с деревянными ступенями и металлическими перилами без подступенок
тел. +7 (977) 992-21-82 VerbaHome

ПитерПарижНебеса
На фото: винтовая лестница в современном стиле с металлическими ступенями и перилами из смешанных материалов без подступенок с
Татьяна Бобылева

Индустриальное ретро
На фото: маленькая винтовая лестница в стиле лофт с металлическими ступенями и металлическими перилами без подступенок для на участке и в саду с
Бобрикова Ксения

Квартира Moss
На фото: винтовая лестница в современном стиле с деревянными ступенями и металлическими перилами без подступенок с
BΛLCON studio

Квартира в Козихинском переулке
Свежая идея для дизайна: винтовая лестница среднего размера в современном стиле с деревянными ступенями и металлическими перилами без подступенок - отличное фото интерьера
AI-architects

Дом в поселке Клуб-2071
Идея дизайна: п-образная металлическая лестница в стиле неоклассика (современная классика) с деревянными ступенями и перилами из смешанных материалов
Архитектурная Мастерская 2Ю




