logo

Houzz тур: Бетон, стекло и медные трубы в необычной московской квартире

Бетонные стены, стеклоблоки, медь и авторская мебель, придуманная архитекторами Archpole, сделали эту квартиру не похожей на другие

Houzz Россия
Houzz Россия

18 мар. 2015

Обновлено 7 апр. 2015

В этом проекте архитекторам Аrchpolе с заказчиками, в общем и целом, повезло: они высказали лишь общие пожелания и задачи, а в остальном дали волю их фантазии. Дом расположен в микрорайоне Северное Чертаново, в большом 30-этажном комплексе с богатой внутренней инфраструктурой и подземным паркингом. В квартире изначально были лишь перегородки санузлов и несущая стена по центру. Сам дом сделан из монолитного железобетона, так что одним из первых решений было отшлифовать и оставить несущую стену и потолок как есть — бетонными. Вновь возводимые перегородки сделали из кирпича, а стеклоблоки стали стыкующим звеном между ними и бетоном. Также в проекте появилась медь, которая делает интерьеры теплее. Планировку организовали таким образом, чтобы у каждого члена семьи было свое личное пространство, а в общей гостиной, совмещенной с кухней, было удобно собираться всем вместе и встречать гостей.

Отдельного внимания заслуживает мебель, ведь собственное производство архитекторы Аrchpolе Анна Сажинова и Константин Лагутин как раз и начали из-за сложности поиска мастерских, способных реализовать их идеи. В итоге часть мебели и аксессуаров для многих своих проектов Анна и Константин делают сами. Не стала исключением и эта квартира.

О проекте
Место: Микрорайон Северное Чертаново, Москва
Год: 2014
Площадь: 105 кв.м, 3 комнаты
Кто здесь живет: Семья из трех человек
Авторы проекта: Анна Яворовская, Анна Сажинова, Константин Лагутин, Archpole
Бюджет: 6 млн руб.
Интересные факты: Проект назвали по имени владельца квартиры MISHAFLAT
Фото: Анна Яворовская
Один из принципов работы Archpole — участие в процессе с первого и до последнего дня. Анне и Константину важно видеть, как развивается проект, и своевременно принимать решения, ведь многое просто невозможно предвидеть. Архитекторы хотели создать пространство, которое понравилось бы как хозяевам, так и им самим. Уже при первой встрече на объекте они сразу определили ключевые решения, а уже в процессе рождались новые идеи. В самом начале архитекторы и хозяева единогласно решили оставить бетонные перекрытия и стены. Суровый вид бетона несколько смягчили: отшлифовали и покрыли поверхности лаком на водной основе. Новые перегородки сделали из кирпича, чем смягчили холодный цвет бетона и сделали квартиру более уютной.
Архитекторы хотели сохранить воздушность и простор интерьеров, не разбивая квартиру на комнатушки. Эта идея продиктовала одно из ключевых отделочных решений — использование стеклоблоков, которые создают границы, но при этом пропускают свет из соседних комнат и визуально еще больше расширяют пространство.
Новые перегородки и дверные коробки стыкуются с бетонными стенами и потолками через стеклоблоки, а перегородка, отделяющая кухню от спальни, целиком выполнена из них. Стены частично покрыли штукатуркой, что добавило им фактуры.
Houzz тур: Бетон, стекло и медные трубы в необычной московской квартиреТом Архполе
Все столешницы (на кухне, в ванных комнатах, в гардеробной) архитекторы решили сделать своими силами — отлить их из бетона. Фасады кухни: «Стильные Кухни»; вытяжка: Faber
Houzz тур: Бетон, стекло и медные трубы в необычной московской квартиреТом Архполе
Вопрос освещения в квартире был решен на одной из первых встреч, когда появилась идея использовать открытую проводку в медных трубах. Для большей выразительности придумали, что медных труб должно быть больше, чем только для проводки. Словом, решили использовать их для декора. Вся электросистема квартиры выведена в медные трубы, которые выходят из электрощитка, подходят к розеткам и выключателям, переходят по стенам на потолок и геометричным орнаментом расходятся по нему. Таким образом перед нами открывается символическая картинка того, как электричество бежит по проводам. Только в нашем случае это не провода, а медные трубы.
Для отображения этой идеи архитекторы нашли картинку с переплетенными трубами, и презентовали ее Ане и Мише, хозяевам квартиры, со словами: «Всю квартиру у нас будет украшать одна красивая люстра и много-много медных труб».
Houzz тур: Бетон, стекло и медные трубы в необычной московской квартиреТом Архполе
Разводка медных труб по потолку имеет довольно сложный рисунок. Чтобы строители ничего не перепутали, архитекторы попросили их сперва нанести рисунок из строительного скотча. Это помогло избежать ошибок, а кроме того, все увидели, как разводка будет смотреться в реальности, в каком месте надо убрать лишние трубы, а в каком — добавить.
Houzz тур: Бетон, стекло и медные трубы в необычной московской квартиреТом Архполе
Между кухней-гостиной и спальней сделали широкий проём и установили в нем сдвижную « амбарную» дверь. Рельсовый м еханизм заказали в Америке, а собирали конструкцию уже своими силами непосредственно на объекте. Дверь сделали из самых простых досок и покрасили в тот же оттенок белого, что и стену: « Мы перебрали много вариантов рисунка дверного полотна. Конструкция должна была иметь максимальную жесткость и при этом выглядеть “под старину”. В результате дверь сколотили из сосновых досок. Мы сознательно не шлифовали их и не шпатлевали образовавшиеся щелочки для сохранения “живой” поверхности, свойственной старым дверным полотнам », — делятся авторы.
Houzz тур: Бетон, стекло и медные трубы в необычной московской квартиреТом Архполе
Суровые бетонные стены соседствуют с натуральными фактурами теплых оттенков материалами — деревом, кожей, медью. Большую часть мебели дизайнеры студии Archpole сделали сами, а встроенную, которой они не занимаются, заказали в «Стильных кухнях». « Специально для проекта MISHAFLAT была разработана коллекция мебели из дубового мебельного щита с фасадами из медного зеркала. Дерево мы обработали тем же маслом Osmo, которым покрыта массивная половая доска из дуба. Это объединило мебель с пространством квартиры », — рассказывают архитекторы. Остальные предметы обстановки выбирали на разных дизайнерских сайтах. Диван: Home Concept; ковер: ИКЕА.; пеньки, тв-тумба с медными фасадами, аксессуары, манекен: Archpole
Houzz тур: Бетон, стекло и медные трубы в необычной московской квартиреТом Архполе
« В зоне гостиной мы столкнулись с небольшой проблемой: из-за проводки не удавалось поставить ТВ-тумбу вплотную к стене. После долгих раздумий решили не делать отверстия в мебели, а провести трубу с проводкой над тумбой. В результате получилась довольно красивая композиция. Вот так мы в оч ередной раз убедились, что сложные, на первый взгляд неразрешимые ситуации, в которых выбирать приходится одно из зол, на деле могут обернуться очень даже выигрышными ».
Houzz тур: Бетон, стекло и медные трубы в необычной московской квартиреТом Архполе
Так получилось, что на спальню родителей пришлось больше всего бетонных поверхностей: длинная стена и потолок. А поскольку бетон во всей квартире решили оставить в « голом » виде, то комната получилась довольно брутальной. После долгих дискуссий вид этой комнаты решили смягчить, и на стене над кроватью появилось большое графичное панно. Принт нанесли поверх вытянутого прямоугольного фрагмента, покрытого штукатуркой. Стол, прикроватные тумбы и консоль: Аrchpole; шкафы: Стильные Кухни; кровать: sleepeesleep
Houzz тур: Бетон, стекло и медные трубы в необычной московской квартиреТом Архполе
« Хозяину детской комнаты 6 лет, а это самый игривый и интересный возраст у ребенка, когда творческий потенциал ничем не ограничен, а фантазия бьет ключом! Поэтому хотелось сделать что-то особенное в его будущей комнате. Еще на стадии проектирования в детской образовалась ниша под встроенный шкаф, верхнюю часть которой мы решили использовать как детский уголок. Дети любят забираться в укромные места и прятаться там от взрослых, приглашать туда друзей, мечтать и просто играть. Попасть туда можно с помощью лестницы, которую по эскизу сварили наши строители. А для того, чтобы держать себя в форме и быть сильным, там предусмотрен еще и турник! » Но чтобы убедить заказчика решиться на эту идею, было потрачено немало времени. Одна из стен в детской покрыта графитовой краской, чтобы на ней можно было рисовать. Детская: стол и стулья Archpole; диван ИКЕА
Houzz тур: Бетон, стекло и медные трубы в необычной московской квартиреТом Архполе
Душевую перегородку и одну из стен в санузле полностью сделали из таких же прозрачных стеклоблоков, которые можно видеть в остальной квартире. Длинную раковину отлили из бетона и выложили белой плиткой. Пенек и круглая тумба: Аrchpole.
Houzz тур: Бетон, стекло и медные трубы в необычной московской квартиреТом Архполе
В прихожей все организовано просто и без лишних деталей. По одной стене встали высокие шкафы для хранения, по другой — деревянная тумба. Пол покрыт простой дубовой доской, покрытой маслом.
Houzz тур: Бетон, стекло и медные трубы в необычной московской квартиреТом Архполе
«Для реализации какой-то идеи, придуманной в рамках проекта, редко когда можно обойтись походом в один магазин. Но с трубами нам, в общем, повезло. За ними мы отправились на рынок. И их не пришлось долго искать! Материал этот отнюдь не дефицит и не редкость. Трубы мы купили на “Каширском дворе” (самом близком к объекту), в разделе проводки. В нашем случае цена за погонный метр составила 280 рублей », — вспоминают авторы проекта. Розетки и выключатели: «Гусевъ».
Houzz тур: Бетон, стекло и медные трубы в необычной московской квартиреТом Архполе
«П еребрав все возможные варианты открытой проводки, мы поняли, что медная труба — наиболее изящное решение. Мы говорили о том, что бетон — это голое тело пространства, а медные трубы — его украшения. В дальнейшем идея развивалась, электрощит стал арт-объектом, из которого поднимались и опускались трубы, разрастаясь по всему пространству ».
Houzz тур: Бетон, стекло и медные трубы в необычной московской квартиреТом Архполе
Сэкономленный на отделке бюджет потратили на более дорогие детали. Например, люстры с хрустальными подвесками, которые заказывали в Америке. Их выбрали в одной стилистике, но так, чтобы все модели были немного разными.
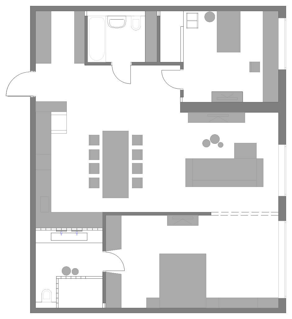
Так выглядит схема квартиры после перепланировки. ПРЕДЛОЖИТЕ СВОЙ ПРОЕКТ ДЛЯ ПУБЛИКАЦИИ Загрузите фотосъемку в свой профиль на Houzz, отправьте ссылку и краткое описание проекта на editorial@flatica.ru Мы обязательно свяжемся с вами, если примем решение о публикации. СТАТЬИ ПО ТЕМЕ… Лофты | Скандинавские | Загородные дома | Квартиры | Маленькое жилье | Houzz в гостях | Houzz в мире | США и Канада | Европа | Австралия

Комментарии 26

понравилось, лампы и медные трубы вообще блеск
S D

7 л.

до чего же страшная квартирка.
Прошло почти три года... интересно было бы взглянуть на проект сейчас, ну или узнать мнение заказчиков!

Оставьте комментарий

Читать похожие статьи