logo

Houzz тур: 170 кв.м собранные из трех (!) квартир

Одна только двухкомнатная детская дорогого стоит

Екатерина Перминова
Екатерина Перминова

12 февр. 2020

Обновлено 27 июля 2020

Постоянный автор HouzzRu, журналист

Houzz тур: 170 кв.м собранные из трех (!) квартирМария Рублева
К Марии Рублевой заказчики обратились с масштабной задачей: объединить три небольшие квартиры в одно функциональное пространство, где будет комфортно расти и развиваться детям, отдыхать после работы взрослым, и проводить время всей семьей.

Сложность заключалась в том, что между квартирами находились несущие стены и делать в них проемы можно было строго в определенных местах и не больше определенного размера. Плюс на согласование такой перепланировки требовалось много времени.

О проекте
Место: Москва, ЖК Union Park— совместный русско-голландский проект
Размер: 170 кв.м.
Кто здесь живет: семья из 4-х человек
Дизайнер проекта: Мария Рублева, Дизайн студия Rubleva Design
Фото: Сергей Красюк
Стилист: Дарья Соболева
Houzz тур: 170 кв.м собранные из трех (!) квартирМария Рублева
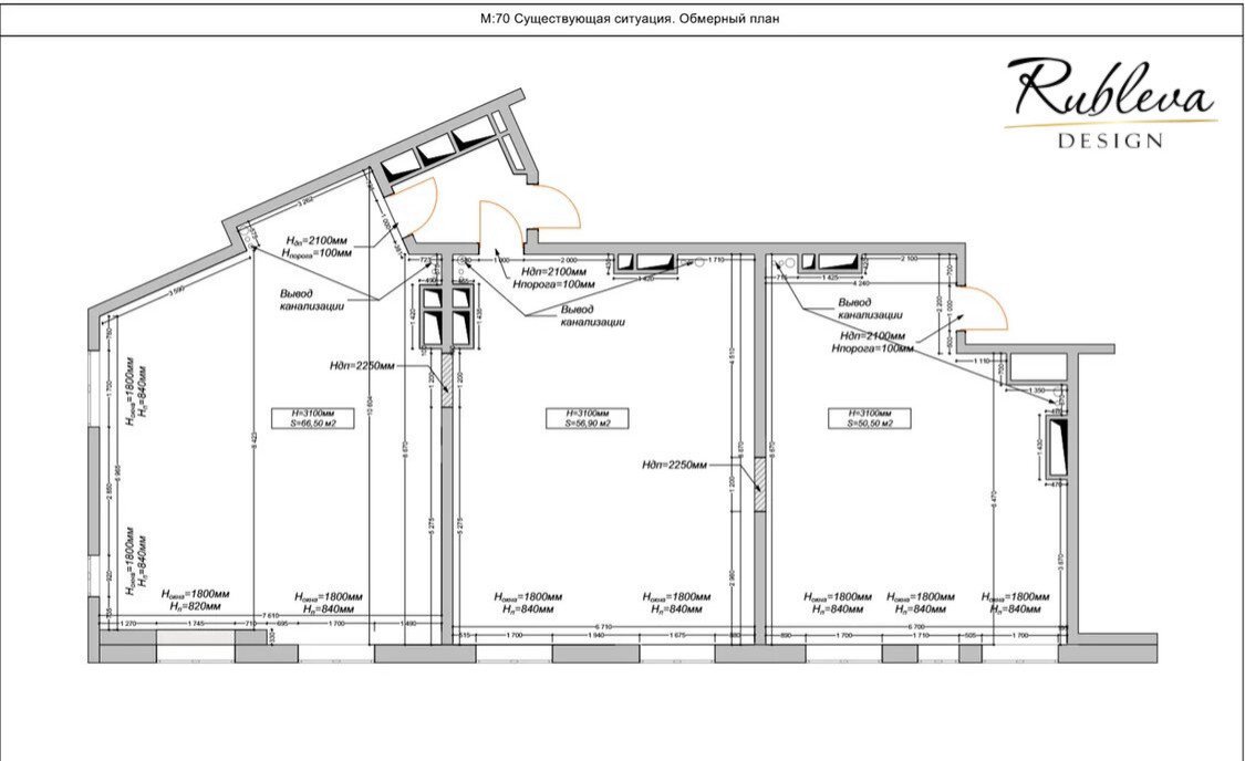
Планировка трех квартир до объединения

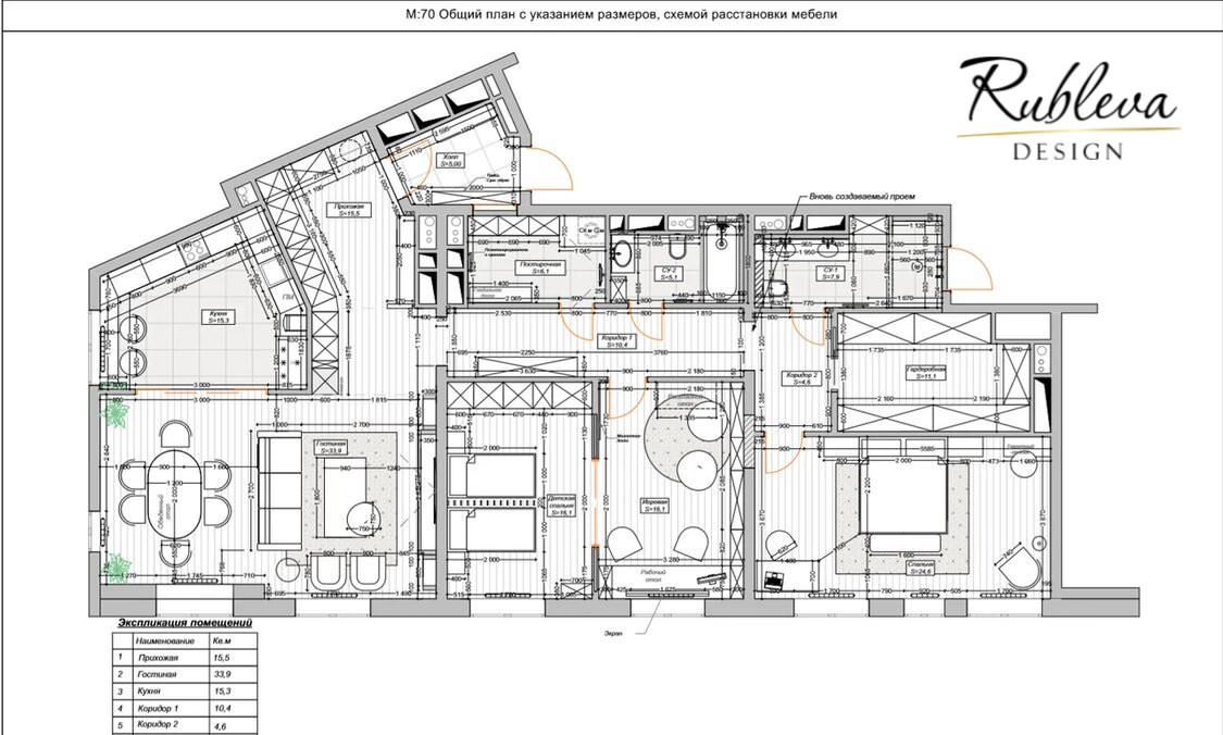
ПЛАНИРОВКА
Удачно зонировать общественные и приватные пространства получилось, благодаря свободной планировке помещений. Первое отвели под прихожую, гостиную, столовую и кухню. На площади следующей квартиры сделали детскую часть —санузел и комнату, которая объединяет спальное, игровое и рабочие пространства. Третью квартиру выделили под хозяйскую территорию, включающую спальню, гардеробную и основной санузел.

—————————————
В ВАШЕМ ГОРОДЕ…
Через Houzz можно нанять дизайнера или архитектора в любом городе и стране. Начать поиск специалиста
—————————————
Houzz тур: 170 кв.м собранные из трех (!) квартирМария Рублева
Планировка квартиры после объединения

На плане это выглядит как единое пространство, где в глубине расположены жилые комнаты, вдоль коридора на одной линии размещены два санузла и постирочная. Ближе всего ко входу парадная часть — прихожая, гостиная со столовой и кухня.


На разработку проекта ушло около пяти месяцев. За это время было создано четыре варианта планировочных решений. С функционалом и цветовой гаммой жилья определились намного быстрее: «Заказчки хотели интерьер, который не потеряет актуальность со временем, а будет жить вместе с его хозяевами», — рассказывает Мария Рублева.
Houzz тур: 170 кв.м собранные из трех (!) квартирМария Рублева
ПРИХОЖАЯ
У входа расположены вместительные системы хранения. В шкаф встроили большой аквариум, который служит декоративным целям и радует заказчиков, как только они заходят домой.
Houzz тур: 170 кв.м собранные из трех (!) квартирМария Рублева
Часть коридора превратили в прихожую. Здесь удобно хранить верхнюю одежду, обувь и спортивный инвентарь сыновей.
Houzz тур: 170 кв.м собранные из трех (!) квартирМария Рублева
ГОСТИНАЯ
При планировании гостиной выделили место отдыха — диван и два кресла перед ТВ, другую часть заняла столовая.
Houzz тур: 170 кв.м собранные из трех (!) квартирМария Рублева
Встроенный шкаф выполнен из МДФ и отделан широкоформатным керамогранитом
Houzz тур: 170 кв.м собранные из трех (!) квартирМария Рублева
За диваном установили обеденный стол на шесть человек. Кухня находится в соседнем помещении, за большими раздвижными перегородками, выполненными по эскизам Марии Рублевой. Перегородки можно раздвинуть и объединить пространство, либо полностью изолировать кухню от гостиной-столовой.
Houzz тур: 170 кв.м собранные из трех (!) квартирМария Рублева
Стол и стулья Cattelan Italia; диван Maxalto, B&B italia; люстры Baronchelli Saturno; кресло Eichholtz; ковер KOVER STORE; декор Moon store, Dantone home
Houzz тур: 170 кв.м собранные из трех (!) квартирМария Рублева
Фартук, интегрированная мойка и столешница — из искусственного камня Dekton
Houzz тур: 170 кв.м собранные из трех (!) квартирМария Рублева
КУХНЯ
Пять углов в кухне — не оптический обман, это действительно так. Это планировочное решение позволило задействовать каждый сантиметр помещения: здесь поместилась большая рабочая поверхность для готовки, стол и функциональный подоконник.
Houzz тур: 170 кв.м собранные из трех (!) квартирМария Рублева
Стулья Kartell; кухня Scavolini ; столик Imagination lab

Подоконник стал продолжением рабочей поверхности и выполняет функцию столика или барной стойки, где хозяйка может выпить кофе или чай.

Шкафчик для чайных принадлежностей выполнен по эскизам автора под заказ.
Houzz тур: 170 кв.м собранные из трех (!) квартирМария Рублева
ДЕТСКАЯ
Пространство для двух мальчиков-школьников состоит из двух комнат: раздвижная перегородка отделяет спальню от игровой.

«Конечно, мальчики не настолько дружны, чтобы проводить все время вместе, — говорит Мария. — Поэтому мы предусмотрели деревянные ламели. Они могут менять поворот размещения, то есть повернуться так, чтобы превратиться в глухую перегородку и создать приватное пространство для каждого».
Houzz тур: 170 кв.м собранные из трех (!) квартирМария Рублева
Изголовье кроватей выполнено на заказ по эскизам автора проекта. В этой части комнаты дополнительно размещен вместительный шкаф для одежды мальчиков.
Houzz тур: 170 кв.м собранные из трех (!) квартирМария Рублева
Стулья Maxalto, B&B italia; кровать Сollar home; тумбочки Тhe idea и BoConcept; столики Make loft; встроенная мебель: THE DEREVO по эскизам авторов проекта; картины Carre D’artiste
Houzz тур: 170 кв.м собранные из трех (!) квартирМария Рублева
В другой части комнаты установили столешницу для уроков и систему хранения для книг и игрушек вдоль всей стены с открытыми, закрытыми и фрезерованными фасадами. Вся мебель для детской комнаты выполнена на заказ по индивидуальным чертежам.
Houzz тур: 170 кв.м собранные из трех (!) квартирМария Рублева
ДЕТСКИЙ САНУЗЕЛ
Яркий голубой умывальник заказали из Италии. К нему уже в России подобрали в цвет и выполнили на столярном производстве шкафчик.
Houzz тур: 170 кв.м собранные из трех (!) квартирМария Рублева
Сантехника и мебель Сielo, Nokin; керамогранит Porcelanosa; паркет Fineks; двери Italon
Houzz тур: 170 кв.м собранные из трех (!) квартирМария Рублева
Коридор, ответвляющийся от прихожей, отделяет общественную часть квартиры от спален и санузлов. Для комфортного передвижения ночью здесь установлены маленькие настенные светильники. Они дают дежурный свет.
Houzz тур: 170 кв.м собранные из трех (!) квартирМария Рублева
Два санузла и большое хозяйственное помещение расположены по одной линии вдоль коридора. В хозблоке стоят стиральная и сушильная машины, системы хранения, гладильная доска и телевизор — все для удобства хозяйки.
Houzz тур: 170 кв.м собранные из трех (!) квартирМария Рублева
БЛОК РОДИТЕЛЕЙ
Территория родителей расположена в конце коридора на площади отдельной квартиры. Здесь просторная спальня, светлый санузел и большая вместительная гардеробная.
Houzz тур: 170 кв.м собранные из трех (!) квартирМария Рублева
СПАЛЬНЯ
Стены украшены фреской ручной работы с изображением пальмовых листьев. Полотно размером 5,5 на 3 метра выполнено без швов. Кровать сделана на заказ по эскизам автора проекта на производстве в Санкт-Петербурге.
Houzz тур: 170 кв.м собранные из трех (!) квартирМария Рублева
Кровать по эскизам автора Colar home; тумбы My imagination lab; стол The idea; стулья Cattelan italia; ковер Kover store

Спальню дополнили рабочим местом — небольшим столом, где можно разобраться с бумагами. А также зоной чтения — кресло с торшером в углу комнаты.
Houzz тур: 170 кв.м собранные из трех (!) квартирМария Рублева
САНУЗЕЛ
В основном санузле решили поставить просторную душевую кабину. Лейка имеет несколько функций: от режима тропического дождя до гидромассажа. Получился личный СПА-кабинет на паре квадратных метров.
Houzz тур: 170 кв.м собранные из трех (!) квартирМария Рублева
Умывальник выбрали с двумя раковинами, чтобы хозяевам было удобно собираться по утрам. В том же стиле, что и умывальники, сделаны шкафчики для хранения.

Стены отделаны широкоформатным керамогранитом, размером 1,2 на 2,5 м. Из-за размера оставлять их в квартиру пришлось небольшими партиями на лифте.
ОБ АВТОРЕ ПРОЕКТА…
Перейдите на страницу Марии Рублевой, чтобы изучить другие работы из портфолио дизайнера

У ВАС ЕСТЬ ДЛЯ НАС ПРОЕКТ…
Загрузите съёмку в свой профиль на Houzz, отправьте ссылку с кратким описанием на editorial@flatica.ru

Для справки: Какие объекты мы публикуем

Комментарии 21

А родителям я бы, конечно, попробовала сделать гардеробную с окном! У них 3 окна, можно было бы одно точно выделить!
Поддержу тех, кто удивлён такой планировке детской. Я бы сделала 2 аналогичные по функционалу детские с той же раздвижной перегородкой. Захотелось - раздвинули и у мальчиков мега комната для совместных игр. Захотелось - закрыли и в каждого своё личное пространство для отдельных занятий и встреч с друзьями. Опять же, если один болеет, а другой нет, это тоже удобно. В общем, странное решение
ГОСПОДИ, КАК ЗДЕСЬ ГРУСТНО..." И НЕКОМУ РУКУ ПОДАТЬ ..."

Оставьте комментарий

Читать похожие статьи