Юнион Парк 2
Мария Рублева

Мария Рублева

Дизайнеры интерьера

4.33

·

10 отзывов

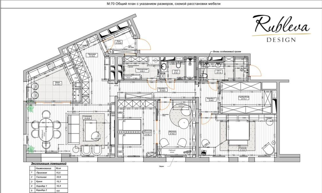
Юнион Парк 2

Особенностью этого интерьера служит возможность моделирования пространства. Дизайнерам удалось объединить три небольшие квартиры свободной планировки в одну просторную квартиру, площадью 170 кв.м. Пространство позволило рассмотреть разные варианты расположения зон внутри квартиры. Благодаря глубокому пониманию человеческих потребностей и чувствуя атмосферу семьи, целью команды Rubleva Design стало — создать функциональное пространство, удобное для проживания семьи с двумя мальчиками. Создать интерьер, который не потеряет актуальность с годами, а будет жить вместе с его хозяевами. . Было создано четыре варианта планировочных решений, а итоговый вариант включил фрагменты из первых двух, санузлы и постирочную разместили на одной линии, в другой зоне расположилась кухня со столовой-гостиной, а жилую часть вместе с гардеробной вынесли вглубь квартиры. .

Другие фотографии в проекте

Вопросы к фото 0

Задайте вопрос

Вам ответят эксперты. Пришлем уведомление, когда вам ответят

Похожие фотографии

ДОМ Гусь Хрустальный

ДОМ Гусь Хрустальный

ДОМ Гусь Хрустальный

Галерея Дизайна Юлии Казаковской

Дизайн интерьера квартиры в ЖК «ÁLIA (АЛИА)» в стиле джапанди

Дизайн интерьера квартиры в ЖК «ÁLIA (АЛИА)» в стиле джапанди

Дизайн интерьера квартиры в ЖК «ÁLIA (АЛИА)» в стиле джапанди

Студия дизайна Artum

Дом в Сестророецке

Дом в Сестророецке

Дом в Сестророецке

Ксения Борисова

Эстетика Петроградского района

Эстетика Петроградского района

Эстетика Петроградского района

Студия дизайна и ремонта Katushhha

Фотосъемка ЖК Серебряный Фонтан

Фотосъемка ЖК Серебряный Фонтан

Фотосъемка ЖК Серебряный Фонтан

Андрей и Елена Некрасовы

Бюргерский уют

Бюргерский уют

Бюргерский уют

Марсель Искандаров

ЖК Will Towers 160м.кв.

ЖК Will Towers 160м.кв.

Представляем визуализацию стильного и современного проекта квартиры, сочетающего гостиную и кухню в едином пространстве. Интерьер выполнен в светлых, нейтральных тонах с элегантными акцентами, что создаёт атмосферу уюта и респектабельности. Ключевые особенности: Гостиная зона: доминирует большой угловой диван светло-бежевого цвета с мягкими декоративными подушками в бежево-коричневой гамме. Центральным элементом выступает журнальный столик с мраморной столешницей и золотистыми ножками, подчёркивающий роскошь интерьера. Освещение: многоуровневая система освещения включает стильную современную люстру с каскадными элементами, точечные светильники на потолке и настенные бра с золотистой фурнитурой. Это создаёт мягкий, рассеянный свет и подчёркивает геометрию пространства. Кухонная зона: выполнена в лаконичном дизайне с матовыми фасадами светло-серого цвета и золотистыми акцентами. Выделяется мраморная панель с выразительным природным рисунком, которая служит стильным фартуком. Встроенная техника органично вписана в дизайн. Обеденная зона: компактный обеденный стол с мягкими стульями расположен рядом с кухней, сохраняя целостность пространства. Отделка и материалы: преобладают натуральные текстуры — дерево, мрамор, текстиль. Пол выполнен в светлых древесных тонах, дополнен мягким ковром с неброским рисунком. Цветовая гамма: гармоничное сочетание бежевого, серого, золотистого и древесных оттенков создаёт сбалансированный и тёплый интерьер. Детали: изящные декоративные элементы (вазы, аксессуары) подчёркивают утончённость дизайна, не перегружая пространство. Стиль: современная классика с элементами минимализма. Целевая аудитория: ценители элегантного, но практичного дизайна, желающие создать в доме атмосферу комфорта и статуса.

ЖК Will Towers 160м.кв.

Андрей Орел

"Бульвар цветов-1" Красноярск.

"Бульвар цветов-1" Красноярск.

"Бульвар цветов-1" Красноярск.

Ксения Недопекина

"Бульвар цветов-1" Красноярск.

"Бульвар цветов-1" Красноярск.

"Бульвар цветов-1" Красноярск.

Ксения Недопекина

ЖК Ленинградский квартал

ЖК Ленинградский квартал

ЖК Ленинградский квартал

Екатерина Карбышева

Квартира в немецком минимализме

Квартира в немецком минимализме

Квартира в немецком минимализме

Студия Квадра

Интерьер  таунхауса

Интерьер таунхауса

Интерьер таунхауса

Елена Орлова