
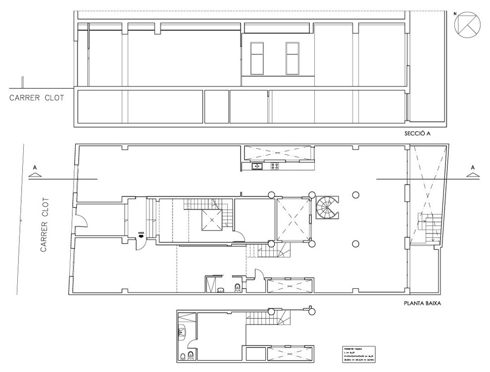
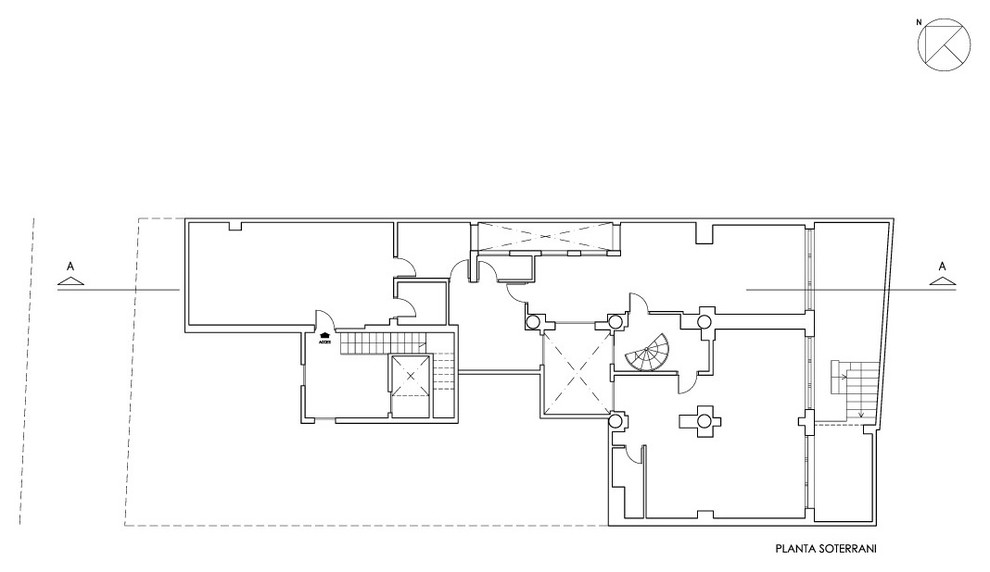
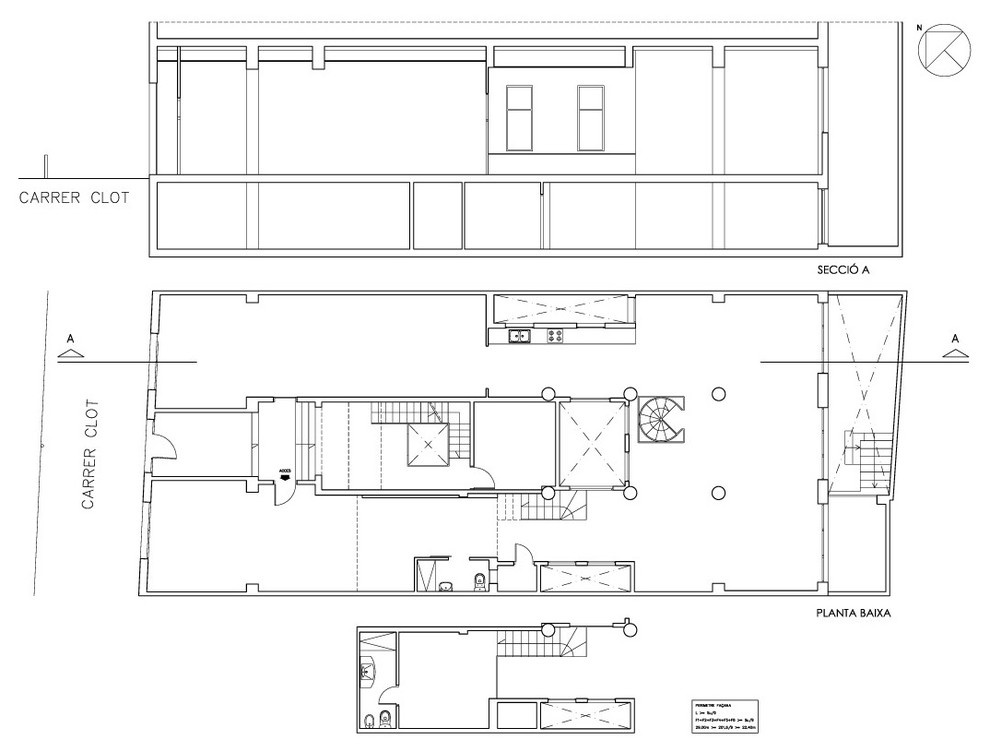
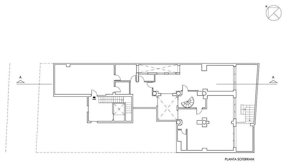
Houzz Украина: Квартира в центре Киева
Евгения Назарова
16

1 сент. 2017
Обновлено 24 окт. 2017
8 л.

Houzz Украина: Квартира в центре Киева
Евгения Назарова
16

Houzz тур: Современный ар-деко для молодой семьи
Евгения Назарова
15

Houzz тур: 200 кв.м— квартира пары с тремя гардеробными
Houzz Россия
13

Houzz Беларусь: Квартира с тремя (!) вытяжками
Houzz Россия
10

Houzz тур: Яркая квартира с супер быстрым ремонтом
Евгения Назарова
13

Houzz тур: Квартира с окнами в парк и индустриальной эстетикой
Houzz Россия
17

Houzz тур: Квартира в новом доме с атмосферой старого Петербурга
Houzz Россия
14

Houzz Германия: 101 метр ткани — на пошив штор в доме
Houzz Россия
6

Houzz тур: Монохромная квартира для юриста в Екатеринбурге
Евгения Назарова
19

Houzz тур: Минимализм, неоклассика и редкие сорта камня
Евгения Назарова
14

Houzz Украина: Апартаменты в Киеве с открытой террасой
Евгения Назарова
15

Houzz тур: Прованс посреди индустриальной Москвы
Houzz Россия
16

Houzz тур: Двухуровневый лофт в центре Москвы
Евгения Назарова
16

Houzz Украина: Квартира с изгибами и минимумом наполнения
Houzz Россия
10

Houzz Беларусь: Квартира для дружной семьи с двумя детьми
Houzz Россия
7

Houzz тур: 52 кв.м — чёрно-белая квартира с малиновыми акцентами
Евгения Назарова
15

До и после: Квартира в бывшем заводском корпусе — в центре Москвы
Евгения Назарова
35

Houzz Украина: Интерьер, вдохновлённый австрийским шале
Евгения Назарова
9
Tatiana Prygova
8 л.