logo

Houzz Франция: Небольшая парижская квартира в скандинавском стиле

Светлая и прекрасно организованная, эта квартира площадью 30 кв.м воплощает французскую любовь к порядку и скандинавскую — к простоте

Houzz Россия
Houzz Россия

22 мар. 2015

Обновлено 27 нояб. 2017

Дизайнер Ришар Гибо (Richard Guilbault) с блеском справился с переделкой этой крошечной парижской квартиры. Изначально она выглядела сильно раздробленной: «Квартира была поделена на 4 небольших пространства. Перед продажей она была в спешном порядке обновлена, и мы не знали, чего ждать от нее, если поскрести наспех положенную краску или поднять полы. Тем не менее, мы решили снести все что было, и впоследствии убедились в правильности принятого решения — особенно в том, что касается паркета».

О проекте
Место: квартира в доме начала XX века, XVIII округ Парижа, Франция
Площадь: 30 кв.м
Год: завершение проекта 31 декабря 2014 г. Ремонт длился два месяца
Кто здесь живет: семейная пара с котом
Автор проекта: дизайнер Ришар Гибо
Фото:
Meero
«Заказчики, которых я хорошо знаю, внимательно прислушивались ко всем моим предложениям. Квартира по форме напоминает куб со сторонами 6 и 5 м», — объясняет дизайнер. Поэтому было решено придать помещению размах, отделив частные зоны (спальню и ванную комнату) от пространства с открытой кухней, столовой и гостиной: при новой планировке квартиры гостиная с кухней составили половину от общей площади. Вход в квартиру осуществляется через маленький коридор, который огибает ванную комнату, а затем ведет в гостиную.
Вдоль стены от входа до другого края гостиной Ришар разместил большой встроенный шкаф. Это центральное ядро проекта, по крайней мере, с практической точки зрения, — основная система хранения в квартире. «Здесь спрятаны не только отдельные технические элементы, но также холодильник, винный шкаф, отсек для хранения продуктов, гардеробная и даже место для ванных мелочей», — уточняет автор.
Заметный разрыв в единой линии шкафов объясняется тем, что шкаф в коридоре менее глубокий, шириной 20 см, а в гостиной — 60 см, здесь размещены более крупные элементы.
Мебельные фасады складываются в динамичную композицию за счет чередования белых поверхностей и фасадов из березовой фанеры. Кроме того, предусмотрены четыре ниши со светодиодной подсветкой.
«Я выбрал березу из-за ее очень светлого оттенка, хорошо подходящего к скандинавскому стилю. Вместо дверных ручек мы предпочли сделать маленькие круглые отверстия, чтобы подчеркнуть гладкость поверхности и простоту мебели», — объясняет дизайнер.
Пространство кухни и гостиной кажется очень большим. Кроме того, окна квартиры выходят на юг, что делает интерьер не только очень светлым, но и теплым. Именно поэтому заказчики и дизайнер выбрали лаконичный декор, который в данном случае смотрится одновременно строго и по-скандинавски.
Три подвесных плафона выстроены в одну линию и подчеркивают столовую часть. Они выполнены из алюминия и выкрашены изнутри белым, а снаружи — песочным цветом. Две белые полочки, выполненные на заказ, оживляют поверхность стены, вдоль которой расположен диван. Стол: малая версия модели Bell, Normann Copenhagen; диван: ИКЕА
На стене между окнами Ришар установил умный радиатор: его можно программировать. Этот прибор способен обогреть всю квартиру, а его строгий дизайн прекрасно вписывается в интерьер комнаты. Радиатор: Oniris, Atlantic
«Несмотря на малые размеры (всего 1,8 м), кухня не должна была быть похожа на студенческий кухонный угол», — вспоминает Ришар. Поэтому пространство кухни максимально оптимизировали, не нарушая при этом гармонию общей комнаты. Это хорошо оборудованная кухня, с вытяжкой, шкафами, микроволновкой, стиральной и сушильной машинами, духовкой и варочной панелью из стеклокерамики. Кухня: Conforama; мозаика : Horus Art
«Изначально пол был покрыт слоистым пластиком. Мы немного волновались, что же под ним, и были чрезвычайно удивлены, когда обнаружили там старый паркет в хорошем состоянии», — рассказывает Ришар. Белые полосы, которые видны на этой фотографии, — это подчеркнутые архитектором бывшие очертания перегородок. «Для меня это способ сохранить следы, своего рода историю места», — замечает дизайнер.
«Спальню перенесли и полностью переосмыслили. Теперь эта комната больше похоже на капсулу, чем на полноценную спальню! Кровать установлена на возвышении, которое вмещает в себя место для хранения», — описывает комнату дизайнер. Подумав о комфорте всех членов семьи, Ришар предусмотрел небольшую лазейку, через которую кошка может пробираться к своей корзине, устроенной в нише.
В ванной комнате необходимо было вместить решительно все в помещение площадью 2.3 кв.м — а это уже похоже на подвиг. Душевую кабину делали на заказ у итальянцев, но немного приподняли — из соображений техники безопасности. Кроме того, необходимо было увеличить степень освещенности помещения, снабженного небольшим окошком, выходящим в гостиную, поэтому Ришар остановил свой выбор на белой плитке для стен и большом, сделанном на заказ зеркале. Размещенное над раковиной, оно добавляет в помещение глубины и отражает свет.
Мебель под умывальником делалась в той же мастерской, которая изготовила и всю остальную мебель в квартире. Сделанная на заказ мебель (глубиной 30 см и длиной 1.40 м) позволила рационально использовать пространство. Главный успех же этой ванной комнаты заключается в напольном покрытии: здесь уложили нежную цементную плитку голубого и зеленого оттенков с почти гипнотическим орнаментом.
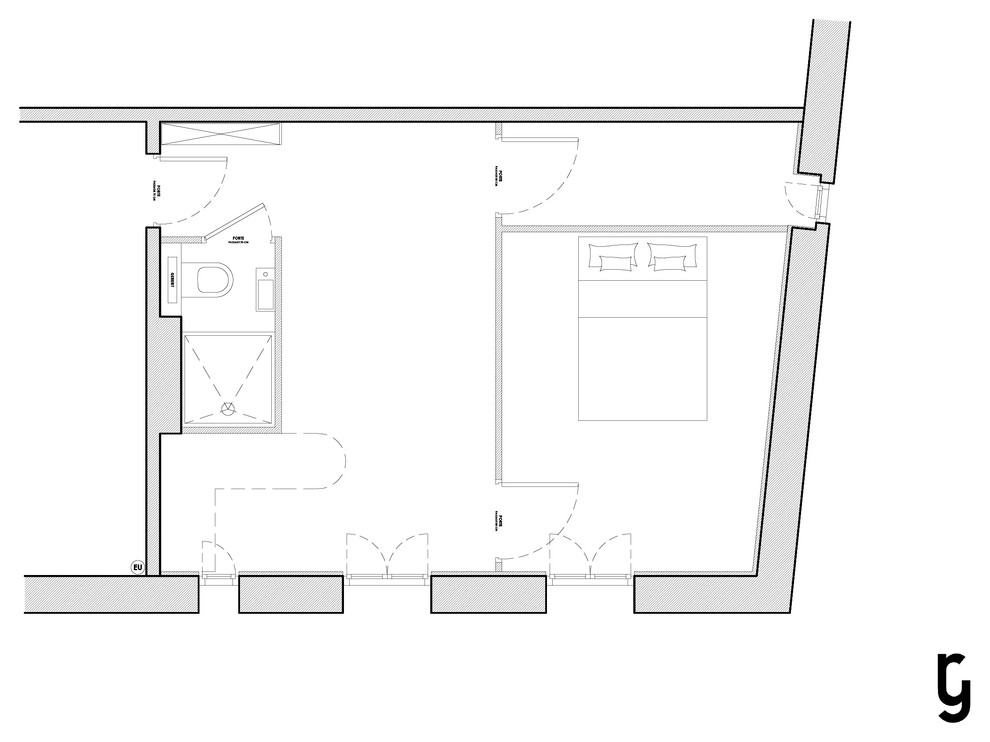
ДО: Изначальный план квартиры, поделенной на 4 маленьких помещения.
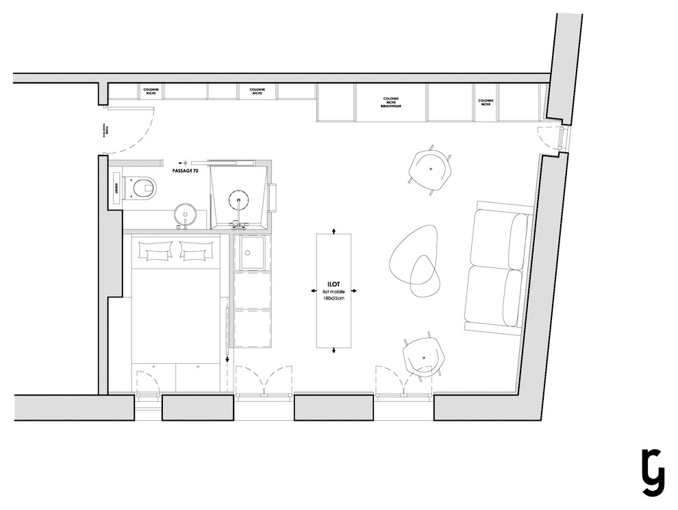
ПОСЛЕ: Основной объем занят большой жилой комнатой, хорошо освещенной благодаря двум окнам. Вход в квартиру ведет через маленький коридор, из которого можно попасть в ванную комнату. Он огибает прямоугольник, в который вписаны кухня и спальня.

Комментарии 8

Да, я тоже считаю изначальную планировку более удачной. Только бы продлила су до окна и чуть уменьшила спальню в пользу гостиной. Спать в такой берлоге без особой необходимости я б не стала ). Понравилась идея так заделать места, где отсутствует паркет, и выдать это за сохранение »истории помещения» )))
Очень спорное, даже странное решение, особенно если учесть количество и расположение окон в квартире. На этой площади можно было легко разместить и полноценную спальню, а не клетушку, и уютную гостиную. И уж точно было бы куда разумнее обойтись без длинного узкого коридора, который привел к пустой трате ценных квадратных метров.
kuzn_n

8 л.

Очень понравилось! Особенно спальня-капсула. Я бы в такой квартире согласилась жить.

Оставьте комментарий

Читать похожие статьи