logo

Гостиная недели: Стеклянная стена, большой камин и оранжевое настроение

Классическая обстановка этой гостиной выглядит и респектабельно, и немного игриво, благодаря игре масштабов и оранжевым деталям

Мария Эстрова
Мария Эстрова

29 мая 2015

Обновлено 26 янв. 2016

Постоянный автор Houzz, по совместительству - театральный и кинокритик.

У хозяйки этой рязанской квартиры Светланы двое детей, однако старший сын уже живет самостоятельно, потому многое пришлось переделывать под новые условия жизни. Так, до ремонта в квартире были три комнаты и длинный неотапливаемый балкон, который авторы проекта утеплили и поделили на три части. Одну часть они присоединили к спальне, вторую — к санузлу, а третью — к детской. На месте нынешних гардеробной и прихожей изначально размещался объемный холл. Все работы проводили дизайнеры из S.Y.D. Interiors Андрей Ежов и Сергей Соломатин — это уже не первый их проект для Светланы. «И надеюсь, не последний», — улыбается Сергей.

О проекте
Место: новостройка в центре Рязани
Размер: трехкомнатная квартира площадью 119,7 кв.м
Кто здесь живет: бизнес-леди Светлана с дочерью
Автор проекта: S.Y.D. Interiors Studio
Бюджет: «Всего было потрачено, в старых ценах, в районе 7,5 миллионов рублей. В эту сумму вошли работа отделочников, черновые и лицевые материалы, мебель, свет, сантехника и текстиль: в общем, все «под ключ»», говорит Сергей
Фото: Андрей Ежов
Гостиная недели: Стеклянная стена, большой камин и оранжевое настроение
Гостиная недели: Стеклянная стена, большой камин и оранжевое настроение
Гостиная выглядит просторной и светлой благодаря выполненной по эскизам дизайнеров стеклянной перегородке, отделяющей комнату от кухни. Такое решение создает интересную двойственность: помещения одновременно и разделены, и совмещены, как и просила заказчица. «Концепцию интерьера мы предложили сами, так как с заказчицей работаем не в первый раз. Светлана производит впечатление достаточно строгого человека, но в интерьере не хотела ограничиваться нейтральными красками. Поэтому в основной серый мы ввели немного ярких цветов — клиентке очень понравилось», — рассказывает Сергей Соломатин.

«Перегородка со стороны гостиной стационарная и нигде не открывается», пояснил Сергей. Вход на кухню, не отделенную от остального помещения дверью, расположен напротив широкого входного проема, ведущего в прихожую.
Пол гостиной (из бюджетных соображений) был покрыт почти неотличимым от паркета ламинатом коньячного оттенка, имитирующим древесину дуба.

Диван: CTS Salloti; столик: Salda; стеклянная перегородка: Pushe
Гостиная недели: Стеклянная стена, большой камин и оранжевое настроение
Из-за перегородки со стороны кухни видна вся гостиная. Справа находится большой гелевый камин, занимающий целую стену при входе в комнату. «Сделали бы и настоящий, но увы, особенности расположения квартиры не позволяли», разъяснил Сергей. . . Неброскую люстру выделили при помощи профилированной розетки. . . Яркая скатерть на обеденном столе и стоящие вокруг стола желтые стулья гармонично смотрятся в комплексе с другими колоритными элементами, освежающими комнату. Они, несмотря на классический стиль интерьера, делают пространство более современным. . . Стол и стулья: Calligaris
Гостиная недели: Стеклянная стена, большой камин и оранжевое настроение
Гостиная недели: Стеклянная стена, большой камин и оранжевое настроение
Большой камин возник на месте бывшего входного проема. Картины, висящие по сторонам, дизайнеры подбирали долго: «То заказчице не нравились, то к интерьеру не подходили», — вспоминает Сергей. Компромиссом стали изображения из фотобанка, находившиеся в свободном доступе в сети. После цветокоррекции они отлично вписались в комнату. Оранжевые ленты, на которых закреплены картины, подчеркивают и продолжают оранжевый красочный кант, идущий под потолком высотой 2,8 м.

Камин сделан из гипса и выкрашен под камень. Прототип Светлана увидела где-то на отдыхе: она сфотографировала его и попросила вставить в интерьер. Поскольку стена, которую украшает камин, довольно длинная относительно всей гостиной, камин решили сделать пропорциональным ей по размеру. «Мы его немного масштабировали — в оригинале камин был меньше — и чуть-чуть оптимизировали для отделочников, рассказал Сергей. Хозяйка квартиры им постоянно пользуется, и он стал одним из главных акцентов в гостиной. Хотя в его размерах есть некоторая эпатажность».
Гостиная недели: Стеклянная стена, большой камин и оранжевое настроение
Гостиная недели: Стеклянная стена, большой камин и оранжевое настроение
В гостиной (так же, как в других комнатах квартиры) авторы использовали множество разнообразного текстиля. Кресла из мебельного бархата, плюшевые пуфы, диван из ткани, напоминающей рогожку, шторы и подушки из атласа и рогожки в сочетании с неброским ковриком создают здесь необходимый уют.
«Весь текстиль шили в нашей студии, в том числе и подушки на кресла и диван. В целом особых пожеланий по материалам у хозяйки не было: самое главное это поменьше «пластмассы» и чтобы все вписалось в бюджет. Все элементы интерьера выбирали мы сами, согласовывая стоимость», рассказал Сергей.

Кресла, пуфы: Le Home
Гостиная недели: Стеклянная стена, большой камин и оранжевое настроение
Стеллажи (как и большая часть мебели в квартире) были изготовлены по авторским чертежам. Яркий цвет их задней стенки продолжает оранжевое настроение, заданное аксессуарами и деталями отделки комнаты. «Цвет получился очень приятный, сложный», комментирует автор проекта.

Стена, на которой расположен телевизор, приехавший со старой квартиры заказчицы, выполнена из МДФ-панелей и выкрашена в тот же цвет, что и стеллажи: «Мы хотели сделать стенку единой, а не просто отдельно стоящие стеллажи».

Тумба под ТВ: Modenese Gastone; стенка со стеллажами: Pushe
Гостиная недели: Стеклянная стена, большой камин и оранжевое настроение
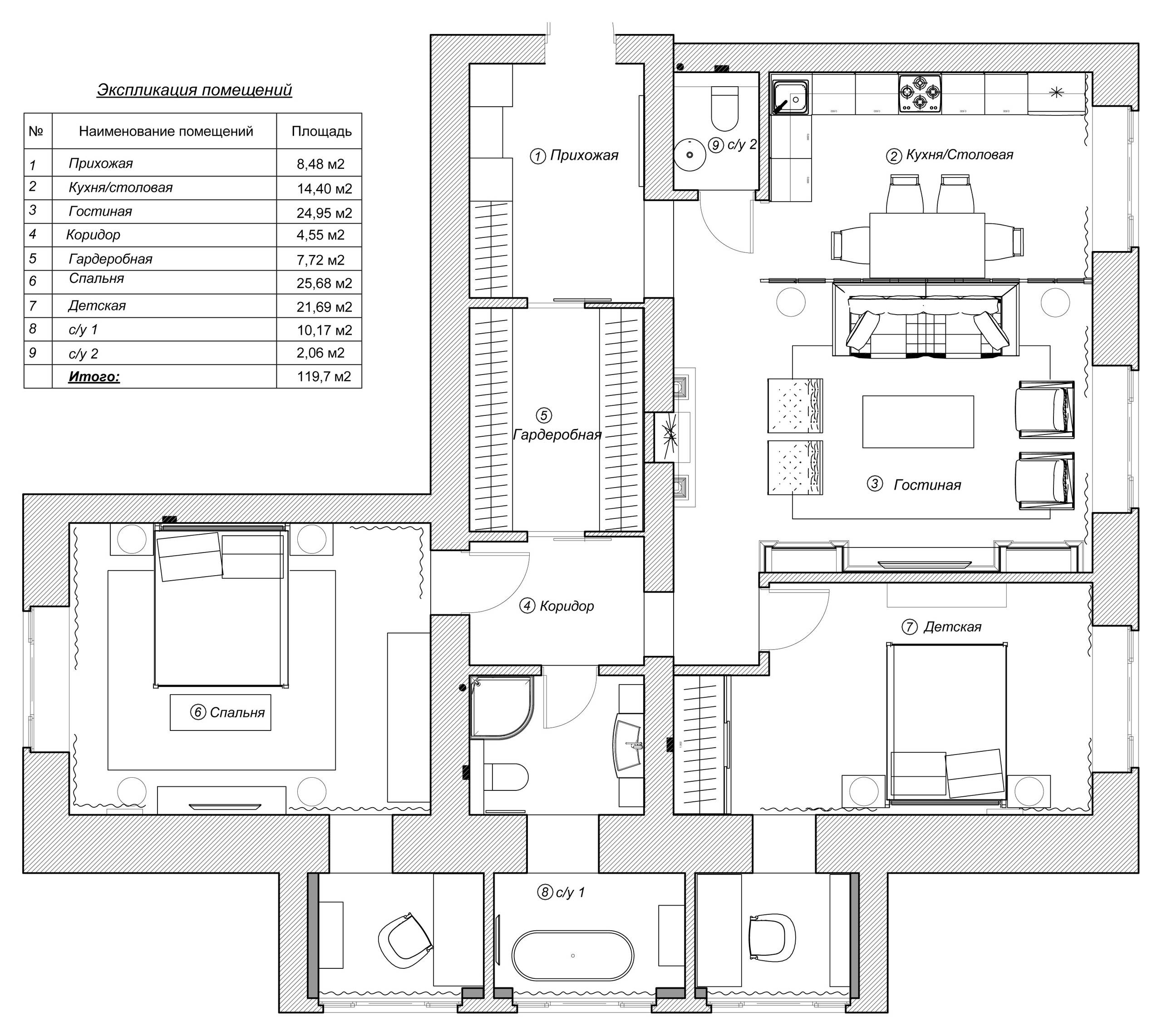
План квартиры
Справа сверху кухня и гостиная, разделенные стеклянной перегородкой.

«Владелицу квартиры удивила планировка (относительно той, что была изначально) и порадовало цветовое решение рассказал Сергей. Это один из немногих проектов, где все прошло, как на одном дыхании. Проект мы сделали за 1,5 месяца, а весь процесс отделки, включая закупку материалов и мебели, длился около полугода. На финише получилось все, как в проекте, не поменяли ничего редкий случай. Только пуфы перед камином немного другие, так как изначально заложенные в проект оказались дороговаты, да и ждать их нужно было слишком долго».

ПРЕДЛОЖИТЕ СВОЙ ПРОЕКТ ДЛЯ ПУБЛИКАЦИИ…
Загрузите фотосъемку в свой профиль на Houzz, отправьте ссылку и краткое описание проекта на editorial@flatica.ru.

Мы обязательно свяжемся с вами, если примем решение о публикации.

Комментарии 9

Стильно, но не очень функционально. Жаль, что так мало фотографий.
Жаль что нет фото других комнат. В целом уютно и перегородка роскошна!
rbtr

10 л.

Не понравилось. Особенно убило, что за 7,5млн, в Рязани(!), при том, что "В целом особых пожеланий по материалам у хозяйки не было: самое главное — это поменьше «пластмассы»", пришлось довольствоваться ламинатом...

Оставьте комментарий

Читать похожие статьи