logo

Есть задача: Спальня в гостиной

Как разместить полноценную кровать в гостиной или комнате однокомнатной квартиры. Сравним проекты дизайнеров

Houzz Россия
Houzz Россия

28 апр. 2018

Обновлено 17 окт. 2018

Ищете место для полноценного сна на кровати в условиях нехватки метров? Посмотрите, как решали ту же самую задачу российские дизайнеры в реализованных проектах для своих заказчиков.
Есть задача: Спальня в гостинойКира Потшивко
1. Спальня за стеклом
Место: г. Сочи
Авторы проекта: GraniStudio
Размер: квартира-студия 55 кв.м

Владелец хотел сохранить ощущение простора, которое давали панорамные окна с видом на море. Требовалось использовать в дизайне антивандальные материалы, поскольку время от времени квартира должна сдаваться.

Стеклянные перегородки выполнили из толстого закаленного стекла — вкупе с плотными шторами они дали достаточную шумоизоляцию. Эффект, конечно, не сравнимый с полноценной стеной или перегородкой, но вполне ощутимый.
Особенности планировки: Решение со стеклянными перегородками позволило разместить спальную часть у окна, сделав её уединенной, но не закрывая свету доступ к кухне и дальним углам. Это помогло сохранить простор в студии. Можно было, конечно, разместить небольшую и довольно темную спальню на месте кухни. Но от такого решения отказались в пользу стеклянных перегородок: воздух и простор — важнее.

Системы хранения сосредоточены в прихожей: там находятся шкаф для верхней одежды, гардеробная и холодильник.
Есть задача: Спальня в гостинойКира Потшивко
В кадре: мебель Calligaris, Cattelan, Ligne Roset, BoConcept; свет Lucide, Mark Slojd, SLV, Nelly Straight, ARTE LAMP, Tolomeo
Есть задача: Спальня в гостинойКира Потшивко
Неожиданные проблемы: Стеклянные перегородки для спальни не проходили по габаритам в лифт. Пришлось поднимать их на седьмой этаж по фасаду — с помощью промышленных альпинистов.

БОЛЬШЕ ФОТО…
Все кадры из этой квартиры и другие проекты дизайнера в портфолио GranniStudio
__________________________
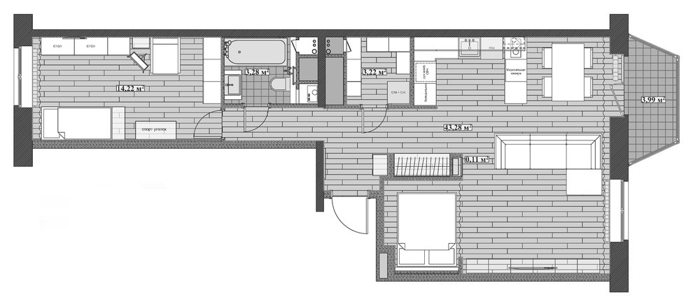
Есть задача: Спальня в гостинойЮлия Кирпичева
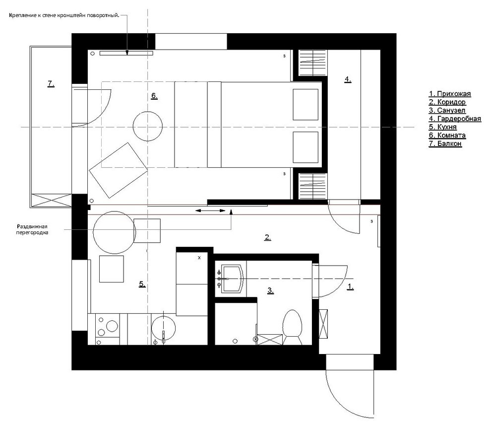
2. Спальня, открытая к кухне
Место: Москва, район Нового Арбата
Автор проекта: Юлия Кирпичева
Размер: студия 29 кв.м

Владелица просила предусмотреть отдельную гардеробную, полноценную кровать (минимум 160х200) и раскладной диван для гостей. И все это на 29 кв.м. Причем в квартире есть газовая плита, ограничивающая возможности перепланировки. Решение было одно: использовать каждый сантиметр.
Планировка квартиры

Особенности планировки: Планировочное решение во многом определила… гардеробная — у заказчицы много вещей, одежды и обуви. Причем ставить шкаф хозяйка категорически не хотела. Гостиную-спальню пришлось планировать «по остаточному» принципу.
Есть задача: Спальня в гостинойЮлия Кирпичева
Используя классическую систему осей, в центре Юлия разместила двуспальную кровать, а в ее изножье поставила диван. Так сложилась функциональная зона, где к кровати можно подойти с двух сторон.

Обратите внимание: Кухню, в которой есть газ, объединить с гостиной по требованиям БТИ нельзя. Между двумя комнатами обязательно должна быть либо дверь, либо сдвижная перегородка. Здесь между кухней и гостиной — широкий проем, в котором смонтировали перегородку «карманного типа». Когда полотно задвинуто на место парковки, создается ощущение объединенного пространства.
Есть задача: Спальня в гостинойЮлия Кирпичева
В проекте использовано винтажное кресло (Италия, 19501960-е) из Repeat story, которое отреставрировали и переобили; диван и столики ИКЕА; текстиль КАДО; автор картины на первом кадре в проекте Григорий Рощин

БОЛЬШЕ ФОТО…
Остальные кадры из этой квартиры и другие проекты дизайнера в портфолио Юлии Кирпичевой
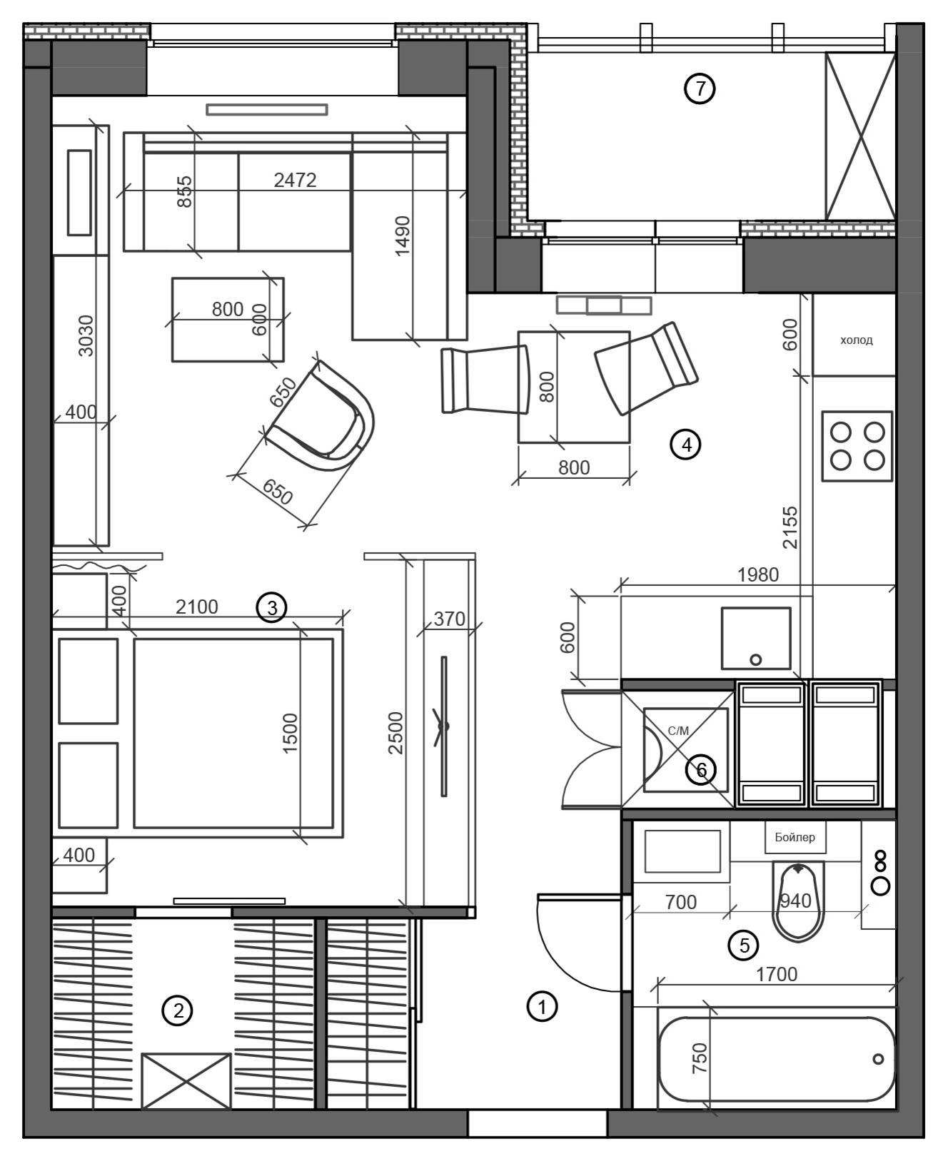
Есть задача: Спальня в гостинойТатьяна Лейтан
3. Спальня за камином
Место: Новосибирск
Автор проекта: Татьяна Лейтан, Leytan Design
Размер: студия 39 кв.м

Изначально у этой квартиры неудобная вытянутая планировка, где всё на виду. Причем квартира просматривается насквозь буквально от входной двери. Заказчики просили полноценную спальню. Но любые стены перекрывали единственное окно.
Есть задача: Спальня в гостинойТатьяна Лейтан
Планировка квартиры до и после ремонта

Особенности планировки: Застройщик отвел для кухни маленькую нишу, где не получилось бы разместить нужную технику. А после сдачи дома выяснилось, что трубы оказались совсем не там, где было указано на плане. Дизайнерам пришлось «на лету» придумывать новый план размещения сантехники и по сантиметрам вымерять всё, вплоть до размера унитаза. Прямо на стройке делали раскладку плитки, чтобы всё вписалось как должно.
Есть задача: Спальня в гостинойТатьяна Лейтан
Конструктив дома позволил изменить планировку, выделив скрытую от двери спальню и небольшую гостиную. Кровать спрятали за мебельной перегородкой, в которую встроен камин.

Квартира получилась светлой и воздушной. Вся корпусная мебель сделана на заказ. Перегородка с камином не только скрывает спальную часть, но и работает стенкой для телевизора. При необходимости её можно легко демонтировать, если когда-нибудь хозяйка решит изменить интерьер.
Есть задача: Спальня в гостинойТатьяна Лейтан
В проекте: инженерная доска «Мануфактура паркета»; текстиль DDC, Daylight; стулья и журнальный столик Barcelona Design; белый стул Lars, Julia Grup; декор — салон HomeDecor; камин Dimplex; диван ИКЕА; ковер Grand Carpets

БОЛЬШЕ ФОТО…
Остальные кадры из этой квартиры и другие проекты дизайнера в портфолио Татьяны Лейтан
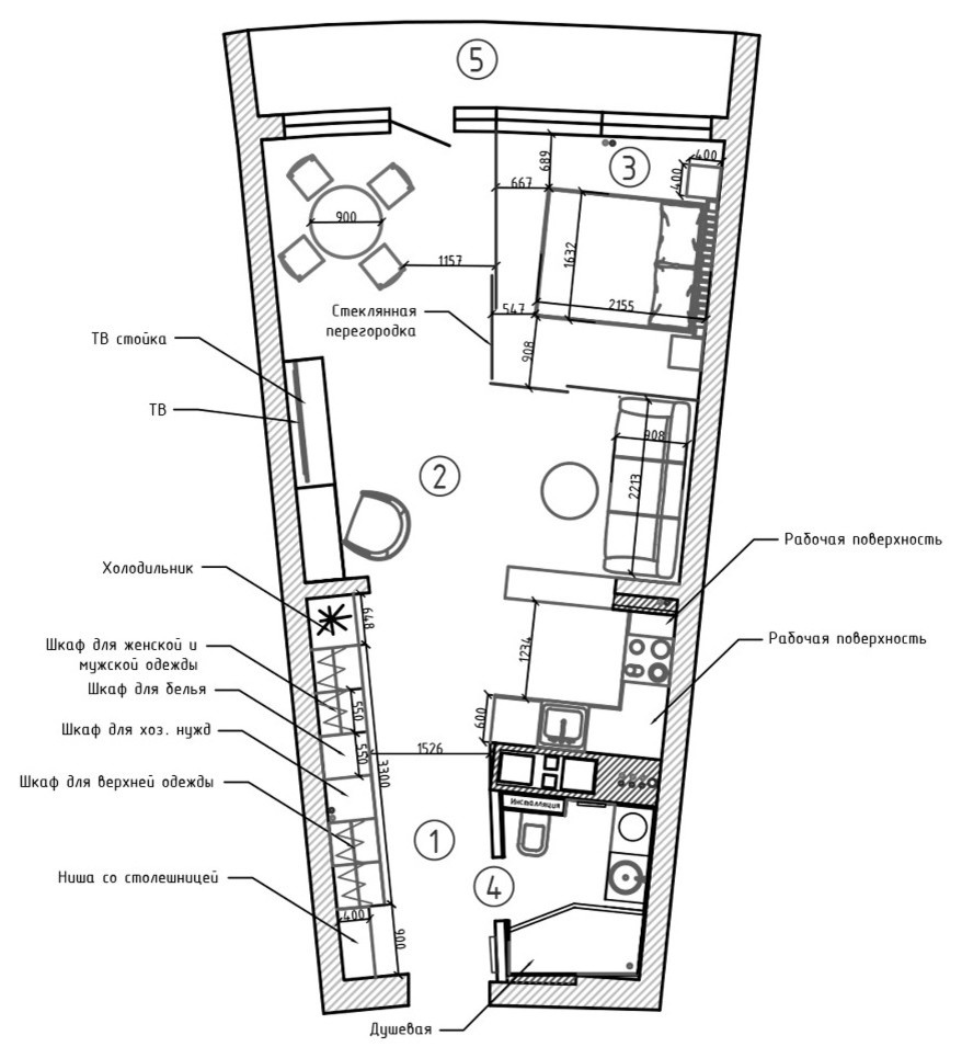
Есть задача: Спальня в гостинойНаталья Сычева
4. Спальня за… обувницей
Место: Санкт-Петербург
Автор проекта: Наталья Сычева
Размер: однокомнатная квартира 38 кв.м (спальня-гостиная 18 кв.м)

Хозяйка работает и живет на два города. Она не любит съемное жилье и при этом не планировала вкладываться в квартиру для кратковременных остановок. В процессе проектирования стало ясно, что заказчица останется в Петербурге надолго — скоро она планирует купить квартиру побольше.

Владелица просила совместить в комнате функции гостиной и спальни, но обязательно разделить их; сделать гардеробную и места для хранения обуви. Для нее было важно поставить полноценную кровать, а в гостиной части — большой раскладывающийся диван.
Есть задача: Спальня в гостинойНаталья Сычева
Планировка квартиры

Особенности планировки: Пространство нужно было зонировать так, чтобы раскрыть его и не перегрузить. На гардеробную смогли выделить только 3 кв.м. Этого только-только хватало для одежды, для обуви места уже не было. Тогда дизайнер заменила стену, отделяющую спальню от коридора, двухметровой тумбой — с местом хранения внизу и пропускающей свет резной частью наверху. И этим решила сразу несколько задач: зонировала спальню, организовала место для хранения 3540 пар обуви и визуально раскрыла пространство за счет резной перегородки.
Есть задача: Спальня в гостинойНаталья Сычева
На встрече заказчица показала дизайнеру шелковый платок с восточным орнаментом. Там преобладали терракотовые, шоколадные, розоватые и бордовые краски. От этой гаммы, которая очень нравилась владелице, и оттолкнулись в разработке палитры интерьера. За основу взяли современный стиль, объем выстроили простыми лаконичными формами, наложив цветовую гамму того самого платка.
Есть задача: Спальня в гостинойНаталья Сычева
В проекте: резная перегородка сделана в мастерской «Русский Мастер»; кровать Ascona; прикроватный столик Resistube; лампа Zara Home; торшер и ковер ИКЕА; декор и текстиль H&M Home; кресло Home Spirit; диван «Неаполь», Di-Van; шторы из салона штор Fiera; фактурная штукатурка на стенах Cebos

БОЛЬШЕ ФОТО…
Остальные кадры из этой квартиры и другие проекты дизайнера в портфолио Натальи Сычевой
Есть задача: Спальня в гостинойАртём Попов
5. Спальня в нише
Место:
Московская область
Автор проекта: Артём Попов
Размер: квартира 69 кв.м

Это была квартира со свободной планировкой. Владельцы попросили совместить кухню и гостиную, разделив места для отдыха и готовки. При этом обязательным условием стало размещение кровати: родители устали от раскладных диванов. Проблему запахов решили установкой мощной вытяжки и канальной системы вентиляции. Проработали систему отведения воздуха.
Особенности планировки: Основная «фишка» этого проекта — наличие многофункциональных ниш. Они позволяют задействовать каждый сантиметр площади и придают интерьерам визуальную динамику. Кухню соединили с гостиной-спальней, но отделили место для сна плотными шторами со скрытыми креплениями.

Помимо текстиля, роль своеобразного разделителя играет сложное устройство потолка и стены. Они формируют куб вокруг просторной двуспальной кровати. Подвесной потолок опущен на 10 см: там проложили слой шумоизоляции.
Есть задача: Спальня в гостинойАртём Попов
Диван Calligaris

Кровать оснащена качественным матрасом, на котором комфортно спать. В нише неподалеку можно хранить мелкие вещи. Под постелью организовали выдвижные ящики, где хозяева хранят постельное белье, личные вещи, складные стулья и даже ёлку.

В гостиной части поставили стол-трансформер с удобной системой хранения. При необходимости у него откидывается крышка, и на поверхности можно разместить ноутбук. От традиционного для гостиной дивана не отказались — он стоит почти в центре комнаты. Благодаря компактной форме и невысокой спинке эта модель не загромождает пространство, смотрится лаконично и аккуратно.
Есть задача: Спальня в гостинойАртём Попов
В небольших квартирах вопрос хранения встает особо остро, поэтому даже консоль оснащена шкафчиками. Один из них с секретом. В доме, где есть маленькие дети, важно предусмотреть тайник для аптечки, швейных принадлежностей и всего, что не должно попасть ребенку в руки. Тайник в консоли — на магнитном замке, открыть его смогут только родители.

БОЛЬШЕ ФОТО…
Остальные кадры из этой квартиры и другие проекты дизайнера в портфолио Артёма Попова
Есть задача: Спальня в гостинойАлина Лютая
6. Спальня с плиткой в изголовье
Место: Москва, TriBeCaApartments
Автор проекта: Алина Лютая
Размер: апартаменты 43 кв.м

Заказчик хотел создать холостяцкое гнездо с элементами лофта и обязательной гардеробной.

Особенности планировки: Дизайнер предложила несколько планировок, и заказчик выбрал вариант, где спальня частично отделена от гостиной высокой перегородкой. Большую часть бетонного потолка не зашивали, оставили видимой. Для отделки использовали цемент и штукатурку, а за изголовьем кровати уложили широкоформатную плитку. В прихожей в швы между плитками интегрировали металлические вставки. А в качестве акцентов использовали трехметровые балки в отделке из натурального шпона.
Есть задача: Спальня в гостинойАлина Лютая
БОЛЬШЕ ФОТО…
Остальные кадры из этой квартиры и другие проекты дизайнера в портфолио Алины Лютой
Есть задача: Спальня в гостинойAleksandra Nikulina
7. Спальня за реечной перегородкой
Место: Екатеринбург
Автор проекта: Александра Никулина, TrioDesign. Уютные интерьеры
Размер: квартира 42 кв.м.

В однокомнатной квартире решили объединить пространство кухни и единственной комнаты. Хотя пространство небольшое, получилось выделить места для хранения: в образовавшиеся ниши встроили шкафы для хозяйственных мелочей и одежды, сделали гардеробную.
Планировка квартиры

Особенность планировки:
Владелец хотел разместить в комнате и кровать, и полноценный диван. При прежней планировке помещался только небольшой диванчик (до 1,6 м длины) на кухне и кровать в отдельной спальне, при этом оба пространства были затесненными — там сложно было бы принять гостей. При объединении комнат спальную часть решили отделить деревянным брусом, который смотрится как часть кровати.
Есть задача: Спальня в гостинойAleksandra Nikulina
Краски Zoffany, Farrow&Ball, Little Greene; мебель ИКЕА; декор ZaraHome; светильники SLV, «Бонжур Абажур».

СМОТРИТЕ ТАКЖЕ…
Остальные кадры из этой квартиры и другие проекты дизайнера в профиле Александры Никулиной, TrioDesign. Уютные интерьеры
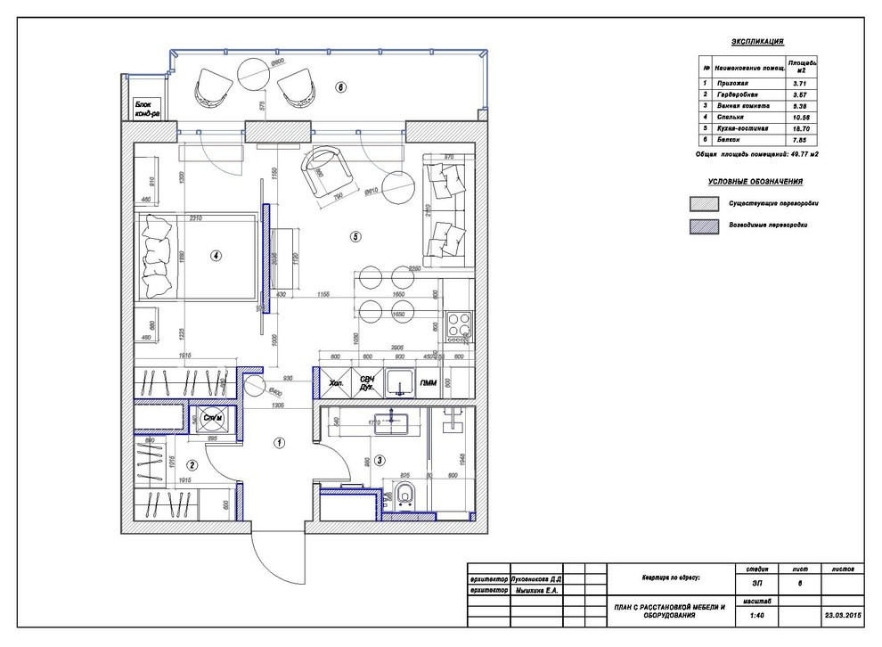
Есть задача: Спальня в гостинойАЛЕНА КЛЮЕВА
8. Спальня за перегородкой
Место:
Москва, Сколково-парк
Авторы проекта: Алёна Мышкина, Дарья Луковникова
Размер: квартира 50 кв.м

Владелец, молодой человек, просил использовать в интерьере стилистику американского лофта. А еще — найти способ организовать место для полноценной кровати и гостиной.
Особенности планировки: После обсуждения с владельцем дизайнеры решили оставить открытое пространство, но отделить место для сна небольшой перегородкой. Задача зонирования была выполнена, но ощущение света и воздуха при этом не потерялось.
Есть задача: Спальня в гостинойАЛЕНА КЛЮЕВА
Инженерная доска под маслом TopWood; кровать, прикроватный столик, комод My America; подушки, ваза на столе и декор на комоде Crate& Barrel; столярные изделия Игорь Макаров; текстиль Galleria Arben

СМОТРИТЕ ТАКЖЕ…
Остальные кадры из этой квартиры и другие проекты дизайнеров в профилях Алёны Мышкиной и Дарьи Луковниковой
__________________________

СМОТРИТЕ ТАКЖЕ…
Еще 39 идей для спальни-гостиной — в рубрике «Фотоохота»

В ВАШЕМ ГОРОДЕ…
Найдите дизайнера на Houzz в вашем городе — закажите собственный проект

Комментарии 7

nusa2011

7 л.

29 м зато на Арбате. и туфли живут в этой квартире)
k_o_d

7 л.

И все равно делают на пол крохотный квартиры гардеробные... Не понимаю. И да, за стоимость некоторых показанных ремонтов можно просто купить вдвое больше метров и жить комфортнее но проще.
Инна Л, я предлагаю купить квартиру попросторнее и жить попроще, чтобы не приходилось платить за сложную планировку и ремонт. Насколько больше? На две банки краски? Неужели они дороже услуг дизайнера? Деньги те же, уровень комфорта не в пример выше.

Оставьте комментарий

Читать похожие статьи