logo

До и после: Серая квартира в Хамовниках

Заказчики попросили подружить интерьер с архитектурой дома, построенного в 1923 году

Евгения Назарова
Евгения Назарова

20 авг. 2020

Обновлено 20 окт. 2020

Постоянный автор Houzz, интерьерный журналист

До и после: Серая квартира в ХамовникахКсения Усанова
Заказчики проекта увидели портфолио Ксении Усановой на Houzz и сразу нашли с дизайнером общий язык. Для активной молодой пары со множеством увлечений Ксения создала интерьер на стыке современного стиля и классики, чтобы срифмовать обстановку с историческим окружением старого московского района.
До и после: Серая квартира в ХамовникахКсения Усанова
О проекте
Место:
Москва, Хамовники
Размер: 68 кв.м
Кто здесь живёт: молодая семья с маленькой дочерью
Дизайнер проекта: Ксения Усанова
Фото: Ольга Мелекесцева
—————————————
В ВАШЕМ ГОРОДЕ…
Через Houzz можно нанять дизайнера или архитектора в любом городе и стране. Начать поиск специалиста
—————————————
Обмерный план: квартира до перепланировки

При первом же визите Ксения отметила сильные и слабые стороны пространства. К первым относились высокие потолки, толстые внешние стены и хорошая шумоизоляция. Ко вторым исходная планировка со входом в ванную через кухню. Кроме того, в санузле оказался доступ к гребёнкам соседей; скорее всего, так получилось потому, что за прошедшие сто лет менялись сами границы квартиры.
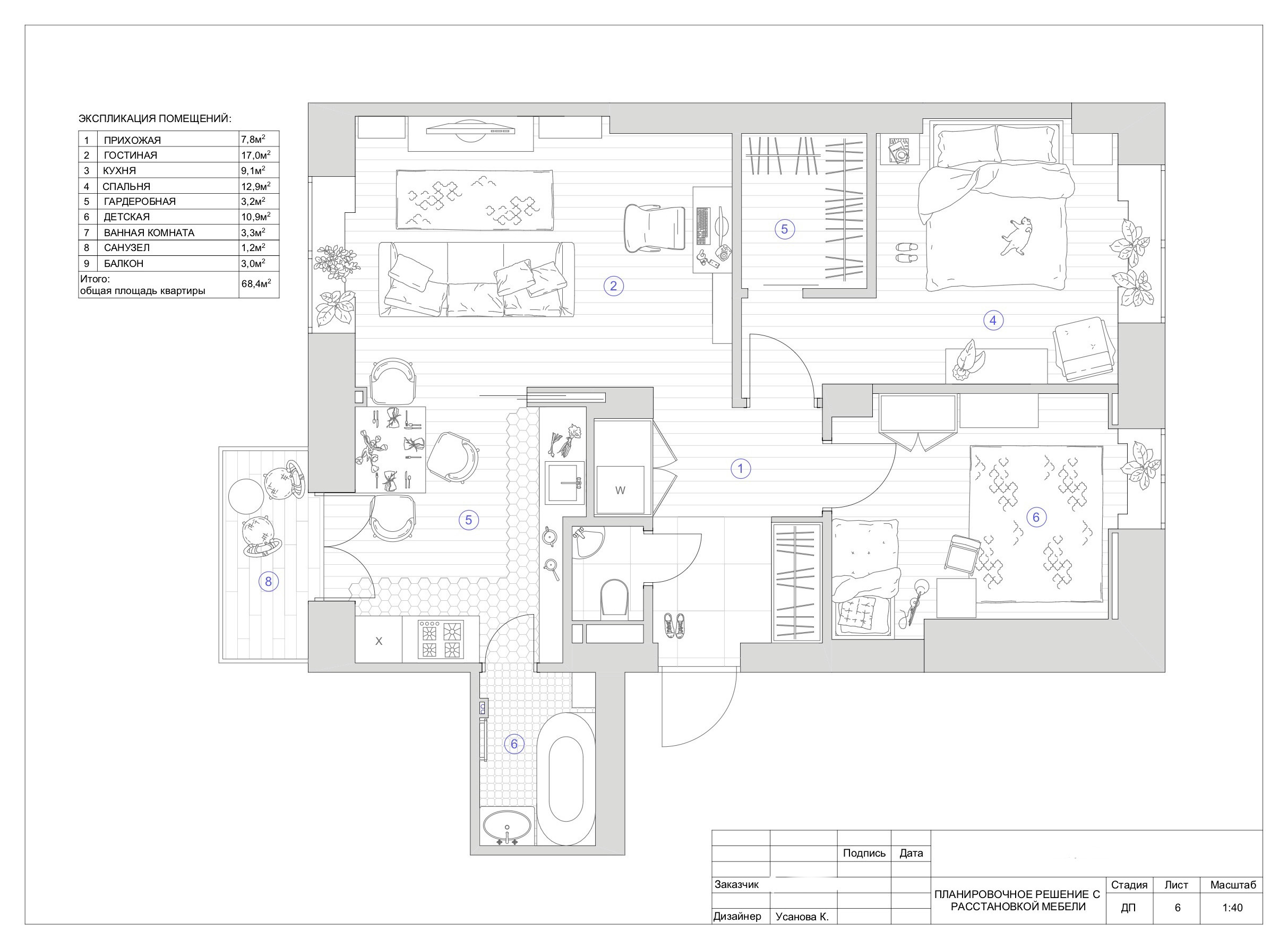
Планировка квартиры после ремонта

Планировку жилой части удалось скорректировать: проход на кухню сделали из гостиной, а спальне хозяев добавили гардеробную. В коридоре выделили зону постирочной со стиральной и сушильной машинами, а также зону хранения для пылесоса, ведра, швабры и прочих бытовых вещей.
На фото: так выглядела прихожая до ремонта
До и после: Серая квартира в ХамовникахКсения Усанова
Штукатурка Novocolor; плитка Vibe; потолочные светильники Visual Comfort; шкаф изготовлен в столярной мастерской «Апонте»

ПРИХОЖАЯ
Базовым цветом проекта выбрали серый, который стал фоном для насыщенных акцентов: стены в прихожей и гостиной покрыли декоративной штукатуркой. Для пола выбрали керамогранит, имитирующий разные материалы: серые вставки под бетон рифмуются с отделкой стен, коричневые сочетаются с паркетной доской.

Нижние секции шкафа оставили свободными, заказчики хранят здесь самокаты. Тяжёлые трёхметровые дверцы сделали на заказ по авторским эскизам.
На фото: так выглядела гостиная до ремонта
До и после: Серая квартира в ХамовникахКсения Усанова
Постеры Happy Collections

ГОСТИНАЯ
Сохранить оригинальный карниз не удалось, его решили восстановить. Кроме высокого карниза, по периметру потолка пустили тонкий белый полиуретановый молдинг: он объединяет помещения, добавляет графики серому интерьеру.
До и после: Серая квартира в ХамовникахКсения Усанова
Корпусную мебель для гостиной сделали на заказ по эскизам Ксении Усановой. В белый корпус вписали фасады с фактурой ореха.
До и после: Серая квартира в ХамовникахКсения Усанова
Обои Wall & Deco; люстра и торшер Baga; корпусная мебель изготовлена в столярной мастерской «Апонте»

Для акцентной стены выбрали фактурные обои, тактильно они напоминают штукатурку. Рисунок цветка отцентрировали так, чтобы он попал между стеллажами. Они не случайно разной ширины: таким образом цветок расположили на оси раздвижных дверей.
На фото: так выглядела кухня до ремонта
До и после: Серая квартира в ХамовникахКсения Усанова
Перегородка Adielle; обеденный стол и стулья Cattelan Italia

КУХНЯ
Чтобы визуально объединить газифицированную кухню с гостиной, между ними установили лёгкую перегородку на алюминиевом каркасе. Раскладку стёкол сделали по эскизам дизайнера.

На полу сочетали два вида покрытия: транзитные зоны (где чаще всего ходят) выложили плиткой. Стык между материалами оформили силиконовой затиркой.
До и после: Серая квартира в ХамовникахКсения Усанова
Проблема и решение: из-за особенностей планировки попасть в ванную можно только через кухню. Дверь пришлось устанавливать на скрытый короб: в ограниченный размерами ванной простенок помещались либо наличники, либо кухонная мебель. И заказчики объяснимо сделали выбор в пользу гарнитура.
До и после: Серая квартира в ХамовникахКсения Усанова
Кухня Bauformat

«Это самая сложная кухня за десять лет моей работы: я очень переживала из-за точных размеров и расстановки, кухня рассчитывалась буквально до миллиметра. Но на производстве стандартные модули идеально подогнали под наши размеры», вспоминает Ксения Усанова.

На матовой поверхности фасадов не остаётся отпечатков: «Мы провели съёмку после того, как владельцы прожили в квартире полгода, и кухня по-прежнему была в первозданном виде, хотя хозяева много готовят».
На фото: балкон в процессе ремонта
До и после: Серая квартира в ХамовникахКсения Усанова
Столик и стул ИКЕА

БАЛКОН
На балкон до ремонта страшно было выходить из-за провисающей плиты перекрытия. Пол усилили армированной сварочной конструкцией, а затем покрыли керамогранитом под дерево, на вид его почти не отличить от паркета в смежной кухне. Новые кованые перила изготовили по эскизам Ксении Усановой.
На фото: так выглядела спальня до ремонта
До и после: Серая квартира в ХамовникахКсения Усанова
СПАЛЬНЯ
Под изголовье кровати выстроили нишу: идею подсказал несущий выступ слева, который для симметрии повторили и с правой стороны.
До и после: Серая квартира в ХамовникахКсения Усанова
Комод и прикроватная тумба Lola Glamour; кровать Piermaria; люстра Arteriors; светильники на прикроватных тумбах IDL

Цвет декоративной штукатурки для стен выбирали долго: нужный оттенок утвердили только после седьмой попытки. Ярких красок добавили с помощью необычной мебели. «Это довольно дорогая фабрика, но заказчики согласились потратиться: аналоги фасадов можно было найти в бюджетном сегменте или сделать на заказ, но таких красивых ручек не было ни у кого», поясняет Ксения.
На фото: так выглядела детская до ремонта
До и после: Серая квартира в ХамовникахКсения Усанова
Обои Cole & Son; торшер IDL

ДЕТСКАЯ
Комнату обустраивали для девочки, но родители попросили не акцентировать внимание на гендерных особенностях. Получился «просто уютный интерьер», который не придётся переделывать через пару лет, когда хозяйка подрастёт.
На фото: так выглядела ванная до ремонта
До и после: Серая квартира в ХамовникахКсения Усанова
Плитка на полу TopCer; плитка на стенах Ceramiche Grazia; обои Wall & Deco; латунные аксессуары Nicolazzi

ВАННАЯ КОМНАТА
Для пола выбрали метлахскую плитку с голубыми вкраплениями. На стенах скомбинировали глянцевую плитку-кабанчик и обои для влажных помещений, сочетающиеся по цвету.
На фото: так выглядел санузел до ремонта
Обои Wall & Deco; латунные аксессуары Nicolazzi

ТУАЛЕТ
В санузле также использовали обои для влажных помещений (на этот раз яркие, чтобы у пространства появился характер). Смеситель и аксессуары изготовлены из живой латуни: со временем она будет благородно стареть и менять цвет.
_____________________________

ОБ АВТОРЕ ПРОЕКТА…
Перейдите на страницу студии Ксении Усановой, чтобы изучить другие работы из портфолио дизайнера

У ВАС ЕСТЬ ДЛЯ НАС ПРОЕКТ…
Загрузите съёмку в свой профиль на Houzz, отправьте ссылку с кратким описанием на editorial@flatica.ru

Для справки: Какие объекты мы публикуем

Комментарии 69

Подскажите где покупали/заказывали римские шторы в спальню? очень понравились)
Galina K

3 г.

В целом, квартира получилась красивая и выдержанная Что могло бы быть и другим ( на мой взгляд) : . - зубчатая плитка на полу в кухне выглядит лишней - ну уж очень узнаваемый уже комод -
Отличное преображение!

Оставьте комментарий

Читать похожие статьи