logo

До и после: 16 кв.м — парижская студия с эффектной кухней

Интерьер для любителей минимализма и сочных цветов

Houzz Россия
Houzz Россия

4 февр. 2021

Обновлено 28 мар. 2022

«Если у вас маленькая квартира, это не означает, что вам не нужен дизайнер. Я скажу так — вам нужен дизайнер даже больше, чем тем, кто ремонтирует большие квартиры», — говорит Агата Маримбер, которая делала проект и вела ремонт этой парижской студии площадью 16 кв.м. Владелец уже не первый раз обращается к ней за помощью для переделки квартир, которые приобретает и ремонтирует под сдачу

О проекте:
Где: четвертый этаж здания на улице Вьель дю Тампль в Париже
Размер: 16 м²
Сроки: 2,5 месяца с момента завершения проекта
Бюджет: 39 500 евро с учетом налогов, без учета сборов
Автор проекта, архитектор: Агата Маримбер
Съемка: Филипп Биллар
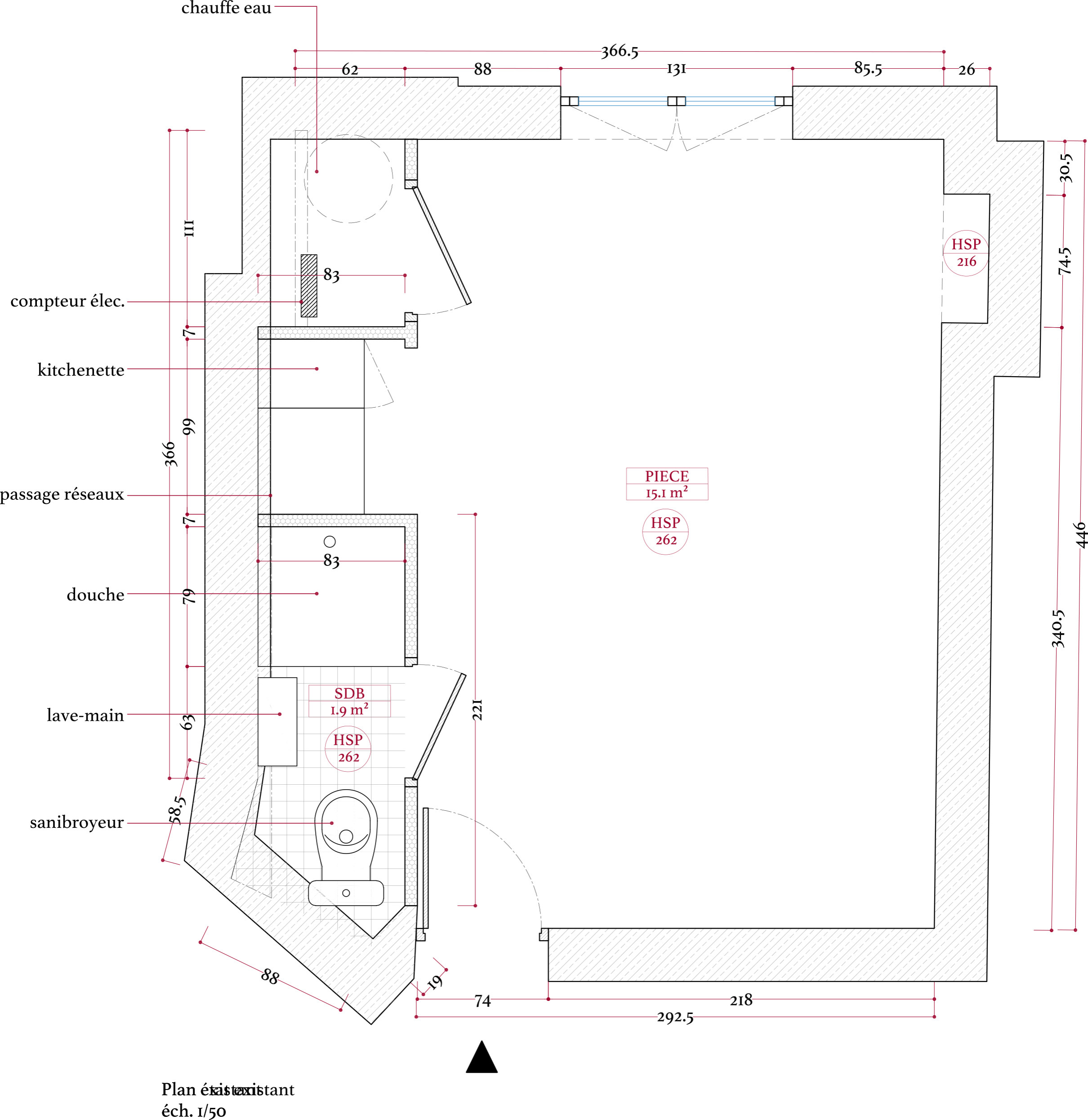
До. Небольшая студия с гигантским окном во двор и прекрасным видом во двор. Однако «воздух» в квартире перекрывала антресольная кровать на входе.
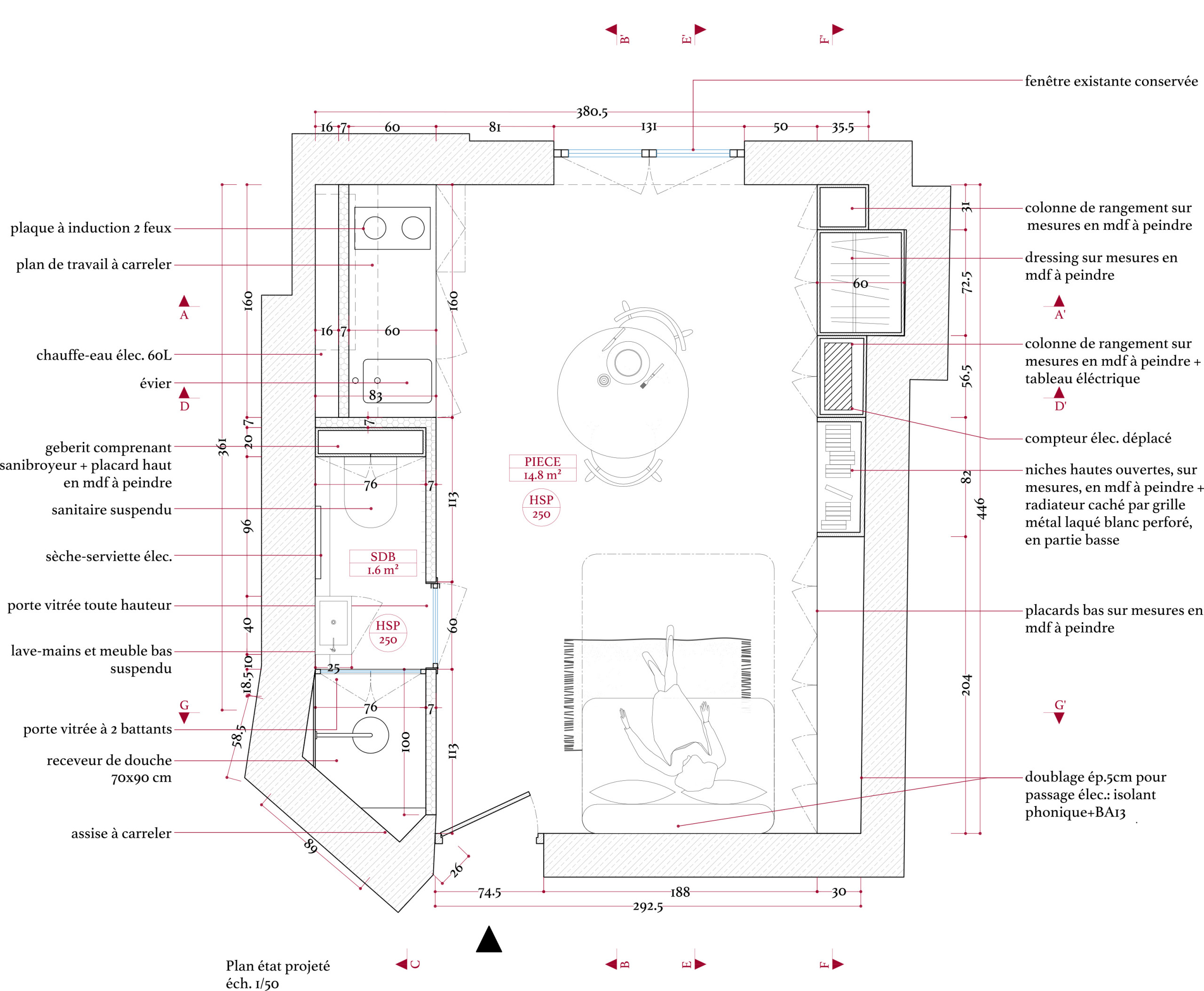
Стол и стулья: Fermob; паркет Decoplus; настенные светильники: Zangra После. Важно было «заставить дышать» эту единственную комнату, но при этом сохранить все необходимые функции — организовать полноценную кухню, гостиную, спальню, ванную и кладовую. Все это — на 16 кв.м
До. Кроме спальной зоны, все функциональные зоны располагались в левой части квартиры. В основном это было связано с выводами воды и канализации.
После. Новая планировка задействует обе части квартиры. Слева — связанные с водой: ванная комната, туалет и кухня. Справа — система хранения, счетчик. Это позволило «выровнять» странную форму стен на месте бывшего дымохода. А также создать акустический буфер по отношению к соседним квартирам. « Звукоизоляция — большая проблема квартир в Париже. Довольно трудно убедить владельцев сделать полноценную шумоизоляцию специальными материалами. Ведь так мы потеряем минимум пол квадратного метра стен; при цене 12 000 евро за квадратный метр жилплощади это существенно. Именно поэтому мы ищем альтернативные сценарии », — объясняет архитектор.
До. В левой части комнаты находились ванная комната, мини-кухня и шкаф
После. В планировке выделяются две ниши, облицованные плиткой цвета морской волны. В одной организована ванная комната, другая обрамляет кухонный фартук.
Кухня располагается там, где в прежней планировке раньше стоял платяной шкаф. Она состоит из трех шкафов 40-60-60 см. В целях безопасности водоразборная точка и индукционная плита были разнесены как можно дальше. Под варочной панелью — комбинированный духовой шкаф, а в шкафу под раковиной предусмотрены места для хранения хозяйственных принадлежностей и мусорных ведер. В центре находится холодильник. Над нишей, помимо всего прочего, есть место для бака водонагревателя 60 л. Вытяжка в этом доме не предусмотрена. «Рециркулятор разрушил бы идею ниши, а окно находится рядом”, — объясняет Агата.
Поскольку это квартира под сдачу, отделка должна быть максимально долговечной и желательно не очень дорогой. Плитку выбрали одну из самых простых, по цене 45 евро/кв.м.
При этом качество работ — на высочайшем уровне. Вы заметили, как уложена плитка в кухонной нише? «Мы делаем предварительную раскладку плитки с учетом выбранной коллекции. План раскладки является обязательной частью документации по проекту, которую получает заказчик. И конечно же, мы внимательно следим за ходом реализации проекта, проводим на объекте авторский контроль», — поясняет архитектор
Над столешницей сделали две небольшие полки глубиной 20 см. «В небольшом пространстве важно как можно больше вещей хранить закрытым способом. Но мы намеренно оставляем небольшие зоны открытыми, чтобы оживить пространство», — говорит профессионал.
До. Планировка санузла была нелогичной — унитаз располагался в большей части комнаты, а душевая была зажата в отсеке неправильной формы.
После. Объединение кухни и ванной комнаты создало встроенную полосу и заставило исчезнуть перегородки последней. Результат визуально намного легче. Чтобы оживить это безупречное сочетание двух утино-зеленых “цветовых блоков”, архитектор отделал дверь ванной комнаты той же плиткой, что и кухонную нишу. “Это стекло, которое содержит металлическую решетку. Она слегка размывает вид, не изменяя цветопередачи”, — объясняет архитектор.
Душевую и унитаз поменяли местами. Организация душевой строительным способом позволила сделать ее просторнее, чем в исходной планировке. В углу душевой сделали две полки, повторяя аккуратный дизайн кухонных.
Обратите внимание на зеркало над умывальником: его вырезали кратно размеру плитки со швами, с точностью до миллиметра.
До. Это старая входная дверь и кровать-чердак, которая использовалась в качестве основного спального места.
После. Владелец предпочел раскладной диван — это модель Rapido, которая трансформируется одной рукой (не нужно убирать подушки сиденья сверху). Удобный вариант для ежедневного сна без необходимости забираться на антресоль. Шкаф напротив кухни и ванной имеет разную глубину — самая большая часть на месте бывшего каминного дымохода. Здесь установили секцию платяного шкафа.
Открытая секция с книжными полками в нижней части скрывает радиатор отопления. Металлическая решетка не уменьшает выделяемого тепла. Обратите внимание на нишу в конце линии низких шкафов — она служит прикроватной тумбочкой.
Существующий паркет “елочкой” пришлось демонтировать — реставрации он не подлежал. Стяжку тоже делали заново. В итоге замена пола была одной из самых больших статей расходов проекта… К счастью, окно было в хорошем состоянии. ————————————— В ВАШЕМ ГОРОДЕ… ► Через Houzz можно нанять дизайнера или архитектора в любом городе. Начать поиск специалиста для вашей задачи —————————————

Комментарии 10

Ольга Плоом, в абзаце про кухню: «в центре находится холодильник».
Вот только - где холодильник??
16 м.Восхитительно!!

Оставьте комментарий

Читать похожие статьи