logo
Год реализации: 2023
photo

14 фотографий

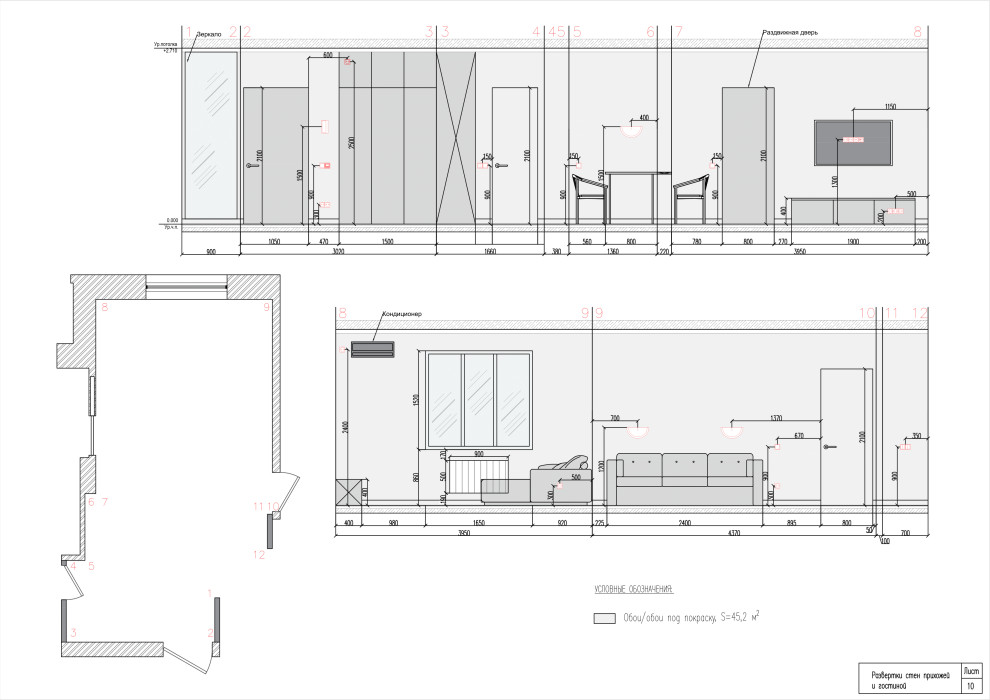
Развертка стен: детская
Развертка стен: детская
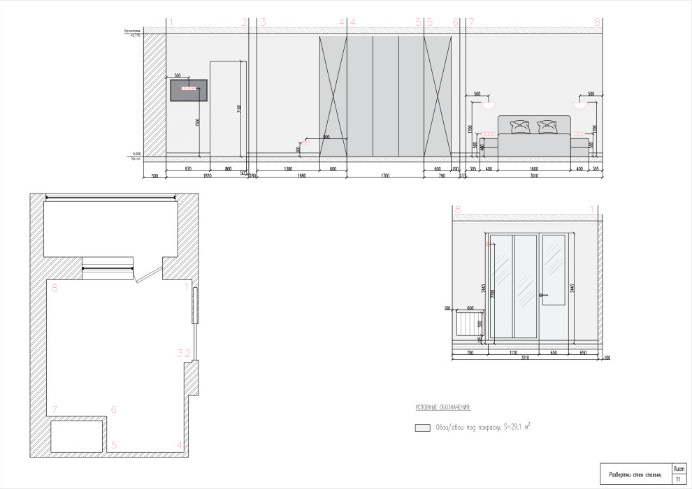
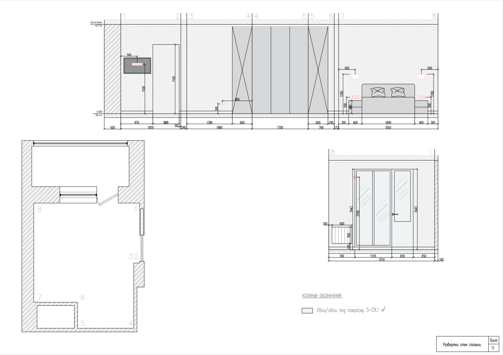
Развертка стен: спальня
Развертка стен: спальня
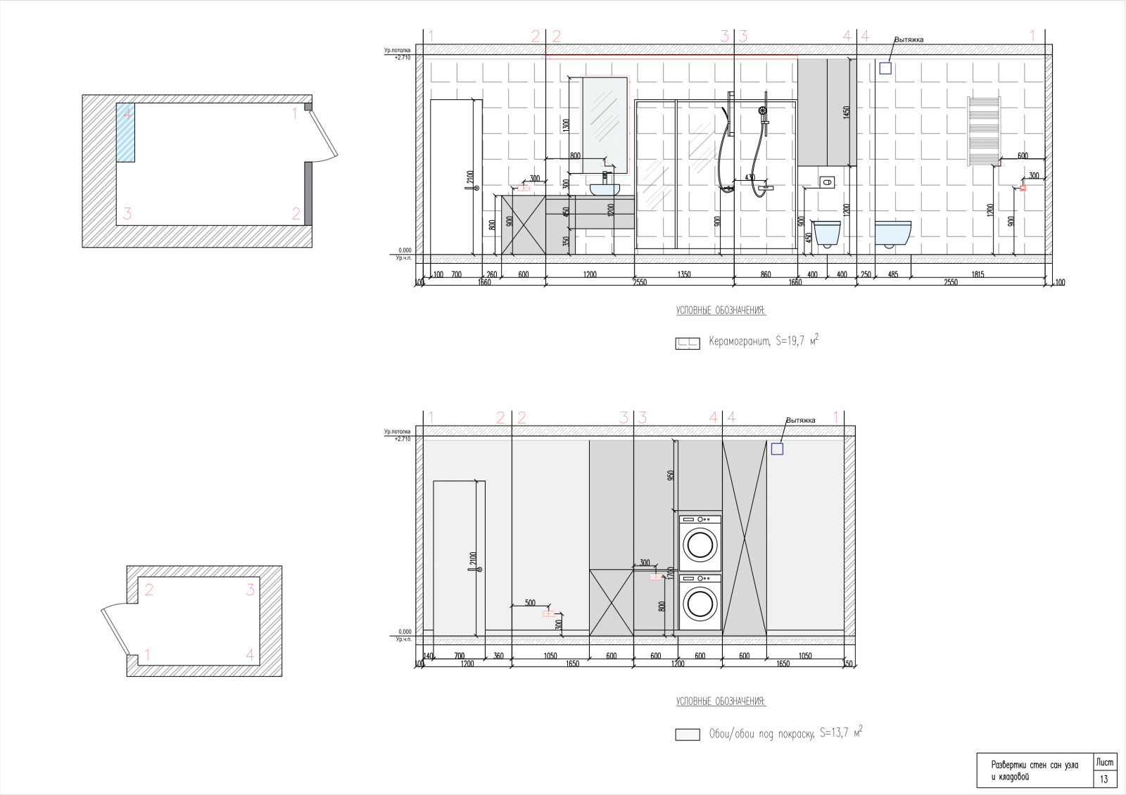
Развертка стен: кухня
Развертка стен: кухня
План электрооборудования
План электрооборудования
План привязки световых групп
План привязки световых групп
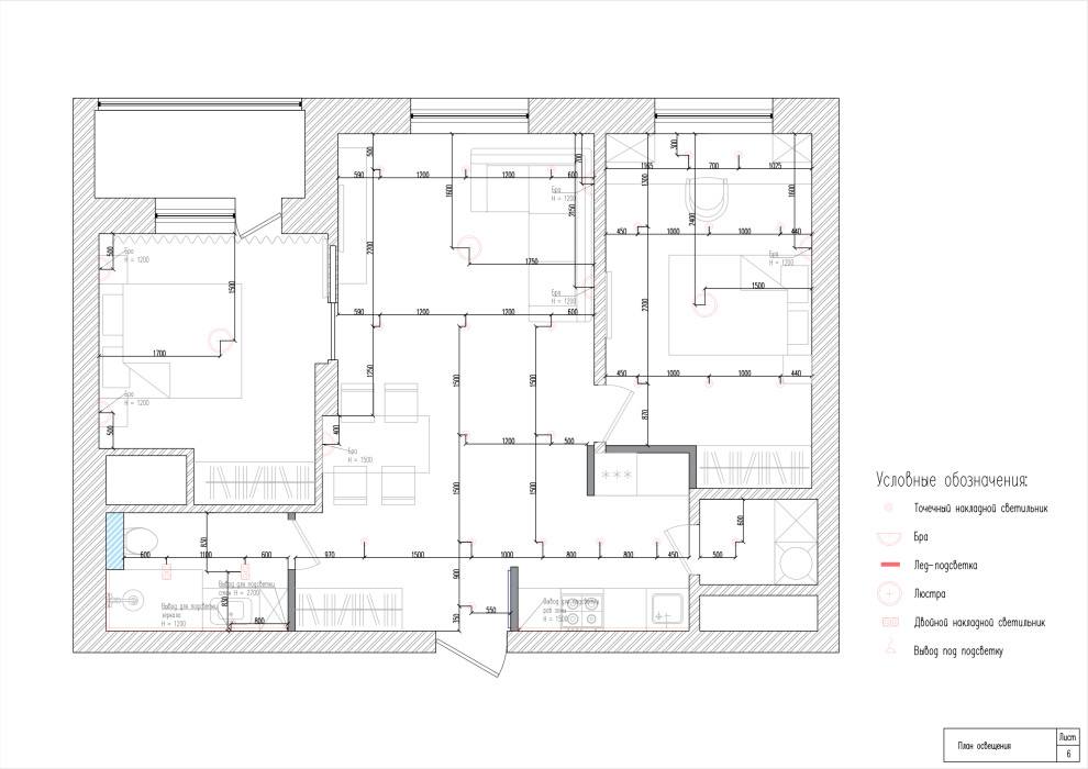
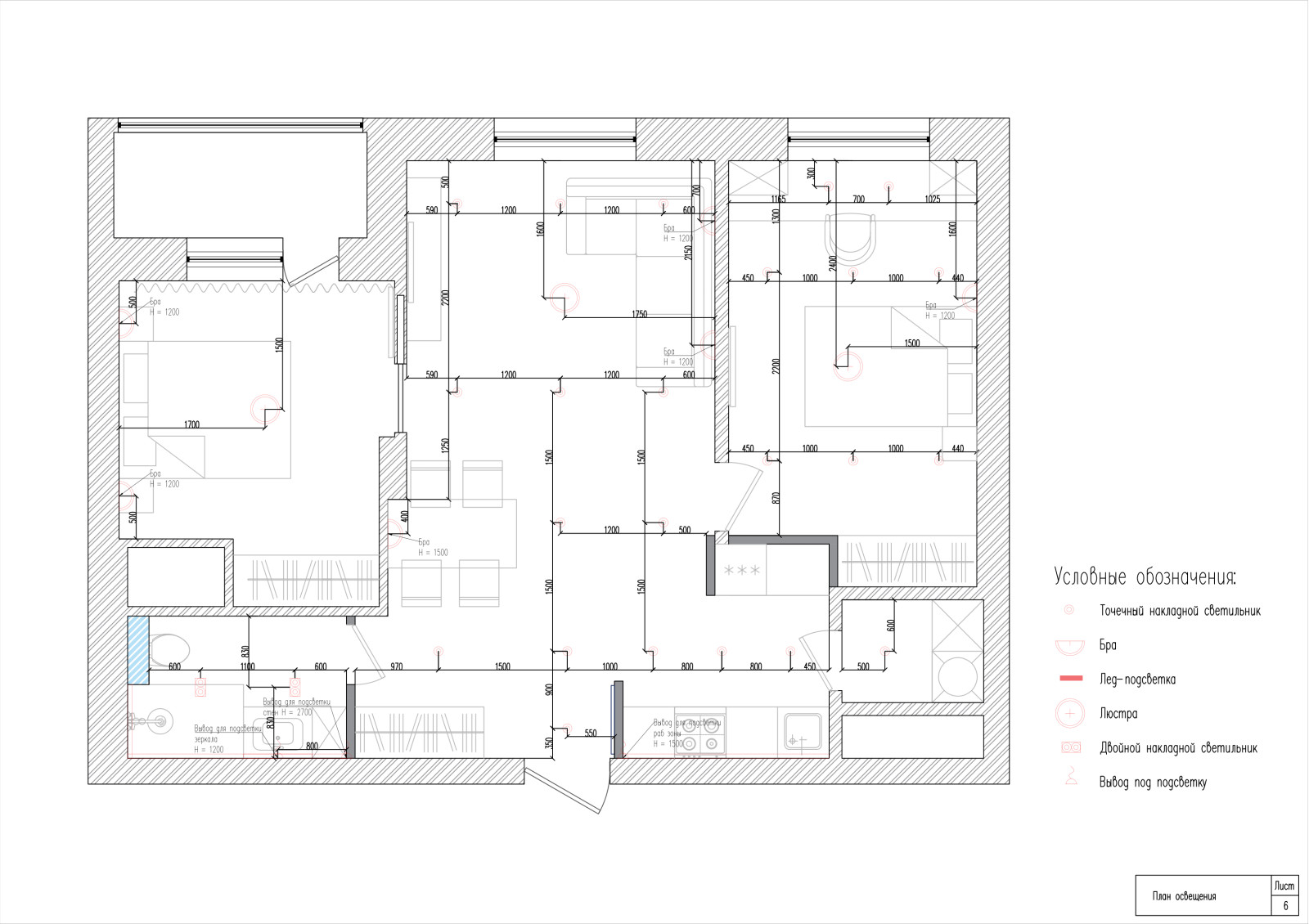
План освещения
План освещения
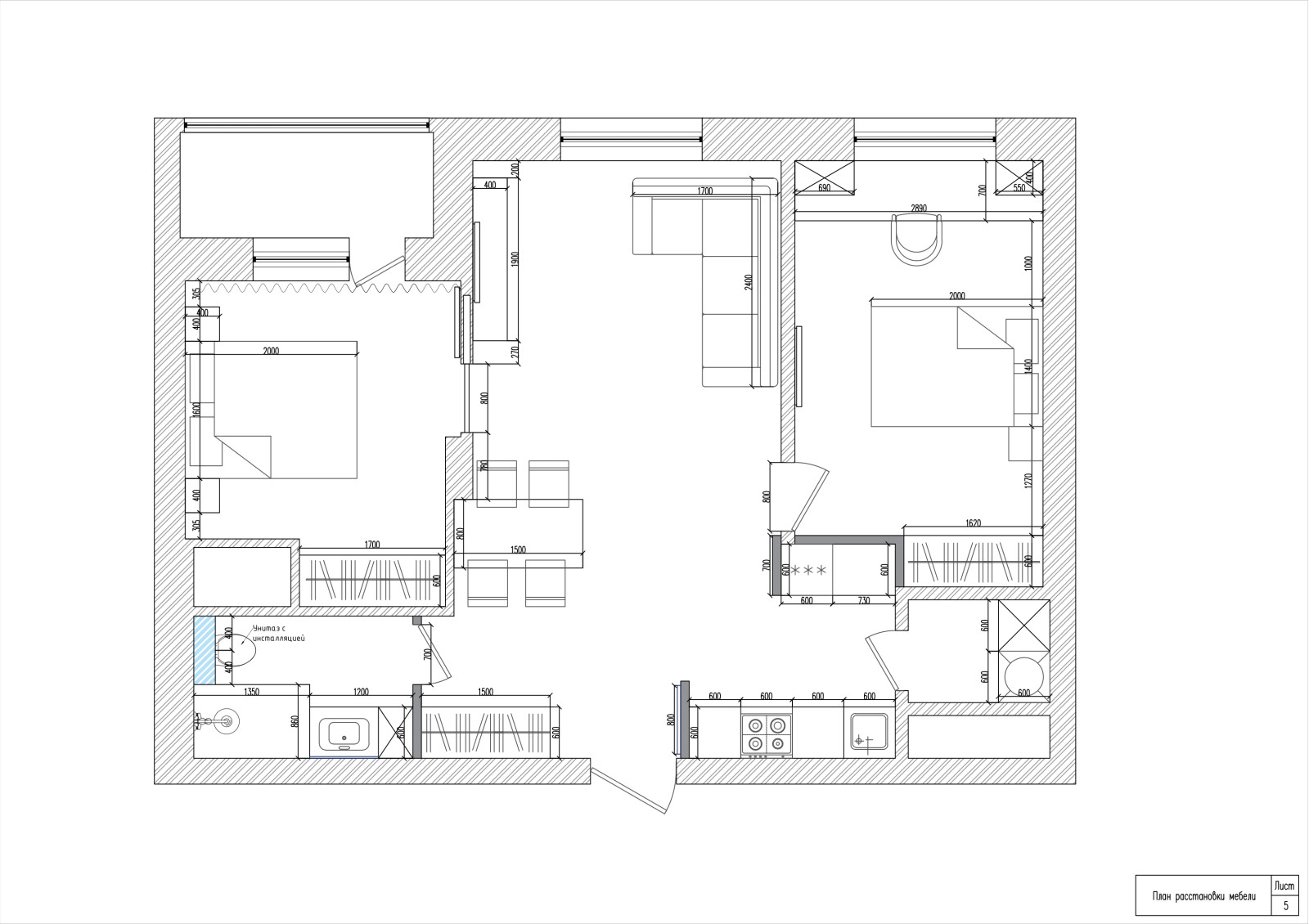
План расстановки мебели
План расстановки мебели
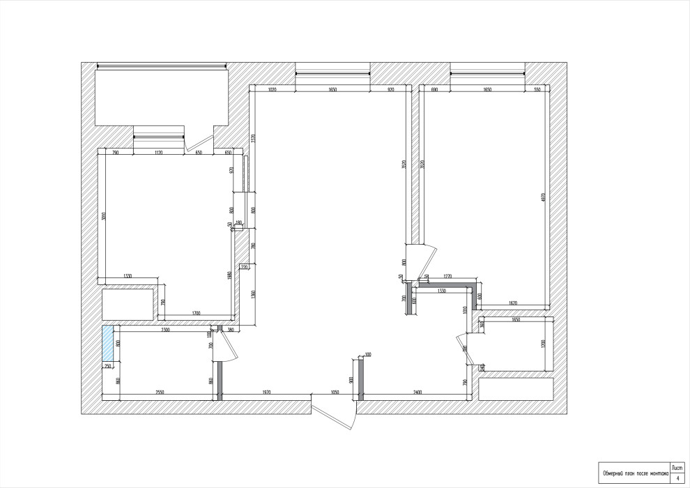
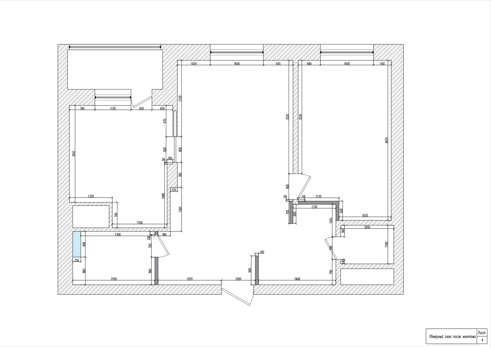
Обмерный план после монтажа
Обмерный план после монтажа
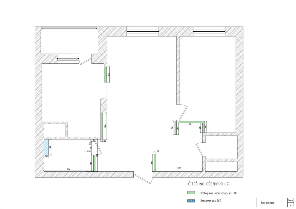
План монтажа
План монтажа
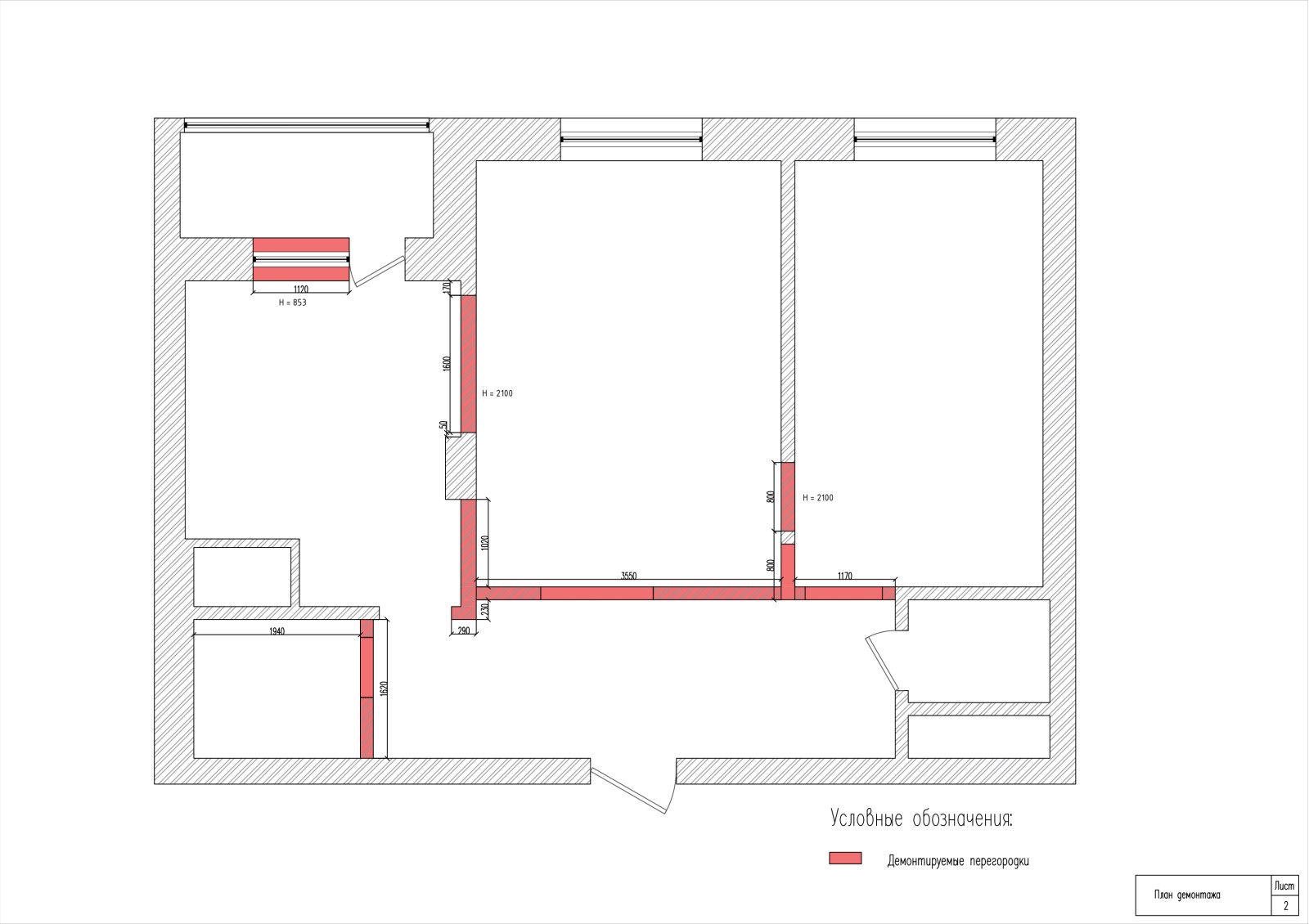
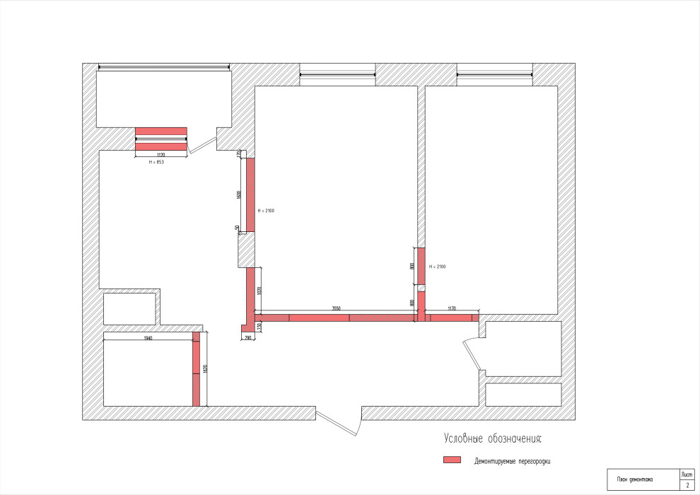
План демонтажа
План демонтажа
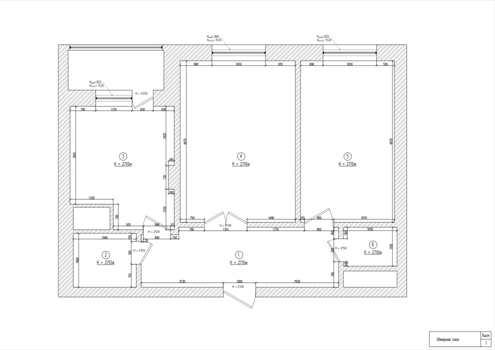
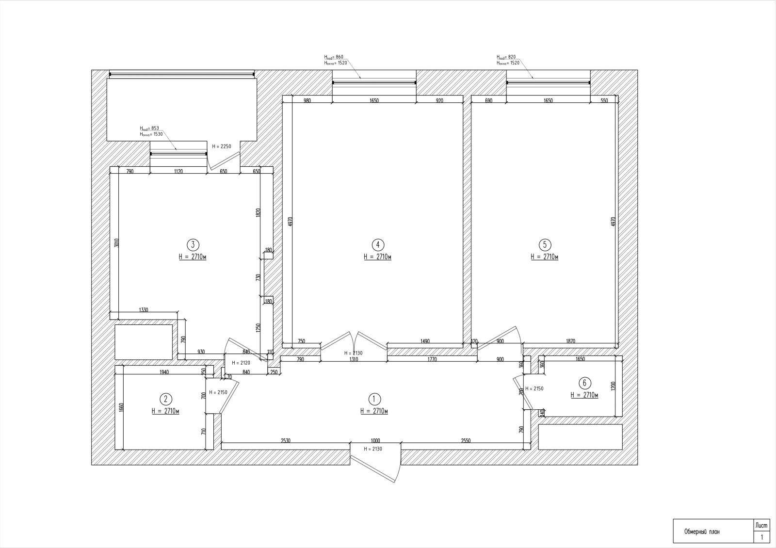
Обмерный план
Обмерный план
ЖК Паруса
ЖК Паруса
Фоновое изображение профиля S1 Interiors
Фото профиля S1 Interiors

S1 Interiorsfreshhouse_leads

Дизайнеры интерьера