logo
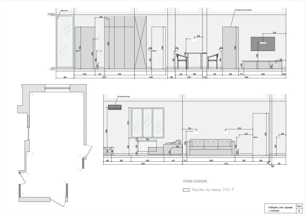
Развертка стен: прихожая и гостиная

Другие фотографии в проекте ЖК Паруса

Развертка стен: сан.узел и кладовая
Развертка стен: детская
Развертка стен: спальня
Развертка стен: кухня
План электрооборудования

Вопросы к фото 0

Задайте вопрос

Вам ответят эксперты. Пришлем уведомление, когда вам ответят

freshhouse_leads

S1 Interiors

Дизайнеры интерьера

Смотреть профиль

1

отзыв

5

Рейтинг

ЖК Паруса

Вопросы к фото 0