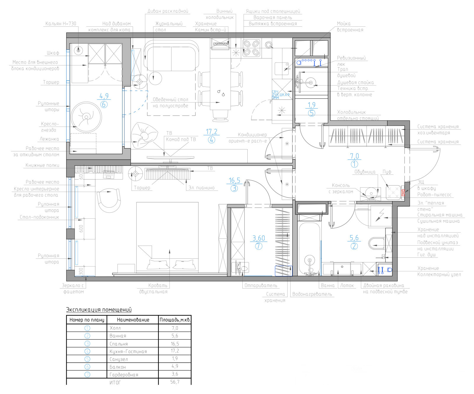
ЖК Галактика Премиум, 57 кв.м
Квартира для молодой пары с одной спальней, кухней-гостиной и двумя санузлами. Второй санузел с душевой предусмотрен еще и для удобного мытья лап домашнего любимца)
Год реализации: 2021
Стоимость проектирования: 2 450 000 ₽
29 фотографий





























