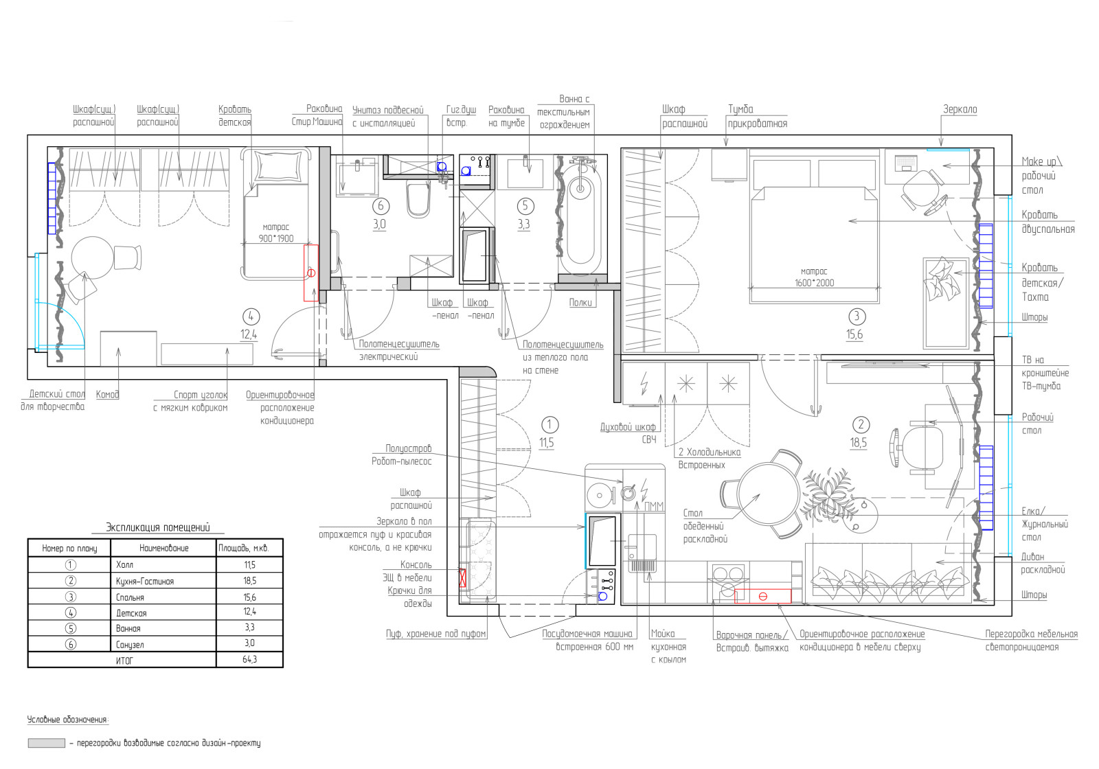
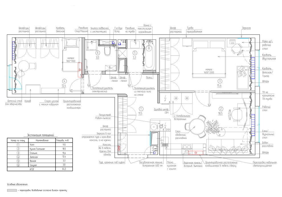
СЕРЫЙ СФУМАТО, 64 кв.м
Квартира для семейной пары с ребенком . Адрес: СПб, ЖК «Черная Речка» . .
Год реализации: 2022
Стоимость проектирования: 5 250 000 ₽
г. Санкт-Петербург, 3 Вазаский переулок
27 фотографий
Квартира для семейной пары с ребенком . Адрес: СПб, ЖК «Черная Речка» . .
27 фотографий
