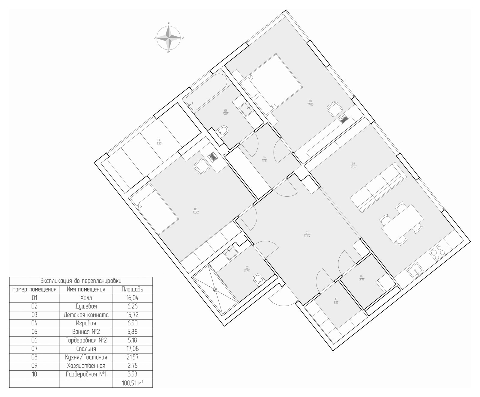
ЖК Futurist, г. Санкт-Петербург
В проекте используются элементы культурного кода Петербурга: высокие потолки, паркет из натурального дерева, камин, каменная облицовка фасадов, метлахская плитка, которая украшала многие дома и парадные в начале XX века. . Эти элементы культурного кода нашли свое отражение в дизайне. . Лаконичные формы, большое количество света и свободное пространство –составляющие стиля этой квартиры. . Я хочу, чтобы люди, живущие в такой квартире, могли ощущать атмосферу Петербурга в своём интерьере, но при этом жили современно и удобно. Поэтому я спроектировал квартиру в стиле минимализм, с деталями близкими сердцу петербуржца. . Я представил себе семью, которая ведет динамичную современную жизнь, и ценит традиции. . Общим связующим всей квартиры является сочетание теплого дерева и белого цвета стен, метлахской плитки и фактуры камня. .
19 фотографий


















