ЖК Англиская миля, г. Санкт-Петербург
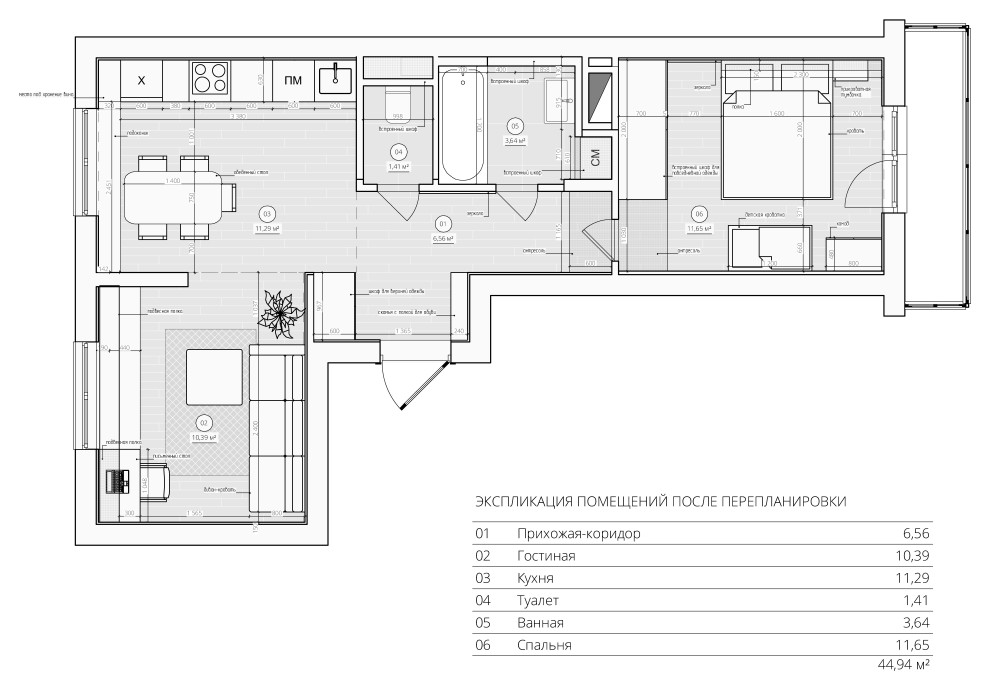
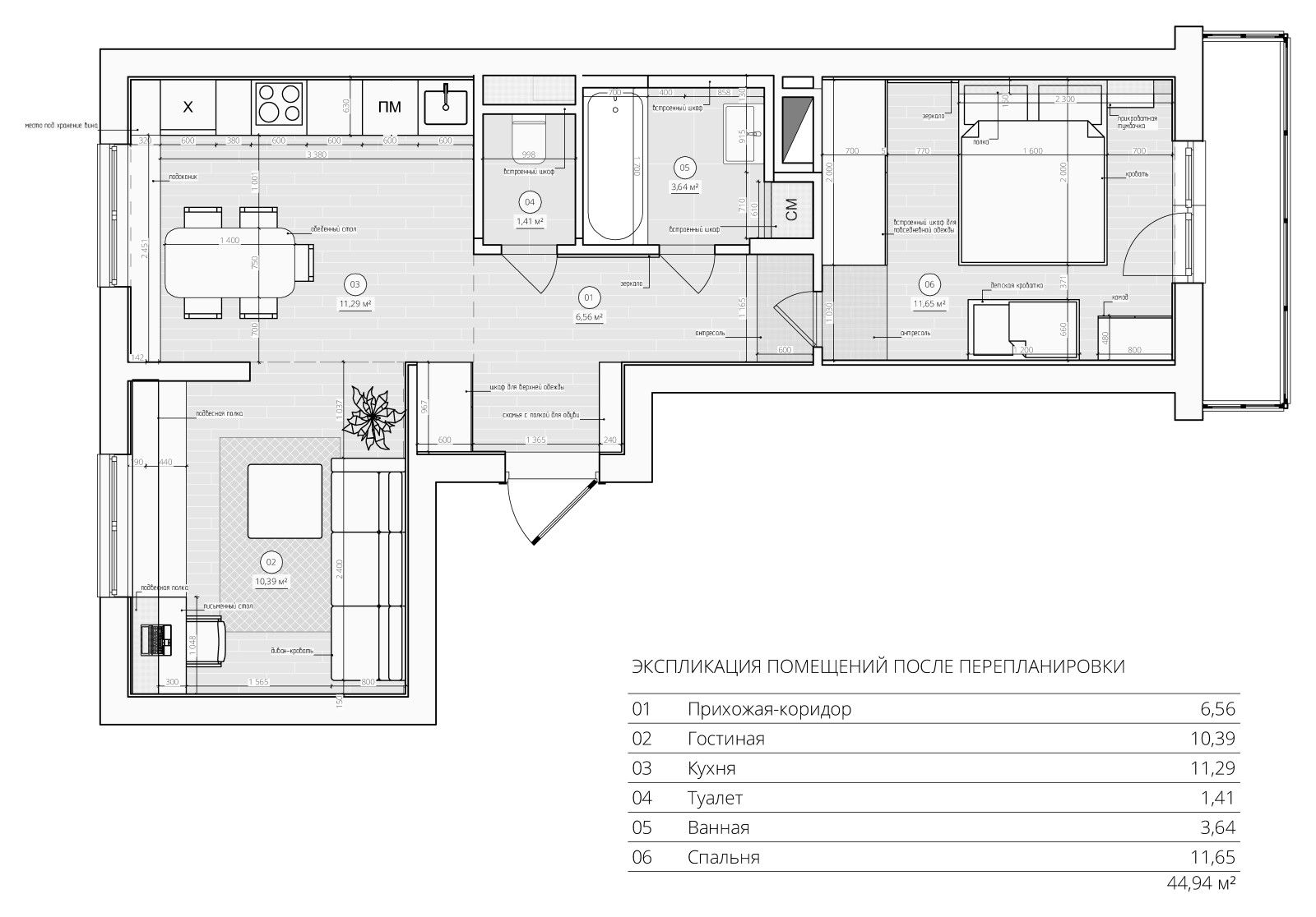
Задача: создать органичное и минималистичное пространство для семьи, где есть маленький ребёнок. Основная идея создания уютного пространства минимальными средствами. Основные отделочные материалы: бетон, каменный шпон, дерево. Небольшая квартира состоит из 2 зон: кухня, столовая, гостиная, где разделением является непосредственно несущая плита архитектуры здания и зона частная: спальни. . . В интерьере используется деревянная мебель на заказ. Особенность её в том, что она является не отдельным объектом, а органично вливается в отделку, объединяя и расширяя пространство. В минимальном декоре используются предметы ручной работы и отсылки к морской теме, которые видны в постере с морской раковиной, плетением абажуров над обеденной зоной, камнем в отделке как в гроте морских пещер. ЖК Английская миля располагается недалеко от финского залива. Что дало название проекта «Северное море»
15 фотографий
















