ЖК Foriver 140 кв.м.
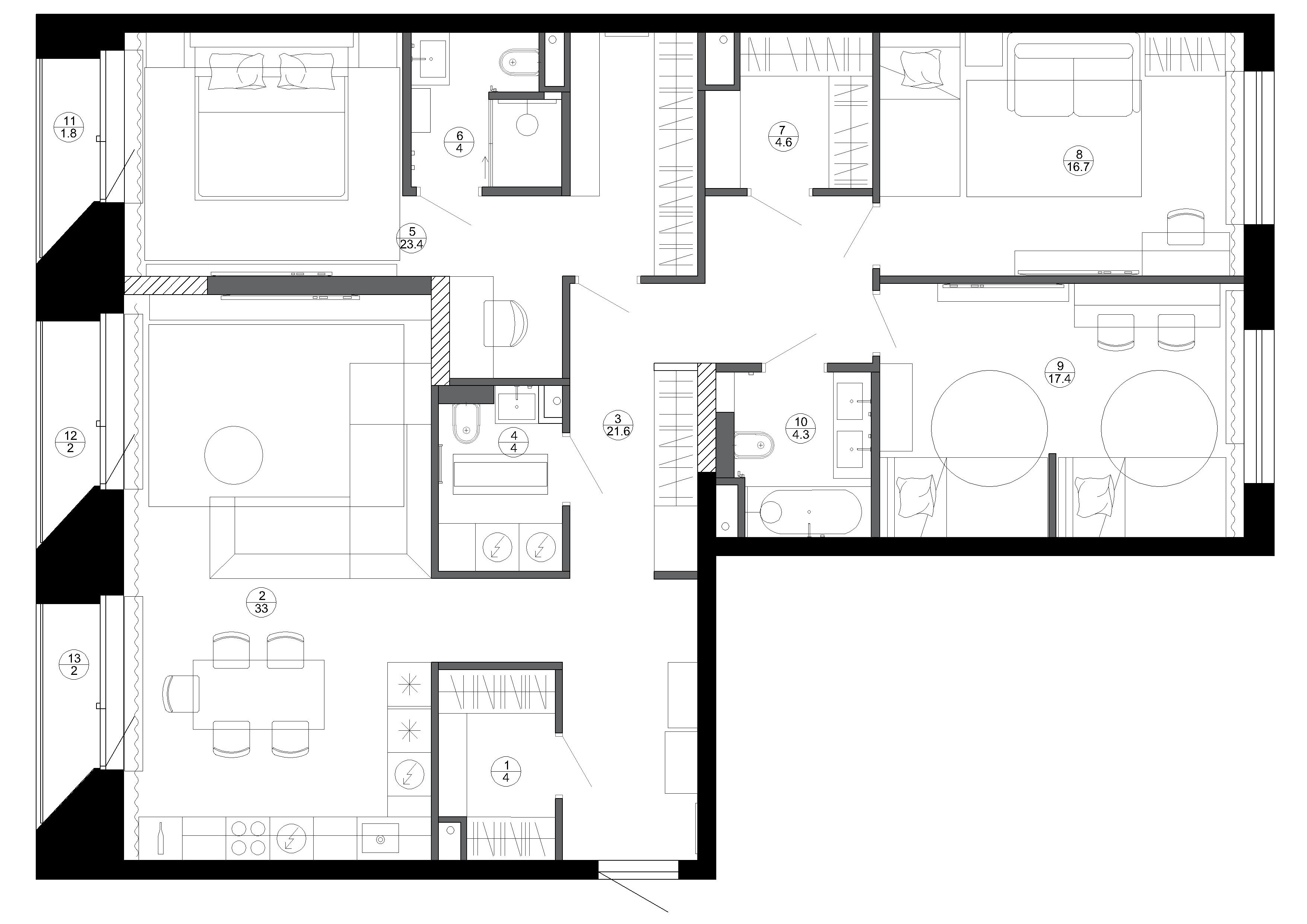
Квартира 140 кв.м. в ЖК Foriver создана для семьи с тремя детьми школьного возраста. Конфигурация квартиры позволила нам учесть все пожелания заказчика и создать довольно просторную кухню-гостиную, мастер-зону, состоящую из спальни с собственным гардеробом, мини-кабинетом и санузлом, комнату для двух сыновей-погодок, отдельную комнату для старшего сына, несколько гардеробных, санузел для детей и постирочную, объединенную с гостевым санузлом при входе Одним из пожеланий заказчиков было использование практичных и при этом красивых материалов, а также качественные, простые и надежные решения, современная стилистика интерьера. Нам очень импонирует такой подход, и конечно дизайн было делать в удовольствие). Цветовое решение квартиры было выбрано в светлых тонах, преимущественно светло-серые оттенки с дополнением цветовыми-акцентами. Подробнее о каждом помещении ниже. Начнем с прихожей. Прихожая получилась очень минималистичная с точки зрения количества мебели. Хранение организовано в просторной гардеробной, расположенной в прихожей. Отделка пола – керамогранит, на стенах шпонированные панели из дерева и панели из мдф, покрытые эмалью. Из прихожей по коридору налево мы попадаем в кухню-гостиную, которая визуально, с помощью расстановки мебели и светового зонирования, разделена на две части. Часть кухни включает в себя вместительный кухонный гарнитур с большим количеством встроенной техники и столовую зону. Фасады кухонного гарнитура выполнены из инновационного материала fenix и очень удобны в эксплуатации из-за устойчивости к различным загрязнениям и повреждениям. Основание стола выполнено из кожи, столешница из керамики, стулья подобрали из той же кожи что используется на ножках стола. Над столом размещен декоративный подвесной светильник молочного цвета. Зона гостиной — это большой угловой диван с пуфом и столиками. Здесь настоящим магнитом для глаз служит зона TV, украшенная слэбом из мрамора неро марквина и деревянными панелями из дуба. В зоне дивана предложен декор деревом и камнем, который переплетается с используемым в качестве стеновой панели на кухне. Освещение в гостиной заполняющее, с небольшими акцентами на стенах в виде декоративных бра и подсветки в зоне TV. Вернувшись в коридор и пройдя прямо, можно попасть в комнаты или санузел с постирочной, в который предлагаю заглянуть прежде, чем направиться дальше. Постирочная-мечта, представлена здесь как полностью законченное и максимально функциональное решение, уже не раз реализованное нами в квартирах и домах. Здесь есть стиральная и сушильная машины, а также большой удобный сушильный шкаф. Помимо этих базовых привычных и незаменимых устройств мы традиционно для себя разместили потолочную сушилку, таким образом закрыв потребности в сушке любых самых деликатных вещей. Вместе с постирочной зоной в помещении предусмотрен гостевой санузел с достаточным местом для хранения. Спальня меблирована минималистично: большая кровать, тумбы и зона TV. Здесь мы, также как и в гостиной, выделили эту зону натуральным камнем, в данном случае травертином. На стенах спальни использован гибкий камень, декоративная штукатурка и панели из дерева. В общем пространстве спальни есть мини-кабинет для заказчицы. Вместительную гардеробную размещенную при входе в спальню мы решили не отсекать в отдельное помещение, сделали у шкафов стеклянные фасады с зеркальным эффектом что в совокупности помогло увеличить пространство для хранения и увеличить комнату визуально. Мастер-санузел небольшой и функциональный. Здесь важно было разместить душевую определенного размера, и необходимое количество мебели. Комната старшего сына. Просторная комната для мальчика, которая вмещает в себя кровать, шкаф, диван, рабочее место с большим количеством мест хранения и зону TV. Представляет собой практически полностью обособленное пространство, которое так необходимо подростку, который вот-вот станет взрослым). Около комнаты старшего сына расположена гардеробная для всех мальчиков. Отделка стен в основном разные типы панелей: панели из мдф покрытые эмалью, 3d панели, панели из дерева. Небольшое количество стен окрашено краской. Комната младших сыновей. Эта комната сделана немного "на вырост" и очень функциональна. Здесь мы постарались выделить каждому мальчику индивидуальное пространство для сна, отделив кровати перегородкой. Рабочее место сделали визуально общим, но при этом ножки разделяют пространство в зоне кресел. Учли максимальное количество мест хранения. Отделка стен: панели из мдф покрытые эмалью, 3d панели, панели из дерева. Небольшое количество стен окрашено краской.
37 фотографий





































