ЖК Белорецкий (реализация)
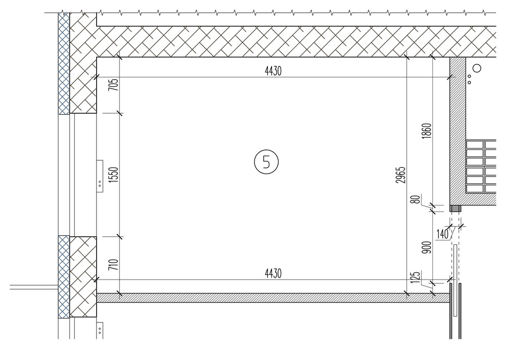
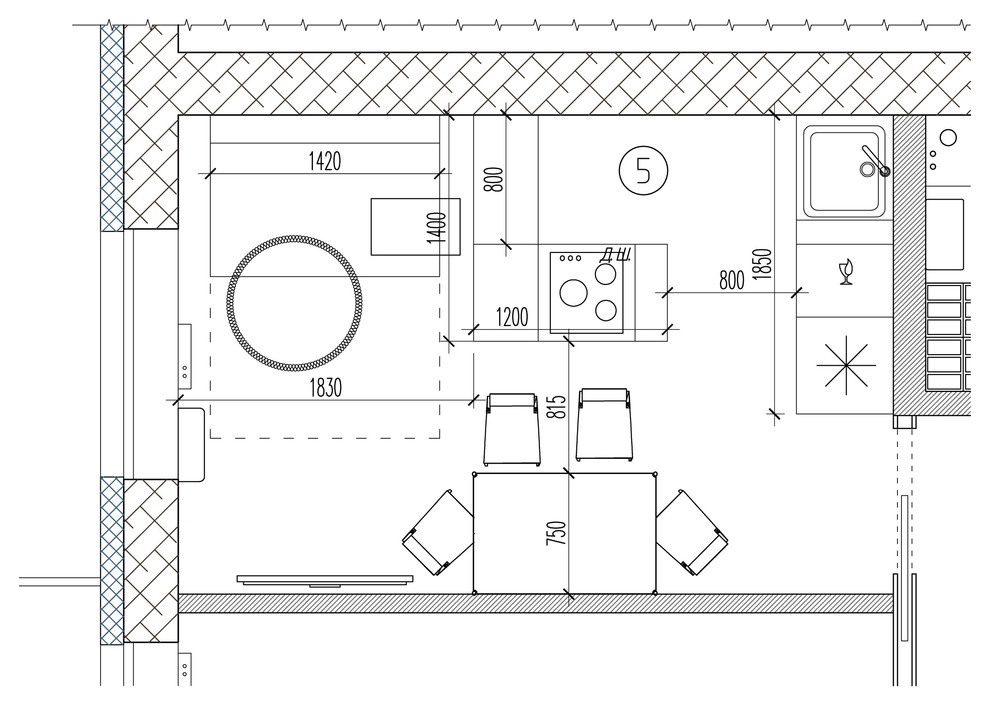
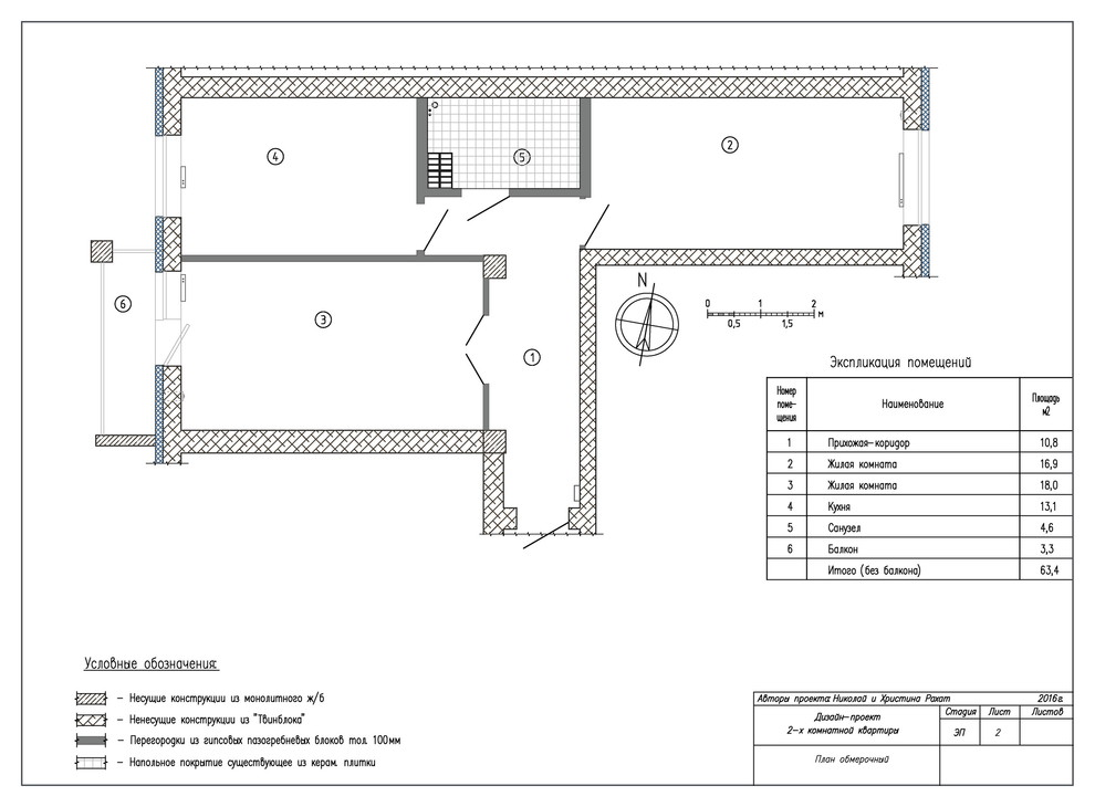
Благодаря полному сопровождению при закупках (комплектация) реализованная квартира получилась в точь как на эскизах и как ее хотели видеть заказчики. . . Реализованный проект 2-х комнатной квартиры в современном стиле. . Семья из 4-х человек. Семейная пара с дочерью 3г. и сыном 15л. . Площадь 68 м2 . ЖК Белорецкий г.Екатеринбург, ул.Степана Разина, 107 . . Пожелания: . • спланировать кухню таким образом, чтобы в ней уместилось достаточное место для готовки, отдельная зона - столовой, и по возможности гостиная зона для просмотра TV с возможностью спального места; . • маленькая дочь несколько лет будет жить в родительской спальне; . • продумать комнату для увлекающегося музыкой сына-подростка; . • минимум мебели; . • организовать отдельное место для хранения; . • ванная с душевой зоной; . • спокойное цветовое решение гостиной и с/у; . • возможность использования цвета в остальных помещениях. . . Решение: . • благодаря планировке 80 lvl на кухне площадью всего 13 м2 уместилось всё запланированное и есть достаточно места для проходов; . • конфигурация кухонного острова позволяет хозяйке во время готовки находиться лицом и к тем кто за обеденным столом, и к тем кто отдыхает на диване, и к экрану телевизора; . • прозрачные обеденные стулья и стол визуально не загромождают небольшое помещение; . • лестничная фурнитура, использованная для крепления кухонного стеклянного фартука на острове с отступом, делает удобным уборку загрязнений (нет внутренних углов) и также защищает от брызг остальные зоны; . • полностью перепланировав коридор и немного уменьшив одну из спален, мы получили обособленную зону прихожей и просторную двустороннюю гардеробную для всей семьи; . • все зоны хранения максимально спрятаны от глаз. Для белья и личных вещей предусмотрено хранение в кроватях и встроенных в них секций; . • спальные места родителей и маленькой дочери визуально отделены. Впоследствии детская зона станет зоной отдыха с мягкими креслами; . комната сына-подростка - мечта юного любителя группы Metallica, громко заявляет о вкусах ее владельца. Удалена от родителей и ближе ко входу :) ;
32 фотографии
































