
Дизайнеры интерьера
4.83
·
10 отзывов
ЖК Белорецкий (реализация)
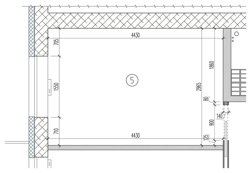
планировка кухни-гостиной (обмерочный план)
Другие фотографии в проекте
Вопросы к фото 0
Задайте вопрос
Вам ответят эксперты. Пришлем уведомление, когда вам ответят

Дизайнеры интерьера
4.83
·
10 отзывов
планировка кухни-гостиной (обмерочный план)
Другие фотографии в проекте
Вам ответят эксперты. Пришлем уведомление, когда вам ответят