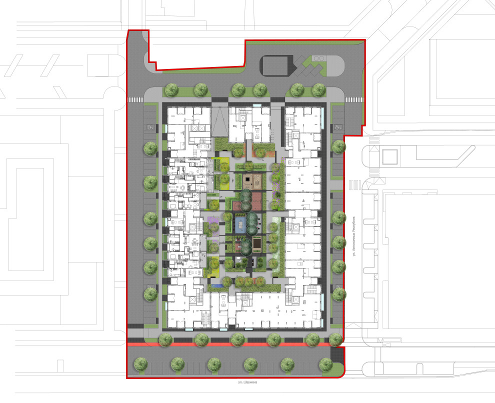
Жилой комплекс «Южные кварталы»
Данная концепция представляет собой проектные предложения по благоустройству внутреннего двора блока жилого комплекса «Южные кварталы». . Вдохновение для проектного решения наша команда черпала в ярких и характерных картинах знаменитого нидерландского художника Пита Мондриана. . . Четкая модульная структура, графичные линии планировки и яркие цветовые акценты создают красочный и запоминающийся образ двора без использования сложных технологических приемов. Особенности планировки позволяют осуществить основательное функциональное зонирование территории, не разбивая при этом общий образ данного двора. Активное озеленение и архитектурные детали способствуют формированию атмосферы расслабленного отдыха на природе. . В результате использования разнообразных выразительных средств и инструментов ландшафтно-архитектурного дизайна, формируется индивидуальный, запоминающийся образ двора, что способствует идентификации его жителями жилого дома, формированию ощущения приватности дворового пространства, укреплению связей между соседями. .
3 фотографии




