logo

Заявка от Юлии

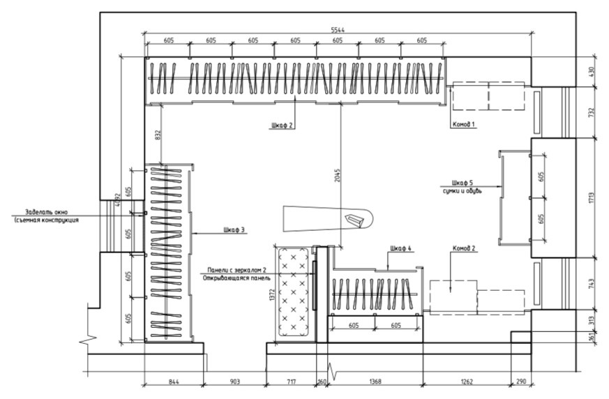
Поступила очередная онлайн-заявка на гардеробную от дизайнеров.

Год реализации: 2018
Стоимость проектирования: 135 000
г. Москва
photo

8 фотографий

Заявка от Юлии
Заявка от Юлии
Заявка от Юлии
Заявка от Юлии
Заявка от Юлии
Заявка от Юлии
Заявка от Юлии
Заявка от Юлии
Заявка от Юлии
Заявка от Юлии
Заявка от Юлии
Заявка от Юлии
Заявка от Юлии
Заявка от Юлии
Заявка от Юлии
Заявка от Юлии
Фоновое изображение профиля Cистемы хранения
Фото профиля Cистемы хранения

Cистемы хранения

Гардеробные и кладовые комнаты

Контакты