Другие фотографии в проекте Заявка от Юлии
Сначала новые
Вам ответят эксперты. Пришлем уведомление, когда вам ответят
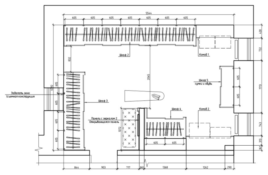
Cистемы хранения
Гардеробные и кладовые комнаты
5
отзывов
Рейтинг
Традиционный
Москва