Загородный дом в Подмосковье
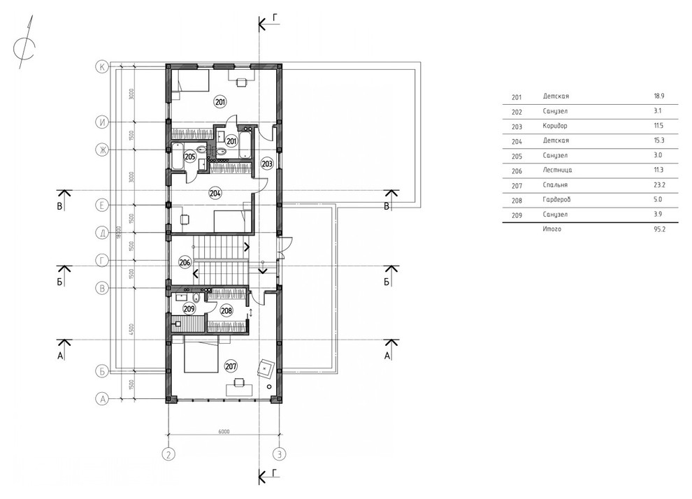
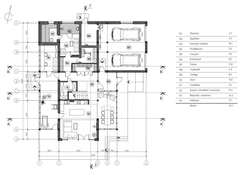
Проект загородного дома в современном стиле с большим витражными окнами, выходящими на двор с террасой. В доме площадью 300 кв.м. есть все необходимое для семьи из четырех человек. На первом этаже располагаются все общие и гостевые зоны, включая кухню-гостиную, кабинет, тренажерный зал, баню и гараж. На втором этаже - приватное пространство со спальней родителей и двумя детскими. . . Спроектировано в соавторстве с Федором Бухтояровым.
Год реализации: 2017
5 фотографий






