Загородный дом типа «шале»
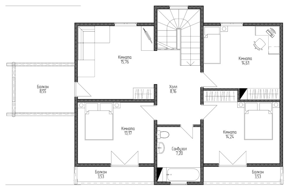
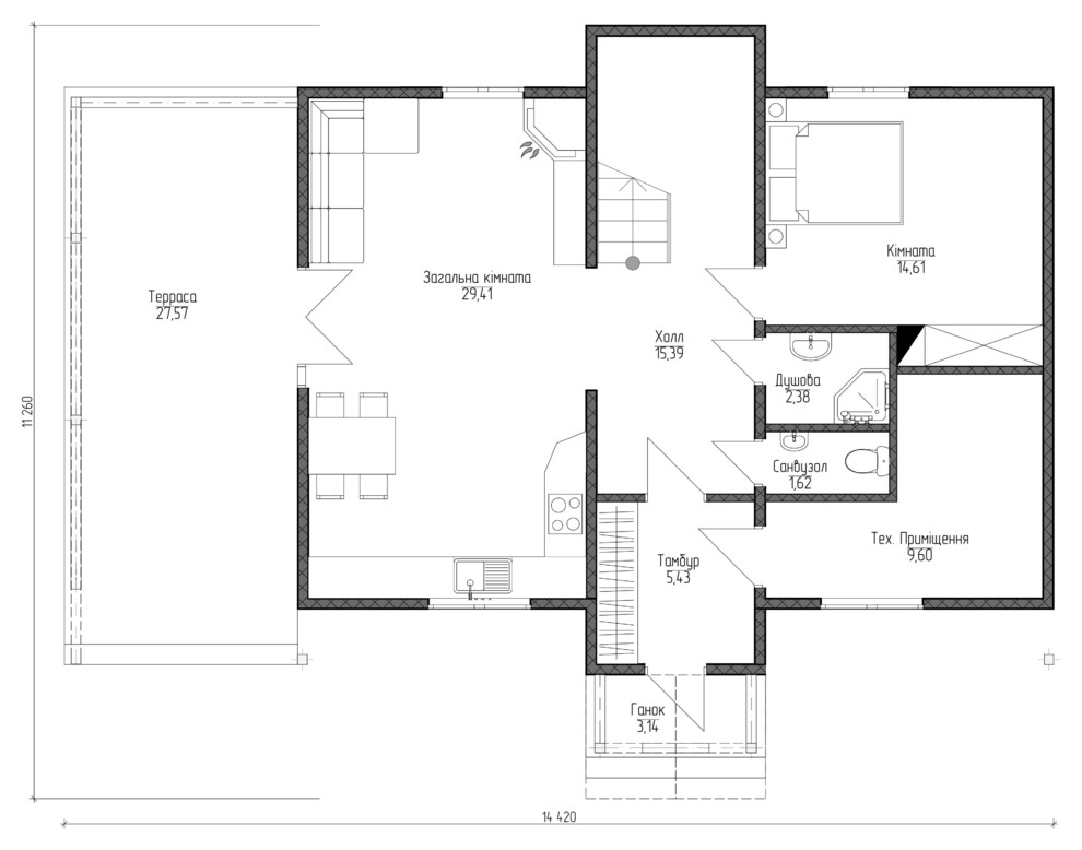
Оригинальный и уютный загородный дом создан архитекторами «Экопан» в швейцарском стиле «шале». Особенный колорит ему придает уникальное сочетание современного комфорта и классических традиций домостроения. В доме первый этаж выглядит более массивным, а последующий – легким. . Проект дома внутри спланирован так же хорошо, как и извне. Центральную часть шале занимает камин, а уже вокруг него организовано все пространство. При этом планировка комнат остается достаточно функциональной. На первом этаже расположились: просторная кухня – гостиная с выходом на террасу, холл, спальная комната и несколько техпомещений. На втором – две детские, две спальные комнаты холл и балкон. . Проект дома соответствует всем запросам современной семьи: санузлы расположены на каждом из этажей, а также на каждом из этажей есть собственные выходы на балкон. Летняя терраса гармонично вписывается в архитектуру дома и расширяет пространство для приятного времяпрепровождения.
4 фотографии





